Zeer sfeervol en keurig onderhouden benedenhuis van circa 55 m² MET een tuinhuis van circa 15 m² springt er uit door de originele jaren ’30 elementen, de praktische indeling en de heerlijke tuin op het zuidoosten.

Rondleiding
De leefruimte aan de voorzijde wordt gedragen door de erker — een uitkijkpost op de straat, waar het licht prachtig binnenvalt. Hier is ruimte voor een royale zithoek, die beschut ligt en tegelijk verbonden is met de straat via de hoge ramen. Aan de andere zijde van de ruimte staat een lange eettafel als centraal ankerpunt. De glas-in-looddeur en de lichtval maken deze plek uitgesproken geschikt voor diners, spelavonden of lang natafelen. De houten vloer loopt in één lijn door van voor tot achter en benadrukt de lengte van de woning, terwijl het kleurenpalet van zachte wit- en zandtonen het huis een geheel maakt.
De keuken is de schakel tussen de woonkamer en tuin. Een functionele en eigentijdse keuken opgezet uit een lange lijn met een robuust werkblad, een royaal fornuis en slimme kastruimte. De keuken is voorzien van een gasfornuis met oven, combimagnetron, vaatwasser en koel/vriescombinatie. Het contact tussen de keuken en eetkamer blijft behouden dankzij de open doorgang — koken en tafelen zijn hier onlosmakelijk verbonden.
Deze leefruimtes zijn even elegant als doelmatig. Ze bewegen mee met de dag, met momenten van samenzijn en rust, van koken en ontmoeten — op je eigen tempo, in je eigen ritme.

Slaapkamers
De hoofdslaapkamer grenst direct aan het groen en is met zijn dubbele openslaande deuren verbonden met het terras. Het kleurgebruik is subtiel en zacht; de groene lambrisering versterkt het gevoel van beschutting en geborgenheid. Naast de hoofdslaapkamer ligt een tweede slaapkamer die nu dienstdoet als kleedruimte, met een riante garderobekast over de volledige lengte. Uiteraard ook uitstekend als babykamer of kantoor. De houten vloer loopt door in alle kamers en maakt het geheel tot één rustige, samenhangende woonlaag.
De badkamer is compact maar doordacht ingericht, met een inloopdouche, wandtoilet en strak wastafelmeubel. De combinatie van witte wandtegels, antracietgrijze vloertegels en glas zorgt voor een hedendaagse, cleane uitstraling. Een glazen schuifdeur en opbergvakken maken optimaal gebruik van de ruimte.

Buitenruimte
Zodra je vanuit de keuken of slaapkamer naar buiten stapt, ontvouwt zich een groene oase op het zuidoosten. De tuin is breed en diep genoeg om zones aan te brengen: een royaal terras met plek voor zowel een loungeset als een buitentafel, omringd door een weelderige beplanting van hortensia’s, klimplanten en siergrassen.
De houten vlonder sluit mooi aan op de binnenvloer en vergroot het gevoel van ruimte. Hier geniet je van de eerste zonnestralen tot in de middag. Achterin staat een verzorgd tuinhuis van ca. 15 m² dat dienstdoet als werkruimte, berging en wasruimte. Het is verwarmd, geïsoleerd en voorzien van ramen — een volwaardige toevoeging aan het woonoppervlak. Binnen is het ingericht als thuiswerkplek, met voldoende daglicht en uitzicht op het groen.

Buurtgids
De Boterdiepstraat is gelegen in de geliefde Rijnbuurt, nabij het Martin Luther Kingpark en het Beatrixpark. De buurt kenmerkt zich door haar groene karakter en brede straten. Op onder andere de Rijnstraat en de Maasstraat is een groot en gevarieerd aanbod te vinden van winkels, traiteurs en horeca — van een uitstekende viswinkel en ambachtelijke bakker tot hippe koffie- en lunchzaken en sfeervolle restaurants.
Voor ontspanning liggen zowel het park als de Amstel op loop- of fietsafstand, ideaal voor recreatie of een hardloopronde. In de directe omgeving zijn diverse sportscholen te vinden, evenals het De Mirandabad, dat binnen enkele minuten per fiets bereikbaar is.

Bijzonderheden
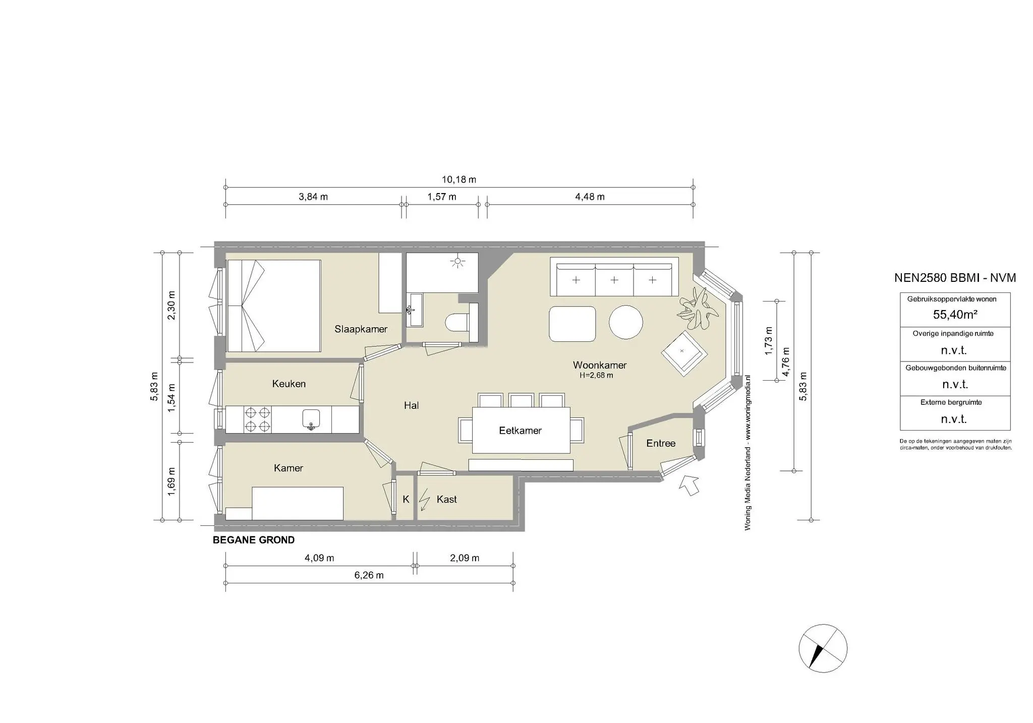
• Gebruiksoppervlakte wonen circa 55 m²
• Tuinhuis van circa 15 m²
• Tuin gelegen op zuidoosten
• Gelegen op erfpachtgrond van Gemeente Amsterdam. Huidig tijdvak t/m 31-01-2059, te betalen canon bedraagt € 610,50 per jaar (fiscaal aftrekbaar)
• Reeds overgestapt naar eeuwigdurende erfpacht, canon betaling na 2059 € 1289,81 (geïndexeerd)
• Energielabel B
• Servicekosten VvE € 92,02 per maand
• Rijksbeschermd stadsgezicht

Boterdiepstraat 31H-11

Riverhome 31
In de Rivierenbuurt heb ik in de loop der jaren diverse appartementen mogen verkopen. Elk huis heeft zijn eigen karakter en bijzonderheden. Dit zeer sfeervolle en keurig onderhouden benedenhuis van circa 55 m² mét een tuinhuis van circa 15 m², springt eruit door de originele jaren ’30-elementen, de praktische indeling en de heerlijke tuin op het zuidoosten.
Ongeveer vijf jaar geleden heb ik namens de huidige eigenaren dit appartement aangekocht. Het licht, de sfeer, de fijne tuin en de rustige straat maakten dat zij direct verkocht waren. Hopelijk ervaart de nieuwe eigenaar dat op dezelfde manier.

Judith de Jong | Makelaar Broersma Wonen


Judith de Jong | Makelaar Broersma Wonen
Boterdiepstraat 31H-3
Designvisie

Aan de rustige, boomrijke Boterdiepstraat ligt dit gelijkvloerse benedenhuis in een karakteristiek jaren ’30-blok. De gevel toont het ritme van Amsterdamse baksteen, erkers en witgeschilderde kozijnen — een vertrouwd straatbeeld, met een eigen, elegante signatuur. De erker aan de voorzijde geeft het appartement niet alleen extra licht en zicht, maar ook een zekere grandeur aan de gevel.
De Rivierenbuurt maakt deel uit van Plan Zuid en is gebouwd in de jaren ’20 en ’30 van de twintigste eeuw. Het stedenbouwkundige plan is ontworpen door architect H.P. Berlage, waarbij de bebouwing grotendeels is gerealiseerd in de herkenbare Amsterdamse School-stijl. Bekende architecten zoals Margaret Staal-Kropholler, Michel de Klerk en Piet Kramer hebben bijgedragen aan de totstandkoming van de wijk.

Boterdiepstraat 31H-2
Boterdiepstraat 31H-16
Boterdiepstraat 31H-8
Boterdiepstraat 31H-18
Wonen en koken

De leefruimte aan de voorzijde wordt gedragen door de erker — een uitkijkpost op de straat, waar het licht prachtig binnenvalt. Hier is ruimte voor een royale zithoek, beschut en toch in verbinding met de straat via de hoge ramen.
Aan de andere zijde van de ruimte staat een lange eettafel als centraal ankerpunt. De glas-in-looddeur en de lichtval maken deze plek uitgesproken geschikt voor diners, spelavonden of lang natafelen. De houten vloer loopt in één lijn door van voor tot achter en benadrukt de lengte van de woning, terwijl het kleurenpalet van zachte wit- en zandtonen het interieur tot een geheel maakt.
De keuken vormt de schakel tussen woonkamer en tuin. Een functionele en eigentijdse keuken, opgezet in een lange lijn met een robuust werkblad, een royaal fornuis en slimme kastruimte. De keuken is voorzien van een gasfornuis met oven, combimagnetron, vaatwasser en koelvriescombinatie. Dankzij de open doorgang blijft het contact met de eetkamer behouden — koken en tafelen zijn hier onlosmakelijk verbonden.
Deze leefruimtes zijn even elegant als doelmatig. Ze bewegen mee met het dagritme, met momenten van samenzijn en rust, van koken en ontmoeten — op eigen tempo, in eigen ritme.

 

Boterdiepstraat 31H-14
Boterdiepstraat 31H-10
Boterdiepstraat 31H-12
Boterdiepstraat 31H-19
Boterdiepstraat 31H-22
Boterdiepstraat 31H-17
Boterdiepstraat 31H-29
Slapen en baden

De hoofdslaapkamer grenst direct aan het groen en is met dubbele openslaande deuren verbonden met het terras. Het kleurgebruik is subtiel en zacht; de groene lambrisering versterkt het gevoel van beschutting en geborgenheid.
Naast de hoofdslaapkamer ligt een tweede kamer die nu dienstdoet als kleedruimte, met een riante garderobekast over de volledige lengte. Uiteraard ook uitstekend geschikt als babykamer of werkkamer. De houten vloer loopt door in alle kamers en maakt het geheel tot één rustige, samenhangende woonlaag.
De badkamer is compact, maar doordacht ingericht — met een inloopdouche, wandtoilet en strak wastafelmeubel. De combinatie van witte wandtegels, antracietgrijze vloertegels en glas zorgt voor een hedendaagse, cleane uitstraling. Een glazen schuifdeur en opbergvakken zorgen voor optimaal ruimtegebruik.

Boterdiepstraat 31H-21
Boterdiepstraat 31H-30
Boterdiepstraat 31H-31
Boterdiepstraat 31H-32
Boterdiepstraat 31H-27
Boterdiepstraat 31H-28
Boterdiepstraat 31H-25
De buitenruimte

Zodra je vanuit de keuken of slaapkamer naar buiten stapt, ontvouwt zich een groene oase op het zuidoosten. De tuin is breed en diep genoeg om zones te creëren: een royaal terras met plek voor zowel een loungeset als een buitentafel, omringd door weelderige beplanting van hortensia’s, klimplanten en siergrassen.
De houten vlonder sluit mooi aan op de binnenvloer en vergroot het gevoel van ruimte. Hier geniet je van de eerste zonnestralen tot in de middag.
Achterin de tuin staat een verzorgd tuinhuis van circa 15 m² dat dienstdoet als werkruimte, berging en wasruimte. Het is verwarmd, geïsoleerd en voorzien van ramen — een volwaardige toevoeging aan het wooncomfort. Binnen is het ingericht als thuiswerkplek, met voldoende daglicht en uitzicht op het groen.

Boterdiepstraat 31H-26
Boterdiepstraat 31H-15
Boterdiepstraat 31H-6
Boterdiepstraat 31H-4
Vechtstraat 161 huis-8
Buurtgids

De Boterdiepstraat is gelegen in de geliefde Rijnbuurt, nabij het Martin Luther Kingpark en het Beatrixpark. De buurt kenmerkt zich door haar groene karakter en brede straten. Op onder andere de Rijnstraat en de Maasstraat is een groot en gevarieerd aanbod te vinden van winkels, traiteurs en horeca — van een uitstekende viswinkel en ambachtelijke bakker tot hippe koffie- en lunchzaken en sfeervolle restaurants.
Voor ontspanning liggen zowel het park als de Amstel op loop- of fietsafstand, ideaal voor recreatie of een hardloopronde. In de directe omgeving zijn diverse sportscholen te vinden, evenals het De Mirandabad, dat binnen enkele minuten per fiets bereikbaar is.

Bereikbaarheid
De woning is uitstekend bereikbaar per auto via afslag S110 vanaf de A2 of via S109 vanaf de Ring A10 (afslag 9 – Rivierenbuurt). Door de centrale ligging binnen de stad zijn onder andere luchthaven Schiphol en de Zuidas binnen circa 15 minuten te bereiken.
In de directe omgeving bevinden zich diverse openbaarvervoervoorzieningen. Op de Rooseveltlaan, Churchill-laan en Scheldestraat zijn meerdere tram- en bushaltes te vinden. Op circa vijf minuten fietsafstand liggen zowel treinstation en metrostation Amstel als station RAI. De nabijgelegen halte van de Noord/Zuidlijn op het Europaplein zorgt bovendien voor een snelle verbinding met het centrum en Amsterdam-Noord.

Parkeergelegenheid
Parkeren is mogelijk via een vergunningensysteem op de openbare weg (vergunningsgebied Zuid 4.2 – Rivierenbuurt Zuid). Met een parkeervergunning voor dit gebied mag ook worden geparkeerd in Zuid-3 en Zuid-4. De kosten voor een bewonersvergunning bedragen € 192,81 per zes maanden. De geschatte wachttijd voor een parkeervergunning is momenteel circa één maand. Met een elektrische auto kunt u voorrang krijgen, mits wordt voldaan aan de aanvullende voorwaarden voor een milieuparkeervergunning. Een tweede vergunning is in dit gebied niet mogelijk. (Bron: Gemeente Amsterdam, juni 2025)

Vechtstraat 161 huis-7
Boterdiepstraat 31H-1
Boterdiepstraat 31H-5
Kenmerken
Boterdiepstraat 31H, Amsterdam
Vraagprijs
  • € 580.000 k.k.
Beschikbaarheid
  • In overleg
Vertrekken
  • 3 kamers
  • 2 slaapkamers
  • 1 badkamer
Onderhoud
  • Intern: Goed
  • Extern: Goed
Oppervlakten & Inhoud
  • Woonoppervlakte: 55 m²
  • Gebouwgebonden buitenruimte: 22 m²
  • Externe bergruimte: 15 m²
  • Tuinoppervlakte: 35 m²
Bouwjaar
  • 1934
Installaties
  • Mechanische ventilatie
  • TV kabel
Ligging
  • Aan rustige weg
  • In woonwijk
Parkeren
  • Betaald parkeren
  • Parkeervergunningen
Schuur/Berging Voorzieningen
  • Voorzien van elektra
  • Voorzien van verwarming
  • Voorzien van water
Type verwarming
  • CV Ketel
Type warmwater
  • CV Ketel
Bestemming
  • Woonruimte
Eigendomssoort
  • Eigendom belast met erfpacht
Buitenruimte
  • Achtertuin
Kadastraal
  • Gemeente: Amsterdam
  • Sectie: V
  • Nummer: 12400
Duurzaamheid
  • Dubbel glas
  • Energielabel B
Soort
  • Appartement
  • Benedenwoning
Bijzonderheden
  • Beschermd stads of dorpsgezicht
Overige kenmerken
  • OZB ('25) € 328,89 per jaar
  • Rioolrecht ('25) € 185,20 per jaar
  • Servicekosten VvE € 92,02 per maand
  • Tuinhuis van circa 15 m² 
  • Tuin gelegen op zuidoosten
  • Gelegen op erfpachtgrond van Gemeente Amsterdam. Huidig tijdvak t/m 31-01-2059, te betalen canon bedraagt € 610,50 per jaar (fiscaal aftrekbaar)
  • Reeds overgestapt naar eeuwigdurende erfpacht, canon betaling na 2059 € 1289,81 (geïndexeerd)
Plattegrond
Boterdiepstraat 31H, Amsterdam
AM105454-1916132-Boterdiepstraat-31H,-Amsterdam-233348064
AM105454-1916132-Boterdiepstraat-31H,-Amsterdam-233348072
Documenten
Boterdiepstraat 31H, Amsterdam
Locatie
Boterdiepstraat 31H, Amsterdam
Boodschappen
Schermafbeelding 2023-01-25 om 11.22.35
IMG_0053-772×1030
IMG_0051-773×1030
01
Adres
Hoendiepstraat 2,
1079 LT Amsterdam

Pasteibakkerij

In het voormalig slachthuis van de Rivierenbuurt vind je vandaag de Pasteibakkerij. Ze maken hier allerlei soorten worsten, paté, spek, ham en andere chacuterie in Franse stijl. De Pasteibakkerij is vernoemd het gerecht pastei; waar paté wordt gebakken in korstdeeg. Gedurende het jaar verkoopt de Pasteibakkerij haar vaste assortiment maar tijdens de feestdagen kun je hier ook traditionele pastei gerechten kopen.

02
Adres
Rijnstraat 91,
1079 GZ Amsterdam

Volendammer vishandel Jonk

Er zijn maar weinig mensen die zich in kunnen houden op het hoekje van de Lekstraat en de Rijnstraat. Want wat is er beter dan een bakje kibbeling voor de lunch? Volendammer vishandel Jonk is een ouderwetse vishandel voor verse vis, gebakken vis en belegde broodjes. Van een verse Hollandse Nieuwe haring, tot luxe zalm maaltijden: de verse aanvoer van vis van visleveranciers uit Volendam, Urk en IJmuiden stelt nooit teleur.

Schermafbeelding 2022-07-01 om 13.44.23
03
Adres
Maasstraat 77,
1078 HE Amsterdam

Patisserie Tout

Patisserie Tout maakt gebakjes, chocolade en macarons in een atelier aan de Maasstraat. De Patisserie is in 2007 opgezet door koppel Job en Kim van Berkel. Samen vormen zij het ideale team; Job is de smaakmaker en Kim is de gastvrouw. Dit ijzersterke duo heeft succes geboekt; Patisserie Tout is een van de bekendste smaakateliers in Amsterdam Zuid en verkoopt taart en gebak voor elke gelegenheid; bruidstaarten, verjaardagstaarten, en ook bedrijfstaarten. Geen grote taart nodig? Gelukkig kan ook een kleine gebakjes kopen, zoals éclairs of verrukkelijke macarons.

04
Adres
Maasstraat 65,
1078 HE Amsterdam

Slagerij Woorts

Slagerij Woorts opende al in 1964 de deuren van de winkel op de Maasstraat. Met het motto ‘niet teveel kruiden, niet teveel specerijen, gewoon dat wat hoort, en dat moet het product an sich het zelf doen’, is dit een typisch Amsterdamse slagerij waar de producten weinig poespas nodig hebben. De klanten komen van heinde en verre hier naartoe voor de ossenworst en filet americain. Er wordt hier met aandacht gewerkt zodat het dier krijgt wat het verdient.

A2CE4227-3FDF-487C-9464-43916E813F50_480x480
05
Adres
Van Woustraat 201H,
1074 AN Amsterdam

La Bottega by Chiara's Food

'From good people to good people'; dat is het motto van Chiara en haar familie. Chiara selecteert voor haar delicatessenwinkel de meest bijzondere en authentieke producenten in Italie. 'De meeste van onze leveranciers werken in hun familiebedrijven; terwijl ze de traditie behouden, hebben ze geleerd om de werklast te schalen en hun methoden te evolueren om bij de tijd te blijven. Al hun ingrediënten zijn lokaal afkomstig uit de regio waarin ze gevestigd zijn, wat op zijn beurt de lokale boeren ondersteunt waar ze van inkopen.' Er worden regelmatig workshops en tasting georganiseerd.

Schermafbeelding 2022-07-01 om 14.03.31
06
Adres
Maasstraat 88,
1078 HM Amsterdam

Sophie Eats

Sophie Eats is een cateringbedrijf en deli-shop gevestigd in Amsterdam. Met kwalitatieve seizoen producten wordt er een balans naar smaken en textuur gezocht die het eten uniek en lekker maken. Het kleurrijke menu is geschikt voor iedere gelegenheid; van een zakenlunch of een mode-evenement tot een sfeervolle borrel. In het winkeltje kan je terecht voor koffie, een vers sapje of iets lekkers te eten voor onderweg.

personeel
07
Adres
Maasstraat 19,
1078 HB Amsterdam

Poelier Jonker

Poelier Jonker in de Maasstaat bestaat al meer dan 45 jaar. Anno 1974 is het bedrijf opgezet door de familie Jonker en is vandaag de dag nog steeds in het bezit van de familie. Bij Poelier Jonker is de missie "het behouden van het poeliers-ambacht" en dat is te zien! Het assortiment is zeer uitgebreid; van gegrilde producten tot heerlijke salades. Daarnaast verkopen ze hier ook maaltijden en ragouts. Alle producten van poelier Jonker zijn dagvers en van de beste kwaliteit.

IMG_1772_345x345@2x
08
Adres
Maasstraat 16,
1078 HJ Amsterdam

Grammes

Na maar liefst 10 jaar training in de beste patisserieën in Parijs en New York, brengt Chef Maxime Papin zijn kennis en technieken naar Amsterdam. Papin kreeg al vroeg de kneepjes van het vak met de paplepel kreeg ingegoten van zijn moeder toen hij opgroeide in Frankrijk, en zette dit voort in de culinaire wereld van New York. Zijn creaties zijn dan ook allesbehalve doorsnee; het befaamde cappuccino taartje maar ook chocolade croissants, koekjes en zelfgemaakte granola.

Interieur
2017-06-10
09
Adres
Trompenburgstraat 22,
1079 TX Amsterdam

Kringloop Winkel Amsterdam

Kringloop Winkel Amsterdam heeft inmiddels vier locaties in de stad. Met boeken, huishoudelijke apparaten, kleding, meubels, muziek, speelgoed en gereedschap. Kortom, alles wat je in een kringloopwinkel kunt verwachten. Genoeg redenen om een middagje rond te struinen.

Eten & drinken
362634750_18375989929025619_8839326894748864225_n
10
Adres
Trompenburgstraat 111,
1079 TV Amsterdam

Café Remouillage

'Complex simplicity, is our way of less is more' staat op de website van deze hidden gem. Het woord café is enigszins misleidend. Jonathan Sparber (o.a Toscanini, Vermeer, Entrepot) zegt hier over; ‘Ik noem het café omdat ik wil dat mensen ook spontaan langs kunnen komen om een hapje te eten.' Jonathan kookt alles van het beest, niets wordt weggegooid. De wijnkaart met een mooie selectie producenten is voornamelijk biologisch.

372532125_826054012307328_5502849765298475876_n
11
Adres
Lekstraat 11,
1079 EK Amsterdam

Utage Sake Bar

Utage Sake Bar is nieuwe en tevens Amsterdamse primeur. Utage betekent 'banket' in het Japans, oftewel een plek waar vrienden samenkomen en de sake rijkelijke vloeit. De uitgebreide sake-selectie biedt voor elk budget en smaak wat wils. Op de menukaart staan lekkernijen als karaage, gyoza, Japanse pickles en ook aubergine met miso, desserts en tal van vegetarische opties.

img-2637
73cce179-b128-4a93-8c38-06e643cde2b7
12
Adres
Amstelboulevard 1,
1096 HH Amsterdam

Ode aan de Amstel

Ode aan de Amstel bevindt zich in het voormalige restaurant Riva. Gelegen aan de Amstel biedt dit restaurant een prachtig uitzicht over rivier de Amstel; een van de levensaders van de stad Amsterdam. Het interieur is stijlvol met warme kleuren en robuuste materialen. Op de all-day dining kaart vind je allerlei heerlijke gerechten, waarvan een aantal klassiekers of verrassende gerechten met een Aziatische twist. Als het lekker weer is, kun je op het terras heerlijk aan het water zitten. Dit restaurant is echt een verborgen parel in Amsterdam.

Schermafbeelding 2022-05-18 om 16.12.54
Schermafbeelding 2022-05-18 om 16.11.18
13
Adres
Spaklerweg 10A,
1096 BA Amsterdam

George Marina

George Marina is een elegant restaurant gevestigd langs het water van de Amsterdamse Amstel. Het is dé plek om even het hectische stadsleven te ontvluchten en bij te komen in een waterrijke omgeving. Als het fris is buiten kun je binnen genieten van het prachtige interieur met een marmeren bar en spectaculaire trappen. In de zomer kun je heerlijk buiten zitten op het terras. Rondom het restaurant zijn ook veel ligplaatsen voor boten waardoor het bijna lijkt alsof je je in de Côte d'Azur bevindt. George Marina is bekend vanwege de heerlijke visgerechten, zoals verse oesters, maar je kunt hier ook een lekkere steak of burger bestellen.

IMAGE@2x
home_slider_1
14
Adres
Rijnstraat 51,
1078 PZ Amsterdam

Yuan's Hot Pot

Hotpot is een van de populairste manieren om uit eten te gaan in China en maakt nu ook haar opmars in onze stad. Yuan's Hot Pot heeft ondertussen al haar derde locatie geopend in Amsterdam. Bij Yuan's Chuan Chuan Xiang serveren ze de authentieke smaak van Chengdu Hot Pot. Aan de bamboespiesjes worden verse ingrediënten zoals groenten, tahoe, vlees en vis gelegd.  Terwijl de hete pot blijft sudderen, worden spiesjes geplaatst in de pan en wordt er aan tafel gekookt. Hoe pittig de bouillon is, kun je naar eigen smaak invullen. Ook de verschillende smaken van de bouillon kan je zelf bepalen.

329812250_769176067851048_377976625447319799_n
15
Adres
Schollenbrugstraat 8,
1091 EX Amsterdam

Troef

Raymond Plat (voormalig souschef van 212), Niels Leijssenaar (restaurantmanager bij Ron Blaauw), Willem Alberts en Roderick Kunst (mede-eigenaren van Escobar) bundelen hun krachten en beginnen samen restaurant Troef.  De mannen willen een huiselijke sfeer creëren en serveren lekker eten zonder te veel poespas. Het menu wordt gedomineerd door klassieke Franse en Italiaanse gerechten. Als voorgerecht kun je onder andere kiezen voor ansjovis en sardientjes, oesters met beurre blanc of krokante kalfswang met oestercrème. Als hoofdgerecht zijn er opties zoals kreeft met antiboisesaus en schuim van bisque of ribeye.

 

Schermafbeelding 2022-07-01 om 15.59.57
16
Adres
Eerste Ringdijkstraat 2,
1097 BC Amsterdam

East57

Amsterdam Oost heeft er weer een nieuwe hotspot bij! East57 is een relaxte plek waar verschillende mensen samenkomen, van locals tot studenten tot af en toe een verdwaalde toerist, bij East 57 vind je ze allemaal. Je kunt hier vanaf 7 uur ’s ochtends tot 1 uur ’s nachts terecht. Ze bieden goed eten en lekker drinken aan. Er wordt veel samengewerkt met leveranciers uit Amsterdam die hun strepen hebben verdiend en alleen de allerbeste kwaliteit leveren. Denk aan Brandt & Levie, Vlaamsch Broodhuys, Erik’s Delicatessen en nog veel meer.

Low-Res-Rijsel-2019-Copyright-Janus-van-den-Eijnden-32
17
Adres
Marcusstraat 52,
1091 TK Amsterdam

Rijsel

Restaurant Rijsel is vernoemd naar de Franse stad Lille; wat door mensen uit Vlaanderen Rijsel wordt genoemd. Net als Lille, heeft Restaurant Rijsel een industrieel karakter. In het pand dat vroeger als huishoudschool fungeerde worden nu dagelijks lekkere gerechten geserveerd met Franse en Vlaamse invloeden. Er is een ruime keus uit vlees-, vis- en groentegerechten. Klassiekers als poussin rotie, huzarensalade, cote de boeuf met bearnaise saus, vissoep etc staan al jarenlang naar tevredenheid van een grote groep vaste gasten op de kaart. De uitgebreide wijnkaart heeft een lichte focus op Frankrijk.  Het restaurant is gelegen vlak naast de Weesperzijde dus na het diner kun je ook nog genieten van een wandeling langs de Amstel of een biertje bij café Hesp.

170048820_833091807392145_1141200956224978229_n
18
Adres
Maasstraat 72,
1078 HL Amsterdam

Hummus bistro d&a

Hummus Bistro D&A is opgezet door twee Israëlische vrouwen. Je kan er de hele dag door genieten van heerlijke gerechten. Begin je dag met shakshuka voor ontbijt, smul van traditionele hummus met verschillende toppings tijdens de lunch en proef vlees- of vegetarische gerechten bij het diner. Alles is mogelijk en kan de hele dag worden besteld. De traditionele hummus wordt geserveerd met pitabrood, salade en zuur, maar je kunt ook kiezen voor toppings zoals geroosterde groenten of langzaam gegaard vlees en verse kruiden.

Schermafbeelding 2022-05-18 om 16.05.39
Schermafbeelding 2022-05-18 om 16.06.07
19
Adres
Fizeaustraat 2,
1097 SC Amsterdam

The Lobby

The Lobby is onderdeel van Hotel V; een 4-sterren hotel in Amsterdam-Oost op loopafstand van het Amstelstation. In dit eclectische restaurant kun je de hele dag door heerlijk zitten en genieten van de een ontbijt, lunch, diner of borrel. Op de menukaart staan vele gerechten met internationale invloeden. Als ontbijt kan je de heerlijke wentelteefjes bestellen en voor het diner kun je gerechten proberen als parelhoen met pastinaak-ravioli of topinamboer met geitenkaas. Door de fijne en gastvrij sfeer voelt The Lobby bijna als een woonkamer; je zou hier wel de hele dag willen blijven zitten.

316696614_701301834540671_3708281314260770335_n
144520165_409011853732573_3822562762173474371_n
20
Adres
Europaplein 87,
1078 GZ Amsterdam

Scandinavian Embassy

Hier wordt ervaring en interesse in Scandinavisch eten en duurzaamheid geboden. Bij de Embassy traceren ze kleine, niche-leveranciers en gaan mee met de seizoenswisselingen van producten. De keuken biedt menu's voor een betaalbare prijs waarbij de gezonde en milieuvriendelijke wortels van de Scandinavische keuken behouden blijven. Bijzonder is dat ze ook koffie met eten combineren , waardoor, volgens hun zeggen, de algehele culinaire ervaring verbeterd wordt. Dit is hun tweede locatie. De ander locatie is in de Pijp gevestigd.

8-Neapolitan-Pizza-Bar
21
Adres
Maasstraat 18,
1078 HK Amsterdam

Pizza Project

Het begon met een pizzaoven in hun achtertuin. Elke vrijdag stond er een rij voor hun woning met vrienden en familie die een pizza kwamen halen. Inmiddels hebben Idske en Bas twee vestigingen en een foodtruck. Het geheim? Het deeg 48 uur laten rijzen waardoor de bodem luchtig wordt en de pizza minder zwaar op de maag ligt. In het weekend worden er ook broodjes voor de lunch geserveerd.

22
Adres
Van Woustraat 180,
1073 LZ Amsterdam

El Mauri

El Mauri in De Pijp is een van de beste low-budget ontbijtadressen van de stad. Bij deze bakker kun je al jaren terecht voor een uitgebreid Marokkaans ontbijt met een vakantiegevoel. Hoewel de bakker er van buiten eenvoudig uitziet, biedt hij van binnen een heerlijk ontbijt met vers brood, tajines en zelfgemaakte jam.

47575457_760618610980339_644622428751790080_n
23
Adres
Maasstraat 12,
1078 HJ Amsterdam

Mangi Amore

Bij Mangi Amore kun je terecht voor heerlijke authentieke pizza's zoals die in de Italiaanse pizza-stad Napoli worden gegeten. Chefkok Cico is een Napolitaan in hart en nieren en weet als geen ander hoe hij de perfecte krokante pizza's kan maken. In 2014 won Cico zelfs de prijs voor het bakken van de beste pizza van Nederland! De ingrediënten die worden gebruikt -in Mangi Amore zoals de tomaten uit Campania en de fameuze buffelmozzerella - worden rechtstreeks uit Italië geïmporteerd. Breng een bezoekje aan deze pizzeria om écht Italië te proever, of zoals de naam van het restaurant zelf als zegt "eet mijn lief!"

downloadgram.org_559642553_122125719002959277_149688819253188505_n
24
Adres
Europaplein 67,
1078 GW Amsterdam

Toet Amsterdam

Toet is het mediterraan georiënteerde restaurant van het team achter Troef, dat met deze tweede zaak een eigen draai geeft aan mediterrane en Italiaanse smaken in Zuid-Amsterdam. De eigenaren — waaronder Niels Leijssenaar, Roderick Kunst, Willem Alberts en Raymond Plat — brengen dezelfde kwaliteit en gastvrijheid als hun Troef-concept, maar dan met frisse, mediterraanse invloeden op de kaart. Je vindt hier gerechten zoals kreeft met gnocchi of pizzeta met ’nduja en rivierkreeft, die de rijke smaken van de Middellandse Zee reflecteren.

Schermafbeelding 2022-05-18 om 15.45.07
vergulden eenhoorn
verguldeneenhoor
25
Adres
Ringdijk 58,
1097 AH Amsterdam

De Vergulden Eenhoorn

Met de horeca-openstelling van De Vergulden Eenhoorn, een boerderij uit 1702 waar eerder buurthuizen en kinderopvang waren gehuisvest, mag de Ringdijk nu officieel een idyllische trekpleister worden genoemd. De binnenplaats bij de hooischuur en de tuin rondom zijn één grote picknickplaats, met zacht gras om je neer te vlijen, borders met bloemen en kruiden, grote houten tafels tussen de bomen en romantische zitjes op het erf. Als je binnen bent zou je net zo goed in een oude boerderij in the middle of nowhere kunnen zitten. Voor een ontsnapping uit de stadse sferen is de Vergulden Eenhoorn de perfecte plek, met goed eten en een ruim drank assortiment.

Huize Loma, architect Warners liet zich inspireren door de appartementen in Parijs en Wenen en paste zijn visie toe in Amsterdam.

Huize Loma, architect Warners liet zich inspireren door de appartementen in Parijs en Wenen en paste zijn visie toe in Amsterdam.

Amsterdam, een paradijs voor museumliefhebbers.

Amsterdam, een paradijs voor museumliefhebbers.

Een ranke woontoren van hout – revolutionair in constructie, radicaal in intentie.

Een ranke woontoren van hout – revolutionair in constructie, radicaal in intentie.

Onlangs bekeken
Bekijk het overzicht

Deze site maakt gebruik van cookies.

Voor welke cookies geef je akkoord?