Deze charmante en lichte bovenwoning van circa 55 m² ligt in het bruisende Amsterdam Oud-West. De woning combineert comfort en functionaliteit en biedt een sfeervolle leefruimte. Dankzij de slimme indeling is dit een fijne plek om te wonen. Bovendien is het appartement gelegen op erfpachtgrond, waarbij de erfpacht volledig is afgekocht.

Rondleiding
Bij binnenkomst via de gemeenschappelijke entree is het appartement op de vierde etage bereikbaar via de trap. De ruime hal biedt toegang tot alle vertrekken.
Aan de achterzijde bevindt zich de lichte woonkamer, een comfortabele leefruimte met voldoende ruimte voor een zit- en eethoek. De gehele woning is voorzien van een sfeervolle houten vloer. Aangrenzend ligt het zonnige balkon, waar tot in de late middag genoten kan worden van de zon en het weidse uitzicht over de binnentuin.
Er is een centrale hal met CV-kast, interne berging en garderobe. De badkamer is voorzien van een moderne wastafel, een ruime inloopdouche, toilet en aansluitingen voor de wasmachine en droger. Extra kastruimte draagt bij aan optimaal wooncomfort.
Het appartement beschikt over een ruime slaapkamer met voldoende plek voor een tweepersoonsbed en een kledingkast of bureau. Een tweede slaapkamer is gemakkelijk te realiseren.
Aan de voorzijde ligt de royale woonkeuken, compleet met moderne inbouwapparatuur, waaronder een vaatwasser, combi-oven/magnetron, 4-pits gaskookplaat met afzuiger en voldoende kastruimte.
Op de begane grond bevindt zich een handige berging, ideaal voor het stallen van fietsen of extra opslagruimte.

Buurtgids
De woning is gelegen in de gezellige Kinkerbuurt met vele winkels en restaurants, op een van de mooiere locaties van Amsterdam West. Dichtbij de grachtengordel en op loopafstand van het Vondelpark. Vlakbij is de Jan Pieter Heijestraat, De Clerqstraat en Bilderdijkstraat met eveneens vele winkels, toko’s en leuke restaurants zoals Gitane, Bar Centraal, La Parole, nNea Pizza en Karavaan.
Een omgeving met een uitgebreide diversiteit aan horeca gelegenheden en cultuur (De Hallen). Daarnaast is er bijvoorbeeld de Ten Kate markt en de Foodhallen. Voor de filmliefhebbers zijn de Filmhallen en LAB111 om de hoek. Ook is er voldoende gelegenheid voor sporten in het Vondelpark, bij Saints & Starts, PLTS en Studio 191.

Bijzonderheden
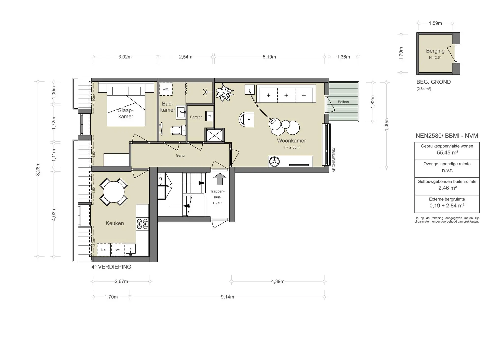
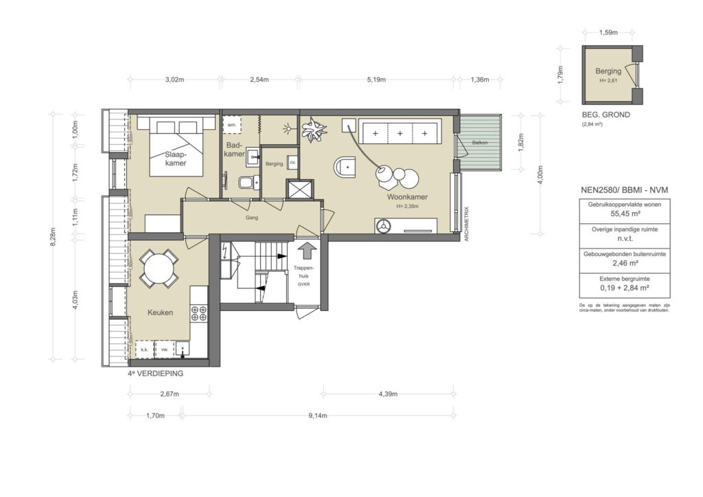
• Gebruiksoppervlakte wonen circa 55 m²
• Balkon gelegen op het zuidoosten van circa 2,5 m²
• Gelegen op erfpachtgrond van Gemeente Amsterdam. De erfpacht is eeuwigdurend afgekocht
• Energielabel B
• Servicekosten VvE € 128,00 per maand
• Externe berging op de begane grond 3m2
• Professionele VVE Newomij Beheer
• In de koopakte zal een niet-zelfbewoningsclausule worden opgenomen
• Een tweede slaapkamer is gemakkelijk te realiseren

AM106046-1981490-Borgerstraat-129D,-Amsterdam-219303191

De Borger 129D
We hebben de eigenaresse destijds begeleid bij de aankoop van haar eerste woning aan de Borgerstraat. Ze heeft hier jarenlang met veel plezier gewoond en genoten van de locatie, het karaktervolle huis met woonkeuken en het zonnige balkon. In de afgelopen periode is de woning verhuurd geweest, en nu heeft ze samen met haar gezin besloten een nieuwe stap te zetten binnen Amsterdam.
Het appartement ligt op een toplocatie in Amsterdam Oud-West, vlak bij de Jan Pieter Heijestraat en het Vondelpark. De buurt biedt een levendige mix van gezellige cafés, restaurants en winkels, terwijl groene parken en stadsvoorzieningen altijd dichtbij zijn.


Jelle Mundt | Makelaar Broersma Wonen
AM106046-1981490-Borgerstraat-129D,-Amsterdam-219303099
Designvisie

De Borgerstraat ligt in de Kinkerbuurt, een bruisend deel van Amsterdam Oud-West met een rijke geschiedenis. De straat werd eind 19e eeuw aangelegd tijdens de stedelijke uitbreiding en is vernoemd naar Pieter Lodewijk de Borger, een invloedrijke wethouder uit die tijd.
De wijk heeft in de afgelopen decennia een transformatie ondergaan. Van een typische volksbuurt groeide de Kinkerbuurt uit tot een gewilde woonomgeving, met een mix van historische en vernieuwde bebouwing. Dankzij stadsvernieuwing in de jaren ’70 en ’80 is de woonkwaliteit sterk verbeterd, en tegenwoordig combineert de buurt een authentieke sfeer met moderne voorzieningen.
Met de levendige Kinkerstraat, de populaire Foodhallen en de Ten Katemarkt op loopafstand, biedt de omgeving volop mogelijkheden om te genieten van horeca en winkels. Ook sportliefhebbers komen aan hun trekken: het Vondelpark en diverse sportfaciliteiten in het Amsterdamse Bos zijn eenvoudig bereikbaar. De Botanische Tuin in de buurt biedt een rustige groene oase midden in de stad.

AM106046-1981490-Borgerstraat-129D,-Amsterdam-219303097
AM106046-1981490-Borgerstraat-129D,-Amsterdam-219303141
AM106046-1981490-Borgerstraat-129D,-Amsterdam-219303255
AM106046-1981490-Borgerstraat-129D,-Amsterdam-219303195
Wonen en koken

De sfeervolle woonkamer aan de achterzijde van de woning baadt in natuurlijk licht dankzij de grote raampartijen op het zonnige zuiden. Deze comfortabele leefruimte biedt volop plaats voor een zit- en eethoek. De houten vloer, die door de hele woning ligt, versterkt de warme en ruimtelijke sfeer.
Aan de voorzijde bevindt zich de ruime woonkeuken, uitgerust met moderne inbouwapparatuur, waaronder een vaatwasser, combi-oven/magnetron, 4-pits gaskookplaat met afzuiger en voldoende kastruimte. Een ideale plek om uitgebreid te koken en gezellig te tafelen.

AM106046-1981490-Borgerstraat-129D,-Amsterdam-219303179
AM106046-1981490-Borgerstraat-129D,-Amsterdam-219303203
AM106046-1981490-Borgerstraat-129D,-Amsterdam-219303235
AM106046-1981490-Borgerstraat-129D,-Amsterdam-219303229
AM106046-1981490-Borgerstraat-129D,-Amsterdam-219303241
AM106046-1981490-Borgerstraat-129D,-Amsterdam-219303245
Slapen en baden

Het appartement is efficiënt ingedeeld en beschikt over een ruime slaapkamer met voldoende plek voor een tweepersoonsbed en een kledingkast of bureau. Een tweede slaapkamer is gemakkelijk te realiseren. Er is een centrale hal met CV-kast, interne berging en garderobe. De badkamer is voorzien van een moderne wastafel, een ruime inloopdouche, toilet en aansluitingen voor de wasmachine en droger. Extra kastruimte draagt bij aan optimaal wooncomfort.

AM106046-1981490-Borgerstraat-129D,-Amsterdam-219303223
AM106046-1981490-Borgerstraat-129D,-Amsterdam-219303211
AM106046-1981490-Borgerstraat-129D,-Amsterdam-219303131
AM106046-1981490-Borgerstraat-129D,-Amsterdam-219303147
AM106046-1981490-Borgerstraat-129D,-Amsterdam-219303159
AM106046-1981490-Borgerstraat-129D,-Amsterdam-219303175
Het balkon

Het zonnige balkon op het zuidoosten biedt een weids uitzicht over de binnentuin en is de perfecte plek om in de middag van de zon te genieten.
Op de begane grond bevindt zich een handige berging, ideaal voor het stallen van fietsen of extra opslagruimte.

AM106046-1981490-Borgerstraat-129D,-Amsterdam-219303119
AM106046-1981490-Borgerstraat-129D,-Amsterdam-219303105
AM106046-1981490-Borgerstraat-129D,-Amsterdam-219303115
Buurtgids

De woning is gelegen in de gezellige Kinkerbuurt met vele winkels en restaurants, op een van de mooiere locaties van Amsterdam West. Dichtbij de grachtengordel en op loopafstand van het Vondelpark. Vlakbij is de Jan Pieter Heijestraat, De Clerqstraat en Bilderdijkstraat met eveneens vele winkels, toko’s en leuke restaurants zoals Gitane, Bar Centraal, La Parole, nNea Pizza en Karavaan.
Een omgeving met een uitgebreide diversiteit aan horeca gelegenheden en cultuur (De Hallen). Daarnaast is er bijvoorbeeld de Ten Kate markt en de Foodhallen. Voor de filmliefhebbers zijn de Filmhallen en LAB111 om de hoek. Ook is er voldoende gelegenheid voor sporten in het Vondelpark, bij Saints & Starts, PLTS en Studio 191.

Bereikbaarheid
De woning is gelegen in de Kinkerbuurt nabij de Bilderdijkstraat en de Nassaukade, een van de belangrijkrijke toegangswegen. Het appartement is uitstekend te bereiken met de auto door middel van de S100, S105 en S106 vanaf de ring A10. Door de gunstige geografische ligging in de stad is o.a. luchthaven Schiphol binnen 19 autominuten te bereiken.
Diverse openbaar vervoer voorzieningen zijn in de nabije omgeving te vinden. Op de Rozengracht, De Clercqstraat, Ten Katestraat en Bilderdijkstraat zijn meerdere tram- en bushalte te vinden. Op 10 minuten fietsafstand is Centraal Station te bereiken.

Parkeren
Parkeren is mogelijk via een vergunningenstelsel op de openbare weg (vergunningsgebied West-11.1). Met een parkeervergunning voor West-11.1 mag u parkeren in West-11. Een parkeervergunning voor bewoners kost € 192,81 per 6 maanden. Momenteel is er voor dit vergunningsgebied een wachttijd van 8 maanden. Een tweede parkeervergunning is in dit gebied niet mogelijk. (Bron: Gemeente Amsterdam, maart 2025).

AM106046-1981490-Borgerstraat-129D,-Amsterdam-219303111
AM106046-1981490-Borgerstraat-129D,-Amsterdam-219303107
AM106046-1981490-Borgerstraat-129D,-Amsterdam-219303123
Kenmerken
Borgerstraat 129D, Amsterdam
Vraagprijs
  • € 450.000 k.k.
Beschikbaarheid
  • In overleg
Vertrekken
  • 2 kamers
  • 1 slaapkamer
  • 1 badkamer
Onderhoud
  • Intern: Goed
  • Extern: Goed
Oppervlakten & Inhoud
  • Woonoppervlakte: 55 m²
  • Gebouwgebonden buitenruimte: 2 m²
  • Externe bergruimte: 3 m²
Bouwjaar
  • 1904
Installaties
  • Mechanische ventilatie
  • TV kabel
Ligging
  • Aan rustige weg
  • In woonwijk
Parkeren
  • Betaald parkeren
  • Parkeervergunningen
Schuur/Berging Voorzieningen
  • Voorzien van elektra
Type verwarming
  • CV Ketel
Type warmwater
  • CV Ketel
Bestemming
  • Woonruimte
Eigendomssoort
  • Eigendom belast met erfpacht
Buitenruimte
  • Geen tuin
  • Balkon
Kadastraal
  • Gemeente: Amsterdam
  • Sectie: T
  • Nummer: 6427
Duurzaamheid
  • Dubbel glas
  • Energielabel B
Soort
  • Appartement
  • Bovenwoning
  • Portiekflat
Welke woonlaag
  • 5e
Overige kenmerken
  • OZB ('25) € 273,50 per jaar
  • Rioolrecht ('25) € 185,20 per jaar
  • Servicekosten VvE € 128,00 per maand
  • Gelegen op erfpachtgrond van Gemeente Amsterdam. De erfpacht is eeuwigdurend afgekocht 
  • Een tweede slaapkamer is gemakkelijk te realiseren
Plattegrond
Borgerstraat 129D, Amsterdam
AM106046-1981490-Borgerstraat-129D,-Amsterdam-219644395
Documenten
Borgerstraat 129D, Amsterdam
Locatie
Borgerstraat 129D, Amsterdam
Eten & drinken
350797001_546119614400873_859829144022127459_n
01
Adres
Jan Pieter Heijestraat 76,
1053 GS Amsterdam

Wakuli

Wakuli ontleent aan het Swahili-woord 'wakulima', wat boer betekent. Hier vind je kwaliteitskoffie die op duurzame wijze is verkregen tegen betaalbare prijzen.  Ze halen hun bonen bij kleinschalige boeren die groene productie produceren en roosteren ze op de beste manier mogelijk voor maximale smaak. Je kunt hier alle gebruikelijke koffiesoorten krijgen, evenals heerlijke ijskoffie en nitro cold brew. Last but not least, hebben ze een aantal zoete en hartige lekkernijen beschikbaar, van empanadas tot broodjes en croissants.

downloadgram.org_587941642_17861923047540463_7528525127815259624_n
downloadgram.org_580577890_17860377204540463_347230483383533533_n
02
Adres
Jan Pieter Heijestraat 94A,
1053 GS Amsterdam

Café Vitalente

Café Vita Lente werd geopend door Simon Witmaar, voormalig eigenaar van het sterrenrestaurant Coulisse, dat hij samen met Tim van der Molen runde. Met Vita Lente koos hij bewust voor iets totaal anders: geen fine dining, maar een café waar spontaniteit en vrijheid centraal staan. In de keuken staat Bas Holthuizen, die meeging vanuit Coulisse en hier kookt in een losser format met warme en koude gerechten die je de hele dag door kunt bestellen. Het concept draait om het Italiaanse idee van 'vita lenta', langzaam leven, waarbij je op elk moment vanaf 11.30 kunt binnenlopen en zo lang blijft als je wilt.

Schermafbeelding 2022-06-20 om 13.29.38
53700300_311590863045393_1981039547722498048_n
03
Adres
Kinkerstraat 230,
1053 EN Amsterdam

Sababa

De eigenaar van Sababa wilde goede, perfecte falafel. Ze zijn verschillende combinaties gaan uitproberen, producten gaan proeven en zo ontstond hun perfecte falafel broodje. Geïnspireerd op de Israëlische keuken, heerlijk voor een snelle hap of om uitgebreid te eten met een biertje erbij.

412174660_3213646675598150_4852236387686728737_n
04
Adres
Nicolaas Beetsstraat 51,
1053 RJ Amsterdam

Petit Péché

Le Petit Péché staat symbool voor de kleine zonde. Door openlijk achter de bar te koken, willen ze laten zien dat het bereiden van vlees en vis op een respectvolle manier mogelijk is. De keuze van ingrediënten is lokaal. De chefs omarmen de vaak de minder gangbare producten. De (nu al) signature dish is gefrituurde kikkerbillen met bottarga en merg mayonaise. Uiteraard streven ze ernaar de warme en toegankelijke smaken te behouden die mensen kennen van Café Beurre.

Schermafbeelding 2023-08-30 om 14.30.21
05
Adres
Nicolaas Beetsstraat 47h,
1053 RJ Amsterdam

Dona

Met Restaurante Dona brengen eigenaren Diogo en Sjors een eerbetoon aan hun grootmoeders en de Portugese keuken. Chef Diogo dankt zijn liefde en uitzonderlijke kookvaardigheden aan zijn grootmoeders, Tana & Tonica. Sinds zijn kindertijd leerden zij hem de ambacht van de authentieke Portugese keuken. Sindsdien deelt hij zijn passie en expertise in vele Europese restaurants. Hij laat gasten van over de hele wereld kennismaken met verrukkelijke Portugese gerechten. Voor Sjors belichaamt Dona zijn passie voor gastvrijheid en de onvoorwaardelijke steun van zijn grootmoeders hierin. Bep en Nel voorspelden altijd dat Sjors ooit zijn eigen restaurant zou openen. Ze steunden hem gedurende zijn carrière in het beheer van hoogwaardige restaurants.

 

downloadgram.org_612064080_18088618793472192_8522096381989837072_n
downloadgram.org_503799539_18064983656472192_5322203112114680114_n
06
Adres
Jacob Van Lennepkade 334D,
1053 NJ Amsterdam

Bon Burger

Bon Burger is de nieuwe zaak van Freek Kattenberg, bekend van Bottleshop in Oost, die met dit concept zijn liefde voor burgers en natuurwijn samenbrengt. Na jaren van succesvolle burgerpop-ups in Bottleshop besloot hij dat het tijd was voor een vaste plek in West, op de geliefde vlonder aan de Jacob van Lennepkade. Kattenberg gelooft dat juist iets simpels als een hamburger goed uitvoeren een vak is, en dat zie je terug in zijn focus op grilltechniek en kwaliteit. Het vlees komt van Nederlandse dubbeldoelkoeien, die eerst als melkkoe hebben geleefd en daardoor duurzamer en smaakvoller zijn. Bon Burger voelt als een ontspannen buurtplek waar kenners en nieuwsgierige voorbijgangers samenkomen voor burgers, wijn en lange avonden aan het water.

280279707_690276598712258_782257989926286225_n
07
Adres
Lootsstraat 5,
1053 NT Amsterdam

Eetcafé Meo’s Colosseum

Bij het Surinaams-en Caribische Eetcafé Meo’s Colosseum kan je elke dag vanaf 04.00 uur 's ochtends tot 10.30 uur 's avonds terecht en op zaterdag tot 05.00 uur (en soms nog langer). Ze staan altijd voor je klaar wanneer andere eetgelegenheden gesloten zijn met lekkernijen als nasi, bami, pom, of moksi alesi. Op vrijdag en zaterdag zijn er ook barbecue gerechten en huisgemaakte friet. Krijg je er nog geen genoeg van? Binnenkort zijn ze 24 uur geopend.

342142012_252944383996150_8015170625605962633_n
08
Adres
Kinkerstraat 186,
1053 EM Amsterdam

Five Ways Coffee Roasters

Five Ways Coffee Roasters begon als een bescheiden koffiebranderij in Amsterdam bij Spot On Coffeeroaster. Enkele jaren geleden vestigde de eigenaar zich in Nederland en heeft sindsdien zijn tweede succesvolle specialty koffiebar in Amsterdam geopend.

271553756_4698050586938795_6728215580262896284_n
61044194_2189624581114754_5141080698035109888_n
09
Adres
Jan Pieter Heijestraat 121,
1054 ME Amsterdam

Flo's Appetizing

Bij Flo's Appetizing ben je aan het juiste adres voor handgemaakte Amerikaanse bagels. Eigenaresse Heather Eddy maakt elke dag met passie de meest verse bagels met gevarieerde toppings voor je klaar. Favoriet is de pastrami of gegrilde kaas en ei.

10
Adres
Ten Katestraat 36,
1053 CG Amsterdam

Toko Rustem

Rustem is een verborgen parel in de Ten Katestraat. Het is een toko die je absoluut niet mag missen. De Toko zit achter een marktkraam verscholen en wordt door een familie gerund. De nette inrichting en verse vitrineproducten weerspiegelen de zorg die ze besteden. Een aanrader is een broodje pom of een broodje ketjap kip. De broodjes zijn authentiek gekruid met pittige peper en verfrissend zuur tegen een betaalbare prijs.

Gitane-NinaSlagmolen-10juli2023-188-1365×2048
329963219_8769040973168667_1375211572719675553_n
11
Adres
Jan Pieter Heijestraat 146,
1054 MK Amsterdam

Gitane

Angelo Kremmydas, zowel chef als eigenaar, kookt enkel met de meest verse en seizoensgebonden ingrediënten. Het menu weerspiegelt zijn visie en biedt een bescheiden en verfijnde selectie eigentijdse à la carte-gerechten. Hier geen ingewikkelde setmenu's; in plaats daarvan heb je de vrijheid om precies te bestellen waar je op dat moment naar verlangt. Angelo's mediterrane achtergrond schittert in elk gerecht. Naast het smaakvolle menu is er een uitgebreide wijnkaart.

1515753586-meneer-de-wit_bar4589
1547131084-meneer-de-witjcb8132
12
Adres
Witte de Withstraat 10,
1057 XV Amsterdam

Meneer de Wit heeft Honger

In 2015 opende Meneer de Wit heeft Honger; een restaurant met een huiselijke sfeer en heerlijk eten. Chef Simo Bouabgha leerde koken van zijn oma in het zuiden van Marokko en houdt van het eten dat de moeders rondom de Middellandse zee met alle liefde, geduld koken. Het menu bestaat uit seizoensgebonden gerechten met deze verfijnde en warme smaken, vaak gebaseerd op groente maar er is ook duurzaam vlees, gevogelte en vis.

Schermafbeelding 2022-06-20 om 19.13.02
Schermafbeelding 2022-06-20 om 19.13.43
13
Adres
Ten Katestraat 16,
1053 CE Amsterdam

Bar Centraal

Op de gezellige Ten Katemarkt in Oud-West vind je Bar Centraal. Een voormalige BBQ restaurant bij de Ten Katemarkt bleek een perfecte locatie te zijn voor een tweede wijnbar voor de mensen van Glouglou. Bar Centraal bestaat uit twee gebouwdelen; Er is een deel waarin gegeten kan worden aan de bar van de open keuken. En er is een groter deel waarin de wijnbar staat. Het gangetje tussen de twee ruimtes is voorzien van een grote wijnkoelkast. De wijnkaart bestaat uit natuurwijnen (met een vermelding in de Star winelist!) en de meeste goede gerechtjes zijn to share.

 

26-lvffood-com-5129-57-20230127
14
Adres
Postjesweg 1,
1057 DT Amsterdam

Daalder (*)

Zijn Indonesische roots en Aziatische invloeden kruiden de inventiviteit van chef Huwaë. Hij schuwt allerminst de contrasterende smaken. Het talent van deze chef ligt in de harmonie die hij bereikt met dergelijke associaties. Soms is hij iets klassieker, zoals met een perfect gegaarde langoustine waarbij een botersaus komt die is verrijkt met champagne, appelsien en Grand Marnier. Subtiel, intens, explosief. Helemaal Dennis Huwaë. Daalder heeft 1 Michelin ster.

Schermafbeelding 2022-06-20 om 19.09.35
15
Adres
Bellamyplein 51,
1053 AT Amsterdam

Mer du Nord

Gelegen in de populaire Foodhallen in Amsterdam-West zit Mer du Nord. Heerlijke Nederlandse vis snacks staan hier op het menu. De twee chefs van Restaurant 212 zijn de eigenaren van deze plek. De verse oesters zijn een echte aanrader maar ook de knapperige zachte krab op een broodje is om te smullen.

191004_Foodhallen_Amsterdam5jaar-©laisamaria-54
16
Adres
Bellamyplein 51,
1053 AT Amsterdam

Foodhallen

De Foodhallen zijn geïnspireerd door de ‘indoor foodmarkets’ van andere grote steden als Madrid, Copenhagen en Londen. In de Foodhallen vind je stands van het beste dat Amsterdam op culinair gebied te bieden heeft. Met meer dan twintig verschillende keukens gevarieerd van door Michelin bekroonde concepten tot streetfood. Kibbeling en inktvis van Mer Du Nord, taco's van Taqueria Lima of Vietnamees bij Viet View.

Schermafbeelding 2023-01-25 om 14.25.43
17
Adres
Bellamyplein 51,
1053 AT Amsterdam

Kanarie club

Iedereen kent de foodhallen in West. Wat echter niet iedereen kent is de Kanarie Club die zich aan de achterkant van het gebouw bevindt. Dit deel van de oude fabriekshallen is gevuld met het briljante concept van de club: een grote ruimte met genoeg plek om zowel zelf met of zonder laptop neer te strijken, als het hosten van grote events en bijeenkomsten. In het midden van de ruimte staat een keukenachtige-bar, waar je smaakvolle cocktails kunt drinken. Daarnaast is de kanarie club open voor ontbijt, lunch én diner. Kortom, meer dan genoeg om er de hele dag te vertoeven.

362281468_17877326531919863_8876445204828833093_n
18
Adres
Kinkerstraat 142 C-H,
1053 EG Amsterdam

Hawawshi

Boodschappen
holyactiefoto-s-183.960×0
holyactiefoto-s-164.960×0
19
Adres
Jan Pieter Heijestraat 88,
1053 GS Amsterdam

Holy Ravioli

Holy Ravioli is een pastawinkel in Amsterdam-West. Er zijn maar liefst 15 verschillende soorten ravioli en bij iedere ravioli hoort een passende pesto, boter, chutney, saus of kaas. Alle producten zijn seizoengebonden en vers en dat zorgt voor de allerlekkerste pasta. Daarnaast zijn er ook soepen, lasagnes, salades en toetjes. Je kan lekker buiten zitten in de zomer op de picknickbanken of pasta mee naar huis nemen en zelf klaarmaken als je een keer geen tijd hebt om te komen. De perfecte plek voor pastafanaten.

schermafbeelding_2009_12_08_om_07_11_46.png(mediaclass-landscape-large.8f15b2a15b52b59f0860dab754f88b3a1785126a)
20
Adres
Ten Katestraat 34,
1053 CG Amsterdam

Ten Katemarkt

Bij de Ten Katemarkt in Amsterdam oud-west kan je terecht voor heerlijke verse groente en fruit, gebrande noten, bloemen, vis, brood en nog veel meer. Mensen uit de buurt doen hier doorgaans hun boodschappen, maar het leent zich ook een bezoekje te wagen voor de gezelligheid. De kooplieden roepen met aanbiedingen en er bestaat dan ook een grote kans dat je met een rijkgevulde boodschappentas de markt afloopt. De ten Kate markt heeft een markthistorie sinds 1912 en is ondertussen een multiculturele markt met Amsterdamse charme. Waar men vroeger met handkar de markt opkwam om gedurende de dag producten te verkopen, staan er nu kraampjes.

65320963_2386585801408785_6382526370580267008_n
21
Adres
Bellamyplein 51,
1053 AT Amsterdam

The Maker Market

De Hallen in Oud-West organiseert een keer per maand een weekendmarkt. Hier vind je allerlei duurzame merken van lokale ondernemers en makers uit Amsterdam en omstreken. De markt heeft een divers aanbod en laat je op een andere manier naar duurzaamheid en lokaal geproduceerd kijken. Ook kan je in de Hallen terecht voor een bioscoop, een lekker hapje of drankje, dus is een bezoek aan deze markt een veelzijdig uitstapje.

Schermafbeelding 2022-06-20 om 12.29.03
2_levain-et-le-vin
22
Adres
Jan Pieter Heijestraat 168,
1054 ML Amsterdam

Levain et le vin

In deze hippe bakkerij in Oud-West proef je het meest heerlijke zuurdesem brood, en zijn ze gespecialiseerd in natuurwijn. In de bakkerij wordt elke dag op natuurlijke wijze zuurdesem gemaakt en kan je er heerlijke koffies drinken gemaakt door barista's die weten wat ze doen. Ze hebben overheerlijke focaccias en een echte aanrader is de kaneelbrioche. Als je een avond lekker gaat borrelen is Levain et Levin de plek waar je naartoe moet. Het personeel dat er werkt weet wat ze verkopen, dus tips vragen is een aanrader!

Interieur
104196247_2609875105928789_2143325823481766499_n
23
Adres
Baarsjesweg 208,
1057 HT Amsterdam

The BirdTsang

The BirdTsang is een jonge keramiek studio gevestigd aan de Baarsjesweg die unieke en handgemaakte ontwerpen maakt. The Bird Tsang wordt gerund door kunstenaars Robin de Vogel & Johannes Tsang, die zich focussen op de samenwerking met innovatieve chef-koks om unieke en op maat gemaakte ontwerpen te creëren die een eetervaring complimenteren en verhogen met onderscheidend en duurzaam keramisch servies.

275768745_4994158697304229_23510235732350908_n
275757813_4994159110637521_5180581026729406498_n
24
Adres
Hannie Dankbaarpassage 24,
1053 RT Amsterdam

Grand & Johnson

Uit de samenwerking van ontwerpers Bertel Grote (Grand) en Jeroom Jansen (Johnson) is Grand & Johnson ontstaan. In de Hallen bevindt zich hun ontwerpstudio wiens grote kracht ligt in het ontwerpen en realiseren van totaalconcepten. Met een goed oog voor de balans tussen lijnen, vormen, licht, kleur en materiaal, richt het duo zich op ingetogen en moderne binnenhuisarchitectuur.

Kunst & cultuur
IMG_4216
IMG_3589-1040×500-1
25
Adres
Hannie Dankbaarpassage 12,
1053 RT Amsterdam

De Filmhallen

De Filmhallen zit in het complex ‘de hallen’ wat voorheen een tramremise was. De bioscoop is vrij jong het bestaat namelijk sinds 2004. Bijzonder aan de filmhallen is dat er één zaal is waarbij het art-deco interieur van een zaal van het oude Cinema Parisien is ingebouwd. De hallen is een ruim complex geheel overdekt met naast de filmhallen ook de foodhallen, waar allemaal etenstentjes zijn. Dit heeft een beetje de sfeer van een overdekte Spaanse foodmarket.

Uitgelicht; The Gentleman

Uitgelicht; The Gentleman

Interview. Ontmoet de ondernemer, in deze serie Tanja Deurloo, geurexpert en parfumdesigner over geur in huis. “Je kunt geur als vierde dimensie zien in een ruimte.”

Interview. Ontmoet de ondernemer, in deze serie Tanja Deurloo, geurexpert en parfumdesigner over geur in huis. “Je kunt geur als vierde dimensie zien in een ruimte.”

Een appartement met het comfort van een hotelsuite. Een ontwerp van Anne Claus

Een appartement met het comfort van een hotelsuite. Een ontwerp van Anne Claus

Onlangs bekeken
Bekijk het overzicht

Deze site maakt gebruik van cookies.

Voor welke cookies geef je akkoord?