In Amsterdam-Zuid, op een van de mooiste lanen van de stad, ligt een huis van totale oppervlakte van circa 352 m² dat zich op ingetogen wijze onderscheidt. Apollolaan 58 is een stedelijk familiehuis met internationale allure. Ruimtelijk, elegant en met een hoogwaardige afwerking die comfort koppelt aan esthetiek. De combinatie van een diepe zonnige tuin, een ligging aan open vaarwater én een volledig souterrain maakt dit huis uniek in zijn soort. De erfpacht is eeuwigdurend afgekocht.
Rondleiding
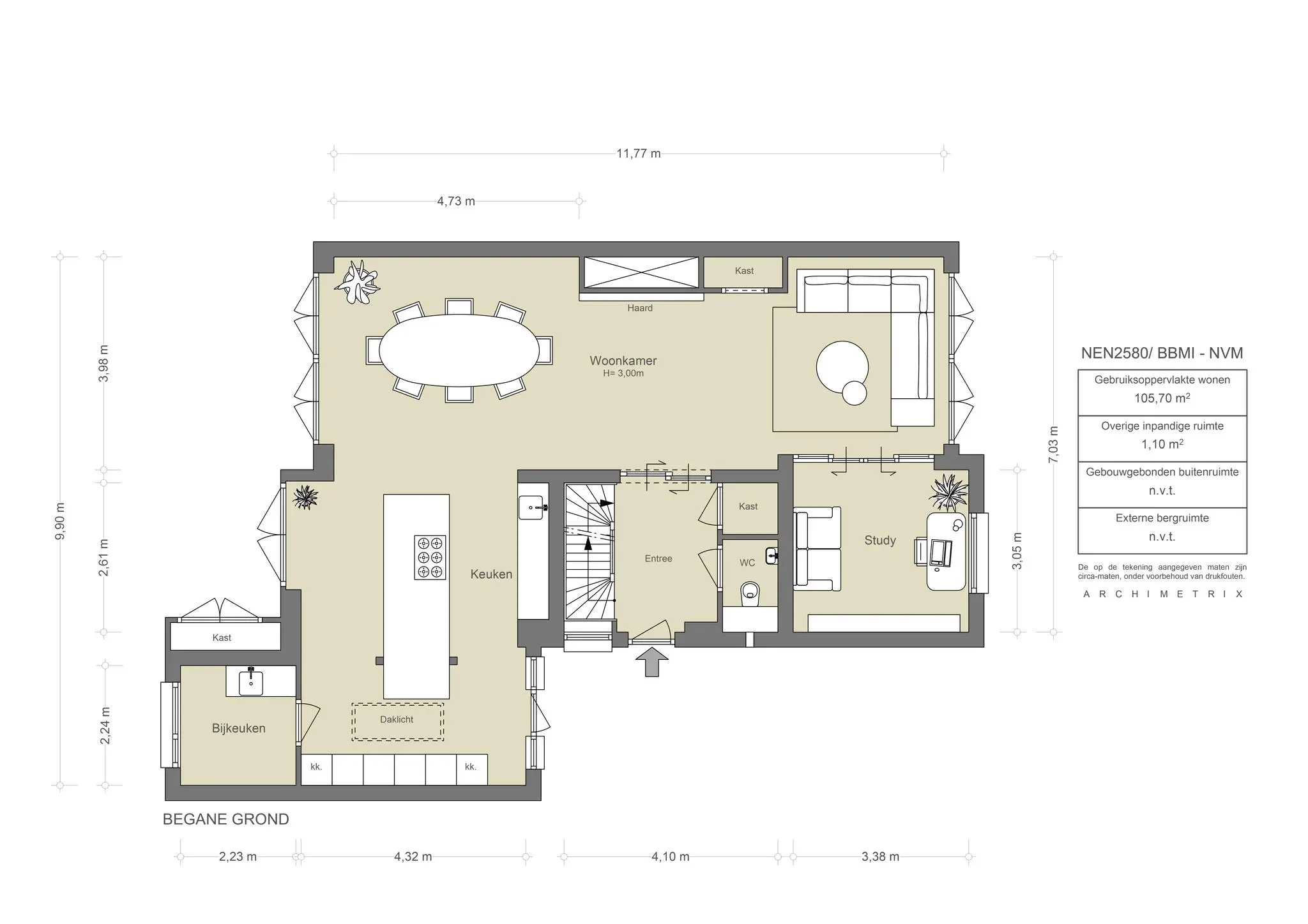
Via de brede oprit met plaats voor twee auto’s en een geïntegreerd laadpunt, betreed je het huis. De entree is licht en overzichtelijk, met zichtlijnen die direct de diepte van het huis tonen. Links de trap, een luchtige blikvanger in hout en staal. Rechts de extra kamer aan de voorzijde — geschikt als bibliotheek, werkkamer of speelhoek. De woonruimte ontvouwt zich naar achteren, waar de glazen puien de tuin in trekken. Links het zitgedeelte, met open haard. Rechts de eetkamer, verbonden met de lichte en tijdloze keuken. Het kookeiland vormt een ankerpunt, met zicht op het groen en directe toegang tot het terras. Achter de keuken uitgerust met drie ovens (o.a. stoom en combi), grill, vaatwasser, koel/vriescombinatie etc. ligt de extra toegang naar buiten: praktisch en discreet. Op de eerste verdieping vind je aan de achterzijde de hoofdslaapkamer, met balkon op het zuiden en een eigen kleedkamer. De badkamer is ruim, licht en rustig. Aan de voorzijde ligt nog een slaapkamer, met eigen sfeer. Boven, onder de kap, twee kinderkamers met houten balken en ingebouwde kastruimte, en een compacte derde badkamer. Het souterrain verrast: volwaardig daglicht, veel ruimte. Een eigen logeerkamer met keuken, een badkamer en dan — de wellness. Hamam. Sauna. Gym. Bioscoop. En een wijnkelder als sluitstuk. Het is een verdieping die het huis compleet maakt. En dan is er de tuin. Zonnig. Groen. Met een terras, een vijver, een buitenkeuken. Aan het water, met je eigen aanlegsteiger en boot. Alles klopt. Alles is er. Welkom aan de Apollolaan.
Buurtgids
De Apollobuurt maakt deel uit van de Beethovenbuurt. Een stedenbouwkundig gezien belangrijk deel van Amsterdam, waar de stedenbouwkundige stempel naar idee en ontwerp door architect Berlage. Berlage bedacht een patroon van straten, lanen en kanalen waar huizenblokken, veel openbaar groen en villa’s tot herenhuizen zich afwisselde en een geheel vormen: Dit schiep de basis voor het kenmerkende van deze jaren 30 wijk, die bijna geheel wordt omringd door water, zijn de ruim opgezette woningen die uiteindelijk werden ontworpen in de Amsterdamse School-stijl. Ook de gevelstenen en brugsculpturen van Hildo Krop, aan wie de eretitel Stadsbeeldhouwer van Amsterdam is toegekend, geven de buurt cachet. De buurt is echt als woon en gezinswijk bedacht met ook voorzieningen voor scholen en sport. Het Beatrixpark maakte de wijkt compleet. In de Beethovenstraat geven de koffiebars en restaurants als Brasserie Margaux en Ferilli’s de straat en de wijk een jong en dynamisch karakter. Op het Olympiaplein bevindt zich de bakker Le Fournil en Fromagerie L’Amuse. Op de Marathonweg zit slagerij Zikking. De brede lanen en het groen van het Beatrixpark, met z’n moderne beelden en oude bomen, creëren een gevoel van ruimte en zijn ideaal om te sporten en ontspannen. De buurt staat bekend om z’n goede basis- en middelbare scholen en ook om de gunstige ligging ten opzichte van de Ring en station Amsterdam Zuid en de Rai. De Pijp en de binnenstad zijn vanuit hier zo te bereiken.
Bijzonderheden
• Volledige renovatie 2016
• Gebruiksoppervlakte wonen van circa 248 m²
• Overige inpandige ruimte van circa 104 m²
• Ruim perceel van circa 325 m² aan het water
• Voortuin van circa 177 m²
• Erfpacht eeuwigdurend afgekocht
• Mogelijkheid voor het aanmeren van een boot achter het huis
• Volledig geïsoleerd met o.a. dubbel HR ++ glas
• Airconditioning
• Openhaard
• Stortkokers voor de was
• Uitgebreide voorzieningen (Wellness, Gym, Home Cinema, Wijnkamer)
Apollo House
In Amsterdam-Zuid, op een van de mooiste lanen van de stad, ligt een huis dat zich op ingetogen wijze onderscheidt. Apollolaan 58 is een stedelijk familiehuis met internationale allure. Ruimtelijk, elegant en met een hoogwaardige afwerking die comfort koppelt aan esthetiek. De combinatie van een diepe zonnige tuin, een ligging aan open vaarwater én een volledig souterrain maakt dit huis uniek in zijn soort. Wij nemen je graag mee door deze bijzondere plek.
Judith de Jong | Makelaar Broersma Wonen
Apollolaan 58 is een huis met een herkenbare signatuur: heldere lijnen, ruimtelijkheid en een serene, eigentijdse sfeer. Intern is het geheel gerenoveerd, met aandacht voor architectonische samenhang én dagelijks comfort. De indeling is geoptimaliseerd, zichtlijnen zijn versterkt, en het materiaalgebruik is zorgvuldig gekozen: warm hout, glas, staal en wit gestucte wanden vormen samen een uitgebalanceerd palet. Centraal in het ontwerp staat de trap, die als sculpturaal element de verdiepingen met elkaar verbindt. Zwevende houten treden rusten op een slanke stalen structuur; een ontwerp dat niet alleen functioneel is, maar ook visueel rust en ritme aanbrengt in het hart van de woning. Boven de trap een hoge vide, waar daglicht via grote raampartijen tot diep in het huis doordringt. Door de gehele woning valt op hoeveel licht en lucht de ruimtes ademen. Open verbindingen tussen woon- en eetgedeelte, grote glaspuien naar de tuin, en doorkijkjes naar buiten zorgen voor continuïteit in beleving. Tegelijk is er overal oog voor geborgenheid — door het subtiele spel van doorkijk en afscheiding voelt elke ruimte eigen, zonder zich af te sluiten. Deze woning is ontworpen om in te leven én tot rust te komen. Het resultaat is een huis dat klopt: in verhoudingen, lichtval, routing en sfeer.
De begane grond is ruim, licht en functioneert als het levendige middelpunt van het huis. Aan de tuinzijde openen hoge glazen puien naar het terras, waardoor binnen en buiten moeiteloos in elkaar overvloeien. Zonlicht trekt diep het huis in, versterkt door de warme tint van de houten vloer — waaronder door het hele huis comfortabele vloerverwarming is aangebracht. Centraal ligt de open keuken: modern, tijdloos en uiterst functioneel. Het grote kookeiland vormt het hart van de ruimte, met een bar voor snelle ontbijtmomenten of een glas wijn tijdens het koken. Alle apparatuur is hoogwaardig en volledig geïntegreerd: een drietal ovens (o.a. combi en stoom), vaatwasser, bordenwarmer, Teppanayaki, grill, koelkast, vriezer en een gasfornuis met afzuiging die onzichtbaar in het plafond is weggewerkt. De witte fronten en strakke belijning houden het beeld helder en licht. Aan de straatzijde ligt een extra ruimte met ramen aan twee zijden — perfect als bibliotheek, speelkamer of werkkamer. De open verbinding met de leefruimte zorgt voor betrokkenheid, zonder in te boeten aan rust. De sfeer is open en uitnodigend, maar met voldoende zones voor afzondering. Het is een leefruimte die meebeweegt met het moment van de dag — van stilte in de ochtend tot reuring aan het einde van de middag.
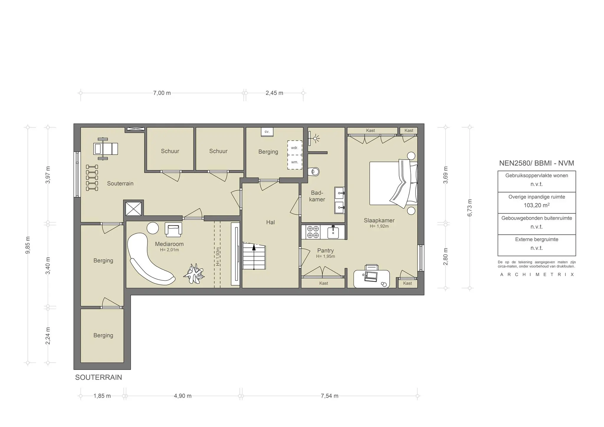
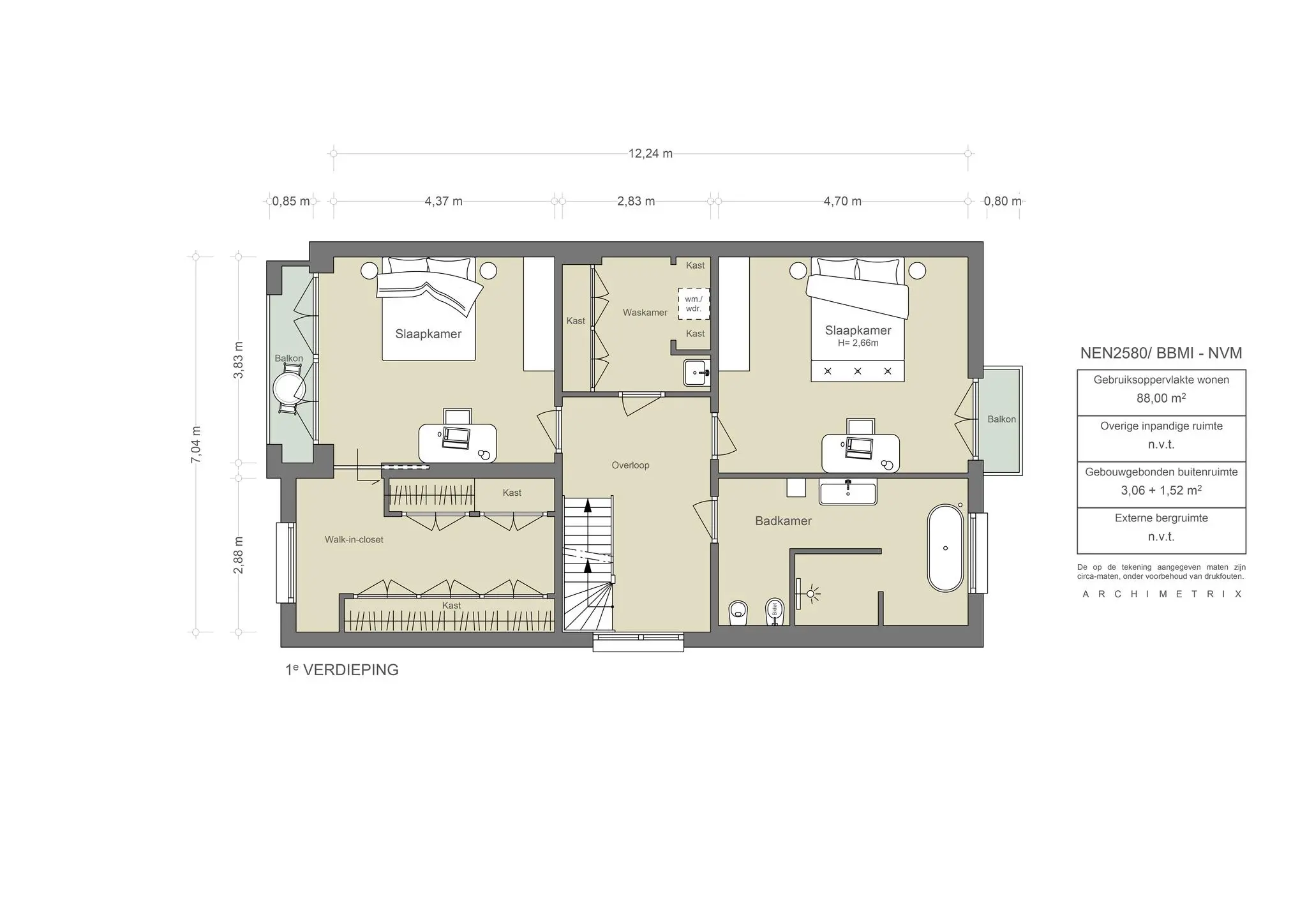
Verspreid over drie verdiepingen biedt deze woning vijf volwaardige slaapkamers en vier comfortabele badkamers — elk met een eigen karakter en sfeer. De hoofdslaapkamer bevindt zich aan de rustige achterzijde van de eerste verdieping. Een kamer van royale afmetingen, met directe toegang tot een privébalkon op het zuiden en een ensuite kleedkamer met fraaie kastenwanden. De badkamer op deze verdieping is ruim opgezet, met een vrijstaand ligbad, inloopdouche, dubbele wastafel, toilet en bidet. De afwerking is modern en ingetogen: donkere tegels, strakke lijnen, en veel daglicht dankzij de grote ramen. Op de tweede verdieping bevinden zich twee lichte slaapkamers onder de kap, met karakteristieke houten balken en veel bergruimte. Zij hebben ieder een compacte badkamer met inloopdouche en wastafel — ideaal voor de kinderen. In het souterrain is er een eigen studio compleet met eigen keuken. Perfect als logeerkamer of nannykamer, de ruimte is zelfstandig te gebruiken en biedt volop privacy. Daarnaast is er op deze verdieping een derde badkamer met douche, wastafel en toilet — perfect geïntegreerd in de wellness- en leisurezone. Daarmee is ook dit niveau meer dan volwaardig: het is een verdieping waar wonen, zorgen en gastvrijheid samenkomen.
Leisure
Het souterrain van Apollolaan 58 is geen klassieke kelderruimte, maar een volwaardig woonniveau, volledig ontworpen als private retreat. Hier staan rust, vitaliteit en luxe centraal. De wellnesszone is groots opgezet, met een traditionele sauna en een volledig betegelde hamam — een ruimte die je letterlijk omhult in warmte en stilte. De materialen zijn zorgvuldig gekozen: donkere mozaïektegels, indirect licht, natuursteen. Naast de wellness ligt een private gym, compact en efficiënt, met ruimte voor cardio en kracht, én daglicht dankzij slimme raampartijen aan de zijkant. Wie na een workout of saunasessie wil ontspannen, begeeft zich naar de home cinema — een verduisterde ruimte met airconditioning, perfect voor filmavonden of een moment van afzondering. De inrichting is comfortabel en minimalistisch: zachte vloerbedekking, een modulaire bankopstelling, surroundgeluid en beamer.
En dan is er nog de wijnkelder. Een sfeervolle gang met ingebouwde klimaatkasten en maatwerk wijnrekken, afgewerkt in diepe bordeauxroodtinten. Deze plek nodigt uit tot bewaren én proeven — een verborgen parel voor de liefhebber. Deze verdieping geeft het huis een extra dimensie: niet alleen om te wonen, maar om te leven — en tot rust te komen, in je eigen ritme.
De tuin ligt pal op het zuiden en is ontworpen voor rust én gebruik. Er is volop ruimte om te zitten, te eten of simpelweg te genieten van het groen. De borders zijn rijk beplant, met een mix van vaste planten, kruiden en siergrassen. In het hart ligt een zorgvuldig aangelegd vijverbassin met vissen, omzoomd door vlonderpaden en houten terrassen. Er is een automatisch irrigatiesysteem voor de tuin, een buitenkeuken aan het water en een aanlegsteiger voor een eigen bootje. De oprit biedt plaats aan twee auto’s en beschikt over een verwarmd oppervlak en een laadpunt voor elektrisch rijden. Dit is een buitenruimte die in directe verbinding staat met het huis, en tegelijk een eigen wereld vormt — groen, besloten en volwassen.
De Apollobuurt maakt deel uit van de Beethovenbuurt. Een stedenbouwkundig gezien belangrijk deel van Amsterdam, waar de stedenbouwkundige stempel naar idee en ontwerp door architect Berlage. Berlage bedacht een patroon van straten, lanen en kanalen waar huizenblokken, veel openbaar groen en villa’s tot herenhuizen zich afwisselde en een geheel vormen: Dit schiep de basis voor het kenmerkende van deze jaren 30 wijk, die bijna geheel wordt omringd door water, zijn de ruim opgezette woningen die uiteindelijk werden ontworpen in de Amsterdamse School-stijl. Ook de gevelstenen en brugsculpturen van Hildo Krop, aan wie de eretitel Stadsbeeldhouwer van Amsterdam is toegekend, geven de buurt cachet. De buurt is echt als woon en gezinswijk bedacht met ook voorzieningen voor scholen en sport. Het Beatrixpark maakte de wijkt compleet. In de Beethovenstraat geven de koffiebars en restaurants als Brasserie Margaux en Ferilli’s de straat en de wijk een jong en dynamisch karakter. Op het Olympiaplein bevindt zich de bakker Le Fournil en Fromagerie L’Amuse. Op de Marathonweg zit slagerij Zikking. De brede lanen en het groen van het Beatrixpark, met z’n moderne beelden en oude bomen, creëren een gevoel van ruimte en zijn ideaal om te sporten en ontspannen. De buurt staat bekend om z’n goede basis- en middelbare scholen en ook om de gunstige ligging ten opzichte van de Ring en station Amsterdam Zuid en de Rai. De Pijp en de binnenstad zijn vanuit hier zo te bereiken.
Bereikbaarheid
Deze locatie ligt van nature heel strategisch ten opzichte van alle grootstedelijke voorzieningen en vooral ten opzichte van scholen. Daarnaast is het een hele prettige locatie om vanuit buiten de stad aan te rijden en om naar de binnenstad te gaan. Het Centrum, De Pijp en Concertgebouwbuurt zijn, net als de rest van de stad, met de fiets heel dichtbij. Ook is het openbaar vervoer op de Zuidas op 5 minuten afstand met de fiets. Langs het Hilton is de Cornelis Schuytstraat te bewandelen en onder het Amsterdams Lyceum door wandelt of fietst men zo het Vondelpark in.
Parkeergelegenheid
Parkeren kan op eigen terrein, er is een elektrische laadpaal aanwezig en er is ruimte voor twee auto’s. Parkeren is ook mogelijk via een vergunningenstelsel op de openbare weg (vergunningsgebied Zuid 2.2). Met een parkeervergunning voor Zuid 2.2 mag u parkeren in Zuid-1, Zuid-2 en Zuid-8. Een parkeervergunning voor bewoners kost € 192,81 per 6 maanden. Momenteel is er voor dit vergunningsgebied geen wachttijd. Een tweede parkeervergunning kost € 482,03 per 6 maanden. (Bron: Gemeente Amsterdam, mei 2025).