Weesper No. 122 is een gebouw uit het begin van de 20e eeuw, gelegen pal aan de Amstel. Dit gebouw is volledig gerenoveerd naar hoge maatstaven. Hier zijn vijf turn-key appartementen, elk met een waanzinnig uitzicht. Zie je het al voor je? Met een kop koffie, de ramen en balkondeuren wijd open, kijkend naar voorbijvarende bootjes en voorbijgangers. De appartementen zijn zeer energiezuinig en hebben een energielabel van A++ tot A+++.

 

Weesperzijde 122 C

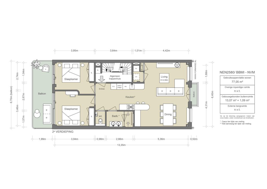
De breedte van 6,40 meter geeft een royaal gevoel. Met de openslaande deuren en de kiep-kantelramen ontstaat er een open ruimte om te genieten van het fabuleuze uitzicht op de Amstel en de middag- en avondzon. Het vrije uitzicht is uniek en een dagelijks genot om mee te maken.

 

De keuken is hier uitgevoerd als een eiland, afgewerkt met een mooi marmeren blad van Carrara. De kenmerkende rondingen combineren uitstekend met de stijl van het appartement. Een fraai detail is dat de werkbladen een connectie maken met het woongedeelte. De keuken is voorzien van hoogwaardige Siemens inbouwapparatuur, waaronder een combi-oven/magnetron, koel-vriescombinatie en een inductiekookplaat met centrale afzuiging. Door de kasten door te trekken tot het plafond is er veel bergruimte gecreëerd. Ook aan de woonkamerzijde zijn vele lades voor extra opbergruimte aangebracht.

 

De slaapkamers liggen aan de achterzijde en zijn beide voorzien van chique inbouwkasten met fraai beslag. In de hoofdslaapkamer is zelfs een kabinet geplaatst met een lade eronder. Er is gekozen voor grote glazen schuifdeuren naar het balkon. De badkamer heeft een strak design met goede verlichting en vloerverwarming. Het badkamermeubel, uitgevoerd in donker hout en met twee spoelbakken, is bijzonder charmant. Erboven hangt een grote spiegel met anti-condens functie. De rustige kleuren maken het geheel tot een prachtig ensemble.

 

Vanaf het balkon heb je vrij uitzicht op het groen en het ruim opgezette binnentuinen. Dit is een heerlijk balkon voor de ochtenduren. Bijzonder charmant is de afwerking met witte tegels met zwarte voegen en de ranke spijlen van het hekwerk. Het balkon is 2 meter diep en met een oppervlakte van 13m² is het ruim genoeg om er heerlijk in een ligstoel te genieten van de dag die gaat komen of misschien wel voor een ochtend yoga-sessie.

 

Het appartement is uitgerust met koeling via een airco-unit en verwarming middels vloerverwarming door het hele appartement. De eiken houten visgraatvloer, die in het gehele appartement is doorgetrokken, zorgt voor eenheid in de ruimte.

 

Bijzonderheden

•   Gebruiksoppervlakte wonen circa 77 m²

•   2 slaapkamers met badkamer

•   Riant balkon aan de achterzijde van circa 13 m² en een balkon aan de voorzijde met uitzicht over de Amstel

•   Gelegen op eigen grond

•   Energielabel A +++

•   Airconditioning en vloerverwarming

•   Zonnepanelen

•   Interieurarchitect Gwen Hoopman

 

De notaris die betrokken is bij het project is Hartman LMH Notaris. Hier zal de eigendomsoverdracht plaatsvinden.

 

Deze informatie is door ons met de nodige zorgvuldigheid samengesteld. Onzerzijds wordt echter geen enkele aansprakelijkheid aanvaard voor enige onvolledigheid, onjuistheid of anderszins, dan wel de gevolgen daarvan. Alle opgegeven maten en oppervlakten zijn slechts indicatief

 

De Meetinstructie is gebaseerd op de NEN2580. De Meetinstructie is bedoeld om een meer eenduidige manier van meten toe te passen voor het geven van een indicatie van de gebruiksoppervlakte. De Meetinstructie sluit verschillen in meetuitkomsten niet volledig uit, door bijvoorbeeld interpretatieverschillen, afrondingen of beperkingen bij het uitvoeren van de meting.

Kenmerken
Weesperzijde 122C, Amsterdam
Vraagprijs
  • € 1.190.000 k.k.
Beschikbaarheid
  • In overleg
Vertrekken
  • 3 kamers
  • 2 slaapkamers
  • 1 badkamer
Onderhoud
  • Intern: Uitstekend
  • Extern: Uitstekend
Oppervlakten & Inhoud
  • Woonoppervlakte: 77 m²
Installaties
  • Airconditioning
  • Mechanische ventilatie
  • Schuifpui
  • Zonnepanelen
Type verwarming
  • Vloerverwarming geheel
  • Warmtepomp
Type warmwater
  • Elektrische boiler eigendom
Buitenruimte
  • Geen tuin
Duurzaamheid
  • Hr glas
  • Volledig geisoleerd
Documenten
Weesperzijde 122C, Amsterdam
Locatie
Weesperzijde 122C, Amsterdam
Eten & drinken
Low-Res-Rijsel-2019-Copyright-Janus-van-den-Eijnden-32
01
Adres
Marcusstraat 52,
1091 TK Amsterdam

Rijsel

Restaurant Rijsel is vernoemd naar de Franse stad Lille; wat door mensen uit Vlaanderen Rijsel wordt genoemd. Net als Lille, heeft Restaurant Rijsel een industrieel karakter. In het pand dat vroeger als huishoudschool fungeerde worden nu dagelijks lekkere gerechten geserveerd met Franse en Vlaamse invloeden. Er is een ruime keus uit vlees-, vis- en groentegerechten. Klassiekers als poussin rotie, huzarensalade, cote de boeuf met bearnaise saus, vissoep etc staan al jarenlang naar tevredenheid van een grote groep vaste gasten op de kaart. De uitgebreide wijnkaart heeft een lichte focus op Frankrijk.  Het restaurant is gelegen vlak naast de Weesperzijde dus na het diner kun je ook nog genieten van een wandeling langs de Amstel of een biertje bij café Hesp.

329812250_769176067851048_377976625447319799_n
02
Adres
Schollenbrugstraat 8,
1091 EX Amsterdam

Troef

Raymond Plat (voormalig souschef van 212), Niels Leijssenaar (restaurantmanager bij Ron Blaauw), Willem Alberts en Roderick Kunst (mede-eigenaren van Escobar) bundelen hun krachten en beginnen samen restaurant Troef.  De mannen willen een huiselijke sfeer creëren en serveren lekker eten zonder te veel poespas. Het menu wordt gedomineerd door klassieke Franse en Italiaanse gerechten. Als voorgerecht kun je onder andere kiezen voor ansjovis en sardientjes, oesters met beurre blanc of krokante kalfswang met oestercrème. Als hoofdgerecht zijn er opties zoals kreeft met antiboisesaus en schuim van bisque of ribeye.

 

Schermafbeelding 2022-07-01 om 15.59.57
03
Adres
Eerste Ringdijkstraat 2,
1097 BC Amsterdam

East57

Amsterdam Oost heeft er weer een nieuwe hotspot bij! East57 is een relaxte plek waar verschillende mensen samenkomen, van locals tot studenten tot af en toe een verdwaalde toerist, bij East 57 vind je ze allemaal. Je kunt hier vanaf 7 uur ’s ochtends tot 1 uur ’s nachts terecht. Ze bieden goed eten en lekker drinken aan. Er wordt veel samengewerkt met leveranciers uit Amsterdam die hun strepen hebben verdiend en alleen de allerbeste kwaliteit leveren. Denk aan Brandt & Levie, Vlaamsch Broodhuys, Erik’s Delicatessen en nog veel meer.

328463208_973652460268804_1665337633279136739_n
347631518_167402726014189_3756591334333499543_n
04
Adres
Wibautstraat 130,
1091 GP Amsterdam

Bottleshop

De Bottleshop is recent geopend door Freek Kattenberg. Het interieur combineert een strak design met warme sfeer. De wijnbar biedt meer dan 350 natuurwijnen. Chef Torres Peralta creëert een unieke fusion van de Japanse en Franse keuken met gedeelde gerechten. Het restaurant organiseert ook kleine evenementen; recentelijk verwelkomde het de chef van Les Oeillets uit Parijs voor een achtgangenmenu en wijnproeverij. Kattenberg benadrukt de waarde van internationale samenwerkingen en wil dit in de toekomst voortzetten.

Schermafbeelding 2022-05-18 om 15.45.07
vergulden eenhoorn
verguldeneenhoor
05
Adres
Ringdijk 58,
1097 AH Amsterdam

De Vergulden Eenhoorn

Met de horeca-openstelling van De Vergulden Eenhoorn, een boerderij uit 1702 waar eerder buurthuizen en kinderopvang waren gehuisvest, mag de Ringdijk nu officieel een idyllische trekpleister worden genoemd. De binnenplaats bij de hooischuur en de tuin rondom zijn één grote picknickplaats, met zacht gras om je neer te vlijen, borders met bloemen en kruiden, grote houten tafels tussen de bomen en romantische zitjes op het erf. Als je binnen bent zou je net zo goed in een oude boerderij in the middle of nowhere kunnen zitten. Voor een ontsnapping uit de stadse sferen is de Vergulden Eenhoorn de perfecte plek, met goed eten en een ruim drank assortiment.

IMAGE@2x
home_slider_1
06
Adres
Rijnstraat 51,
1078 PZ Amsterdam

Yuan's Hot Pot

Hotpot is een van de populairste manieren om uit eten te gaan in China en maakt nu ook haar opmars in onze stad. Yuan's Hot Pot heeft ondertussen al haar derde locatie geopend in Amsterdam. Bij Yuan's Chuan Chuan Xiang serveren ze de authentieke smaak van Chengdu Hot Pot. Aan de bamboespiesjes worden verse ingrediënten zoals groenten, tahoe, vlees en vis gelegd.  Terwijl de hete pot blijft sudderen, worden spiesjes geplaatst in de pan en wordt er aan tafel gekookt. Hoe pittig de bouillon is, kun je naar eigen smaak invullen. Ook de verschillende smaken van de bouillon kan je zelf bepalen.

Voorkant-new-draver-1200×630-1
07
Adres
Tweede Oosterparkstraat 2-4,
1091 JC Amsterdam

New Draver

Oso Nyan! betekent in Suriname genieten van maaltijden die herinneren aan moeders kookkunsten. Al ruim 30 jaar is New Draver een icoon in Amsterdam, gespecialiseerd in de exotische en smaakvolle Surinaams-Creoolse keuken. Gevestigd in Amsterdam Oost wordt je verwelkomt met gerechten zoals Bami, Nasi, Heri Heri en Bruine Bonen met Rijst. Probeer de goudbruine kip met bami en zuurgoed.

372532125_826054012307328_5502849765298475876_n
08
Adres
Lekstraat 11,
1079 EK Amsterdam

Utage Sake Bar

Utage Sake Bar is nieuwe en tevens Amsterdamse primeur. Utage betekent 'banket' in het Japans, oftewel een plek waar vrienden samenkomen en de sake rijkelijke vloeit. De uitgebreide sake-selectie biedt voor elk budget en smaak wat wils. Op de menukaart staan lekkernijen als karaage, gyoza, Japanse pickles en ook aubergine met miso, desserts en tal van vegetarische opties.

338212934_232099025975928_3095569794647745098_n
333127935_667698065046121_5547373681443039532_n
09
Adres
Wibautstraat 105HS,
1091 GL Amsterdam

Alba

Geopend tijdens corona en toen direct gesloten. Nu gelukkig geopend, van dinsdag tot en met zaterdag voor diner. Naast vis en vlees word er ook een goed vegetarisch aabod verzorgt zoals o.a. een zonnige wortelschotel: regenboogwortelen, peterseliehummus, gember-wortelsaus, peterselieolie, gepofte gierst en mosterd-worteldressing. Chef  James Usdin werkte eerder voor sterren restaurants in Londen, maar ook in het Rijks (*). Alba serveert een 3 gangen diner voor 38,50, maar heeft ook een al la carte menu. Ook leuk, er is een gigantisch terras (130 m2) en een fijne snackkaart. De wijnkaart bestaat uit een groot assortiment natuurwijnen.

10
Adres
Van Woustraat 180,
1073 LZ Amsterdam

El Mauri

El Mauri in De Pijp is een van de beste low-budget ontbijtadressen van de stad. Bij deze bakker kun je al jaren terecht voor een uitgebreid Marokkaans ontbijt met een vakantiegevoel. Hoewel de bakker er van buiten eenvoudig uitziet, biedt hij van binnen een heerlijk ontbijt met vers brood, tajines en zelfgemaakte jam.

11
Adres
Van Woustraat 160,
1073 LW Amsterdam

Leeman döner

Voor een goed broodje doner kan je terecht bij Leeman döner op de Van Woustraat. De zaak staat al jaren bekend om zijn goede broodjes döner en dit komt mede omdat de broodjes elke dag vers gemaakt worden in de bakkerij achterin de winkel. Naast de döner hebben ze ook nog allemaal andere producten zoals Turkse pizza, kapsalon, falafel, borek en baklava. Leeman heeft door de jaren heen veel bekendheid gekregen dus het kan er soms erg druk zijn. Het is een afhaalwinkel er zijn dus geen zitplekken binnen, in de zomer staan er nog wel eens stoeltjes buiten.

Schermafbeelding 2022-07-01 om 13.55.26
12
Adres
Van Woustraat 127,
1074 AH Amsterdam

Firma Pekelhaaring

Firma Pekelhaaring is een geliefd Italiaans restaurant gevestigd aan de Van Woustraat 127-129 in Amsterdam. Het restaurant staat bekend om zijn ontspannen sfeer en authentieke gerechten, beïnvloed door de Italiaanse keuken, maar met ruimte voor eigen variaties en lokale invloeden. De eigenaar van Firma Pekelhaaring is Matthias van der Nagel.  Onder zijn leiding heeft het restaurant erkenning gekregen, waaronder een vermelding in de MICHELIN Gids met een Bib Gourmand voor de goede prijs-kwaliteitverhouding. Op de kaart gerechten als Arancini, tagliatelle met eendenstoof of kabeljauw met gezouten baccala en schorseneer.

Schermafbeelding 2022-07-01 om 13.58.34
13
Adres
Van Ostadestraat 354,
1073 TZ Amsterdam

NAZKA

In de Van Ostadestraat vind je het kleurrijke restaurant Nazka. Naast dat het interieur er fantastisch uitziet, is het eten ook spectaculair. De keuken toont zowel Peruaanse klassiekers als innovatieve gerechten, die voortbouwen op het erfgoed van Peru. Nazka heeft een prachtige inrichting, fantastische service, knap eten en de sommelier is een genie, maar het belangrijkst: álles is lekker.

img-2637
73cce179-b128-4a93-8c38-06e643cde2b7
14
Adres
Amstelboulevard 1,
1096 HH Amsterdam

Ode aan de Amstel

Ode aan de Amstel bevindt zich in het voormalige restaurant Riva. Gelegen aan de Amstel biedt dit restaurant een prachtig uitzicht over rivier de Amstel; een van de levensaders van de stad Amsterdam. Het interieur is stijlvol met warme kleuren en robuuste materialen. Op de all-day dining kaart vind je allerlei heerlijke gerechten, waarvan een aantal klassiekers of verrassende gerechten met een Aziatische twist. Als het lekker weer is, kun je op het terras heerlijk aan het water zitten. Dit restaurant is echt een verborgen parel in Amsterdam.

362634750_18375989929025619_8839326894748864225_n
15
Adres
Trompenburgstraat 111,
1079 TV Amsterdam

Café Remouillage

'Complex simplicity, is our way of less is more' staat op de website van deze hidden gem. Het woord café is enigszins misleidend. Jonathan Sparber (o.a Toscanini, Vermeer, Entrepot) zegt hier over; ‘Ik noem het café omdat ik wil dat mensen ook spontaan langs kunnen komen om een hapje te eten.' Jonathan kookt alles van het beest, niets wordt weggegooid. De wijnkaart met een mooie selectie producenten is voornamelijk biologisch.

_BOU9102
16
Adres
Van Woustraat 97,
1074 AG Amsterdam

Rayleigh & Ramsay

Rayleigh & Ramsay wordt omschreven als een snoepwinkel voor volwassenen. De term wijnbar vinden ze hier te hoogdrempelig, maar de focus ligt toch echt wel op wijn, met meer dan 100 open wijnen. Uniek is dat je wijn per slok, half glas of heel glas kan bestellen. Zo kan je hier terecht om alles wat je wil te proeven en te ontdekken wat je de allerlekkerste wijn vindt. Naast wijnen staat er ook goede koffie, cocktails, tapbier en lekker eten op het menu.

17
Adres
Pretoriusstraat 72-A,
1092 GK Amsterdam

Café Susy

Café Susy werd opgericht door Kick van Doorn en Nicole Lieuw, die eerder samen het succesvolle Yusu openden en met Susy opnieuw hun liefde voor authentieke smaken wilden laten zien. De naam verwijst speels naar Yusu, maar de missie is serieus: een all-daycafé met een kaart die niet meegaat in trends, maar trouw blijft aan traditionele Braziliaans-Surinaamse gerechten. In de keuken draait het om herkenbare smaken zoals Surinaamse kipsaté, bami met kousenband en escondidinho met kip, cassavepuree en kaas uit de oven. Ondanks het hippe interieur met veel staal en strakke lijnen, blijft de keuken bewust ongepolijst en puur. De sfeer is levendig en toegankelijk, een plek waar je net zo makkelijk binnenloopt voor koffie als voor een stevige, huiselijke maaltijd.

Schermafbeelding 2022-07-01 om 16.04.41
18
Adres
Camperstraat 48-50,
1091 AH Amsterdam

4850

Overdag een uitstekende koffiebar met zelfgemaakte pastries en broodjes. In de avond een wijnbar annex restaurant. De keuken omschrijft zichzelf als Nordic met pan europese smaken. De gerechtjes (to share) zijn bijzonder. Zuurdesem brood met geslagen comté boter gecombineerd met naar keuze kippenlevermousse of ansjovis in houtskoololie. Een aardapplemousse met cantherellen en eidooier.  De kaart is compact maar gevarieerd. Ze hebben een enorm (natuur en klassiek) wijn assortiment. De lijst, samengesteld door eigenaar Daniel Schein, staat in de Star Wine list. The huidige chef Ciaran Naughter heeft een voorliefde voor het koken op vuur.

Boodschappen
A2CE4227-3FDF-487C-9464-43916E813F50_480x480
19
Adres
Van Woustraat 201H,
1074 AN Amsterdam

La Bottega by Chiara's Food

'From good people to good people'; dat is het motto van Chiara en haar familie. Chiara selecteert voor haar delicatessenwinkel de meest bijzondere en authentieke producenten in Italie. 'De meeste van onze leveranciers werken in hun familiebedrijven; terwijl ze de traditie behouden, hebben ze geleerd om de werklast te schalen en hun methoden te evolueren om bij de tijd te blijven. Al hun ingrediënten zijn lokaal afkomstig uit de regio waarin ze gevestigd zijn, wat op zijn beurt de lokale boeren ondersteunt waar ze van inkopen.' Er worden regelmatig workshops en tasting georganiseerd.

downloadgram.org_587808323_17920950975199409_2006557532097734563_n
20
Adres
Eerste Oosterparkstraat 7H,
1091 GT Amsterdam

Dough Studio

Dough Studio is het project van Bas en Idske, die in 2019 begonnen met pizza’s bakken in hun achtertuin in Amsterdam-Oost en daar hun liefde voor goed deeg ontdekten. Na het openen van twee Pizza Projects in Oud-West en Zuid ontstond de behoefte aan een plek om hun vak verder te verdiepen. In Dough Studio draait alles om fermentatie en tijd, met deeg dat de ruimte krijgt om zich volledig te ontwikkelen. Ze breiden hun ambacht hier uit voorbij pizza, met schiacciata-sandwiches, seizoensgebonden baksels en koffie van een lokale brander.

21
Adres
Rijnstraat 91,
1079 GZ Amsterdam

Volendammer vishandel Jonk

Er zijn maar weinig mensen die zich in kunnen houden op het hoekje van de Lekstraat en de Rijnstraat. Want wat is er beter dan een bakje kibbeling voor de lunch? Volendammer vishandel Jonk is een ouderwetse vishandel voor verse vis, gebakken vis en belegde broodjes. Van een verse Hollandse Nieuwe haring, tot luxe zalm maaltijden: de verse aanvoer van vis van visleveranciers uit Volendam, Urk en IJmuiden stelt nooit teleur.

22
Adres
Van Woustraat 103,
1074 AG Amsterdam

Stadsmarkt de Pijp

Bij Stadsmarkt de Pijp worden de producten dagelijks zelf opgehaald. Zo komen direct van de boer, tuinder, slager, visboer en bakker allerlei producten midden in de Pijp terecht. De focus bij Stadsmarkt de Pijp ligt op duurzaamheid en hier wordt een eerlijke prijs voor betaald aan de leveranciers. De werkzame vakmensen staan altijd paraat om iets aan te raden of om iets te laten proeven. Ook staat ambacht centraal; het is een markt waar je fijn kan eten en lekker kan genieten.

Schermafbeelding 2023-01-25 om 11.22.35
IMG_0053-772×1030
IMG_0051-773×1030
23
Adres
Hoendiepstraat 2,
1079 LT Amsterdam

Pasteibakkerij

In het voormalig slachthuis van de Rivierenbuurt vind je vandaag de Pasteibakkerij. Ze maken hier allerlei soorten worsten, paté, spek, ham en andere chacuterie in Franse stijl. De Pasteibakkerij is vernoemd het gerecht pastei; waar paté wordt gebakken in korstdeeg. Gedurende het jaar verkoopt de Pasteibakkerij haar vaste assortiment maar tijdens de feestdagen kun je hier ook traditionele pastei gerechten kopen.

Interieur
2017-06-10
24
Adres
Trompenburgstraat 22,
1079 TX Amsterdam

Kringloop Winkel Amsterdam

Kringloop Winkel Amsterdam heeft inmiddels vier locaties in de stad. Met boeken, huishoudelijke apparaten, kleding, meubels, muziek, speelgoed en gereedschap. Kortom, alles wat je in een kringloopwinkel kunt verwachten. Genoeg redenen om een middagje rond te struinen.

Kunst & cultuur
3 september 2023_Tommy_Smits_1039_1_JPG
25
Adres
Pieter Aertszstraat 70,
1073 SR Amsterdam

Josilda da Conceição Gallery

Josilda da Conceição Gallery presenteert een veelzijdig programma van hedendaagse kunst, variërend van schilderkunst tot installaties. Sinds de oprichting in 2014 is het de missie van de galerie geweest om internationale artistieke praktijken te verenigen en het gesprek over diverse culturele perspectieven te bevorderen. De galerie ondersteunt opkomend talent en biedt een platform voor gevestigde kunstenaars naast opkomende stemmen, wat nieuwe gebieden voor esthetische en conceptuele reflectie cultiveert.

Buurtgids: rondom de Apollobuurt

Buurtgids: rondom de Apollobuurt

Buurtgids: Volewijck (Noord) rondom van der Pekstraat

Buurtgids: Volewijck (Noord) rondom van der Pekstraat

Buurtgids rondom de Andreas Schelfhoutstraat

Buurtgids rondom de Andreas Schelfhoutstraat

Onlangs bekeken
Bekijk het overzicht

Deze site maakt gebruik van cookies.

Voor welke cookies geef je akkoord?