Parijse allure in Willemspark| Madame Pyrmont is de verpersoonlijking van stijl en comfort.

Elke vrijdag open huis tussen 12:00-13.00 uur. Loop gerust binnen voor een rondleiding en bekijk de beschikbare appartementen.

In een van de meest prestigieuze buurten van Amsterdam, de Willemsparkbuurt, is Madame Pyrmont gerealiseerd: een elegante herontwikkeling aan de statige Waldeck Pyrmontlaan. Hier, op huisnummer vier, is een karakteristiek pand uit 1913 met aandacht en finesse getransformeerd tot vijf exclusieve appartementen. Elk met een doordacht ontwerp, hoogwaardige afwerking en een harmonieuze relatie met het licht. Madame Pyrmont biedt smaakvol wonen op een van de mooiste plekken van Amsterdam, met lift, bergingen, eigen grond en volledig turn-key.

Waldeck Pyrmontlaan 4-2

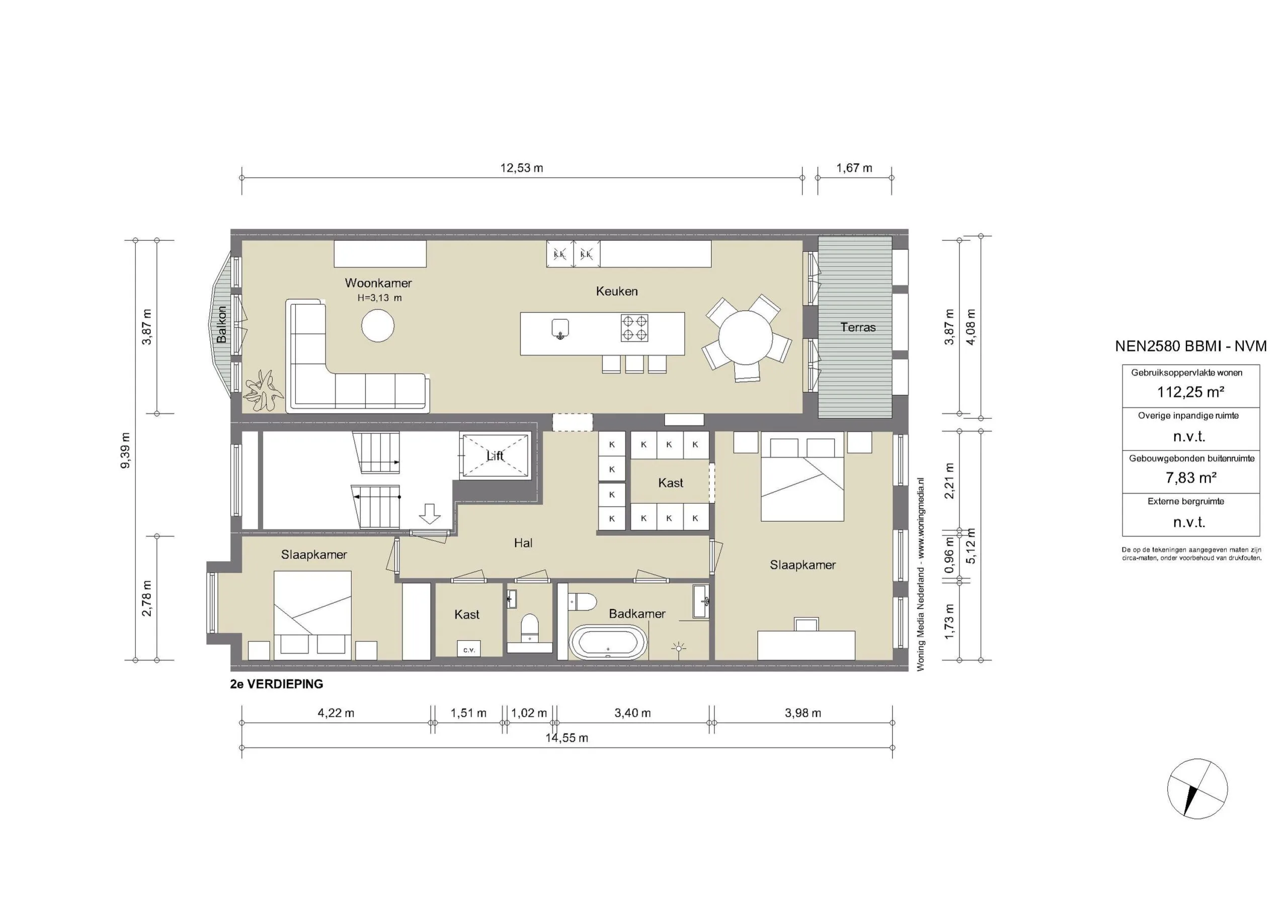
Toegang tot de woning via lift of het authentieke trappenhuis met glas-in-loodramen. De entreehal is royaal en licht, en vormt de opmaat tot een ruimtelijke woonverdieping die zich uitstrekt van voor naar achter. Aan de straatzijde ligt het zitgedeelte, met als blikvanger het balkon aan de voorzijde, een fijne plek om de seizoenen te ervaren, verscholen achter het groen. De eetkamer ligt aan de achterzijde en staat via openslaande deuren in verbinding met het zongerichte terras. De aangrenzende woonkeuken is voorzien van een maatwerk interieur, uitgevoerd in hout met een natuurstenen blad. Het kookeiland met barfunctie nodigt uit tot informeel samenzijn, terwijl de lengte en breedte van de ruimte zorgen voor lucht en licht. De hoogwaardige afwerking en het zorgvuldige lijnenspel maken deze woonlaag tot een ingetogen, maar uitgesproken geheel. Aan de achterzijde van de woning ligt de hoofdslaapkamer, ruim, stil en met grote ramen op het zuidwesten. Direct verbonden met deze kamer is een royale kleedruimte, voorbereid op een maatwerk inrichting. De ruimte is vrij indeelbaar en biedt volop mogelijkheden voor kastruimte. De badkamer ligt apart, centraal op de verdieping. Hier komen luxe en functionaliteit samen in een vrijstaand bad, een royale inloopdouche, dubbele wastafel en toilet. Aan de voorzijde ligt een tweede slaapkamer, ideaal als werkruimte of logeerkamer. Aan de gang is een tweede toilet en bergruimte met wasmachine aansluiting. De combinatie van licht, rust en heldere indeling maakt deze woonlaag tot een aangename privézone binnen het huis.

Bijzonderheden:

- Gebruiksoppervlakte wonen 112 m²

- Terras op het westen van circa 8 m²

- Lift

- Twee slaapkamers

- Luxe badkamer

- Berging van circa 3 m²

- Nieuwe fundering

- Energielabel A

- Recent gerenoveerd 2025

- Eigen grond

Omgeving

Voor de buurtbewoners zijn verschillende voorzieningen. Niet alleen de Amstelveenseweg en Zeilstraat, ook de Cornelis Schuytstraat en Koninginneweg hebben een divers aanbod. kwaliteitswinkels zijn bijvoorbeeld het Vlaamsch Broodhuys, chocolatier Linnick, groenteboer Wessels, slagerij Van der Laan en Zikking. Er zijn ook meerdere wijnzaken. Om de hoek ligt sterrenrestaurant Ron Gastrobar en vlakbij is ook het Franse visrestaurant VISQUE. Bij Schotsheuvel kun je binnenlopen zonder te reserveren en heeft altijd een goede kaart. Gelegen tussen het Vondelpark, de Koninginneweg en de Amstelveenseweg is dit met uitstek een goed bereikbare en rustige locatie van Amsterdam om te wonen, waar ontspanning en inspiratie dichtbij zijn.

Kenmerken
Waldeck Pyrmontlaan 4-2, Amsterdam
Vraagprijs
  • € 1.680.000 k.k.
Beschikbaarheid
  • In overleg
Vertrekken
  • 1 kamer
Onderhoud
  • Intern: Uitstekend
  • Extern: Uitstekend
Oppervlakten & Inhoud
  • Woonoppervlakte: 112 m²
Bouwjaar
  • 1913
Installaties
  • Frans balkon
  • Lift
Buitenruimte
  • Geen tuin
Duurzaamheid
  • Hr glas
  • Volledig geisoleerd
Plattegrond
Waldeck Pyrmontlaan 4-2, Amsterdam
Waldeck Pyrmontlaan 4-C - Amsterdam - 2e_verdieping
Waldeck Pyrmontlaan 4-C - Amsterdam - 2e_verdieping
Documenten
Waldeck Pyrmontlaan 4-2, Amsterdam
Locatie
Waldeck Pyrmontlaan 4-2, Amsterdam
Boodschappen
103079443_3573633532650074_4867610338365611728_n
01
Adres
Amstelveenseweg 75,
1075 CE Amsterdam

Patisserie Linnick

Patisserie Linnick wordt bestierd door het  Amstelveense koppel Linda en Nick. Zij leerden elkaar kennen in Patisserie Holtkamp en werden verliefd. In 2014 werd hun droom werkelijkheid: een eigen patisserie waar zij hun kunstwerkjes aan het publiek kunnen tonen. Met passie en ambacht werken zij elke dag aan de prachtige gebakjes en chocolade die zij vervolgens in de vitrines etaleren. Patisserie Linnick werkt met hoogwaarde ingrediënten zoals de Valrhona chocolade uit Tain-l’Hermitage in Hermitage. De heerlijke zoete traktaties van Patisserie Linnick zul je niet snel vergeten.

40696884_263976027789595_4869878192174792704_n
02
Adres
Koninginneweg 255,
1075 CV Amsterdam

Wijnhuis Amsterdam

Hoewel ze bij Wijnhuis Amsterdam al meer dan 25 jaar professioneel wijn proeven en selecteren, is het wijnhuis in Amsterdam een vrij recente toevoeging aan hun verhaal.  Na talloze proefsessies waren ze zo enthousiast over de Duitse wijnen dat ze maar al te graag de wijnen een platform wilden geven binnen Nederland. Zo openden ze in mei 2018 Wijnhuis.Amsterdam, met in eerste instantie slechts drie eigen importen uit Duitsland. Inmiddels vertegenwoordigen ze een indrukwekkend assortiment van twintig Duitse wijnmakers, drie uit Oostenrijk en één uit Luxemburg. Bij het selecteren van de wijnen is elegantie, de drinkbaarheid, lage alcoholpercentages en een minimale interventie in het productieproces belangrijk.

03
Adres
Hoofddorpweg 27,
1059 CT Amsterdam

Cow Project

Met het motto ‘bewust bourgondisch’ onderscheidt slagerij Cow Project zich van andere slagerijen. Het draait hier om lekker eten op een bewuste manier. De herkomst van het vlees is bekend en de slager draagt grote zorg voor een goed leven voor de dieren. Zo zijn de lammeren van Texel, de kip van de Blije Ilper en de varkens behoren tot de Porc au Grain varkens. Naast slagerij is het ook een delicatessenzaak met allerlei lekkere dingen zoals tapas.

287573586_5731115153584452_4578419007889655966_n
04
Adres
Hoofddorpplein 23,
1059 CW Amsterdam

Nuts & Delights

& Cheese zou er eigenlijk nog in de titel moeten staan want dat is wat ze hier allemaal hebben. Niet alleen de vers gebrande noten zijn waanzinnig, ook het gigantische assortiment kaas is heerlijk en voor elke gelegenheid hebben ze wel een kaasje. Ook leuk: ze bezorgen via fietskoerier Peddler, wel zo duurzaam!

Eten & drinken
000049
05
Adres
Amstelveenseweg 158-160,
1075 XN Amsterdam

Restaurant Blauw

Aan de Amstelveenseweg ligt het Indonesische restaurant Blauw. In tegenstelling wat de naam doet verwachten, is het hele interieur rood. De rijsttafels bij restaurant Blauw zijn bij beide locaties identiek (Amsterdam en Utrecht), maar de rest van het menu is per vestiging uniek. De chefs stellen zelf hun ultieme authentieke Indonesische belevingen samen op basis van hun eigen inspiratie en invloeden.

202010SOTTO82-1400×934
06
Adres
Amstelveenseweg 89,
1075 VW Amsterdam

Sotto Pizza

Sotto Pizza is één van de top 10 Italiaanse restaurants in Amsterdam. Het restaurant opende haar deuren in 2021, maar is sindsdien een begrip onder de pizza-liefhebbers. De diverse keuze is een weergave van de kundigheid van de koks, maar hun klassieke Margherita is onverslaanbaar. Het interieur heeft iets weg van een moderne Spaanse tapasbar, met een fijne sfeer. Je kan bij Sotto uitgebreid tafelen of snel een pizza eten aan de bar. Het personeel is behulpzaam en vriendelijk.

vierkantjes-website-4
278159011_532942278401509_462089035820605652_n
07
Adres
Sophialaan 55,
1075 BP Amsterdam

Ron Gastrobar (*)

Bij Ron Blaauw's eerste gastrobar in Amsterdam gaat een laagdrempelige sfeer hand in hand met een Michelinster. Stijl en gezelligheid komen samen voor een smakelijke ervaring. Van details tot amuses, cocktails, broodjes op tafel, nieuwe gerechtjes, heerlijke wijnen en attente service. Alles draait om het credo: "uit eten gaan moet een feestje zijn''.Voor BBQ-liefhebbers is er zelfs een apart gedeelte op de menukaart. Uiteraard ontbreken de klassiekers, zoals de spareribs "The Original," niet; een gerecht dat altijd zal blijven.

featured-gallery-0
08
Adres
Koninginneweg 212,
1075 EL Amsterdam

Simply Fish

Simply Fish is gelegen in Oud-Zuid aan de Koninginneweg. Zoals de naam al doet vermoeden is het restaurant gespecialiseerd in het bereiden van vis. Echtpaar Jan en Francis Rijk bezaten voorheen eenzelfde soort restaurant in Zeeland, een welbekende provincie voor overheerlijke vis en zeevruchten. Op het menu kan je onder andere fruit de mer, garnalenkroketjes, oesters en hun beroemde kreeftenbisque vinden.

09
Adres
Hendrik Jacobszstraat 18,
1075 PD Amsterdam

LOT61 Coffee Roasters

Geboren in Sydney, grootgebracht in Brooklyn en nu stevig geworteld in Amsterdam: LOT61 is allesbehalve een doorsnee koffiezaak. Als onafhankelijke koffiebrander combineert het merk internationale flair met lokaal vakmanschap. Slow coffee die met precisie en aandacht is gezet. De esthetiek is rauw maar verfijnd, de sfeer informeel en creatief – een plek waar buurt en barista samenkomen. Met hun B Corp-certificering laat LOT61 bovendien zien dat smaak en duurzaamheid hand in hand kunnen gaan.

321951658_745210986479092_3482688388092291829_n
264585813_916339462605248_793857125163270911_n
10
Adres
Amstelveenseweg 226h,
1075 XT Amsterdam

Bonnie

Bonnie, een charmante bistro gelegen in Amsterdam-Zuid. Bij Bonnie draait alles om genieten; van lekkere maaltijden tot zorgvuldig geselecteerde wijnen die perfect aansluiten. Vooral de Bonnie's double cheeseburger is een aanrader. De ambiance zorgt ervoor dat je je al snel op je gemak voelt. Een lunch hier kan gemakkelijk overgaan in een gezellige borrel, waardoor je het gevoel krijgt dat je eigenlijk helemaal niet meer weg wil.

1500-x-1000-pxl5-1024×683
11
Adres
Overtoom 515,
1054 LN Amsterdam

Adam

Alle gerechten zien er fraai uit, zonder overdreven gedoe. Ook de smaken doen zich gelden: eerlijk, spannend en in balans. Al snel in ons menu komen we een topper tegen: perfect gegaarde griet met een fris-ziltige oestervinaigrette, komkommerlinten, amandelcrème, een bite van gefrituurde vishuid en een saus van nori. Even tongstrelend: een perfect stukje lam van de Big Green Egg, bereid met chorizo en geserveerd met twee heerlijke sauzen.’

366416263_660727485939210_4584064804028118782_n
12
Adres
Valeriusplein 4A,
1075 BG Amsterdam

Juliette

In Amsterdam Zuid  kun je bij Juliette genieten van ontbijt en lunch in de zon. Het menu is gebaseerd op verse ingrediënten van lokale leveranciers en wordt dagelijks samengesteld op basis van wat er op de markt beschikbaar is. Denk aan gerechten zoals de Porco Rosso: mortadella, stracciatellakaas, Spaanse guindillapepers en rode pesto. Voor het diner of een borrel kan je terecht bij buurman Bar Jules. De focus ligt op Zuid-Europese gerechten zoals pizzetta's, pata negra en geroosterde octopus.

306001211_969230534472634_2320247204275062774_n
13
Adres
Warmondstraat 120,
1058 KZ Amsterdam

Caffènation

De bekendste koffiebranderij van Antwerpen heeft nu ook zijn deuren geopend in de Schinkelbuurt van Amsterdam. De kenmerkende Belgische stijl van Caffenation is duidelijk te herkennen in de inrichting van de koffiebar, die uit twee verdiepingen bestaat en ruime zitgelegenheid biedt. Opvallende decorstukken zijn overal te vinden, maar de absolute blikvanger bij binnenkomst is de indrukwekkende espressomachine van Kees van der Westen. De koffie, bereid met de Synesso MVP Hydra-espressomachine is van goede kwaliteit  en de sfeer is ontspannen. Bovendien biedt Caffenation wekelijks twee verschillende soorten verse bonen aan.

243487692_916456538963690_7976686809274757497_n
14
Adres
Overtoom 445,
1054 KG Amsterdam

Focacceria

De Italiaanse Valeria Lucente vindt de Italiaanse restaurants in Amsterdam verrassend goed, maar ze heeft wel heimwee naar de smaken van thuis. Vooral de focaccia uit haar streek. Dit delicate platbrood, ongeveer twee centimeter dik, is luchtig, vettig en zo zacht als een wolk. In tegenstelling tot focaccia uit andere Italiaanse regio's heeft de genovese-variant geen knapperige, maar een zachte bovenkant. Dit komt door voor het bakken het deeg te bestrijken met olijfolie, water en zout. Vooral in Genua wordt focaccia genoten bij elk eetmoment en dat kan nu dus ook in Amsterdam.

15
Adres
Hoofddorpplein 6H,
1058 PD Amsterdam

Buno Coffee

360349188_243934825182799_7735494007192255831_n
16
Adres
Hoofddorpplein 1,
1059 CV Amsterdam

Café Maurits

Café Maurits, gelegen op het Hoofddorpplein in Amsterdam-Zuid, biedt een veelzijdige ervaring als bar, café en restaurant. Hier worden eigentijdse gerechten geserveerd, zowel à la carte als in een chefsmenu, zonder fratsen zoals schuimpjes of gelletjes, maar met de ambiance van een modern café. Het hoekpand beschikt over een aangenaam terras en een lichte, uitnodigende sfeer.  Het interieur is smaakvol ingericht met veel houtaccenten en spiegels die de ruimte vergroten en verlichten. De verfijnde menukaart, samengesteld door chef Boy van Rijn, biedt diners een uitstekende culinaire ervaring, compleet met bijpassende wijnen.

17
Adres
Hoofddorpplein 29 h,
1059 CW Amsterdam

Nana coffee house

Aan het Hoofddorpplein ligt Nana Coffee House. De deuren gaan open zodra je zin hebt in iets lekkers: een all-day ontbijt, broodjes, flatbreads of huisgemaakte zoetigheden. De naam verwijst naar Nana, de grootmoeder van de eigenaresse, met wie gastvrijheid altijd centraal stond. Je voelt het meteen: een plek met karakter, waar je komt voor kwaliteit én eenvoudig comfort. Geopend doordeweeks van 08:00 tot 16:00 (behalve dinsdag), in het weekend vanaf 09:00. Een spot waar de buurt elkaar vindt in rust, smaak en stijl.

312175149_2011502502368624_2613652535986311070_n
18
Adres
Koninginneweg 34,
1075 CZ Amsterdam

Tozi

TOZI betekent in Venetiaans dialect ‘een groep vrienden’, en dat voel je direct als je binnenkomt. Het is net alsof je terecht komt in één grote familie. De kaart toont een selectie van kleine Venetiaans geïnspireerde gerechten om te delen, bekend als cicchetti. Met een Italiaanse wijnkaart en een cocktailbar met Italiaanse gins en negroni's.

 

downloadgram.org_505199169_17968221128916987_8853914751551748836_n
19
Adres
J.J. Cremerplein 34H,
1054 TL Amsterdam

Taal Coffee

Taal Coffee is een koffiezaak in Amsterdam-West, opgericht door Aleksandra Fedorova, die na jaren ervaring in de koffiewereld haar eigen plek wilde creëren rond ontmoeting en aandacht. De naam verwijst naar de manier waarop smaak en gesprek mensen verbinden, en dat idee vormt het hart van de zaak. Hier draait het om zorgvuldig bereide espresso’s en filterkoffie, met bonen van kleine branders en seizoensgebonden dranken. Naast koffie worden er ambachtelijke zoetigheden geserveerd, in een ruimte waar buurtbewoners graag blijven zitten om te werken of bij te praten.

Interieur
dis-studio-Boffi-family-home-18.jpg
DB_111013_13402.png
20
Adres
Amstelveenseweg 2,
1075 XH Amsterdam

DIS Studio

DIS Studio is een designbureau, interieurwinkel en showroom in één. DIS Studio is opgezet door Daniela Germone en Dis Abhelakh. Zij werkten beide voor het Italiaanse interieurmerk Boffi en zijn sinds 2004 samen eigenaar van een eigen studio in Amsterdam. Je kunt bij DIS Studio terecht voor interieusdesign voor je hele huis; van keukens tot stoelen tot tafellampen. Hoewel Daniele en Dis graag werken met strakke Italiaanse designs en natuursteen worden kleine imperfecties niet vermeden. Volgens hen zorgen juist die kleine imperfecties voor een warme en huiselijke sfeer. In de showroom van DIS Studio worden uitsluitend producten getoond van Italiaanse merken. Het is ook de enige plek in Nederland die producten van het merk Boffi verkoopt.

790bff16-5b71-4696-a026-427311b3e8b2
21
Adres
Koninginneweg 271,
1075 CW Amsterdam

Teunis Veenema

Teunis Veenema is een pareltje in het hart van Amsterdam-Zuid. Aan de Koninginneweg kun je sinds 2009 terecht voor de mooiste boeketten en planten. Teunis Veenema is geen doorsnee bloemenwinkel maar een winkel waar met je mee wordt gedacht om het mooiste resultaat te behalen zowel particulier of zakelijk. Daarbij biedt hun website de mogelijkheid om geheel gepersonaliseerde boeketten te bestellen voor uzelf of voor anderen.

Schermafbeelding-2018-06-26-om-15.18.30-e1530019385389
22
Adres
Amstelveenseweg 39,
1054 MC Amsterdam

Eginstill

Eginstill is een bijzonder collectief, gespecialiseerd in interieurdesign. Het grote team aan leden, van ambachtsmannen tot aan de creatief leider Frans Pahlplatz, voorziet enthousiastelingen van workshops waarin alle interieur wensen waar kunnen worden gemaakt. Deze processen worden zo duurzaam mogelijk gemaakt, door het gebruik van recyclebare materialen zoals staal en hout van een familiebedrijf in Finland. Eginstill wil het liefste alle projecten zo uniek maken als hun klanten en dit doen ze met passie. Ook voor de lekkere bak koffie kan je hier goed terecht en er is genoeg om tijdens het nuttigen naar te kijken!

studio3000-vintage-objects
23
Adres
Derde Kostverlorenkade 35,
1054 TS Amsterdam

Studio 3000

Studio 3000 is een multifunctionele creatieve ruimte. De studio is opgericht in 2020 door Nurcan Tuzkapan en is gevestigd lang de Derde Kostverlorenkade. In de studio worden design meubels getoond, verkocht en verhuurd. Naast vintage designmeubels vind je hier ook een fotografiestudio. Op haar instagramkanaal houdt Nurcan haar volgers op de hoogte van haar nieuwste vondsten en geplande event. Als je geïnteresseerd bent in creatieve projecten en design, is het zeker aan te raden om het platform van Nurcan in de gaten te houden.

Annindriya-Perfume-_Lounge-Local-Minded-005_lichter_Lowres_480x480
perfumelounge 2
24
Adres
Cornelis Krusemanstraat 25,
1075 NC Amsterdam

Perfume Lounge

Bij de ‘Perfume lounge’ richten ze zich op het maken en adviseren van geuren voor bedrijven en organisaties en wat reuk kan toevoegen aan een merk of organisatie. Daarnaast hebben zij een winkel met een assortiment van de meest bijzondere parfums van de wereld, waar zij ook persoonlijk geuradvies geven. Advies voor op de huid of in huis. Volgens de experts voegt geur iets toe wat niet zichtbaar en tastbaar is. Je kunt geur op verschillende manieren inzetten in een ruimte. Het begint natuurlijk eerst dat het er niet negatief mag ruiken. Er zijn best wel veel ruimtes waar je het riool of sanitair ruikt, waar veel gerookt is of waar de afzuiging niet goed is en het naar eten ruikt. De meeste simpele manier van geur in huis is dat het schoon ruikt. Veel mensen associëren schoonmaak of wasmiddel met een schoon, opgeruimd en verzorgd huis. Daarnaast kun je de ambiance aanzetten. Net zoals met licht en muziek kun je de sfeer verzachten of versterken. Je kunt het heel huiselijk laten ruiken of juist heel modern. Landelijk of artistiek. Of juist heel minimalistisch of intiem.

358014390_18301446502098195_6874054696510138290_n
25
Adres
Baarsjesweg 276 H,
1058 AD Amsterdam

Cocoon house Amsterdam

Cocoon house Amsterdam is de plek waar je 20e-eeuwse antiek, designstukken en kunst ontdekt. De focus ligt op unieke en goed ontworpen stukken die gebruikt kunnen worden om stijlvolle en individuele interieurs te creëren. De verzamelaar, Sander van Eyck, is interieur- en productontwerper. Hij heeft zijn eigen collectie meubels en verlichting onder de naam: 'Made by Sander'.

Een ranke woontoren van hout – revolutionair in constructie, radicaal in intentie.

Een ranke woontoren van hout – revolutionair in constructie, radicaal in intentie.

Waar drinken we de lekkerste wijnen in Amsterdam? Een selectie van wijn barren én restaurants met een bijzondere wijnkaart

Waar drinken we de lekkerste wijnen in Amsterdam? Een selectie van wijn barren én restaurants met een bijzondere wijnkaart

Uitgelicht; The Gentleman

Uitgelicht; The Gentleman

Onlangs bekeken
Bekijk het overzicht

Deze site maakt gebruik van cookies.

Voor welke cookies geef je akkoord?