Coast 1.2.05 2e verdieping
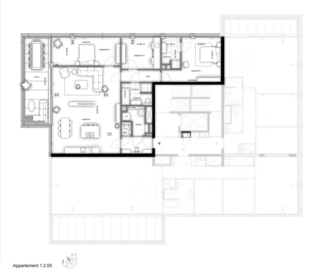
Deze woning van ca. 146 m2 op de tweede verdieping biedt meerdere indelingsmogelijkheden. Kiest u voor drie slaapkamers die deze woning standaard heeft of kiest u toch liever een werk- of praktijkruimte die direct vanuit de entree bereikbaar is? Een fijn terras van ca. 22 m2 geeft u avondzon en vanuit de woonkamer geniet u van de zichtlijn over het IJ.

Kaap, wonen aan het IJ
Een unieke plek aan het IJ met een schitterend uitzicht dat geen moment hetzelfde is. Er vaart altijd wel een zeiljacht, veerpont of cruiseschip voorbij, met op de achtergrond de skyline van de stad. Kaap biedt een combinatie van rust en levendigheid, het inspireert en geeft energie. Het is ook een plek in beweging. De komende jaren wordt het Oeverpark aangelegd, een groen wandelzone langs het IJ, met daarin een bijzonder paviljoen dat ruimte biedt voor een restaurant. KAAP bestaat uit vijf karaktervolle gebouwen met panoramische appartementen en uitzicht op het IJ. De appartementen hebben royale buitenruimtes die uitermate geschikt zijn om eindeloos te genieten van zon, licht en ruimte.

COAST: EEN ODE AAN HET VERLEDEN, KLAAR VOOR DE TOEKOMST
Coast is ingetogen en stoer, een ode aan het verleden van de locatie. Naarmate het water dichterbij komt, verandert het karakter van het gebouw. De ramen worden groter en veranderen van positie, van verticaal naar horizontaal. Coast opent zich als het ware voor het IJ. Het licht, de luchten en het uitzicht vallen de woningen binnen door de grote raampartijen. De verspringende balkons brengen Coast tot leven. In Coast is er keuze uit 19 verschillende appartementen die variëren in formaat en ligging.

HET ONTWERP
Powerhouse Company heeft Coast ontworpen. De geveldetails van Coast in zwart aluminium wisselen mooi af met de grote raampartijen. De uitzichtpanorama’s zijn hier straks ongekend. “Aan de straatkant is het gebouw vooral gericht op privacy en aan de IJ-zijde staat het gebouw als het ware open”, Paul Stavert, architect Powerhouse Company.

De entreehal is een statement, waar veel aandacht aan is besteed. Het geoxideerde koper, de bronzen deur, de natuurstenen vloeren en walnoothouten wanden zorgen voor een hoogwaardige en tijdloze uitstraling.

Bruisend Amsterdam Noord
Kaap wordt gebouwd pal aan het IJ, tussen Eye en NDSM, aan het einde van de Grasweg. Met de auto is het centrum van Amsterdam bereikbaar via de IJtunnel en u bent in een paar minuten op de ring A10. Op nog geen 10 minuten fietsen ligt metrostation Noorderpark van de Noord/Zuidlijn. Vanaf daar bent u binnen 15 minuten in het centrum van Amsterdam of op de Zuidas. Of met de pont, die op 5 minuten loopafstand ligt.

Welkom bij KAAP
De unieke locatie van KAAP vraagt om eigentijdse architectuur. De vijf kleinschalige en exclusieve woongebouwen zijn ontworpen door drie verschillende architectenbureaus, elk met hun eigen visie op wonen en design. De architecten van Orange Architects tekenden voor Horn en York, Powerhouse Company ontwierp Coast en Verde en Next Architects namen het ontwerp voor Blanc en het paviljoen voor hun rekening. Het resultaat mag er zijn: vijf iconische woongebouwen met een eigen karakter en signatuur die samen een krachtig geheel vormen.

Eigen grond
KAAP wordt gerealiseerd op eigen grond, zonder erfpacht. Hier heb je dus niet te maken met de jaarlijks terugkerende extra kosten van de erfpachtcanon, dat scheelt enorm.
De vijf gebouwen worden gerealiseerd bovenop een ondergrondse parkeergarage die onder de vijf gebouwen doorloopt. Hier is voor ieder appartement een parkeerplaats gereserveerd. Een extra parkeerplaats kopen kan ook, in de parkeergarage verderop aan de Grasweg.

Comfort en kwaliteit
Alle wanden en de plafonds in de appartementen worden glad afgewerkt. De binnenkozijnen zijn van hout en de deuren zijn stompe deuren.
De inrichting van de keuken en badkamers is inbegrepen bij de koopsom. Een casco-oplevering behoort ook tot de mogelijkheden.

Parkeren
De genoemde prijs is exclusief de verplicht af te nemen parkeerplaats in de parkeerkelder à € 52.500,-. De totale v.o.n. prijs is € 1.402.500,-. Optionele extra parkeerplaatsen zijn te koop in het naastgelegen (bovengrondse) parkeergebouw à € 35.000,- v.o.n.

 

Kenmerken
Bouwnummer 1.2.05, Kaap Coast, Amsterdam
Vraagprijs
  • € 1.350.000 v.o.n.
Beschikbaarheid
  • In overleg
Vertrekken
  • 4 kamers
  • 3 slaapkamers
  • 2 badkamers
Onderhoud
  • Intern: Uitstekend
  • Extern: Uitstekend
Oppervlakten & Inhoud
  • Woonoppervlakte: 146 m²
Type verwarming
  • Vloerverwarming geheel
Buitenruimte
  • Geen tuin
Duurzaamheid
  • Volledig geisoleerd
Documenten
Bouwnummer 1.2.05, Kaap Coast, Amsterdam
Locatie
Bouwnummer 1.2.05, Kaap Coast, Amsterdam
Eten & drinken
118787448_4557671827584148_8928913685051948838_n
01
Adres
Spaarndammerstraat 424,
1013 SZ Amsterdam

Restaurant Freud

Restaurant Freud is meer dan alleen een goed restaurant. Het restaurant is een leerwerk-bedrijf en onderdeel van de sociale onderneming Roads. Dit houdt in dat Restaurant Freud zich ontfermt over psychisch 'kwetsbare' mensen die een afstand hebben tot de arbeidsmarkt. Naast aandacht voor het eten - geïnspireerd door de mediterrane keuken - is er ontzettend veel aandacht en zorg voor mensen: zowel voor het personeel als de gasten. Eenzelfde zorg gaat naar de producten die het restaurant uit kiest, op basis van criteria die "goed zijn voor samenleving en milieu". Mocht je geen tijd hebben om met het bedrijf langs te gaan op de Spaarndammerstraat is er gebruik te maken van de catering of cadeaubonnen voor het restaurant.

347653663_898089261255143_3585709706129854136_n
02
Adres
Haarlemmerplein 43,
1013 HS Amsterdam

Wakuli

Wakuli ontleent aan het Swahili-woord 'wakulima', wat boer betekent. Hier vind je kwaliteitskoffie die op duurzame wijze is verkregen tegen betaalbare prijzen.  Ze halen hun bonen bij kleinschalige boeren die groene productie produceren en roosteren ze op de beste manier mogelijk voor maximale smaak. Je kunt hier alle gebruikelijke koffiesoorten krijgen, evenals heerlijke ijskoffie en nitro cold brew. Last but not least, hebben ze een aantal zoete en hartige lekkernijen beschikbaar, van empanadas tot broodjes en croissants.

downloadgram.org_564914372_17894235000344709_3630296456154424901_n
downloadgram.org_497181374_17874833946344709_1958193185845108435_n
03
Adres
Barentszstraat 171,
1013 NM Amsterdam

Boon & de Koot

Na het succes van Zoldering openden chef Thomas Bron, wijnimporteur Joost Clarijs en sommeliers Job Seuren en Wout Jans met Boon & de Koot een laagdrempelige wijnbar in de Zeeheldenbuurt, zonder in te leveren op kwaliteit. Het menu begint met sterke snacks zoals de oeuf mayo met gepofte knoflook en lavas, slim geserveerd zodat je hem in één hap kunt eten. Daarna volgen verfijnde voorgerechten als rauwe zeebaars met beurre noisette en kalamansi of een grove steak tartaar met radicchio en ansjovis. De echte showsteler is het gerecht van geroosterde doperwtjes met tomatillo, olijf en eidooier, een perfect samenspel van rook, frisheid en romigheid. Binnen heerst een Franse bistrosfeer, buiten nodigt het terras met marmeren tafeltjes en bordeauxrode stoeltjes uit om net zo makkelijk te blijven hangen voor nog een glas.

L1320654-BAKxCLAUDY-BenningGladkova-instaXweb-formaat
04
Adres
Van Diemenstraat 408,
1013 CR Amsterdam

BAK

Prachtig gelegen aan het water in de Amsterdamse houthavens op de derde verdieping van pakhuis Het Veem ligt restaurant Bak. Hier wordt gewerkt met vis van duurzame visserij, vlees van lokale producenten, maar met groente in de hoofdrol. Het menu wisselt dagelijks met de seizoenen en het aanbod van de producenten mee. De wijnkaart bevat een mooie selectie wijnen uit Frankrijk en Italie.

20220414-Cantine-de-Caron-©-Chantal-Arnts-17
20220414-Cantine-de-Caron-©-Chantal-Arnts-268
05
Adres
Pazzanistraat 8,
1014 DB Amsterdam

Cantine de Caron

Cantine de Caron in Westerpark is alweer het vierde restaurant van de bekende chef Alain Caron en zijn zonen. Het restaurant begon een paar jaar geleden als pop-up Grand Caron op het Westergasterrein, maar het werd al snel duidelijk dat ze konden blijven onder de naam Cantine. Binnen deze voormalige fabrieksruimte bevindt zich een brasserie die een warm welkom biedt, of het nu gaat om een snelle lunch of een uitgebreid diner. Of je nu binnen plaatsneemt aan een van de tafels of buiten op het zonovergoten terras met uitzicht over het Westerpark. Op de menukaart ontdek je vertrouwde Franse gerechten met een mediterrane sfeer. Terwijl de wijnkaart schittert met wijnen uit vooraanstaande regio's in heel Frankrijk.

295079637_591004842678920_1576899559534590796_n
289654946_399354438825573_6894201784105698344_n
06
Adres
Van Limburg Stirumstraat 115,
1051 BA Amsterdam

Cafe Beurre

Café Beurre is een laagdrempelige plek waar je zonder reservering altijd welkom bent. Het restaurant heeft een voorliefde voor groenten en boter, en gebruikt geen vlees of vis in hun gerechten. De wijnkaart is samengesteld door voormalig medewerker van Balthazar's Keuken en De Wijnwinkel, en biedt een selectie van Franse en Italiaanse wijnen tegen fatsoenlijke prijzen. Het restaurant heeft ook veel aandacht voor aperitieven en serveert een klassiek Frans hapje van radijs met zelfgemaakte boter van biologische boerderij De Beekhoeve. De menukaart wisselt regelmatig en biedt gul smakende, ongecompliceerde gerechten die uit de losse pols lijken te zijn ontstaan.

Schermafbeelding 2022-05-18 om 18.27.43
07
Adres
Pazzanistraat 39,
1014 DB Amsterdam

Espressofabriek

De Espressofabriek heeft meerdere vestigingen in Amsterdam; bij de Westergas, IJburg en bij Zeeburgereiland. Bij de Espressofabriek kun je de lekkerste koffie, cappuchino, en natuurlijk espresso halen. De uitstraling is hip en industrieel en je kunt zowel binnen als buiten heerlijk zitten. Wat extra leuk is aan deze zaak is dat zij ook een eigen koffiebranderij hebben. In de winkels verkopen zij ook hun eigen producten zodat je ook thuis van een kopje verse koffie kan genieten.

445185908_18352033090103176_6456299625204716557_n
447421480_18352745500103176_8661321314303363375_n
08
Adres
Zandhoek 14,
1013 KT Amsterdam

Tannay

In voorheen de Gouden Reaal introduceert Chef Thomas Demuth, als partner van Familie Caron, restaurant Tannay. Tannay is vernoemd naar de appellatie Coteaux Tannay waar Demuth opgroeide in de Bourgogne en waar zijn vader nog steeds wijn maakt. Je kunt er aan tafel eten, maar er zijn ook plaatsen aan de keuken. na jarenlang in topzaken in Frankrijk te hebben gewerkt kookt Thomas in Amsterdam uit herinneringen die hem voeren vanuit de keuken van zijn moeder in de Bourgogne.  Hij presenteert zijn gerechten in een 5-gangen chef’s menu of à la carte met een wijnkaart die de diepte van de Bourgogne, Loire en Champagne verkent.

346166694_147865054802022_210577611180075131_n
272271185_1086484365472613_8068163084949701923_n
09
Adres
Haarlemmerdijk 138,
1013 JJ Amsterdam

Venu

Venu is in de eerste plaats een moderne co-workingruimte die werkt op afspraak of via een maandelijks lidmaatschap, zodat je altijd verzekerd bent van een plek. Het is prachtig ingericht met een strak, minimalistisch interieur.  Bovenin is het café, waar ze naast heerlijke koffie ook iced matcha lattes en een verfrissende milky oolong iced tea serveren. Ze hebben ook altijd zoete lekkernijen in de aanbieding.

10
Adres
Tweede Nassaustraat,
1052 BJ Amsterdam

Wang’s Flavour

Wang's Flavour, gevestigd in de Tweede Nassaustraat, is een must-visit voor liefhebbers van de Zhejiang-keuken. De frisse en milde smaken van deze keuken komen terug in de originele gerechten op het menu. Hier geen typische Chinese afhaalgerechten, maar juist minder bekende nummers. Wie van pittig houdt, kan kiezen uit een selectie pikante Sichuan-gerechten. Wang's Flavour staat ook bekend om zijn fenomenale geroosterde eend. Naast dineren in het restaurant kun je hier ook bestellen.

242169386_4162434750520584_8156400374067126363_n
11
Adres
Binnen Dommersstraat 15,
1013 HK Amsterdam

Toki

Achter de Haarlemmerdijk vind je Toki, ze serveren hier perfecte koffie gemaakt door gekwalificeerde barista’s die precies weten hoe ze de lekkerste flat whites, espresso’s en gewone koffies maken. Ook serveren ze hier heerlijk bananenbrood en zelfgemaakte Aziatisch getinte salades en broodjes. Het is minimalistisch ingericht maar heeft een gezellige sfeer met een divers publiek. Van mensen die lekker in hun eentje de krant lezen tot gezinnen of stellen, voor iedereen wat wils bij Toki.

Schermafbeelding 2022-09-28 om 16.59.07
12
Adres
Groen van Prinstererstraat 14,
1051 EG Amsterdam

Pendergast

Pendergast is een moderne rokerij geïnspireerd op de cultuur van Kansas City. Bij Pendergast komen kruispunt Amerikaanse en Nederlandse gerechten samen. Ze bieden een selectie van fijne vleeswaren, langzaam gerookt op Hollands fruithout en een seizoensgebonden verse groenten. Alles is huisgemaakt, inclusief de taarten. 

Interieur
13
Adres
Spaarndammerplantsoen 42,
1013 XT Amsterdam

Vakvrouwen

Al 40 jaar een toonaangevend collectief van zelfstandige vrouwen in diverse technische disciplines. Gespecialiseerd in het op maat ontwerpen en vervaardigen van unieke meubelstukken. Of het nu gaat om een handgemaakt meubelstuk of het volledige (her)inrichten van een huis of kantoor. De heldere communicatie, intuïtie, perfectionisme en duurzaamheid vormen de kern van de onderscheidende werkwijze. Ontdek in de winkel of op de website het uitgebreide portfolio met unieke meubelcreaties.

14
Adres
De Wittenkade 111,
1052 AG Amsterdam

Kringloopwinkel Kerk & Buurt

Deze kringloopwinkel is gevestigd in een wel heel bijzondere locatie: de kelder van de Nassaukerk die gebouwd is in jaren ’20 stijl. Die kelder telt aardig wat vierkante meters, en zo kun je dus ook in deze kringloopwinkel alles vinden: van meubels, kleding en boeken tot speelgoed en serviesgoed.

Kunst & cultuur
Schermafbeelding 2022-06-20 om 15.04.08
15
Adres
Planciusstraat 7,
1013 MD Amsterdam

Galerie Onrust

Galerie Onrust werd in 1986 opgericht door Milco Onrust en is tegenwoordig gehuisvest aan de Planciusstraat 9. De lichte en ruime galerie legt de nadruk op de hedendaagse schilderkunst. Boudi Eskens is de huidige eigenaresse en de meeste kunstenaars die zij vertegenwoordigen zijn al vele jaren bij hen, met wie zij talloze prachtige tentoonstellingen en publicaties hebben gemaakt.

mcdonald2021viewToets-wall-HlmpleinA700
16
Adres
Planciusstraat 9-A,
1013 MD Amsterdam

Galerie van Gelder

Van dinsdag tot zondag zijn de deuren van Galerie van Gelder geopend en tonen ze, bij voorkeur, concept gerichte kunst. Jonge en oude, bekende en opkomende kunstenaar zijn in het tentoonstellingsprogramma te vinden, dat bestaat uit tekeningen en objecten maar ook film, performances en installaties.

Boeg
17
Adres
Oostzaanstraat 45,
1013 WG Amsterdam

Museum het Schip

Museum het Schip is een museum over de Amsterdamse school; een kunst- en architectuurstroming uit de vroege 20ste eeuw. Deze stroming is bekend vanwege de sterke woonidealen waarmee zij verbonden is. Het woonblok waarin het museum is gevestigd is misschien wel net zo speciaal als het museum zelf. Bijzonder is het originele postkantoor in het gebouw; het enige postkantoor in heel Nederland dat sinds de jaren 20 onaangetast is gebleven. De sierlijke stijl van architect Michel de Klerk is door het hele gebouw heen te herkennen. In zijn ontwerpen is nagedacht over elk detail.

Het-Ketelhuis
18
Adres
Pazzanistraat 4,
1014 DB Amsterdam

Het Ketelhuis

Het Ketelhuis is een filmtheater dat gevestigd is op het Westergasterrein. Het werd gesticht als broedplek en vertoningsplek voor de Nederlandse filmindustrie in 1999. Er worden zowel artistieke als commerciële speelfilms vertoond, maar ook documentaires en korte films zijn er te bekijken. Het ketelhuis heeft een gezellig en sfeervol café-restaurant waar ze alleen maar vegetarische gerechten serveren. Ze hebben een voordeelmenu als je lunch of diner combineert met een film en in de zomermaanden is er ook een terras.

Gallery
19
Adres
Tussen de Bogen 91,
1013 JB Amsterdam

Elliott Gallery

Als je van fotografie houdt dan ben je bij ElliotHalls aan het goede adres. Het hele jaar door houdt deze galerie uitgebreide tentoonstellingen met het werk van historische en hedendaagse fotografen. Hun selectie van kunstenaars omvat internationaal bekende namen wiens werk regelmatig te zien is in grote musea en bedrijfscollecties. De galerie heeft ook een Prentenkabinet waar klanten, fotografie-experts en liefhebbers op afspraak hun collectie kunnen bekijken. ElliottHalls Gallery laat je kennis maken met een een grote maar ook diverse groep van veelgeprezen fotografen uit de internationale fotografiegemeenschap.

IMG_3630-768×512-1
20
Adres
Haarlemmerdijk 159,
1013 KH Amsterdam

The Movies

Bioscoop The Movies bestaat al sinds 1912. Het wordt vaak de oudste bioscoop van Amsterdam genoemd maar formeel is dat bioscoop de Uitkijk, die een jaar eerder zich heeft ingeschreven. In haar eerste jaren werd de bioscoop gebruikt als kleinschalige buurtcinema en pas na de Tweede Wereldoorlog werden er ook films voor groter publiek getoond. Vandaag de dag is het één van de populairste arthouse bioscopen in Amsterdam. Er komen ook veel bezoekers naar The Movies om het historische interieur te bewonderen. De bioscoop is gevestigd in een 17e eeuws pand aan de Haarlemmerdijk en het originele art-deco interieur is in goede staat gebleven. Een bezoek aan deze bioscoop voelt als een reis door de tijd.

Boodschappen
21
Adres
Haarlemmerplein,
1013 HS Amsterdam

Boerenmarkt Haarlemmerplein

De boerenmarkt Haarlemmerplein is er elke woensdag van 10:00 tot 17:00. Ze verkopen verse producten. Op de markt worden voornamelijk verse producten verkocht. Bijzonder is dat achter de kramen vaak de mensen staan die bij de productie van het voedsel zijn betrokken. Dat maakt de markt even net wat anders en ook nog eerlijker. Als je vragen over voedsel of de productie ervan hebt, kan je deze meteen aan de experts stellen wat een bezoekje aan de Boerenmarkt Haarlemmerplein, net wat specialer maakt!

22
Adres
Pazzanistraat 7,
1014 DB Amsterdam

Sunday Market

Elke eerste zondag van de maand is er Sunday Market Westergas. Een hippe funky shopping plek voor veel verschillende dingen. Art, fashion, design, vintage & deli, eten uit alle werelddelen, muziek en nog veel meer. Het Westerpark is door sommigen tot het leukste park van Amsterdam genoemd, en mede dankzij deze markt snappen wij waarom. Tip: in de lente staat de bloesem hier prachtig in de bomen, de moeite waard om te gaan kijken!

23
Adres
Bentinckstraat 26,
1051 GL Amsterdam

Bella Storia

Bella Storia bestaat uit drie delen: de trattoria, de pizzeria en de alimentari. De trattoria is het restaurant, de pizzeria biedt pizza's uit de steenoven en afhaalmogelijkheden en de alimentari is een winkel met Italiaanse producten. Hier vind je parmezaan, pecorino, worst, wijn en belegde broodjes. De pizzeria serveert heerlijke burrata en pizza in Napolitaanse stijl. Met een authentieke Italiaanse sfeer en uitstekende pizza, maken ze dagelijks het deeg met een speciaal fermentatieproces voor lichtere en beter verteerbare pizza's.

downloadgram.org_589908876_17882133516427275_6406034947351029950_n
24
Adres
Haarlemmerdijk 125,
1013 KE Amsterdam

Scarpetta

Scarpetta is een neighbourhood pasta bar, geïnspireerd op de sfeer van klassieke Italiaanse trattoria’s, met een moderne twist voor take-away en delivery. De naam verwijst naar fare la scarpetta: het ritueel waarbij je met een stukje brood de laatste saus van je bord haalt, een gebaar van echte liefde voor eten. Op de kaart staan verse pasta’s zoals gnocchi al pomodoro, tagliatelle al ragù bolognese, rigatoni all’amatriciana en tagliolini ai funghi, allemaal bereid om direct te eten of mee te nemen in glazen potten. Naast hartige gerechten is er ook ruimte voor klassiekers als tiramisù, perfect om de maaltijd af te sluiten.

Samengesteld; een collectie ‘landelijk wonen’ in en om Amsterdam

Samengesteld; een collectie ‘landelijk wonen’ in en om Amsterdam

Stadspaleizen in de Willemsparkbuurt

Stadspaleizen in de Willemsparkbuurt

Japandi

Japandi

Onlangs bekeken
Bekijk het overzicht

Deze site maakt gebruik van cookies.

Voor welke cookies geef je akkoord?