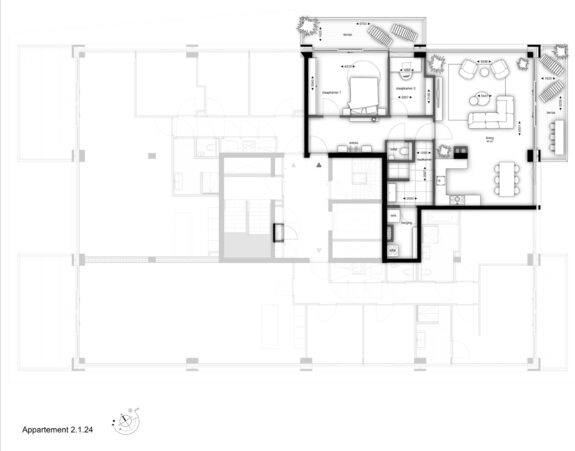
Horn 2.1.24 1e verdieping
Deze woning van 96 m2 op de eerste verdieping heeft twee terrassen van in totaal ca. 19 m2 met ochtend- en middagzon, uitkijkend over het brede water van het Tolhuiskanaal. De ruime living is door het gebruik van veel glas heerlijk licht.

Kaap, wonen aan het IJ
Een unieke plek aan het IJ met een schitterend uitzicht dat geen moment hetzelfde is. Er vaart altijd wel een zeiljacht, veerpont of cruiseschip voorbij, met op de achtergrond de skyline van de stad. Kaap biedt een combinatie van rust en levendigheid, het inspireert en geeft energie. Het is ook een plek in beweging. De komende jaren wordt het Oeverpark aangelegd, een groen wandelzone langs het IJ, met daarin een bijzonder paviljoen dat ruimte biedt voor een restaurant. KAAP bestaat uit vijf karaktervolle gebouwen met panoramische appartementen en uitzicht op het IJ. De appartementen hebben royale buitenruimtes die uitermate geschikt zijn om eindeloos te genieten van zon, licht en ruimte.

HORN: ROBUUST EN COMFORTABEL
Horn is een gebouw vol contrasten: van buiten is het stoer en robuust, binnen comfortabel en luxe, licht en ruim.
Het ontwerp van Horn met 13 exclusieve appartementen is intuïtief, avontuurlijk en uitnodigend. Horn is ontworpen door het Rotterdamse architectenbureau Orange Architects.

Parkeren
De genoemde prijs is exclusief de verplicht af te nemen parkeerplaats in de parkeerkelder à € 52.500,-. De totale v.o.n. prijs is € 827.500,-. Optionele extra parkeerplaatsen zijn te koop in het naastgelegen (bovengrondse) parkeergebouw à € 35.000,- v.o.n.

De onderste twee etages van Horn zijn open en langgerekt. Het uitzicht op het IJ krijgt alle ruimte. Het symmetrische ontwerp van de raampartijen zorgen voor een rustgevende cadans en zet het gebouw stevig op de grond. De bovenste etages verwijzen naar het industriële verleden van deze plek. Stoere en robuuste cortenstalen platen worden onderbroken door grote raampartijen en besloten terrassen.

De indeling van de appartementen is net zo levendig als de buitenkant: ieder appartement heeft leuke hoekjes en plekjes die net even anders zijn. Wat ook verschilt is het aantal appartementen per verdieping. Horn biedt dus een scala aan appartementen, die een ding gemeen hebben: ze zijn allemaal bijzonder.

Bruisend Amsterdam Noord
Kaap wordt gebouwd pal aan het IJ, tussen Eye en NDSM, aan het einde van de Grasweg. Met de auto is het centrum van Amsterdam bereikbaar via de IJtunnel en u bent in een paar minuten op de ring A10. Op nog geen 10 minuten fietsen ligt metrostation Noorderpark van de Noord/Zuidlijn. Vanaf daar bent u binnen 15 minuten in het centrum van Amsterdam of op de Zuidas. Of met de pont, die op 5 minuten loopafstand ligt.

Welkom bij KAAP
De unieke locatie van KAAP vraagt om eigentijdse architectuur. De vijf kleinschalige en exclusieve woongebouwen zijn ontworpen door drie verschillende architectenbureaus, elk met hun eigen visie op wonen en design. De architecten van Orange Architects tekenden voor Horn en York, Powerhouse Company ontwierp Coast en Verde en Next Architects namen het ontwerp voor Blanc en het paviljoen voor hun rekening. Het resultaat mag er zijn: vijf iconische woongebouwen met een eigen karakter en signatuur die samen een krachtig geheel vormen.

Eigen grond
KAAP wordt gerealiseerd op eigen grond, zonder erfpacht. Hier heb je dus niet te maken met de jaarlijks terugkerende extra kosten van de erfpachtcanon, dat scheelt enorm.
De vijf gebouwen worden gerealiseerd bovenop een ondergrondse parkeergarage die onder de vijf gebouwen doorloopt. Hier is voor ieder appartement een parkeerplaats gereserveerd. Een extra parkeerplaats kopen kan ook, in de parkeergarage verderop aan de Grasweg.

Comfort en kwaliteit
Alle wanden en de plafonds in de appartementen worden glad afgewerkt. De binnenkozijnen zijn van hout en de deuren zijn stompe deuren.
De inrichting van de keuken en badkamers is inbegrepen bij de koopsom. Een casco-oplevering behoort ook tot de mogelijkheden.
 

Kenmerken
Bouwnummer 2.1.24, Kaap Horn, Amsterdam
Vraagprijs
  • € 775.000 v.o.n.
Beschikbaarheid
  • In overleg
Vertrekken
  • 3 kamers
  • 2 slaapkamers
  • 1 badkamer
Onderhoud
  • Intern: Uitstekend
  • Extern: Uitstekend
Oppervlakten & Inhoud
  • Woonoppervlakte: 96 m²
Type verwarming
  • Vloerverwarming geheel
Buitenruimte
  • Geen tuin
Duurzaamheid
  • Volledig geisoleerd
Documenten
Bouwnummer 2.1.24, Kaap Horn, Amsterdam
Locatie
Bouwnummer 2.1.24, Kaap Horn, Amsterdam
Eten & drinken
01
Adres
Leen Jongewaardkade 41,
1031HS Amsterdam

Pelusa

Pelusa, wat 'pluisje' betekent, is vernoemd naar de koosnaam van niemand minder dan Maradona. Het is een eerbetoon aan de ultieme Argentijnse levensgenieter. Deze gastro buurtkroeg biedt Argentijnse Parilla-gerechten, bereid door chef-kok Steven (voormalig chef bij Lastage en C). De gerechten worden gecombineerd met een selectie van wild gefermenteerde bieren, natuurlijke wijnen en ciders, zorgvuldig geselecteerd door Ruud (voorheen werkzaam bij 't Arendsnest en Craft & Draft).

Schermafbeelding 2023-01-25 om 10.36.18
02
Adres
Chrysantenstraat 4,
1031 HT Amsterdam

Bacalar

Deze taqueria is gehuisvest in een voormalige garage op een industrieterrein in Amsterdam-Noord. In een rauwe setting kookt de belgische chef Joachim de Buck, originele Mexicaanse gerechten. Er is een breed en gevarieerd aanbod aan taco’s, tostados en ander hartig en pittig lekkers. Gecombineerd met jaren 90 muziek, ciders, mezcal, zuurbieren en natuurwijnen is dit een spannende avond uit.

326947522_754814202214238_3561426501965176378_n
315729265_184085624205825_4783509406318105826_n
03
Adres
Asterweg 22,
1031 HP Amsterdam

Café Restaurant Metro

Van 's ochtends tot 's avonds werkt hier de bakkerij en de keuken samen om eenvoudige gerechten te bereiden met de nadruk op goede producten en groenten. Chef Rients de Jong (ex As, Toscanini en Entrepot) kookt seizoensgebonden en duurzaam met vertrouwde bereidingen. Je kunt genieten van een zeer betaalbaar driegangen dagmenu, of je kunt à la carte kiezen uit een aantal gerechten, voorafgegaan door enkele snacks. Bij de grote betonnen bar is er altijd plek voor een drankje of hapje. De wijnkaart heeft een zuivere en kwalitatieve stijl met veel natuurlijk gemaakte wijnen.

 

315988302_5760849594036211_845228796521491534_n
04
Adres
Melkdistelstraat 94,
1031 JX Amsterdam

Papa Thang

Papa Thang is het ideaal buurtrestaurant. Chef Thang Pham heeft de hele wereld over gereisd en overal gekookt, maar heeft uiteindelijk toch besloten om terug te gaan naar zijn eigen roots; namelijk Vietnamese streetfood. De gerechten  zijn eenvoudig, goed en betaalbaar. Oftewel een Vietnamese bistro met een gevarieerde kaart.

05
Adres
Westerdoksdijk 715a,
1013 BX Amsterdam

Café Westerdok

Café Westerdok was oorspronkelijk een havencafé. Tegenwoordig moet je er zijn als je van bier houdt. Ze schenken wel 86 verschillende soorten.

69540178_2484999358232281_2103779134537728000_n
06
Adres
Van der Pekstraat 91,
1031 CV Amsterdam

Kannibalen en Paradijsvogels

Kannibalen en Paradijsvogels is een Indisch buurt-eethuis waar écht gekookt wordt. Het draait hier allemaal om Indisch en Moluks eten voor zowel kannibalen als paradijsvogels. Voor de kannibalen heb je heerlijke vleesgerechten en voor de paradijsvogels de lekkerste vegetarische gerechten. Hoewel de keuken dus is gebaseerd op de traditionele Indonesische keuken, gaat het menu ook met z’n tijd mee. Zo is er superlekkere veganistische spekkoek en is het vlees van goede afkomst.

download
07
Adres
Korte Papaverweg 4,
1032 KB Amsterdam

Café de Ceuvel

Ontsnap aan de stadse drukte en ontdek de Ceuvel in Amsterdam-Noord. Hier bieden ze hoofdzakelijk een vegetarisch menu aan met lokale lekkernijen. Alles is doordacht: veel hergebruik en omringd door bedrijven die de wereld verbeteren. Het is lastig een betere plek te vinden om van een zonnige dag te genieten dan deze bar in Noord. De hele ambiance heeft een bohemian-uitstraling en er is zowel binnen als buiten volop zitgelegenheid.

366358950_18232095868238032_5598169413384369124_n
08
Adres
Docklandsweg 3,
1031 CD Amsterdam

Wijbar Vindict

Richard Dietz (39) en Roderick Meijer (35) van Vindict ademen passie voor wijn. Met twee succesvolle wijnwinkels op hun naam, hebben ze nu samen met chef-kok Samir Doueiri (56) en sommelier Jan-Jaap Altenburg (31) wijnbar Vindict geopend. De bar, gemaakt van acaciahout uit wijngaard Dassemus in Chaam, straalt warmte en authenticiteit uit. Geniet van bijpassende gerechten, zoals escargots met knoflook en kruidenboter of Nederlandse garnalencocktail met avocado en citroen, vers bereid door chef-kok Doueiri.  Op de wijnkaart, is een selectie te zien van de meer dan vijftig wijnen die per glas worden geschonken en meer dan achthonderd wijnen per fles. Ook is er de mogelijkheid om een proeverijtje te doen of om voor 7,50 euro een blinde wijn te bestellen in een zwart glas. Benoem je de druif juist, dan is het glas van het huis.

445185908_18352033090103176_6456299625204716557_n
447421480_18352745500103176_8661321314303363375_n
09
Adres
Zandhoek 14,
1013 KT Amsterdam

Tannay

In voorheen de Gouden Reaal introduceert Chef Thomas Demuth, als partner van Familie Caron, restaurant Tannay. Tannay is vernoemd naar de appellatie Coteaux Tannay waar Demuth opgroeide in de Bourgogne en waar zijn vader nog steeds wijn maakt. Je kunt er aan tafel eten, maar er zijn ook plaatsen aan de keuken. na jarenlang in topzaken in Frankrijk te hebben gewerkt kookt Thomas in Amsterdam uit herinneringen die hem voeren vanuit de keuken van zijn moeder in de Bourgogne.  Hij presenteert zijn gerechten in een 5-gangen chef’s menu of à la carte met een wijnkaart die de diepte van de Bourgogne, Loire en Champagne verkent.

10
Adres
NDSM-Plein 102,
1033 WB Amsterdam

Café-restaurant Noorderlicht

Café-restaurant Noorderlicht is een bezienswaardige plek voor iedereen die even wil ontsnappen aan de drukte van de stad. De insteek van Noorderlicht is cultureel en duurzaam: zo bieden ze naast een lekkere, gezonde en verantwoorde menukaart ook een sfeervol podium aan muzikanten en creatievelingen. Ook het interieur van het café zijn meestal gebaseerd op hergebruikte materialen of zijn tweedehands. De industriële, creatieve omgeving van de NDSM-werf sluit hier goed bij aan.

L1320654-BAKxCLAUDY-BenningGladkova-instaXweb-formaat
11
Adres
Van Diemenstraat 408,
1013 CR Amsterdam

BAK

Prachtig gelegen aan het water in de Amsterdamse houthavens op de derde verdieping van pakhuis Het Veem ligt restaurant Bak. Hier wordt gewerkt met vis van duurzame visserij, vlees van lokale producenten, maar met groente in de hoofdrol. Het menu wisselt dagelijks met de seizoenen en het aanbod van de producenten mee. De wijnkaart bevat een mooie selectie wijnen uit Frankrijk en Italie.

78931210_504476646943592_9031334492748382208_n
12
Adres
Papaverweg 15A,
1032 KE Amsterdam

De Klaproos

De Klaproos is een pop-up pizza en pasta restaurant in Amsterdam-Noord. In de grote, industriële ruimte kan je krokante pizza’s eten uit de steenoven eten en natuurwijnen drinken. Naast pizza en pasta staan er ook andere klassieke Italiaanse gerechten op de kaart zoals heerlijke antipasti. De Klaproos leent zich daarnaast als expositie- en feestlocatie en ook kan je er pizza’s afhalen.

IMG_3091_1024x1024
IMG_3130_1024x1024
13
Adres
Van der Pekstraat 1,
1031 CN Amsterdam

Café Keppler

Café Keppler is een ambachtelijk buurtcafé in Amsterdam-Noord. Het is vernoemd naar de voormalig directeur van de Gemeentelijke Woningdienst Amsterdam, Arie Keppler en bevindt zich toepasselijk in een van de mooie panden van de Van der Pek buurt, een van de tuinsteden welke in opdracht van Keppler is gebouwd. Het eten bij Keppler is allemaal zelfgemaakt. Je kan er terecht voor de beste omeletten van Amsterdam, maar ook heerlijke borrelplanken en diner in de avonduren. Het brood is zelfgebakken en de koffie zelf gebrand en dat kan je proeven. De producten zijn ook te koop in het winkeltje naast het café.

Schermafbeelding 2023-01-25 om 10.39.23
Schermafbeelding 2023-01-25 om 10.39.43
14
Adres
Papaverweg 11,
1032 KD Amsterdam

Cornerstore

Aan de Papaverweg ligt de Corner Store, een nieuwe parel in Noord van onder andere het team van de Klaproos en de Binnenvisser. Gebaseerd op muziekbarretjes zoals je die in Japan ziet, staan hier kasten vol met platen. Deze gastrobar heeft muziek, natuurwijnen en een menu op basis van lokale ingrediënten maar dan wel met Aziatische smaken bereidt. Proef ook zeker het huisaperitief van yuzu en sake.

LOOK-OUT-3-73-van-95
15
Adres
T.T. Neveritaweg 59,
1033 WB Amsterdam

Pllek

Pllek ligt dichtbij het NDSM-werf in Noord aan het water. Alles wat ze serveren is zo lokaal mogelijk. Het heeft een grote binnen en buitenruimte. In de zomer kan je dan ook lekker chillen aan het water met blote voeten in een strandstoel of liggend in een zitzak ervaar je een eilandgevoel. De keuken is de hele dag open voor ontbijt, lunch en diner. Neem bijvoorbeeld de gestoomde makreel met dille-mierikswortel, zoetzure groenten en gefrituurde kappertjes of ga voor een groente tajine met herfstgroente, parelcouscous, harissa, dukkah, zhug en een rodekoolsalade. Geregeld zijn er bij Pllek yogasessies, live muziek optredens en andere evenementen.

downloadgram.org_564914372_17894235000344709_3630296456154424901_n
downloadgram.org_497181374_17874833946344709_1958193185845108435_n
16
Adres
Barentszstraat 171,
1013 NM Amsterdam

Boon & de Koot

Na het succes van Zoldering openden chef Thomas Bron, wijnimporteur Joost Clarijs en sommeliers Job Seuren en Wout Jans met Boon & de Koot een laagdrempelige wijnbar in de Zeeheldenbuurt, zonder in te leveren op kwaliteit. Het menu begint met sterke snacks zoals de oeuf mayo met gepofte knoflook en lavas, slim geserveerd zodat je hem in één hap kunt eten. Daarna volgen verfijnde voorgerechten als rauwe zeebaars met beurre noisette en kalamansi of een grove steak tartaar met radicchio en ansjovis. De echte showsteler is het gerecht van geroosterde doperwtjes met tomatillo, olijf en eidooier, een perfect samenspel van rook, frisheid en romigheid. Binnen heerst een Franse bistrosfeer, buiten nodigt het terras met marmeren tafeltjes en bordeauxrode stoeltjes uit om net zo makkelijk te blijven hangen voor nog een glas.

Kunst & cultuur
Dimensional-Sampling-1-by-Yuxi-Cao-James.-Part-of-the-inaugural-exhibition-at-Nxt-Museum-_Shifting-Proximities_-opening-29-August.-©-Peter-Tijhuis-WP
17
Adres
Asterweg 22,
1031 HP Amsterdam

Nxt Museum

Nxt Museum laat je opgaan in de mediakunst. Moderne technologieën worden gebruikt voor kunstvormen en dit levert een hele speciale vorm van kunst op. Bewonder bijvoorbeeld de kunstwerken 'Adrenalin or Zen' en 'What is happening to my face' of ervaar de kosmos en het zwarte gat. Je kan door veel kunstwerken heenlopen en de kunstenaars slagen erin om je het echt te laten ervaren. De kunstwerken prikkelen al je zintuigen door de combinatie van geluid, licht en beweging. Het museum geeft je de kans om te reflecteren op de huidige technologische ontwikkelingen en geeft een moment van bezinning in een realiteit die alsmaar sneller doorontwikkeld. Door het gebruik van grote ruimtes en veel verschillende soorten 'visuals' slagen ze erin een hele nieuwe vorm van kunst tentoon te stellen.

Schermafbeelding 2022-06-20 om 15.19.32
18
Adres
Westerdok 824,
1013 BV Amsterdam

The Ravestijn Gallery

The Ravestijn Gallery werd in 2012 in Amsterdam opgericht door Jasper Bode en Narda Van 't Veer met een focus op onderzoekende en provocerende benaderingen van hedendaagse fotografie. En daarin zijn ze geslaagd. De galerie vertegenwoordigd verschillende nationale en internationale experimentele kunstenaars die het vermogen van fotografie op allerlei verschillende manieren laten zien. Deze moderne benadering van de hedendaagse fotografie maakt de tentoonstellingen van De Ravestijn Gallery zeer interessant. Maar, daarnaast zijn de kunstwerken ook een groot esthetisch plezier om naar te kijken en misschien zelfs een goede inspiratiebron voor de aankleding van een nieuw huis?

WELIKEART_ARTROTTERDAM_2022_Fotograaf-Almicheal-Fraay-2048×1365
19
Adres
Leliëndaalstraat 4,
1013 BP Amsterdam

Stichting We Like Art

Het motto van Stichting We Like Art is ‘Kunst is voor iedereen!’. In de knusse galerie aan de Leliëndaalstraat 4 in Amsterdam kunnen beginnende kunstkopers maar ook ervaren verzamelaars hun hart ophalen en bijzonder werk van toonaangevende kunstenaars bekijken (en voor een vriendelijke prijs kopen). Daarnaast staat hun vrolijke website welikeart.nl vol met interessante kunstenaarsinterviews.

Interieur
129956512_4014002428644020_3378764216201953588_n
20
Adres
Distelweg 85,
1031 HD Amsterdam

De Lokatie Distelweg

In 2020 verkocht De Lokatie maar liefst 858.000 kilo aan spullen vanuit haar drie Amsterdamse kringloopwinkels op Buikslotermeerplein, Distelweg en de Eerste Oosterparkstraat. Alles tweedehands, dus ontzettend duurzaam. De Lokatie op de Distelweg is maar liefst 2.000 vierkante meter en daarmee een van de grootste van Amsterdam.

294575506_459142912887146_4918935355523689227_n
21
Adres
Van der Pekstraat 107h,
1031 CW Amsterdam

Treasure Depot

Bij Treasure Depot aan de Van der Pekstraat kan je terecht voor echte tweedehandse schatten. Na 15 jaar op allerlei markten te hebben gestaan, vonden eigenaren Emmanuelle en Frank het tijd om een echte winkel te openen. Het plafond is volgehangen met de mooiste retro lampen, maar ze hebben nog veel meer; sieraden, meubels, zonnebrillen en nog meer hebbedingen. Kijk je ogen uit en neem als je geluk hebt een nieuw hebbedingetje of een mooie lamp mee naar huis.

29694838_1713558705394111_1905889315238445056_n
PIEN-EVENT_bewerkt-kopie
22
Adres
Papaverhoek 23,
1032 JZ Amsterdam

Wdstck Gallery

Wdstck is gevestigd in Amsterdam Noord en biedt een scala aan multidisciplinaire objecten met een uitgesproken esthetiek aan die elk een eigen verhaal vertellen. Bij Wdstck zoeken ze het evenwicht tussen kunst en design, en brengen ze voorwerpen met een ziel in het dagelijks leven. Ze koesteren het temperament van elk materiaal en maken objecten met de hand om het verhaal te benadrukken dat de natuur te bieden heeft.

Boodschappen
324559017_893438495115335_1986839851957670039_n
23
Adres
Docklandsweg 3,
1031 KN Amsterdam

Vindict wine

In 2007 begon Vindict als een online wijnwinkel. Vijf jaar later, in 2012, openden ze hun eerste fysieke winkel op de Elandsgracht in het centrum van Amsterdam. In december 2022 verwelkomden ze hun tweede vestiging in de nieuwe stadswijk Aan het IJ in Amsterdam Noord. Vindict onderscheidt zich met een sterke focus op Europese wijnen, en in de winkel is er zelfs een shop-in-shop van Bob Wijn, gespecialiseerd in Nederlandse wijnen. Met ongeveer 100 Nederlandse en 700 internationale wijnen biedt Vindict een gevarieerde selectie voor wijnliefhebbers.

Schermafbeelding 2023-01-23 om 13.06.29
24
Adres
Van der Pekstraat 72,
1031 EE Amsterdam

Chateau Karlito

Het verscholen kleine winkeltje Chateau Karlito aan de Van der Pekstraat verkoopt voornamelijk natuurwijn, maar ook sake, tapijten, keramiek en nog veel meer. Vernoemd naar de eigenaresse Karlijn, is dit een plek waar je veel moois en lekkers kan proeven, bekijken en luisteren; waaronder jazz, hele goede sake en koffie. Toch is de selectie aan natuurwijn, met wijnen uit alle windstreken, het hoogtepunt van de winkel. Probeer ook het (echte!) Brabantse worstenbroodje en de amandelcroissant.

DSC6886-scaled
25
Adres
Van der Pekplein 1b,
1031 GZ Amsterdam

Fromagerie Abraham Kef

Bij Fromagerie Abraham Kef haal je de lekkerste kazen. Al in 1953 opende Abraham Kef een winkel in het centrum van Amsterdam. Als echte kaasliefhebber met buitengewone verhalen, bleek Kef een pionier op het gebied van kaas en liet hij een blijvende indruk achter. In 2017 opende er ook een Fromagerie Abraham Kef in Amsterdam-Noord, waar je naast de kaaswinkel ook een proeflokaal hebt. Hier kan alle kazen proeven in combinatie met een assortiment aan bijpassende (natuur)wijnen.

Amsterdam, een paradijs voor museumliefhebbers.

Amsterdam, een paradijs voor museumliefhebbers.

Al veertig jaar is Toscanini een begrip in Amsterdam. Maud Moody, een van de oprichters, vertelt hoe het allemaal begon.

Al veertig jaar is Toscanini een begrip in Amsterdam. Maud Moody, een van de oprichters, vertelt hoe het allemaal begon.

Test

‘Ruimte is het mooiste meubel’ Ton de Gier (1925 – 1980)

Onlangs bekeken
Bekijk het overzicht

Deze site maakt gebruik van cookies.

Voor welke cookies geef je akkoord?