Zinranapad 19

Ervaar zelf de ruimte en het uitzicht - bel of mail voor een afspraak voor een persoonlijke rondleiding op de bouwplaats.

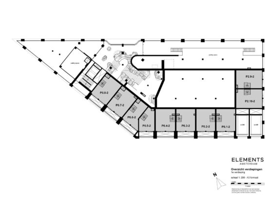
Op de eerste en tweede verdieping van Elements wordt Twin Loft P2.9 gerealiseerd, met een woonoppervlak van circa 74 m² en een balkon van circa 7 m². De entree bevindt zich aan de gemeenschappelijke binnentuin, een groene en rustige plek die direct bij thuiskomst een gevoel van ontspanning geeft. Vanuit de hal, waar ook de techniekruimte is gesitueerd, loopt de route door naar de lichte living met hoge ramen en een schuifpui naar het balkon. De keuken is ontworpen door Leicht Kitchens en uitgerust met hoogwaardige voorzieningen, waaronder een Quooker-kraan en een inductiekookplaat met geïntegreerde afzuiging. Het ontwerp kan worden aangepast naar persoonlijke voorkeur, met ruimte voor eigen materiaal- en kleurkeuze of slimme gebruiksoplossingen. Een verdieping lager liggen twee slaapkamers aan de oostzijde van het gebouw. Beide kamers zijn voorzien van schuifpuien, waardoor de ochtendzon rijkelijk binnenvalt. De badkamer wordt afgewerkt met zandkleurige matte tegels in groot formaat, gecombineerd met deels strak gestucte wanden voor een eigentijdse uitstraling. Hier bevinden zich een inloopdouche, ligbad en dubbele wastafel. Het separate toilet en de berging liggen eveneens op deze etage.

Erfpacht

Bij Elements is sprake van het nieuwe eeuwigdurende erfpachtstelsel. De koopsom is exclusief jaarlijkse erfpachtcanon van € 6.389,- . De jaarlijkse canon is in principe fiscaal aftrekbaar.

Parkeergarage

Bij een appartement kan een parkeerplaats worden gekocht in de stallingsgarage. De prijs van een parkeerplaats is 65.000 euro exclusief canon en VvE bijdrage.

VvE bijdrage

Voor de VvE is een concept begroting opgesteld. De indicatie van de maandbijdrage voor een woning is 2,90 euro per m2 woonoppervlakte en circa 130 euro per parkeerplaats.

Elements living

Aan de Amstel, in het Amstelkwartier naast het Bella Vistapark, wordt Elements gerealiseerd: een prijswinnend gebouw met een uniek, vloeiend ontwerp zonder scherpe hoeken en met opvallende bronskleurige lijnen. Het gebouw is ontworpen in balans met zon, daglicht, wind en energieopwekking en biedt daarmee een optimale woonbeleving. De toren van 70 meter herbergt zeventig koop- en zeventig huurwoningen, aangevuld met voorzieningen die het wonen verrijken. Bewoners genieten van een zwembad met uitzicht op de Amstel, groene daktuinen, co-working spaces en een sfeervolle bar. Elements is bovendien klimaatpositief: zonnepanelen in de balkonranden leveren duurzame energie, hout met verantwoorde herkomst verlaagt de CO?-footprint en de groene daktuinen zorgen voor verkoeling in de stad. Dankzij de gunstige ligging is het gebouw binnen vijf minuten bereikbaar vanaf de A2, Station Amsterdam Amstel en metrostation Spaklerweg.

Selecteer je favoriete woning(en) in de woningzoeker op de website van Elements.

Kenmerken
Bouwnummer 2.9, Zinranapad 19, Amsterdam
Vraagprijs
  • € 755.000 v.o.n.
Beschikbaarheid
  • In overleg
Vertrekken
  • 3 kamers
  • 2 slaapkamers
  • 1 badkamer
Onderhoud
  • Intern: Uitstekend
  • Extern: Uitstekend
Oppervlakten & Inhoud
  • Woonoppervlakte: 74 m²
Installaties
  • Balansventilatie
  • Glasvezel kabel
  • Lift
  • Zonnepanelen
Type verwarming
  • Vloerverwarming geheel
Buitenruimte
  • Geen tuin
Duurzaamheid
  • Volledig geisoleerd
Documenten
Bouwnummer 2.9, Zinranapad 19, Amsterdam
Locatie
Bouwnummer 2.9, Zinranapad 19, Amsterdam
Eten & drinken
Schermafbeelding 2022-05-18 om 16.12.54
Schermafbeelding 2022-05-18 om 16.11.18
01
Adres
Spaklerweg 10A,
1096 BA Amsterdam

George Marina

George Marina is een elegant restaurant gevestigd langs het water van de Amsterdamse Amstel. Het is dé plek om even het hectische stadsleven te ontvluchten en bij te komen in een waterrijke omgeving. Als het fris is buiten kun je binnen genieten van het prachtige interieur met een marmeren bar en spectaculaire trappen. In de zomer kun je heerlijk buiten zitten op het terras. Rondom het restaurant zijn ook veel ligplaatsen voor boten waardoor het bijna lijkt alsof je je in de Côte d'Azur bevindt. George Marina is bekend vanwege de heerlijke visgerechten, zoals verse oesters, maar je kunt hier ook een lekkere steak of burger bestellen.

img-2637
73cce179-b128-4a93-8c38-06e643cde2b7
02
Adres
Amstelboulevard 1,
1096 HH Amsterdam

Ode aan de Amstel

Ode aan de Amstel bevindt zich in het voormalige restaurant Riva. Gelegen aan de Amstel biedt dit restaurant een prachtig uitzicht over rivier de Amstel; een van de levensaders van de stad Amsterdam. Het interieur is stijlvol met warme kleuren en robuuste materialen. Op de all-day dining kaart vind je allerlei heerlijke gerechten, waarvan een aantal klassiekers of verrassende gerechten met een Aziatische twist. Als het lekker weer is, kun je op het terras heerlijk aan het water zitten. Dit restaurant is echt een verborgen parel in Amsterdam.

362634750_18375989929025619_8839326894748864225_n
03
Adres
Trompenburgstraat 111,
1079 TV Amsterdam

Café Remouillage

'Complex simplicity, is our way of less is more' staat op de website van deze hidden gem. Het woord café is enigszins misleidend. Jonathan Sparber (o.a Toscanini, Vermeer, Entrepot) zegt hier over; ‘Ik noem het café omdat ik wil dat mensen ook spontaan langs kunnen komen om een hapje te eten.' Jonathan kookt alles van het beest, niets wordt weggegooid. De wijnkaart met een mooie selectie producenten is voornamelijk biologisch.

372532125_826054012307328_5502849765298475876_n
04
Adres
Lekstraat 11,
1079 EK Amsterdam

Utage Sake Bar

Utage Sake Bar is nieuwe en tevens Amsterdamse primeur. Utage betekent 'banket' in het Japans, oftewel een plek waar vrienden samenkomen en de sake rijkelijke vloeit. De uitgebreide sake-selectie biedt voor elk budget en smaak wat wils. Op de menukaart staan lekkernijen als karaage, gyoza, Japanse pickles en ook aubergine met miso, desserts en tal van vegetarische opties.

Schermafbeelding 2022-05-18 om 16.05.39
Schermafbeelding 2022-05-18 om 16.06.07
05
Adres
Fizeaustraat 2,
1097 SC Amsterdam

The Lobby

The Lobby is onderdeel van Hotel V; een 4-sterren hotel in Amsterdam-Oost op loopafstand van het Amstelstation. In dit eclectische restaurant kun je de hele dag door heerlijk zitten en genieten van de een ontbijt, lunch, diner of borrel. Op de menukaart staan vele gerechten met internationale invloeden. Als ontbijt kan je de heerlijke wentelteefjes bestellen en voor het diner kun je gerechten proberen als parelhoen met pastinaak-ravioli of topinamboer met geitenkaas. Door de fijne en gastvrij sfeer voelt The Lobby bijna als een woonkamer; je zou hier wel de hele dag willen blijven zitten.

329812250_769176067851048_377976625447319799_n
06
Adres
Schollenbrugstraat 8,
1091 EX Amsterdam

Troef

Raymond Plat (voormalig souschef van 212), Niels Leijssenaar (restaurantmanager bij Ron Blaauw), Willem Alberts en Roderick Kunst (mede-eigenaren van Escobar) bundelen hun krachten en beginnen samen restaurant Troef.  De mannen willen een huiselijke sfeer creëren en serveren lekker eten zonder te veel poespas. Het menu wordt gedomineerd door klassieke Franse en Italiaanse gerechten. Als voorgerecht kun je onder andere kiezen voor ansjovis en sardientjes, oesters met beurre blanc of krokante kalfswang met oestercrème. Als hoofdgerecht zijn er opties zoals kreeft met antiboisesaus en schuim van bisque of ribeye.

 

IMAGE@2x
home_slider_1
07
Adres
Rijnstraat 51,
1078 PZ Amsterdam

Yuan's Hot Pot

Hotpot is een van de populairste manieren om uit eten te gaan in China en maakt nu ook haar opmars in onze stad. Yuan's Hot Pot heeft ondertussen al haar derde locatie geopend in Amsterdam. Bij Yuan's Chuan Chuan Xiang serveren ze de authentieke smaak van Chengdu Hot Pot. Aan de bamboespiesjes worden verse ingrediënten zoals groenten, tahoe, vlees en vis gelegd.  Terwijl de hete pot blijft sudderen, worden spiesjes geplaatst in de pan en wordt er aan tafel gekookt. Hoe pittig de bouillon is, kun je naar eigen smaak invullen. Ook de verschillende smaken van de bouillon kan je zelf bepalen.

Schermafbeelding 2022-07-01 om 15.59.57
08
Adres
Eerste Ringdijkstraat 2,
1097 BC Amsterdam

East57

Amsterdam Oost heeft er weer een nieuwe hotspot bij! East57 is een relaxte plek waar verschillende mensen samenkomen, van locals tot studenten tot af en toe een verdwaalde toerist, bij East 57 vind je ze allemaal. Je kunt hier vanaf 7 uur ’s ochtends tot 1 uur ’s nachts terecht. Ze bieden goed eten en lekker drinken aan. Er wordt veel samengewerkt met leveranciers uit Amsterdam die hun strepen hebben verdiend en alleen de allerbeste kwaliteit leveren. Denk aan Brandt & Levie, Vlaamsch Broodhuys, Erik’s Delicatessen en nog veel meer.

Schermafbeelding 2022-05-18 om 15.45.07
vergulden eenhoorn
verguldeneenhoor
09
Adres
Ringdijk 58,
1097 AH Amsterdam

De Vergulden Eenhoorn

Met de horeca-openstelling van De Vergulden Eenhoorn, een boerderij uit 1702 waar eerder buurthuizen en kinderopvang waren gehuisvest, mag de Ringdijk nu officieel een idyllische trekpleister worden genoemd. De binnenplaats bij de hooischuur en de tuin rondom zijn één grote picknickplaats, met zacht gras om je neer te vlijen, borders met bloemen en kruiden, grote houten tafels tussen de bomen en romantische zitjes op het erf. Als je binnen bent zou je net zo goed in een oude boerderij in the middle of nowhere kunnen zitten. Voor een ontsnapping uit de stadse sferen is de Vergulden Eenhoorn de perfecte plek, met goed eten en een ruim drank assortiment.

Low-Res-Rijsel-2019-Copyright-Janus-van-den-Eijnden-32
10
Adres
Marcusstraat 52,
1091 TK Amsterdam

Rijsel

Restaurant Rijsel is vernoemd naar de Franse stad Lille; wat door mensen uit Vlaanderen Rijsel wordt genoemd. Net als Lille, heeft Restaurant Rijsel een industrieel karakter. In het pand dat vroeger als huishoudschool fungeerde worden nu dagelijks lekkere gerechten geserveerd met Franse en Vlaamse invloeden. Er is een ruime keus uit vlees-, vis- en groentegerechten. Klassiekers als poussin rotie, huzarensalade, cote de boeuf met bearnaise saus, vissoep etc staan al jarenlang naar tevredenheid van een grote groep vaste gasten op de kaart. De uitgebreide wijnkaart heeft een lichte focus op Frankrijk.  Het restaurant is gelegen vlak naast de Weesperzijde dus na het diner kun je ook nog genieten van een wandeling langs de Amstel of een biertje bij café Hesp.

11
Adres
Van Woustraat 180,
1073 LZ Amsterdam

El Mauri

El Mauri in De Pijp is een van de beste low-budget ontbijtadressen van de stad. Bij deze bakker kun je al jaren terecht voor een uitgebreid Marokkaans ontbijt met een vakantiegevoel. Hoewel de bakker er van buiten eenvoudig uitziet, biedt hij van binnen een heerlijk ontbijt met vers brood, tajines en zelfgemaakte jam.

170048820_833091807392145_1141200956224978229_n
12
Adres
Maasstraat 72,
1078 HL Amsterdam

Hummus bistro d&a

Hummus Bistro D&A is opgezet door twee Israëlische vrouwen. Je kan er de hele dag door genieten van heerlijke gerechten. Begin je dag met shakshuka voor ontbijt, smul van traditionele hummus met verschillende toppings tijdens de lunch en proef vlees- of vegetarische gerechten bij het diner. Alles is mogelijk en kan de hele dag worden besteld. De traditionele hummus wordt geserveerd met pitabrood, salade en zuur, maar je kunt ook kiezen voor toppings zoals geroosterde groenten of langzaam gegaard vlees en verse kruiden.

RestaurantDeKas_221027_web_3
DeKas-gevel-nacht
RestaurantDeKas_maart23_web_6-1
13
Adres
Kamerlingh Onneslaan 3,
1097 DE Amsterdam

Restaurant de Kas (*)

Al sinds 2001 kweekt de Kas in hun eigen tuinen zo'n 300 soorten groenten, kruiden en fruit. Met als motto in de ochtend geoogst en in de middag op het bord. De tuinen in Amsterdam en de Beemster vormen de ziel van het restaurant en het menu. Ze geven de seizoenen aan en verrassen keer op keer.  De kas werkt met vaste menu’s. Tijdens de lunch kan gekozen worden voor een 3- of 4-gangen menu en voor het diner een 5- of 6-gangen menu. Geen à la carte en altijd verrassende creatieve creaties bereid door chefs Wim de Beer en Jos Timmer. Inmiddels zijn ze in het bezit van een 'normale' en groene Michelinster.

316696614_701301834540671_3708281314260770335_n
144520165_409011853732573_3822562762173474371_n
14
Adres
Europaplein 87,
1078 GZ Amsterdam

Scandinavian Embassy

Hier wordt ervaring en interesse in Scandinavisch eten en duurzaamheid geboden. Bij de Embassy traceren ze kleine, niche-leveranciers en gaan mee met de seizoenswisselingen van producten. De keuken biedt menu's voor een betaalbare prijs waarbij de gezonde en milieuvriendelijke wortels van de Scandinavische keuken behouden blijven. Bijzonder is dat ze ook koffie met eten combineren , waardoor, volgens hun zeggen, de algehele culinaire ervaring verbeterd wordt. Dit is hun tweede locatie. De ander locatie is in de Pijp gevestigd.

328463208_973652460268804_1665337633279136739_n
347631518_167402726014189_3756591334333499543_n
15
Adres
Wibautstraat 130,
1091 GP Amsterdam

Bottleshop

De Bottleshop is recent geopend door Freek Kattenberg. Het interieur combineert een strak design met warme sfeer. De wijnbar biedt meer dan 350 natuurwijnen. Chef Torres Peralta creëert een unieke fusion van de Japanse en Franse keuken met gedeelde gerechten. Het restaurant organiseert ook kleine evenementen; recentelijk verwelkomde het de chef van Les Oeillets uit Parijs voor een achtgangenmenu en wijnproeverij. Kattenberg benadrukt de waarde van internationale samenwerkingen en wil dit in de toekomst voortzetten.

Schermafbeelding 2022-05-18 om 16.00.58
Huize_Frankendael_summer
Jeroen & Stephanie
16
Adres
Middenweg 72,
1097 BS Amsterdam

Restaurant Merkelbach

In een van de oudste herenhuizen van de stad, gelegen in Park Frankendael, vind je restaurant Merkelbach. De met zorg geteelde groenten komen van de koude grond en veel van de kruiden uit het eigen park. Eigenaar Geert Burema is nauw betrokken bij  Slow Food en het Slow Food Youth Netwerk. Hij is mede initiatiefnemer van de Slow Foof chefs alliantie in Nederland. De signature vissoep van bijvangst van De Goede Vissers (die je elke zaterdag op de Noordermarkt kunt opzoeken) is niet te missen. Restaurant Merkelbach draagt de naam van de stadsbouwmeester Ben Merkelbach en bevindt zich in het koetshuis van het 18e-eeuwse Huize Frankendael. 

Boodschappen
Schermafbeelding 2023-01-25 om 11.22.35
IMG_0053-772×1030
IMG_0051-773×1030
17
Adres
Hoendiepstraat 2,
1079 LT Amsterdam

Pasteibakkerij

In het voormalig slachthuis van de Rivierenbuurt vind je vandaag de Pasteibakkerij. Ze maken hier allerlei soorten worsten, paté, spek, ham en andere chacuterie in Franse stijl. De Pasteibakkerij is vernoemd het gerecht pastei; waar paté wordt gebakken in korstdeeg. Gedurende het jaar verkoopt de Pasteibakkerij haar vaste assortiment maar tijdens de feestdagen kun je hier ook traditionele pastei gerechten kopen.

18
Adres
Rijnstraat 91,
1079 GZ Amsterdam

Volendammer vishandel Jonk

Er zijn maar weinig mensen die zich in kunnen houden op het hoekje van de Lekstraat en de Rijnstraat. Want wat is er beter dan een bakje kibbeling voor de lunch? Volendammer vishandel Jonk is een ouderwetse vishandel voor verse vis, gebakken vis en belegde broodjes. Van een verse Hollandse Nieuwe haring, tot luxe zalm maaltijden: de verse aanvoer van vis van visleveranciers uit Volendam, Urk en IJmuiden stelt nooit teleur.

A2CE4227-3FDF-487C-9464-43916E813F50_480x480
19
Adres
Van Woustraat 201H,
1074 AN Amsterdam

La Bottega by Chiara's Food

'From good people to good people'; dat is het motto van Chiara en haar familie. Chiara selecteert voor haar delicatessenwinkel de meest bijzondere en authentieke producenten in Italie. 'De meeste van onze leveranciers werken in hun familiebedrijven; terwijl ze de traditie behouden, hebben ze geleerd om de werklast te schalen en hun methoden te evolueren om bij de tijd te blijven. Al hun ingrediënten zijn lokaal afkomstig uit de regio waarin ze gevestigd zijn, wat op zijn beurt de lokale boeren ondersteunt waar ze van inkopen.' Er worden regelmatig workshops en tasting georganiseerd.

Schermafbeelding 2022-07-01 om 13.44.23
20
Adres
Maasstraat 77,
1078 HE Amsterdam

Patisserie Tout

Patisserie Tout maakt gebakjes, chocolade en macarons in een atelier aan de Maasstraat. De Patisserie is in 2007 opgezet door koppel Job en Kim van Berkel. Samen vormen zij het ideale team; Job is de smaakmaker en Kim is de gastvrouw. Dit ijzersterke duo heeft succes geboekt; Patisserie Tout is een van de bekendste smaakateliers in Amsterdam Zuid en verkoopt taart en gebak voor elke gelegenheid; bruidstaarten, verjaardagstaarten, en ook bedrijfstaarten. Geen grote taart nodig? Gelukkig kan ook een kleine gebakjes kopen, zoals éclairs of verrukkelijke macarons.

klaas-aangepast-1170×600
21
Adres
Amsterdam

Pure markt

De naam zegt het al, deze markt draait om puur eten op een ambachtelijke manier. Elke zondag van de laatste maand in Park Frankendael, het Amstelpark of het Beatrixpark. Je kan er heerlijke vers bereide maaltijden eten of producten kopen om thuis aan de slag te gaan. Perfecte zondagsbesteding!

22
Adres
Maasstraat 65,
1078 HE Amsterdam

Slagerij Woorts

Slagerij Woorts opende al in 1964 de deuren van de winkel op de Maasstraat. Met het motto ‘niet teveel kruiden, niet teveel specerijen, gewoon dat wat hoort, en dat moet het product an sich het zelf doen’, is dit een typisch Amsterdamse slagerij waar de producten weinig poespas nodig hebben. De klanten komen van heinde en verre hier naartoe voor de ossenworst en filet americain. Er wordt hier met aandacht gewerkt zodat het dier krijgt wat het verdient.

Schermafbeelding 2022-07-01 om 14.03.31
23
Adres
Maasstraat 88,
1078 HM Amsterdam

Sophie Eats

Sophie Eats is een cateringbedrijf en deli-shop gevestigd in Amsterdam. Met kwalitatieve seizoen producten wordt er een balans naar smaken en textuur gezocht die het eten uniek en lekker maken. Het kleurrijke menu is geschikt voor iedere gelegenheid; van een zakenlunch of een mode-evenement tot een sfeervolle borrel. In het winkeltje kan je terecht voor koffie, een vers sapje of iets lekkers te eten voor onderweg.

Interieur
2017-06-10
24
Adres
Trompenburgstraat 22,
1079 TX Amsterdam

Kringloop Winkel Amsterdam

Kringloop Winkel Amsterdam heeft inmiddels vier locaties in de stad. Met boeken, huishoudelijke apparaten, kleding, meubels, muziek, speelgoed en gereedschap. Kortom, alles wat je in een kringloopwinkel kunt verwachten. Genoeg redenen om een middagje rond te struinen.

25
Adres
Van T Hofflaan 27,
1097 GH Amsterdam

Kringloop ’t Hartje

Voor alle tweedehands spullen die je maar kunt bedenken. En misschien nog wel een item wat opeens van veel waarde blijkt te zijn… ’t Hartje is daarnaast uitgegroeid tot servicepunt van welzijnsorganisatie Dynamo en daarmee een sociaal-maatschappelijk centrum. Creatieve buurtbewoners houden tentoonstellingen, geven workshops en verkopen hun werk, van sjaal tot schilderij.

Kunst & cultuur agenda februari 2026

Kunst & cultuur agenda februari 2026

Wonen aan de Amstel, het beste van twee werelden

Wonen aan de Amstel, het beste van twee werelden

De Ziel van Amsterdam

De Ziel van Amsterdam

Onlangs bekeken
Bekijk het overzicht

Deze site maakt gebruik van cookies.

Voor welke cookies geef je akkoord?