Waterview 3 | 2e verdieping

 

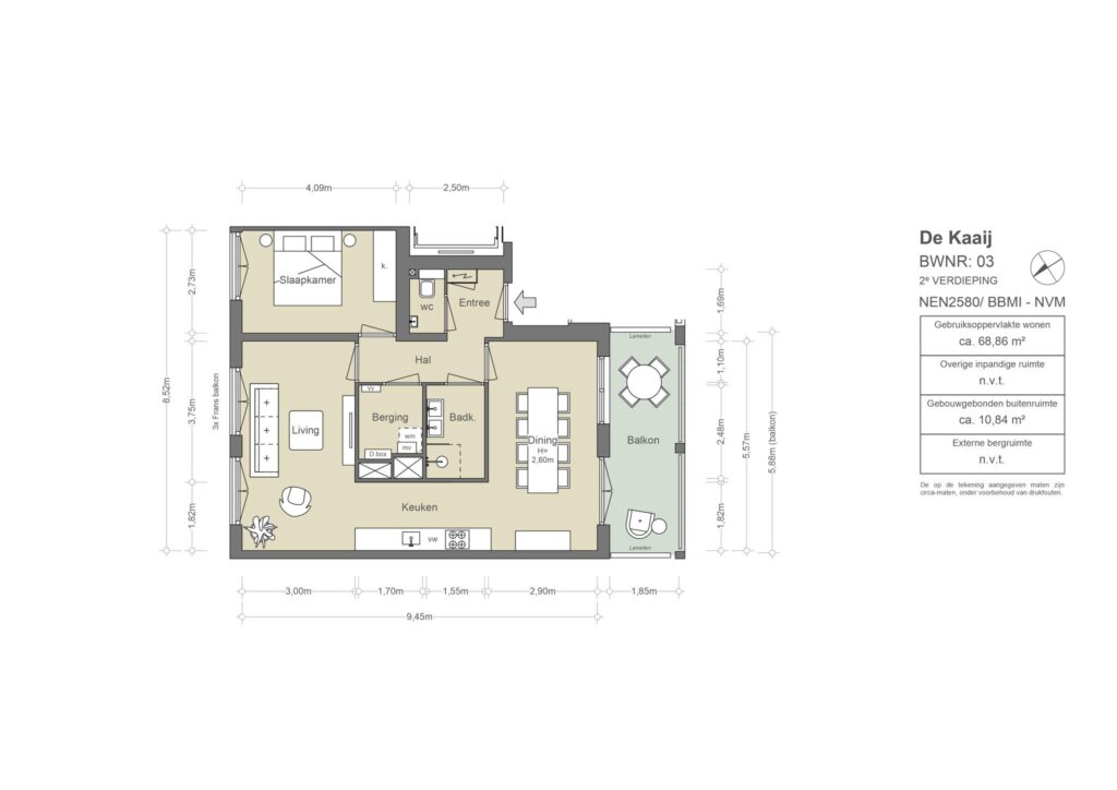
Ervaar wonen aan het water door de drie Franse balkons van deze Waterview woning op de tweede verdieping, met uitzicht over het Tolhuiskanaal. De woning van 69 m2 heeft één slaapkamer en een heerlijk balkon op het zuiden, waar je uitkijkt op het autovrije groene binnenplein.

 

Voor de woning is een keuken ontworpen door Leicht en de badkamer is voorzien van een inloopdouche en dubbele wastafel. De Waterview woning heeft een separaat toilet en een inpandige berging met daarin ruimte voor de wasmachine/droger en de technische installaties. 

 

De woning is voorzien van vloerverwarming- en koeling. Op het dak van het gebouw liggen zonnepanelen die voorzien voor de woningen. De woning is dan ook bijna energieneutraal.

 

Parkeren

In het nabijgelegen parkeergebouw is het mogelijk een stallingsplaats te kopen. De kosten hiervoor zijn € 40.000,- v.o.n. Op de begane grond van De Kaaij is er een mogelijkheid de fietsen te stallen.

 

Stoer ontwerp met duurzame kenmerken

De architect heeft gekozen voor een stoer ontwerp met houten gevelelementen en veel glas. In de woningen geven de betonnen plafonds een eigentijdse industriële sfeer De appartementen voldoen aan de nieuwste eisen op het gebied van isolatie en energiezuinigheid. Het is straks heerlijk comfortabel wonen met vloerverwarming in de winter en -koeling in de zomer. 

 

Wonen in het bruisende Noord

De Kaaij wordt gebouwd aan het water, tussen Eye en NDSM, aan het einde van de Grasweg. Met de auto is het centrum van Amsterdam bereikbaar via de IJtunnel en je bent in een paar minuten op de ring A10. Op nog geen 10 minuten fietsen ligt metrostation Noorderpark van de Noord/Zuidlijn. Vanaf daar ben je binnen 15 minuten in het centrum van Amsterdam of op de Zuidas. Of met de pont, die op 5 minuten loopafstand ligt.

 

Eigen grond

De Kaaij wordt gerealiseerd op eigen grond, zonder erfpacht. Hier heb je dus niet te maken met de jaarlijks terugkerende extra kosten van de erfpachtcanon, dat scheelt enorm. 

 

Ben je geïnteresseerd? 

De inschrijving is gestart Schrijf je in via wonenindekaaij.nl en bekijk alle beschikbare appartementen, met de specificaties en prijzen, in de woningkiezer. Log in via ‘ Mijn Omgeving ’om de woning(en) van jouw voorkeur te selecteren.

Kenmerken
Bouwnummer 3, De Kaaij | Waterview, Amsterdam
Vraagprijs
  • € 685.000 v.o.n.
Beschikbaarheid
  • In overleg
Vertrekken
  • 2 kamers
  • 1 slaapkamer
  • 1 badkamer
Onderhoud
  • Intern: Uitstekend
  • Extern: Uitstekend
Oppervlakten & Inhoud
  • Woonoppervlakte: 69 m²
Installaties
  • Mechanische ventilatie
Type verwarming
  • Vloerverwarming geheel
Type warmwater
  • Centrale voorziening
Buitenruimte
  • Geen tuin
Duurzaamheid
  • Volledig geisoleerd
Documenten
Bouwnummer 3, De Kaaij | Waterview, Amsterdam
Locatie
Bouwnummer 3, De Kaaij | Waterview, Amsterdam
Eten & drinken
Hapjeshoek
01
Adres
Waterlooplein 6,
1011 MS Amsterdam

De Hapjeshoek

De Hapjeshoek is een bruisend Surinaams eethuis. Het is gevestigd in het historische metrostation Waterlooplein en verwelkomt gasten al sinds 1995. Het is opgericht door drie broers en het is uitgegroeid tot een levendige locatie vol heerlijk eten en vriendelijk personeel. Geniet van een gevarieerd menu met verse Surinaamse broodjes, hapjes en maaltijden voor lunch en diner. Allemaal samengesteld om kwaliteit te bieden tegen betaalbare prijzen.

downloadgram.org_559858310_17895309681315568_8989814781705937724_n
02
Adres
Amstel 47,
1011 PW Amsterdam

Alpha Deli

Alpha Deli wordt gerund door Marius, een Griekse ondernemer die met zijn zaak een stukje Athene naar Amsterdam brengt. Hij staat zelf op de vloer, begroet zijn gasten persoonlijk en serveert traditionele Griekse koffie en snacks zoals spanakopita en hartige filodeeggebakjes. De ingrediënten komen grotendeels uit Griekenland, waardoor de smaken dicht bij huis blijven. Overdag is het een fijne plek voor koffie en iets zoets, later op de dag schuif je net zo makkelijk aan voor salades en warme hapjes.

scp2.elfsightcdn
scp2.elfsightcdn-1
03
Adres
Amstel 212,
1017 AH Amsterdam

Restaurant 212 (**)

Na een brand in Maart 2022 hebben Richard van Oostenbrugge en Thomas Groot hun restaurant in November 22 heropend. Prachtig gelegen aan de Amstel biedt het restaurant plaats aan 16 personen. Het tasting menu en de a l carte gerechten zijn van een hoog niveau.

369719256_18387798799002727_3915098169732230990_n
04
Adres
Amstelstraat 5,
1017 DA Amsterdam

Screaming Beans

Screaming Beans is een Amsterdams merk dat lokaal en internationaal bekend staat om zijn hoogwaardige koffie. De ruime locatie aan Amstelstraat is de ideale plek om vrienden en collega's te ontmoeten onder het genot van een smakelijke kop koffie, een stuk heerlijke taart of een verwarmende thee. Het is populair onder kantoormedewerkers en buurtbewoners, vooral in de ochtend op weg naar het werk.

Low-Res-voor-internet-Eik-en-Linden-2021-Livestream-Copyright-Janus-van-den-Eijnden-2-768×512
05
Adres
Plantage Middenlaan 22A,
1018 DE Amsterdam

Café Eik en Linde

Café Eik en Linde is een echte Amsterdamse bruine kroeg met een lange geschiedenis. Tegenwoordig komt hier een gemêleerd publiek samen dat reikt van stamgasten en biljarters tot studenten en toeristen. Het zorgt voor een aangename sfeer waardoor het café een begrip is geworden, ook buiten Amsterdam. Het café is onder meer bekend om de radio-uitzendingen die in de bovenzaal werden opgenomen, met als beroemdste uitzending ‘Een dik uur met Ischa’ van Ischa Meijer. Het is kortom een plek waar politiek, literatuur en kunst samenkomen met een biertje.

Schermafbeelding 2023-09-27 om 15.50.33
06
Adres
Korte Koningsstraat 13 H,
1011 EX Amsterdam

Black Gold Amsterdam

Black Gold Amsterdam ligt midden in de stad en is een onafhankelijke vinyl- en speciaalkoffiewinkel. Er hangt een relaxed sfeertje waar je kunt neuzen tussen de lp-planten, maar waar ook goede koffie wordt geserveerd. De koffiebonen zijn afkomstig van White Label Coffee.

121809131_3509012395830210_6882860816101610842_n
07
Adres
Kloveniersburgwal 59HS,
1011 JZ Amsterdam

Café de Engelbewaarder

Een begrip in Amsterdam is Amsterdamsch Literair Café de Engelbewaarder. Het pand is een rijksmonument en is vernoemd naar de roman Herinneringen van een Engelbewaarder van W.F. Hermans. Al sinds 1947 zit Café de Engelbewaarder midden in de altijd gezellige Nieuwmarktbuurt. Café de Engelbewaarder was het eerste literaire café in Amsterdam en is onder andere bekend van zijn ‘jazz op zondag’ , de gezellige drukke vrijdagavonden en de vele bieren van de tap. Van studenten tot buurtbewoners, tot eigenlijk heel Amsterdam, iedereen is te vinden in dit café. s' Zomers zit je er heerlijk op hun terras aan de Kloveniersburgwal. Je kan er ook terecht voor een goede daghap.

downloadgram.org_542337336_17874512580410253_7795320341317476262_n
downloadgram.org_580667533_17882663931410253_9117724728895086368_n
08
Adres
Utrechtsestraat 6hs,
1017 VN Amsterdam

char.d

Bij restaurant char.d staan de chefs Dean Baker en Slava Nazaryan aan het roer. De restaurantnaam verwijst naar de kooktechniek charring: langzaam grillen op houtskool of hout en koken op hoge temperaturen om rijke barbecuesmaken te ontwikkelen. Bij char.d vormen dit soort moderne barbecuetechnieken in combinatie met hoogwaardige ingrediënten de rode draad. Bij char.d kunnen gasten genieten van gerechten die variëren van yellowtail in olijfolie tot maïskip met miso en beurre noissette en een klassieker zoals de New York strip. De twee chefs vullen elkaar perfect aan: Dean is gespecialiseerd in vlees terwijl Slava zich richt op vis. Samen met maître Job Guikema geven de chefs vorm aan een restaurant dat barbecue op een andere manier benadert: verfijnd en internationaal. Het kloppend hart van de zaak is de Sloveense Kopa-houtskoolgrill in de open keuken, door de Britse Baker liefkozend “Bobby” genoemd.

410122272_17878473722990810_444435071764874332_n
09
Adres
Peperstraat 23,
1011 TJ Amsterdam

Restaurant R21

Chef Orlando David (werkte voorheen o.a.voor Oud Sluis van Sergio Herman ***) opende in de Peperstraat tegenover Gebr Hartering een fine dining restaurant. Je eet er een 6 of 7 gangen menu voor respectievelijk 75 en 90 euro, maar er is ook een a la carte menu beschikbaar. De reislust van de chef is zichtbaar en te proeven in zijn stijl van koken. Invloeden en producten van de hele wereld sieren de gerechten.

Schermafbeelding 2022-06-20 om 20.13.23
Schermafbeelding 2022-06-20 om 20.13.41
10
Adres
Peperstraat 10,
1011 TL Amsterdam

Gebroeders Hartering

Onder leiding van eigenaar Paul Hartering kookt een nieuwe generatie chefs pure, authentieke en verfijnde gerechten, met herkomst en vakmanschap als kern. Paul werd in 2019 door Gault Millau bekroond tot ‘Ambachtsman van het Jaar’, terwijl zijn broer Niek met liefde de service en de wijnkaart leidt. De sfeer voelt als een combinatie van een ouderwetse bruine kroeg en een eigentijdse Franse bistro. Witte linnen tafelkleden steken mooi af tegen de warme, bruinhouten wanden.

463946_339794439388956_1516802307_o
11
Adres
Rapenburg 18,
1011 TX Amsterdam

Hiding in Plain Sight

Voor Hiding in Plain Sight moet je even op je fiets vanuit het centrum. Naast de IJtunnel ligt deze knusse cocktailbar waar je unieke cocktails kunt zippen vanaf je barkruk of vanaf luie stoelen op de bovenverdieping. De unieke cocktail combinaties die bijna culinair te noemen zijn kun je een heerlijke avond loungen. Ben je slechts bekend met een gin & tonic? Dat geeft niets, het vriendelijke barpersoneel voorziet je graag van zoveel keuzes dat het je doet duizelen (als het niet de alcohol is).

300799293_442244344620995_5318374096276279217_n
12
Adres
Rapenburgerplein 83,
1011 VJ Amsterdam

Café de Druif

Café de Druif is een van de oudste proeflokalen in Amsterdam. Tijdens de Gouden Eeuw kregen hier matrozen druiven als cadeau en zo is het aan zijn naam gekomen. Tegenwoordig is het een ontmoetingsplek voor veel stamgasten. Op het grote terras aan het water kan je er heerlijk zitten met een zeer uitgebreide bierkaart. Het decor bestaat uit kleine vaten opgesteld waaruit vroeger de jenever getapt werd en in plaats van muziek luister je naar het geluid van kletsende stamgasten.

396d30_5a39bb8f65ae440b9bfc8457b6de9f64_mv2
396d30_bf2aeadae3e04cb3907935c5ab9dc64e_mv2
13
Adres
Utrechtsestraat 51,
1017 VJ Amsterdam

De Juwelier (*)

Restaurant De Juwelier is het nieuwe à la carte restaurant van de chefs van het met twee Michelin-sterren bekroonde Restaurant 212. Richard van Oostenbrugge en Thomas Groot openden samen De Juwelier aan de Utrechtsestraat. Zowel klassiekers uit de Franse en Nederlandse keuken staan op de menukaart. Deze chique bistro heeft, verfrissend genoeg, geen concept, maar draait gewoon om lekker bourgondisch eten en genieten. Kortom: een juweeltje.

Boodschappen
67482526_3181760118517216_8278390957271941120_n
Schermafbeelding 2022-03-28 om 16.52.53
14
Adres
Waterlooplein 2,
1011 NZ Amsterdam

Waterloopleinmarkt

Achter de Stopera vind je volgens velen de beste vlooienmarkt van Amsterdam. Onder andere hebben ze hier prachtige platen, foto’s maar ook stapels prachtige vintage kleren. Menig hippe Amsterdammer scoort hier zijn Levi’s 501. Maar ook mooie accessoires, sieraden en onderdelen voor je fiets kan je hier kopen. Elke werk- en zaterdag geopend.

sterk-staaltje-winkel
15
Adres
Staalstraat 12,
1011 JL Amsterdam

Sterk Staaltje

Sterk Staaltje is al meer dan twintig jaar een begrip in de binnenstad van Amsterdam. Deze unieke eetwinkel heeft een grote variatie aan eten met een nadruk op vers. Zo is iedere maaltijd, broodje, salade of soep net een beetje anders. Met bezoekers uit alle lagen van de bevolking; van omwonenden en kantoorpersoneel tot studenten en toeristen die hier een broodje komen eten. Je kan hier kortom terecht voor een sterk staaltje eten.

241491943_1718774814985933_3325818017112894796_n
269905089_1802052389991508_8614231142031174020_n
16
Adres
Plantage Kerklaan 41,
1018 CV Amsterdam

Borrl Kitchen Deli

Het team van Borrl Kitchen heeft nu ook Borrl Kitchen Deli waar je restaurantkwaliteit borrelhappen, brood en andere delicatessen kunt halen. Ook leuk: ze hebben ook een goede Borrl Box, allerlei verschillende hapjes voor thuis. Maar los kan je al deze delicatessen ook gewoon kopen. De homemade hummus is fantastisch maar het kaas- en wijn assortiment is ook geweldig. Afhalen of aan de deur gebracht, Borrl moet je een keer proeven!

Interieur
47682925_2138085526252244_3479898621955014656_n
17
Adres
Valkenburgerstraat 201A,
1011 MJ Amsterdam

Baden baden

Baden Baden Interior is een badkamer- en interieurwinkel die in 2000 werd opgericht. De winkel bestaat uit een regelmatig wisselende eclectische mix van meubelen, design, kunst, objecten en accessoires. Als liefhebber van goed design kan je je hart ophalen bij Baden Baden Interior en kom zeker langs voor luxe, tijdloze en comfortabele badkamers, kranen en Italiaanse merken die naadloos aansluiten bij uw persoonlijke wensen.

14485124_526385714238776_4161774116515468985_n
18
Adres
Valkenburgerstraat 167-A,
1011 MJ Amsterdam

Arclinea

Bij Arclinea Amsterdam helpen ze je graag bij het creëren van je Italiaanse droomkeuken. De keukens behoren door hun professionaliteit, klasse en tijdloosheid tot de absolute top van het keukendesign. Stuk voor stuk combineert Arclinea in hun keukens professioneel koken met prachtig design en innovatieve apparatuur.Bekijk het zelf in hun showroom aan de Valkenburgerstraat in Amsterdam.

TW-Reality-Check-3-2800px-600×600
Droog_Gallery
cafe-droog
19
Adres
Staalstraat 7B,
1011 JJ Amsterdam

Droog

Droog is een designlabel gevestigd in Amsterdam en staat bekend om hun conceptuele en contextuele benadering van design. De naam Droog staat voor de droge humor van de designs in hun collectie. Een verwijzing naar de Nederlandse nuchterheid. Naast een galerie is er ook een winkel, een restaurant en verschillende ruimtes die gehuurd kunnen worden. Alle ruimtes hebben hun eigen unieke karakter en zijn ingericht met kunst en design stukken uit de Droog collectie.

Kunst & cultuur
Evabloem_Hermitage-020.jpg.1200x630_q85
20
Adres
Amstel 51,
1018 EJ Amsterdam

H'ART Museum

'Het voormalige Hermitage museum gaat nauw samenwerken met British Museum, Centre Pompidou en Smithsonian American Art Museum. H’ART Museum opent vensters op de wereld en toont de verbindende kracht van kunst.' Door de verbintenis met deze internationale topmusea komen wereldberoemde kunstcollecties naar Amsterdam. Centre Pompidou heeft een van de belangrijkste collecties moderne en hedendaagse kunst in Europa. Het British Museum kent als een van de oudste musea ter wereld een collectie die continenten en oceanen omspant. Smithsonian American Art Museum (SAAM) heeft naam en faam als een van de bekendste musea van het Smithsonian Institution.

 

BC_02028_052
21
Adres
Amstel 51,
1018 EJ Amsterdam

Amsterdam Museum

In het voormalige Burgerweeshuis van Amsterdam bevindt zich sinds 1975 het Amsterdam Museum. In 1926 opende het museum in de Waag en sindsdien fungeert het museum als ware schatkamer van de stad. De historische collectie vertelt aan de hand van duizenden kunstwerken en voorwerpen het indrukwekkende verhaal van de stad, reikend van de vroege Middeleeuwen tot het heden. Naast de vaste collectie die het historische verhaal van Amsterdam laat zien, vertellen de wisselende tentoonstellingen de verhalen van het hedendaagse Amsterdam.

22
Adres
Plantage Middenlaan 2a,
1018 DD Amsterdam

Hortus Botanicus

De Hortus Botanicus Amsterdam is een van de oudste botanische tuinen ter wereld. Ook de Oranjerie, het bijbehorende grand café, is een eeuwenoud monument waar je – zelfs midden in de winter – heerlijk tot rust komt. Ze hebben een uitgebreide lunchkaart, en je eet terwijl je middenin de prachtige tropische tuinen zit. In de zomer is het terras natuurlijk ook open. Het is een van de best bewaarde geheimpjes van Amsterdam, zeker de moeite waard om heen te gaan en de rust van het groen zelf te ervaren.

10411762_809398709124978_6571844653319791164_n
23
Adres
Oudeschans 67,
1011 KW Amsterdam

Van Zoetendaal Photography

Van Zoetendaal Photography is voornamelijk actief in de internationale hedendaagse fotografie, met het samenstellen van tentoonstellingen in musea, als galerie, en ook met het uitgeven van verschillende fotoboeken. In 2014 veranderde Van Zoetendaal zijn galerieruimte grotendeels om in een studio om zijn eigen kunstprojecten, kunstboeken en installaties te ontwikkelen. Hoewel de galerie doorgaans alleen op afspraak geopend is, speelt zij een belangrijke rol in de jaarlijkse Unseen Photo Fair.

eetkamer-web
24
Adres
Herengracht 605,
1017 CE Amsterdam

Huis Willet-Holthuysen

Het indrukwekkende Willet-Holthuysenhuis bevindt zich in het hart van Amsterdam. Dit dubbele herenhuis aan de Herengracht herbergt talloze stijlkamers. De naam van het huis is afgeleid van het echtpaar dat hier aan het einde van de 19e eeuw woonde: Abraham Willet en Louisa Holthuysen. Zij verzamelden een schat aan kunst en objecten en lieten het interieur naar hun persoonlijke smaak vormgeven. Zelfs destijds werd dit prachtige huis beschouwd als een eerbetoon aan een romantisch verleden. Het interieur diende als het middel waarmee het echtpaar hun smaak en welvaart met anderen deelde. De schitterende salons zijn in de stijl van Lodewijk XVI ingericht en de tuin is symmetrisch aangelegd als een formele Franse tuin. In deze romantische stijlkamers organiseert het Amsterdam Museum tentoonstellingen met werk van hedendaagse kunstenaars en verzamelaars.

0351475001574868608
25
Adres
Kloveniersburgwal 95,
1011 KB Amsterdam

Upstream Gallery

In het 17e -eeuwse monumentale pand het ‘Poppenhuis’ aan de Kloveniersburgwal zit kunstgalerie Upstream Gallery. Deze hedendaagse kunstgalerie heeft binnen korte tijd een internationale reputatie opgebouwd onder verzamelaars, kunstinstituties, kunstcritici en natuurlijk kunstliefhebbers. De focus van de galerie ligt op radicaal, geëngageerde, conceptuele en post-internet kunst en representeert zowel Nederlandse als internationale kunstenaars.

De Mannequin

De Mannequin

‘Het vakwerkhuis’, een voormalig gereedschap bergplaats voor de Dienst der Publieke Werken

‘Het vakwerkhuis’, een voormalig gereedschap bergplaats voor de Dienst der Publieke Werken

De Franse keuken in Amsterdam; een selectie van restaurants, epiceries, patisseries en brasseries

De Franse keuken in Amsterdam; een selectie van restaurants, epiceries, patisseries en brasseries

Onlangs bekeken
Bekijk het overzicht

Deze site maakt gebruik van cookies.

Voor welke cookies geef je akkoord?