Waterfront 2 | Begane grond en 1e verdieping

Een eigen steiger aan het Tolhuiskanaal en een tuin van ca 31 m2 aan de zonnige zuidkant van het gebouw. Twee unieke hoogtepunten van deze woning van ca. 75 m2, gelegen op de begane grond en de 1e verdieping van De Kaaij. Door de vide aan de waterzijde en de is er in de living een dubbele hoogte (ruim 5 meter) en grote raampartijen waardoor je hier optimaal het gevoel van wonen aan het water beleeft.

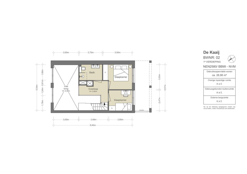
De keuken, een ontwerp van Leicht, grenst aan de zonnige tuin, die te bereiken is door de openslaande deuren. Op de 1e verdieping bevinden zich twee goed bemeten slaapkamers en de badkamer, met een inloopdouche, dubbele wastafel en tweede toilet.

De woning is voorzien van vloerverwarming- en koeling. Op het dak van het gebouw liggen zonnepanelen die voorzien voor de woningen. De woning is dan ook bijna energieneutraal. De woning heeft een vrije hoekligging in het gebouw met de mogelijkheid van een extra zijraam in de living.

Parkeren

In het nabijgelegen parkeergebouw is het mogelijk een stallingsplaats te kopen. De kosten hiervoor zijn € 40.000,- v.o.n. Op de begane grond van De Kaaij is er een mogelijkheid de fietsen te stallen.

Stoer ontwerp met duurzame kenmerken

De architect heeft gekozen voor een stoer ontwerp met houten gevelelementen en veel glas. In de woningen geven de betonnen plafonds een eigentijdse industriële sfeer De appartementen voldoen aan de nieuwste eisen op het gebied van isolatie en energiezuinigheid. Het is straks heerlijk comfortabel wonen met vloerverwarming in de winter en -koeling in de zomer.

Wonen in het bruisende Noord

De Kaaij wordt gebouwd aan het water, tussen Eye en NDSM, aan het einde van de Grasweg. Met de auto is het centrum van Amsterdam bereikbaar via de IJtunnel en je bent in een paar minuten op de ring A10. Op nog geen 10 minuten fietsen ligt metrostation Noorderpark van de Noord/Zuidlijn. Vanaf daar ben je binnen 15 minuten in het centrum van Amsterdam of op de Zuidas. Of met de pont, die op 5 minuten loopafstand ligt.

Eigen grond

De Kaaij wordt gerealiseerd op eigen grond, zonder erfpacht. Hier heb je dus niet te maken met de jaarlijks terugkerende extra kosten van de erfpachtcanon, dat scheelt enorm.

Ben je geïnteresseerd?

De inschrijving is gestart. Schrijf je in via wonenindekaaij.nl en bekijk alle beschikbare appartementen, met de specificaties en prijzen, in de woningkiezer. Log in via ‘ Mijn woonaccount ’ om de woning(en) van jouw voorkeur te selecteren.

Kenmerken
Bouwnummer 2, Ko van Dijkhof 40, Amsterdam
Vraagprijs
  • € 950.000 v.o.n.
Beschikbaarheid
  • In overleg
Vertrekken
  • 3 kamers
  • 2 slaapkamers
  • 1 badkamer
Onderhoud
  • Intern: Uitstekend
  • Extern: Uitstekend
Oppervlakten & Inhoud
  • Woonoppervlakte: 74 m²
  • Tuinoppervlakte: 30 m²
Installaties
  • Mechanische ventilatie
  • Zonnepanelen
Type verwarming
  • Vloerverwarming geheel
Type warmwater
  • Centrale voorziening
Buitenruimte
  • Voortuin
Duurzaamheid
  • Volledig geisoleerd
Documenten
Bouwnummer 2, Ko van Dijkhof 40, Amsterdam
Locatie
Bouwnummer 2, Ko van Dijkhof 40, Amsterdam
Eten & drinken
Schermafbeelding 2023-01-25 om 10.36.18
01
Adres
Chrysantenstraat 4,
1031 HT Amsterdam

Bacalar

Deze taqueria is gehuisvest in een voormalige garage op een industrieterrein in Amsterdam-Noord. In een rauwe setting kookt de belgische chef Joachim de Buck, originele Mexicaanse gerechten. Er is een breed en gevarieerd aanbod aan taco’s, tostados en ander hartig en pittig lekkers. Gecombineerd met jaren 90 muziek, ciders, mezcal, zuurbieren en natuurwijnen is dit een spannende avond uit.

326947522_754814202214238_3561426501965176378_n
315729265_184085624205825_4783509406318105826_n
02
Adres
Asterweg 22,
1031 HP Amsterdam

Café Restaurant Metro

Van 's ochtends tot 's avonds werkt hier de bakkerij en de keuken samen om eenvoudige gerechten te bereiden met de nadruk op goede producten en groenten. Chef Rients de Jong (ex As, Toscanini en Entrepot) kookt seizoensgebonden en duurzaam met vertrouwde bereidingen. Je kunt genieten van een zeer betaalbaar driegangen dagmenu, of je kunt à la carte kiezen uit een aantal gerechten, voorafgegaan door enkele snacks. Bij de grote betonnen bar is er altijd plek voor een drankje of hapje. De wijnkaart heeft een zuivere en kwalitatieve stijl met veel natuurlijk gemaakte wijnen.

 

03
Adres
Leen Jongewaardkade 41,
1031HS Amsterdam

Pelusa

Pelusa, wat 'pluisje' betekent, is vernoemd naar de koosnaam van niemand minder dan Maradona. Het is een eerbetoon aan de ultieme Argentijnse levensgenieter. Deze gastro buurtkroeg biedt Argentijnse Parilla-gerechten, bereid door chef-kok Steven (voormalig chef bij Lastage en C). De gerechten worden gecombineerd met een selectie van wild gefermenteerde bieren, natuurlijke wijnen en ciders, zorgvuldig geselecteerd door Ruud (voorheen werkzaam bij 't Arendsnest en Craft & Draft).

315988302_5760849594036211_845228796521491534_n
04
Adres
Melkdistelstraat 94,
1031 JX Amsterdam

Papa Thang

Papa Thang is het ideaal buurtrestaurant. Chef Thang Pham heeft de hele wereld over gereisd en overal gekookt, maar heeft uiteindelijk toch besloten om terug te gaan naar zijn eigen roots; namelijk Vietnamese streetfood. De gerechten  zijn eenvoudig, goed en betaalbaar. Oftewel een Vietnamese bistro met een gevarieerde kaart.

366358950_18232095868238032_5598169413384369124_n
05
Adres
Docklandsweg 3,
1031 CD Amsterdam

Wijbar Vindict

Richard Dietz (39) en Roderick Meijer (35) van Vindict ademen passie voor wijn. Met twee succesvolle wijnwinkels op hun naam, hebben ze nu samen met chef-kok Samir Doueiri (56) en sommelier Jan-Jaap Altenburg (31) wijnbar Vindict geopend. De bar, gemaakt van acaciahout uit wijngaard Dassemus in Chaam, straalt warmte en authenticiteit uit. Geniet van bijpassende gerechten, zoals escargots met knoflook en kruidenboter of Nederlandse garnalencocktail met avocado en citroen, vers bereid door chef-kok Doueiri.  Op de wijnkaart, is een selectie te zien van de meer dan vijftig wijnen die per glas worden geschonken en meer dan achthonderd wijnen per fles. Ook is er de mogelijkheid om een proeverijtje te doen of om voor 7,50 euro een blinde wijn te bestellen in een zwart glas. Benoem je de druif juist, dan is het glas van het huis.

69540178_2484999358232281_2103779134537728000_n
06
Adres
Van der Pekstraat 91,
1031 CV Amsterdam

Kannibalen en Paradijsvogels

Kannibalen en Paradijsvogels is een Indisch buurt-eethuis waar écht gekookt wordt. Het draait hier allemaal om Indisch en Moluks eten voor zowel kannibalen als paradijsvogels. Voor de kannibalen heb je heerlijke vleesgerechten en voor de paradijsvogels de lekkerste vegetarische gerechten. Hoewel de keuken dus is gebaseerd op de traditionele Indonesische keuken, gaat het menu ook met z’n tijd mee. Zo is er superlekkere veganistische spekkoek en is het vlees van goede afkomst.

IMG_3091_1024x1024
IMG_3130_1024x1024
07
Adres
Van der Pekstraat 1,
1031 CN Amsterdam

Café Keppler

Café Keppler is een ambachtelijk buurtcafé in Amsterdam-Noord. Het is vernoemd naar de voormalig directeur van de Gemeentelijke Woningdienst Amsterdam, Arie Keppler en bevindt zich toepasselijk in een van de mooie panden van de Van der Pek buurt, een van de tuinsteden welke in opdracht van Keppler is gebouwd. Het eten bij Keppler is allemaal zelfgemaakt. Je kan er terecht voor de beste omeletten van Amsterdam, maar ook heerlijke borrelplanken en diner in de avonduren. Het brood is zelfgebakken en de koffie zelf gebrand en dat kan je proeven. De producten zijn ook te koop in het winkeltje naast het café.

Schermafbeelding 2023-01-25 om 10.32.55
Schermafbeelding 2023-01-25 om 10.33.21
08
Adres
Meidoornweg 2,
1031 GG Amsterdam

Café Modern

Sinds 2012 is het voormalige gebouw van de Twentsche Bank omgetoverd tot Café Modern. Op de begane grond van het sfeervolle pand bevindt zich het restaurant waar een afwisselend chefs-menu (5 of 6 gangen) wordt geserveerd.  Aan de bar ben je welkom voor een glas wijn, oesters, kaas of andere lekkernijen.  De chefs werken alleen met seizoensgebonden producten van lokale en kleinschalige leveranciers. Leuk om te weten is dat er in de oude klus van het bankgebouw de mogelijkheid is om een privé diner te genieten. De bovenste verdiepingen van het pand dienen als boutiquehotel met drie kamers.

 

 

download
09
Adres
Korte Papaverweg 4,
1032 KB Amsterdam

Café de Ceuvel

Ontsnap aan de stadse drukte en ontdek de Ceuvel in Amsterdam-Noord. Hier bieden ze hoofdzakelijk een vegetarisch menu aan met lokale lekkernijen. Alles is doordacht: veel hergebruik en omringd door bedrijven die de wereld verbeteren. Het is lastig een betere plek te vinden om van een zonnige dag te genieten dan deze bar in Noord. De hele ambiance heeft een bohemian-uitstraling en er is zowel binnen als buiten volop zitgelegenheid.

adam-contact-01
10
Adres
Overhoeksplein 1,
1031 KS Amsterdam

De A'DAM Toren

De A'DAM Toren aan de IJ-oever in Amsterdam Noord biedt een divers programma aan van restaurants, bars, nachtclubs en flexwerkplekken waar je tegen maandelijkse betaling de hele dag kunt werken aan je eigen bureau. De toren is gebouwd in 1966 in opdracht van Shell en stond eerst bekend als de Shell-toren. Een aantal jaar geleden is de toren volledig gerenoveerd en opgezet als een dynamische hub die ruimte biedt voor inspiratie, interactie en ontspanning. Bovenin de A'DAM Toren, op de 19e verdieping, vind je ronddraaiend restaurant Moon. Hier kun je gerechten proeven met een 360 graden uitzicht over Amsterdam. Ook zonder het restaurant de bezoeken kun je in de A'DAM Toren genieten van een spectaculair uitzicht. Breng hiervoor een bezoek aan het observatiedek A'DAM Lookout op het dak van de toren.

11
Adres
Buiksloterweg 27,
1031 CD Amsterdam

Café ONS

Bij ONS is het altijd gezellig. In het pittoreske huisje aan de Buiksloterweg in Amsterdam-Noord kan je terecht voor een laat ontbijt, lunch en avondeten. In de zomer is er een terras om een cocktail te drinken in de zon en ’s winters is er een open haard om bij op te warmen met een mok warme chocolademelk of een biertje. Het vriendelijke personeel kan je altijd wat aanraden.

313950969_563180435807419_6183838920596849779_n
298338112_491191656339631_4637780989823452565_n
12
Adres
Overhoeksplein 3,
1031 KS Amsterdam

Restaurant Moon

Bij Restaurant Moon beleef je Amsterdam letterlijk op een hoogtepunt. Op de 19e verdieping van de A’DAM Toren bevindt zich het ronddraaiende restaurant waar je de stad in 360 º kan meemaken. Chef Hans Geertsema mengt de moderne keuken met pure en lokale ingrediënten en ook zijn er oesters of charcuterie van Brandt & Levie. Tijdens het eten van meerdere gangen heb je bij ieder gerecht een nieuw uitzicht op de stad; kortom een onvergetelijke ervaring.

13
Adres
Westerdoksdijk 715a,
1013 BX Amsterdam

Café Westerdok

Café Westerdok was oorspronkelijk een havencafé. Tegenwoordig moet je er zijn als je van bier houdt. Ze schenken wel 86 verschillende soorten.

Kunst & cultuur
Dimensional-Sampling-1-by-Yuxi-Cao-James.-Part-of-the-inaugural-exhibition-at-Nxt-Museum-_Shifting-Proximities_-opening-29-August.-©-Peter-Tijhuis-WP
14
Adres
Asterweg 22,
1031 HP Amsterdam

Nxt Museum

Nxt Museum laat je opgaan in de mediakunst. Moderne technologieën worden gebruikt voor kunstvormen en dit levert een hele speciale vorm van kunst op. Bewonder bijvoorbeeld de kunstwerken 'Adrenalin or Zen' en 'What is happening to my face' of ervaar de kosmos en het zwarte gat. Je kan door veel kunstwerken heenlopen en de kunstenaars slagen erin om je het echt te laten ervaren. De kunstwerken prikkelen al je zintuigen door de combinatie van geluid, licht en beweging. Het museum geeft je de kans om te reflecteren op de huidige technologische ontwikkelingen en geeft een moment van bezinning in een realiteit die alsmaar sneller doorontwikkeld. Door het gebruik van grote ruimtes en veel verschillende soorten 'visuals' slagen ze erin een hele nieuwe vorm van kunst tentoon te stellen.

eye_filmmuseum_exterior_view-dennis_guzzo
15
Adres
IJpromenade 1,
1031 KT Amsterdam

EYE Filmmuseum

Aan het Amsterdamse IJ ligt het kenmerkende en spectaculaire gebouw van het EYE Filmmuseum. De collectie bestaat uit meer dan 54000 films uit allerlei verschillende genres. Het gebouw bestaat uit vier filmzalen waar een gevarieerd programma wordt gedraaid, een expositieruimte waar wisselende tentoonstellingen worden geëxposeerd, een educatieve verdieping, een shop en een restaurant waar je met een wijd uitzicht op het IJ kan dineren of kan borrelen. Het is kortom een plek voor iedereen die in film- en filmcultuur is geïnteresseerd.

86171910_1307484036120157_3187974195971620864_n
16
Adres
Overhoeksplein 5,
1031 KS Amsterdam

A'DAM LOOKOUT

Op het dak van de A'DAM Toren in Amsterdam Noord vind je A'DAM LOOKOUT. Deze hotspot is ingericht als observatiedek waar jij als bezoeker kan genieten van een prachtig uitzicht over de stad Amsterdam. Voor degenen doe dit uitzicht nog spannender willen maken is er ook de attractie 'Over the Edge'. Hier kun je, genietend van het uitzicht, in de hoogste schommel van Europa heen en weer bewegen over de rand van de A'DAM Toren. Voor een rustige middag is er binnen in A'DAM LOOKOUT een interactieve tentoonstelling over de geschiedenis en cultuur van Amsterdam.

Schermafbeelding 2022-06-20 om 15.19.32
17
Adres
Westerdok 824,
1013 BV Amsterdam

The Ravestijn Gallery

The Ravestijn Gallery werd in 2012 in Amsterdam opgericht door Jasper Bode en Narda Van 't Veer met een focus op onderzoekende en provocerende benaderingen van hedendaagse fotografie. En daarin zijn ze geslaagd. De galerie vertegenwoordigd verschillende nationale en internationale experimentele kunstenaars die het vermogen van fotografie op allerlei verschillende manieren laten zien. Deze moderne benadering van de hedendaagse fotografie maakt de tentoonstellingen van De Ravestijn Gallery zeer interessant. Maar, daarnaast zijn de kunstwerken ook een groot esthetisch plezier om naar te kijken en misschien zelfs een goede inspiratiebron voor de aankleding van een nieuw huis?

Interieur
129956512_4014002428644020_3378764216201953588_n
18
Adres
Distelweg 85,
1031 HD Amsterdam

De Lokatie Distelweg

In 2020 verkocht De Lokatie maar liefst 858.000 kilo aan spullen vanuit haar drie Amsterdamse kringloopwinkels op Buikslotermeerplein, Distelweg en de Eerste Oosterparkstraat. Alles tweedehands, dus ontzettend duurzaam. De Lokatie op de Distelweg is maar liefst 2.000 vierkante meter en daarmee een van de grootste van Amsterdam.

294575506_459142912887146_4918935355523689227_n
19
Adres
Van der Pekstraat 107h,
1031 CW Amsterdam

Treasure Depot

Bij Treasure Depot aan de Van der Pekstraat kan je terecht voor echte tweedehandse schatten. Na 15 jaar op allerlei markten te hebben gestaan, vonden eigenaren Emmanuelle en Frank het tijd om een echte winkel te openen. Het plafond is volgehangen met de mooiste retro lampen, maar ze hebben nog veel meer; sieraden, meubels, zonnebrillen en nog meer hebbedingen. Kijk je ogen uit en neem als je geluk hebt een nieuw hebbedingetje of een mooie lamp mee naar huis.

29694838_1713558705394111_1905889315238445056_n
PIEN-EVENT_bewerkt-kopie
20
Adres
Papaverhoek 23,
1032 JZ Amsterdam

Wdstck Gallery

Wdstck is gevestigd in Amsterdam Noord en biedt een scala aan multidisciplinaire objecten met een uitgesproken esthetiek aan die elk een eigen verhaal vertellen. Bij Wdstck zoeken ze het evenwicht tussen kunst en design, en brengen ze voorwerpen met een ziel in het dagelijks leven. Ze koesteren het temperament van elk materiaal en maken objecten met de hand om het verhaal te benadrukken dat de natuur te bieden heeft.

Boodschappen
324559017_893438495115335_1986839851957670039_n
21
Adres
Docklandsweg 3,
1031 KN Amsterdam

Vindict wine

In 2007 begon Vindict als een online wijnwinkel. Vijf jaar later, in 2012, openden ze hun eerste fysieke winkel op de Elandsgracht in het centrum van Amsterdam. In december 2022 verwelkomden ze hun tweede vestiging in de nieuwe stadswijk Aan het IJ in Amsterdam Noord. Vindict onderscheidt zich met een sterke focus op Europese wijnen, en in de winkel is er zelfs een shop-in-shop van Bob Wijn, gespecialiseerd in Nederlandse wijnen. Met ongeveer 100 Nederlandse en 700 internationale wijnen biedt Vindict een gevarieerde selectie voor wijnliefhebbers.

DSC6886-scaled
22
Adres
Van der Pekplein 1b,
1031 GZ Amsterdam

Fromagerie Abraham Kef

Bij Fromagerie Abraham Kef haal je de lekkerste kazen. Al in 1953 opende Abraham Kef een winkel in het centrum van Amsterdam. Als echte kaasliefhebber met buitengewone verhalen, bleek Kef een pionier op het gebied van kaas en liet hij een blijvende indruk achter. In 2017 opende er ook een Fromagerie Abraham Kef in Amsterdam-Noord, waar je naast de kaaswinkel ook een proeflokaal hebt. Hier kan alle kazen proeven in combinatie met een assortiment aan bijpassende (natuur)wijnen.

Schermafbeelding 2023-01-23 om 13.06.29
23
Adres
Van der Pekstraat 72,
1031 EE Amsterdam

Chateau Karlito

Het verscholen kleine winkeltje Chateau Karlito aan de Van der Pekstraat verkoopt voornamelijk natuurwijn, maar ook sake, tapijten, keramiek en nog veel meer. Vernoemd naar de eigenaresse Karlijn, is dit een plek waar je veel moois en lekkers kan proeven, bekijken en luisteren; waaronder jazz, hele goede sake en koffie. Toch is de selectie aan natuurwijn, met wijnen uit alle windstreken, het hoogtepunt van de winkel. Probeer ook het (echte!) Brabantse worstenbroodje en de amandelcroissant.

24
Adres
Van der Pekplein 15,
1031 CN Amsterdam

Dolzon

Op het Van der Pekplein ligt tussen andere kleine ondernemers bakkerij Dolzon verscholen. Het zou spijtig zijn om dit kleine bakkertje over het hoofd te zien. Hier verkopen ze namelijk lekkere zelfgemaakte broden, gebakjes en andere lekkere dingen, allemaal met veel liefde gemaakt. Het goede nieuws is dat de bakkerij ook op zondagochtend open is zodat je hier een echte versgebakken Franse croissant kan op kan peuzelen. Deze zijn alleen zo lekker dat je er wel heel snel bij moet zijn, want de croissants gaan snel.

Kaddour
25
Adres
Gentiaanstraat 13,
1031 AE Amsterdam

Slagerij Kaddour

Bij Kaddour hebben ze een breed scala aan ambachtelijk vers vlees en vleeswaren. Het assortiment biedt puur en eerlijk kwaliteitsvlees, zowel lokaal als wereldwijd, waaronder Hollands vlees, exclusief Halal Wagyu, verfijnd John Dee rundvlees uit Australië en smaakvol Maimoa lamsvlees uit Nieuw-Zeeland. Al ruim 35 jaar staat Slagerij Kaddour bekend om uitmuntende kwaliteit, met recepten die generaties lang worden doorgegeven. Ontdek de gezonde, diervriendelijke aanpak en geniet van handgeknoopte rollades, gourmet- en barbecuepakketten, ambachtelijke vleeswaren en het welbekende broodje kip grilworst.

The Edit | Broersma Werken & Wonen

Het Atelierhuis

Kunst & cultuur agenda januari 2026

Kunst & cultuur agenda januari 2026

Uitgelicht; Maison D’Angle

Uitgelicht; Maison D’Angle

Onlangs bekeken
Bekijk het overzicht

Deze site maakt gebruik van cookies.

Voor welke cookies geef je akkoord?