Elke woensdag open huis tussen 16:30-17.30 uur. Loop gerust binnen voor een rondleiding en bekijk de beschikbare appartementen.

 

De Centrale

Op het binnenterrein van een gesloten woonblok in De Baarsjes in Amsterdam, wordt een telefooncentrale, een monument uit 1926, getransformeerd naar een bijzonder woongebouw met binnentuinen. Het voormalig KPN gebouw is een monument, een verborgen parel, welke midden in een woonblok ligt. Voor de herontwikkeling is gekozen voor een transformatie naar 18 woningen met tuin, en 1 appartement, midden in een oase van rust. De verkoop van de laatste woningen is van start gegaan.

 

Townhouse 15 D

 

 

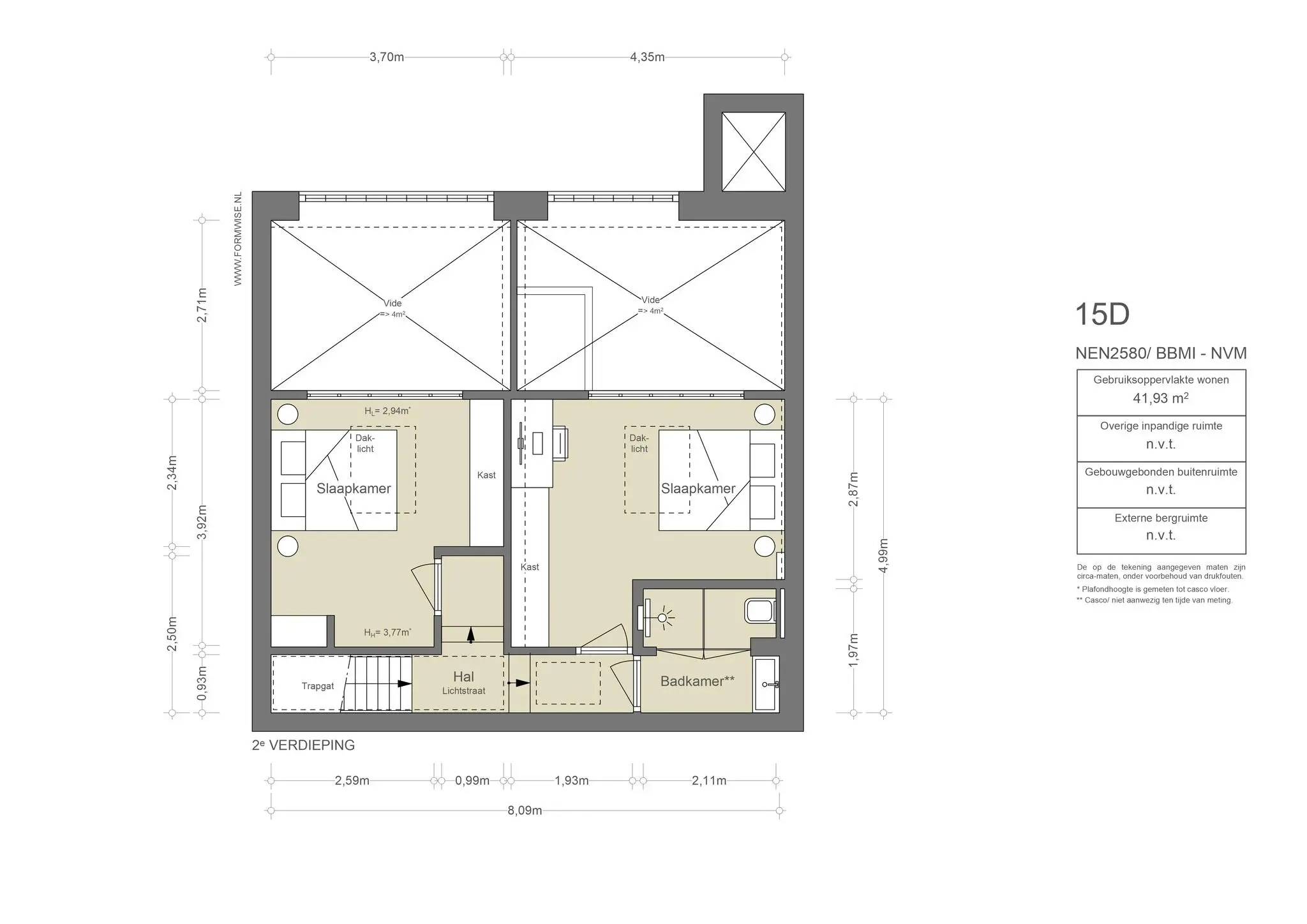
Dit speelse en lichte huis is verdeeld over drie woonlagen met een groene stadstuin van circa 32 m². Op de begane grond bevindt zich de fraaie leefkeuken, die wat dieper is gelegen, wat zorgt voor een gezellige eethoek. Het hoge plafond van circa vijf meter creëert een indrukwekkend ruimtelijk effect. De woning is voorzien van een Studio Piet Boon-keuken, een ontwerp dat volledig is geïntegreerd in de ruimte en is uitgerust met luxe Siemens-apparatuur, waaronder een vaatwasser, combi-oven en Quooker-kraan. Naast de keuken bevindt zich een ruime berging en een separaat toilet. De openslaande deuren vanaf het bordes geven toegang tot de fijne tuin met terras. De gedetailleerde eiken trap vormt een essentieel onderdeel van de ruimte en verbindt deze met de eerste verdieping. Hier bevindt zich de woonkamer, waar de originele betonconstructie in het zicht is gelaten en een vide van circa 5 meter hoog voor extra ruimtelijkheid zorgt. De ruimte biedt plaats aan een grote zithoek en een werk- of speelhoek. Aansluitend is er een hal met een toilet, wasruimte en een slaapkamer met badkamer ensuite. De badkamer is uitgerust met een wastafel met meubel, een inloopdouche en een opbergkast. De badkamers zijn afgewerkt met luxe tegels en kranen van Piet Boon. De slaapkamer met vide heeft een hoogte van 5,15 meter en een grote raampartij, waardoor er veel natuurlijk licht binnenvalt. Via de trap is de tweede verdieping bereikbaar. De trapopgang heeft een hoogte van 7,30 meter en een glazen lichtstraat, wat zorgt voor een extra ruimtelijk gevoel. Op deze verdieping bevinden zich de tweede en derde slaapkamer. Deze delen een badkamer met een inloopdouche, toilet en wastafel met meubel. Beide slaapkamers hebben een fraai stalen kozijn met glas, dat uitzicht biedt op de ondergelegen verdieping. Daarnaast beschikken beide kamers over een extra daklicht.

 

 

 

 

 

In de kelder bevindt zich een praktische berging van circa 4 m². De getoonde foto's zijn ter illustratie en kunnen afwijken van de daadwerkelijke woningen. Voor de exacte indeling en kenmerken verwijzen wij naar de plattegronden.

Kenmerken
Filips van Almondestraat 15D, Amsterdam
Vraagprijs
  • € 1.475.000 k.k.
Beschikbaarheid
  • In overleg
Vertrekken
  • 5 kamers
  • 3 slaapkamers
  • 2 badkamers
Onderhoud
  • Intern: Uitstekend
  • Extern: Uitstekend
Oppervlakten & Inhoud
  • Woonoppervlakte: 148 m²
  • Tuinoppervlakte: 32 m²
Installaties
  • Dakraam
  • Mechanische ventilatie
  • Natuurlijke ventilatie
  • Zonnepanelen
Type verwarming
  • Vloerverwarming geheel
  • Warmtepomp
Type warmwater
  • Elektrische boiler eigendom
Buitenruimte
  • Achtertuin
Duurzaamheid
  • Hr glas
  • Volledig geisoleerd
Plattegrond
Filips van Almondestraat 15D, Amsterdam
Filips van Almondestraat 15D
Filips van Almondestraat 15D-2
Filips van Almondestraat 15D-3
Documenten
Filips van Almondestraat 15D, Amsterdam
Locatie
Filips van Almondestraat 15D, Amsterdam
Eten & drinken
01
Adres
Witte de Withstraat 125-H,
1057 XR Amsterdam

Sham West

Restaurant Sham is het allereerste Syrische restaurant in Amsterdam. Chefs ervaren in de Syrische cuisine staan elke dag in de keuken om prachtige Syrische gerechten klaar te bereiden, zoals Baba Ganoush, Fatoush en Foul Muqalla. In het restaurant hangt een goede sfeer en er wordt regelmatig live muziek gespeeld. Omdat het de bedoeling om de kleine gerechtjes samen te delen met je tafelgenoten, wordt een bezoek aan Sham altijd een gezellige gelegenheid. Goede gesprekken, prachtig opgemaakte borden, en heerlijk verse ingrediënten, bij Sham is je avond compleet.

239146717_360848548872665_1235599640777855714_n
02
Adres
Van Speijkstraat 157HS,
1057 GX Amsterdam

Thai Thai Poppetje

Thai Thai Poppetje is een authentiek Thais streetfoodrestaurant dat de nadruk legt op versheid. Op hun beperkte kaart vind je klassiekers zoals viskoekjes, maar ook originele creaties zoals bitterballen van rode curryrijst met een smeuïge vulling en een knapperig korstje. Het restaurant biedt ook vegetarische en veganistische opties aan.

26165612_1787760961298744_2665224725295893488_n
03
Adres
Balboastraat 15hs,
1057 VS Amsterdam

Rotishop Gieta

Sinds 2008 is Rotishop Gieta een opmerkelijk begrip in de buurt, waar generatiesoude familie-recepten de basis vormen voor hun heerlijke gerechten. Gieta, die velen bij naam kent, verwelkomt een gevarieerde klantenkring voor roti, bara en bami. Met trots rolt Gieta nog steeds haar eigen roti, omdat handgemaakt naar haar mening altijd het beste is.

downloadgram.org_610695058_17975405936977609_8539314007563208742_n
downloadgram.org_610764730_17975405945977609_1306229365209936158_n
downloadgram.org_610671282_17975405969977609_4972116120418114050_n
04
Adres
Baffinstraat 1,
1057 SV Amsterdam

September

September is een intieme wijnbar en restaurant in De Baarsjes, gerund door drie vrienden Matthew, Valentijn en Lizzy, die elkaar leerden kennen in de horeca en nu hun eigen droomplek neerzetten. Hun stijl leunt op Franse keukenlogica met lokale seizoensproducten, en een compacte kaart die regelmatig mee wisselt. Wijn speelt een hoofdrol, met nadruk op natuurwijn en een aanpak die ontdekken makkelijk maakt zonder poespas

05
Adres
Jan Evertsenstraat 91,
1057 BS Amsterdam

Bar Baarsh

Een leuke gezellige bar in De Baarsjes waar je terecht kan voor een hapje, drankje of pub quiz op de maandag avond. Eigenaren van Visbar Beet hebben in november 2019 de zaak overgenomen maar wilde het 'oude' Bar Baarsh in stand houden. Het is dus nog steeds hetzelfde gezellige restaurant wat we gewend waren. De keuken is dagelijks geopend van 10:00- 22:00 voor ontbijt, lunch, borrel en diner. Voor de lunch heb je keuze uit verschillende boordjes zoals de gegrilde groente met zoete aardappel-chipotle crème of de avocado mash met avocado, ei en tomaat. Kies voor het diner bijvoorbeeld een dorade van de BBQ, een gelakte Rib eye of de Bar Baarsch burger.

Schermafbeelding 2022-05-18 om 18.29.39
06
Adres
Jan Evertsenstraat 136,
1056 EG Amsterdam

White label coffee

White label coffee is een koffiemerk met meerdere koffietentjes in Amsterdam. Ze roasten hun eigen koffie waarbij ze kwaliteit, openheid en samenwerking door de hele keten van het koffieproces belangrijk achten. De locatie in West is een soort van open huiskamer waar je gerust kan zitten om een koffietje te drinken. De zaak is minimalistisch ingericht waarbij gebruik is gemaakt van vintage interieur. Ze hebben koffie van verschillende origine die de barista’s met liefde voor je bereiden. Je kan ook lekkernijen bestellen voor bij de koffie en er zijn verschillende vegan melk opties.

330395866_728988148836979_8044589916189772151_n
306010281_609238110786746_2030159783972727770_n
286758554_387921876626672_5696208070626382574_n
07
Adres
Jan van Galenstraat 147,
1056 BN Amsterdam

Oficina

Bij Oficina bieden ze een wekelijks wisselend ontbijt- en lunchmenu aan, met ingrediënten die passen bij het seizoen. De focus ligt op het vinden van mooie producten uit Amsterdam en de omliggende boerderijen. Oficina is geopend van woensdag tot en met zondag van 10:00 tot 17:00 uur. Ontbijt wordt de hele dag geserveerd en de lunchservice begint om 11:30 uur.

197838590_394303158477494_3697288289228022643_n
08
Adres
Jan van Galenstraat 219,
1056 BW Amsterdam

Broodje Daan

Broodje Daan is een gezellige broodjeszaak met tijdloze prijzen, verwelkomt een gevarieerd publiek. Van 6.00 tot 15.00 uur op werkdagen kunt u genieten van een broodje en vers gezette koffie tegen aantrekkelijke tarieven. De broodjes dragen namen van de bedenksters, zoals de Bouwmaat XL Burgers, ontworpen door de mannen van de bouwmarkt. Zelfs huishond Buddy heeft zijn eigen creatie. De zaak trekt ook vaste klanten, waaronder 'Mevrouw Pindakaas', die dagelijks geniet van haar broodje pindakaas. Daan kent haar klanten door en door, volgt hun routines en deelt dagelijkse lachmomenten.

1515753586-meneer-de-wit_bar4589
1547131084-meneer-de-witjcb8132
09
Adres
Witte de Withstraat 10,
1057 XV Amsterdam

Meneer de Wit heeft Honger

In 2015 opende Meneer de Wit heeft Honger; een restaurant met een huiselijke sfeer en heerlijk eten. Chef Simo Bouabgha leerde koken van zijn oma in het zuiden van Marokko en houdt van het eten dat de moeders rondom de Middellandse zee met alle liefde, geduld koken. Het menu bestaat uit seizoensgebonden gerechten met deze verfijnde en warme smaken, vaak gebaseerd op groente maar er is ook duurzaam vlees, gevogelte en vis.

381028385_18395087263048388_5807018223629417144_n
10
Adres
De Clercqstraat 95,
1053 AH Amsterdam

Van 't Spit

Zoals je waarschijnlijk wel verwacht staat hier de gegrilde kip in halve of hele portie centraal.  De kip is sappig, goed gemarineerd en heeft een perfecte grillsmaak.  Deze is te combineren met diverse sauzen zoals de rode-uienchutney en piripiri. Klassieke bijgerechten als friet, maïs, koolsalade en aardappelpuree zijn beschikbaar.  Van 't Spit heeft een ongedwongen, warme sfeer en biedt royale porties voor een zeer goede prijs.

Schermafbeelding 2022-06-20 om 19.13.02
Schermafbeelding 2022-06-20 om 19.13.43
11
Adres
Ten Katestraat 16,
1053 CE Amsterdam

Bar Centraal

Op de gezellige Ten Katemarkt in Oud-West vind je Bar Centraal. Een voormalige BBQ restaurant bij de Ten Katemarkt bleek een perfecte locatie te zijn voor een tweede wijnbar voor de mensen van Glouglou. Bar Centraal bestaat uit twee gebouwdelen; Er is een deel waarin gegeten kan worden aan de bar van de open keuken. En er is een groter deel waarin de wijnbar staat. Het gangetje tussen de twee ruimtes is voorzien van een grote wijnkoelkast. De wijnkaart bestaat uit natuurwijnen (met een vermelding in de Star winelist!) en de meeste goede gerechtjes zijn to share.

 

26-lvffood-com-5129-57-20230127
12
Adres
Postjesweg 1,
1057 DT Amsterdam

Daalder (*)

Zijn Indonesische roots en Aziatische invloeden kruiden de inventiviteit van chef Huwaë. Hij schuwt allerminst de contrasterende smaken. Het talent van deze chef ligt in de harmonie die hij bereikt met dergelijke associaties. Soms is hij iets klassieker, zoals met een perfect gegaarde langoustine waarbij een botersaus komt die is verrijkt met champagne, appelsien en Grand Marnier. Subtiel, intens, explosief. Helemaal Dennis Huwaë. Daalder heeft 1 Michelin ster.

Schermafbeelding 2023-08-30 om 14.30.21
13
Adres
Nicolaas Beetsstraat 47h,
1053 RJ Amsterdam

Dona

Met Restaurante Dona brengen eigenaren Diogo en Sjors een eerbetoon aan hun grootmoeders en de Portugese keuken. Chef Diogo dankt zijn liefde en uitzonderlijke kookvaardigheden aan zijn grootmoeders, Tana & Tonica. Sinds zijn kindertijd leerden zij hem de ambacht van de authentieke Portugese keuken. Sindsdien deelt hij zijn passie en expertise in vele Europese restaurants. Hij laat gasten van over de hele wereld kennismaken met verrukkelijke Portugese gerechten. Voor Sjors belichaamt Dona zijn passie voor gastvrijheid en de onvoorwaardelijke steun van zijn grootmoeders hierin. Bep en Nel voorspelden altijd dat Sjors ooit zijn eigen restaurant zou openen. Ze steunden hem gedurende zijn carrière in het beheer van hoogwaardige restaurants.

 

412174660_3213646675598150_4852236387686728737_n
14
Adres
Nicolaas Beetsstraat 51,
1053 RJ Amsterdam

Petit Péché

Le Petit Péché staat symbool voor de kleine zonde. Door openlijk achter de bar te koken, willen ze laten zien dat het bereiden van vlees en vis op een respectvolle manier mogelijk is. De keuze van ingrediënten is lokaal. De chefs omarmen de vaak de minder gangbare producten. De (nu al) signature dish is gefrituurde kikkerbillen met bottarga en merg mayonaise. Uiteraard streven ze ernaar de warme en toegankelijke smaken te behouden die mensen kennen van Café Beurre.

244941393_392674422556390_5974260137434439690_n
361937251_1006343037055178_1266157854329145058_n
15
Adres
Postjesweg 98,
1057 EG Amsterdam

Mundi

Bij Mundi in Amsterdam-West komt alles samen: goede koffie, wijnen voor in de avond en een gezellige plek om te werken of te kletsen. Gelegen aan de Kinkerstraat, biedt Mundi een diversiteit aan bezoekers, van freelancers met laptops tot mensen die voor een sterke bak koffie komen. De koffie van Five Ways is krachtig en pittig, ook beschikbaar voor thuis. De roze bank met speelhoek maakt het kindvriendelijk, terwijl dagelijks lekkers van Ulmus en een selectie natuurwijnen de ervaring compleet maken. Mundi is elke dag open van 08:00 tot 16/17 uur.

280279707_690276598712258_782257989926286225_n
16
Adres
Lootsstraat 5,
1053 NT Amsterdam

Eetcafé Meo’s Colosseum

Bij het Surinaams-en Caribische Eetcafé Meo’s Colosseum kan je elke dag vanaf 04.00 uur 's ochtends tot 10.30 uur 's avonds terecht en op zaterdag tot 05.00 uur (en soms nog langer). Ze staan altijd voor je klaar wanneer andere eetgelegenheden gesloten zijn met lekkernijen als nasi, bami, pom, of moksi alesi. Op vrijdag en zaterdag zijn er ook barbecue gerechten en huisgemaakte friet. Krijg je er nog geen genoeg van? Binnenkort zijn ze 24 uur geopend.

Schermafbeelding 2022-06-20 om 13.29.38
53700300_311590863045393_1981039547722498048_n
17
Adres
Kinkerstraat 230,
1053 EN Amsterdam

Sababa

De eigenaar van Sababa wilde goede, perfecte falafel. Ze zijn verschillende combinaties gaan uitproberen, producten gaan proeven en zo ontstond hun perfecte falafel broodje. Geïnspireerd op de Israëlische keuken, heerlijk voor een snelle hap of om uitgebreid te eten met een biertje erbij.

338352218_584298323641670_4711459359542309389_n
339656072_768473978128516_5314100082435858911_n
18
Adres
Kwakersstraat 24,
1053 WD Amsterdam

La Parole

Tijn Verstappen, bekend van restaurants als Pazzi, Oeuf, Gertrude en Van 't Spit, vond dit historische pand de perfecte plek voor een Franse bistro in de Westerse wijk. La Parole, geleid door de getalenteerde chef Olivier Hirschmann (26), biedt zeven dagen per week brunch, lunch, diner en borrel tegen betaalbare prijzen. Het menu omvat klassieke Franse gerechten zoals moules frites, omeletten en cheeseburgers, evenals innovatieve creaties zoals brioche toast met steak tartare en ravioli met krab in een bisquesaus. La Parole is een welkome aanwinst voor de buurt en biedt een ontspannen sfeer met uitstekende wijn en een gezellige bar om aan te hangen.

Boodschappen
355858024_587525863490224_7804309936375678814_n
362603419_18297120616114775_3360408025604327005_n
19
Adres
Jan Evertsenstraat 31,
1057 ZX Amsterdam

Fort Negen bakkerij

Bij Fort negen in De Baarsjes kan je zien hoe het brood gebakken wordt. Terwijl je je vers gehaalde croissantje opeet kan je namelijk in de winkel en voor de etalage de bakkers met passie het deeg zien kneden op de met bloem bestrooide werkbanken. De bakkers hanteren een traditionele en manier van brood maken, het zuurdesembrood wordt maar liefst 26 uur gerezen. Dit zorgt voor een heerlijke knapperige korst en een zachte binnenkant. Ze gebruiken alleen maar biologische producten en maken alles met de hand. Wat ook leuk is; je kan er een workshop desembrood of croissant maken volgen.

20
Adres
Jan Evertsenstraat 89,
1057 BT Amsterdam

T’s teas

Bij T’s teas draait alles om de liefde voor het onderschatte theeblad. Als je van mening bent dat thee maar een saai drankje is, zal je hier geheid van gedachte veranderen. Alle kennis over theebladeren en de drankjes die je hiermee kan maken is hier verzameld in een winkel. De geur alleen al is een bezoek waard. Als je eerst de thee wil proeven of even wil bijkomen van alle geuren, kan je terecht in de theebar waar je allerlei soorten theedrankjes van over de hele wereld kan drinken.

74368093_571598240314359_8811672873834070652_n
21
Adres
Admiraal de Ruijterweg 43,
1057 JV Amsterdam

The Wine Spot

In 2012 is The Wine Spot opgericht door Filipe en Paulo in een kleine anti-kraak winkel aan de Jan Evertsenstraat in Amsterdam. Deze tijdelijke plek werd snel vervangen door een grotere, permanente locatie aan de Admiraal de Ruijterweg 43. Deze wijnwinkel biedt een uitgebreid assortiment wijnen uit heel Europa, zowel natuurlijke als klassieke varianten. Aan elke fles is een handgeschreven notitie bevestigd met uitleg over de wijn, de regio van herkomst en het vinificatieproces. Voor liefhebbers van iets anders is er ook een ruime selectie ambachtelijke bieren, port, sherry en dessertwijnen.

22
Adres
Mercatorplein,
1057 CA Amsterdam

De MercatorMarkt

De MercatorMarkt wordt de lekkerste en liefste markt in De Baarsjes genoemd en we snappen waarom. Het is een echte buurtmarkt, waar buurtbewoners hun eigen spullen kunnen verkopen en anders is het een kleine onderneming met een goed verhaal. Er is theater voor jong en oud, verschillende workshops en een draaimolen voor de kinderen. Hun doel is een duurzame kwaliteitsmarkt waar de buurt van op aan kan. De moeite waard!

23
Adres
Jan van Galenstraat 68,
1056 CC Amsterdam

Ela! Traiterie

De perfecte plek om de smaakvolle Griekse keuken te ontdekken. Ze bereiden hier alles dagvers, met zoveel mogelijk natuurlijke producten. Ze hebben belegde broodes, salades, hele maaltijden maar ook uiteraard mist de pita gyros of souvlaki niet op het menu. Maar behalve deze Griekse gerechten verkopen ze er ook delicatessen, zoals heerlijke biologische olijfolie of échte Griekse feta.

Interieur
Schermafbeelding 2022-05-19 om 13.53.12
Schermafbeelding 2022-05-19 om 13.57.57
24
Adres
Jan van Galenstraat 143,
1056 BN Amsterdam

Ted.Amsterdam

Ted.Amsterdam is een multifunctionele creatieve ruimte gevestigd in Amsterdam waar interieur, kunst en creativiteit elkaar ontmoeten. Ze verkopen verzamelbare mid-century moderne vintage en nieuwe meubelstukken, hedendaagse kunstwerken van lokale kunstenaars en unieke design objecten, en tegelijkertijd creëert het een unieke ruimte waar creativiteit kan bloeien. Of je nu op zoek bent naar een speciaal ontwerp voor je huis of tuin of juist een inspirerende ruimte voor een project, ted. is de plek voor jou.

104196247_2609875105928789_2143325823481766499_n
25
Adres
Baarsjesweg 208,
1057 HT Amsterdam

The BirdTsang

The BirdTsang is een jonge keramiek studio gevestigd aan de Baarsjesweg die unieke en handgemaakte ontwerpen maakt. The Bird Tsang wordt gerund door kunstenaars Robin de Vogel & Johannes Tsang, die zich focussen op de samenwerking met innovatieve chef-koks om unieke en op maat gemaakte ontwerpen te creëren die een eetervaring complimenteren en verhogen met onderscheidend en duurzaam keramisch servies.

Een houten rijksmonument uit 1880

Een houten rijksmonument uit 1880

Een appartement met internationale allure

Een appartement met internationale allure

Al veertig jaar is Toscanini een begrip in Amsterdam. Maud Moody, een van de oprichters, vertelt hoe het allemaal begon.

Al veertig jaar is Toscanini een begrip in Amsterdam. Maud Moody, een van de oprichters, vertelt hoe het allemaal begon.

Onlangs bekeken
Bekijk het overzicht

Deze site maakt gebruik van cookies.

Voor welke cookies geef je akkoord?