Peace, space, and light just a stone’s throw from the bustling city. For the current owners, this spacious family home built in 2004 was love at first sight. I completely understand why. Whenever I visit, I always find Grote Rieteiland to be a pleasant, quiet, and tree-lined neighborhood—a great place to live. It’s close to all the shops and within walking distance of Diemerpark.

The homes from this recent construction period are well-built. Moreover, this four-story home is well-insulated, and there are eight solar panels on the roof. That’s certainly a plus in these times of sky-high energy prices.

The owners have always loved living here. They shared how they always enjoyed the spacious interior, the garden where they often ate in the summer, and the ease with which the children could visit their friends through the back door. They loved “living outdoors.” They enjoyed it so much that they decided to move to an even more rural and expansive setting in Andalusia. That is the only reason they are selling their beloved home in IJburg.
 

Otte van Apeldoorn | Real estate agent Broersma Wonen

AM103421-98084-Zwanebloemlaan-186,-Amsterdam-130017227
AM103421-98084-Zwanebloemlaan-186,-Amsterdam-130017259
AM103421-98084-Zwanebloemlaan-186,-Amsterdam-130270208

A summary
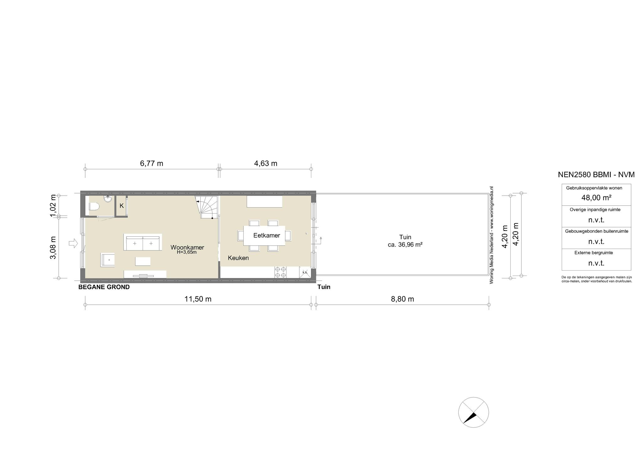
A pleasant, light, and spacious family home of approximately 175 m² in a wide, quiet street on Grote Rieteiland with four floors, a sunny southwest-facing garden, and a terrace on the second floor. From the kitchen, residents can walk straight into the sheltered garden, where they enjoy dining outdoors in good weather. The house has four bedrooms, two bathrooms, and a "second living room." The covered parking space is accessible via the back entrance and is easy to drive into. With an A++ energy label, the house is very energy efficient and also has eight solar panels on the roof—another big advantage these days. In addition, the ground lease has been bought out until April 16, 2052, and the General Provisions 2016 apply.

 

AM103421-98084-Zwanebloemlaan-186,-Amsterdam-130017172

Ground floor:
The entrance can safely be called spectacular: a space no less than 3.65 meters high with large windows that Immediately offer Immediately playful view of the radiant green city garden on the southwest. This garden of approximately 37 m² is almost 9 meters deep and has a sunny southwest location. The perfect extension of the kitchen in the summer months. The living room is directly connected to the kitchen. This makes it easy to prepare a delicious meal and keep an eye on the children in this attractive family home.

AM103421-98084-Zwanebloemlaan-186,-Amsterdam-130270266
AM103421-98084-Zwanebloemlaan-186,-Amsterdam-130270158
AM103421-98084-Zwanebloemlaan-186,-Amsterdam-130270259
AM103421-98084-Zwanebloemlaan-186,-Amsterdam-130270250
AM103421-98084-Zwanebloemlaan-186,-Amsterdam-130270168
AM103421-98084-Zwanebloemlaan-186,-Amsterdam-130270144
AM103421-98084-Zwanebloemlaan-186,-Amsterdam-130270183

First floor:
The 'second living room', as the current residents call this space, is located on this floor. They use this cozy room with its slightly lower ceilings at the rear as a media room, where they can retreat to enjoy a cozy family movie, for example. The rear facade, constructed almost entirely of glass, also offers a playful view of the city garden. At the front, a home office has been created, separated from the media room by a facade.

AM103421-98084-Zwanebloemlaan-186,-Amsterdam-130017229
AM103421-98084-Zwanebloemlaan-186,-Amsterdam-130017234
AM103421-98084-Zwanebloemlaan-186,-Amsterdam-130017224
AM103421-98084-Zwanebloemlaan-186,-Amsterdam-130017231

Second floor:
This floor has two full-sized children's bedrooms of almost equal size. The bedroom at the rear has French doors leading to a spacious balcony of approximately 12.5 m². A wonderful place to enjoy the setting sun. The spacious bathroom in the middle of the floor is equipped with a bathtub with hand shower, toilet, and double sink. The technical room and a storage closet are also located on this floor.

AM103421-98084-Zwanebloemlaan-186,-Amsterdam-130194607
AM103421-98084-Zwanebloemlaan-186,-Amsterdam-130017239
AM103421-98084-Zwanebloemlaan-186,-Amsterdam-130017252
AM103421-98084-Zwanebloemlaan-186,-Amsterdam-130017255
AM103421-98084-Zwanebloemlaan-186,-Amsterdam-130017248
AM103421-98084-Zwanebloemlaan-186,-Amsterdam-130017245

Third floor:
This floor also has two bedrooms. The master bedroom, measuring approximately 18 m², is located at the front, while the other bedroom is at the rear. These two Rooms a second bathroom with a shower, toilet, and sink. There is also a spacious storage cupboard on this floor.

AM103421-98084-Zwanebloemlaan-186,-Amsterdam-130017258
AM103421-98084-Zwanebloemlaan-186,-Amsterdam-130017261
AM103421-98084-Zwanebloemlaan-186,-Amsterdam-130194611

The outdoor space
The house has a sunny and green city garden of approximately 37 m² facing southwest. In the summer months, this garden serves as an extension of the kitchen, where residents can enjoy the sun in an oasis of tranquility. More outdoor space can be found on the second floor, where there is also a southwest-facing terrace of approximately 12.5 m². Due to the higher location of this terrace, the owners can enjoy the sun even longer on summer evenings.

AM103421-98084-Zwanebloemlaan-186,-Amsterdam-130270217
AM103421-98084-Zwanebloemlaan-186,-Amsterdam-130270189
AM103421-98084-Zwanebloemlaan-186,-Amsterdam-130270232
AM103421-98084-Zwanebloemlaan-186,-Amsterdam-130270274

The building
This attractive residential building was constructed in 2004 to a design by Atelier Kingma & Van Mameren, commissioned by Amvest, Eurowoningen, De Dageraad, and PWV Wonen, among others. It is part of a larger block in the center of Grote Rieteiland, which is a closed complex with a parking garage and storage rooms in the middle. Within this block, the residences vary residences height up to five stories—this house has four.

The neighborhood
The house is located on Grote Rieteiland, between Kleine Rieteiland and Haveneiland-West on IJburg. The neighborhood is characterized by lots of greenery, water, and wide streets. Nearby, on Haveneiland-West on IJburglaan, there is a shopping center for daily groceries and nice delicatessens for special occasions.

There are also many other amenities in the neighborhood. Primary and secondary schools, for example, which are highly regarded. IJburg also has a lot to offer residents in terms of sports. There are various sports clubs, including hockey, soccer, tennis, canoeing, and wind/kitesurfing. The hospitality industry is well represented with a wide and growing range of nice restaurants and bars.

For hikers, nature lovers, and children who enjoy playing outside, Diemerpark is within walking distance. A sea of green, twice the size of Vondelpark, with its own beach and sunbathing area. Residents also enjoy visiting IJburg: Blijburg, a beautiful, spacious beach on the IJmeer.

Parking facilities
The property includes a parking space in the enclosed garage, which is managed by the owners' association. Visitors can park on the public road for a fee.

Accessibility
The house is easily accessible by car via two access roads (S114) from the A10 ring road and/or the A1. Schiphol Airport, for example, is only a 20-minute drive away.

For cyclists, there is a good and fast cycle route along the Amsterdam-Rijnkanaal via Watergraafsmeer, which leads to the city center, among other places. Public transport connections are also excellent. There are several tram and bus stops around the corner on IJburglaan. Amsterdam Science Park station is a 14-minute bike ride away, and if you take the tram, you can be at Amsterdam Central Station within 15 minutes.

AM103421-98084-Zwanebloemlaan-186,-Amsterdam-130017183
AM103421-98084-Zwanebloemlaan-186,-Amsterdam-130017178

What the residents will miss
When we first stepped into this house, we Immediately fell Immediately with the enormous spaces, the high ceilings, and the floor-to-ceiling windows. Light! It feels like an Amsterdam mansion, but modern and in IJburg, with lots of greenery, air, and water around us. With four floors, it's a house that you can enjoy to the fullest as a family. And the sunny garden completes it; you can enjoy it early in the year.

The entrance hall and kitchen on the ground floor are unique, with a 3.75-meter-high ceiling. The large windows give an almost regal feel. A wonderful place to spend time during the day, eat together, and entertain friends.

What still makes us happy every day are the various rooms in the house. We consider the first floor, which we use as a living room and office studio, to be an 'extra', a bonus. And the two upper floors with the bedrooms a lot of privacy. We each have our own floor: the children and us.

The neighborhood is also great. The part of Zwanebloemlaan where we live is really nice and green. There are lots of children and it has a friendly atmosphere. When the weather is nice, many neighbors can be found outside their homes and in their gardens, the children play outside all day, and they visit each other's homes. With Diemerpark around the corner and the swimming beach, it is a true "vacation paradise" in the summer.

We have no complaints about the amenities either. The range of restaurants and cafés, for example, is becoming increasingly diverse and improved. Our favorites are M-Chi (Asian fusion), Bloem (Italian), Il Sogno wood-fired pizzas, and De Japanner on Strandeiland. In the harbor, you will find the cozy bar and restaurant NAP and eatery Barstow (California street food style). On Steigereiland, you will find Vrijburcht with a café, cinema, gallery, and a sunny terrace on the waterfront.

The best coffee and fresh bread—even on Sundays!—can be found at De Bakkersfiets around the corner, De Espressofabriek, or Coffee & Kids; ideal for settling down while your child plays or participates in a workshop.

The Saturday market offers delicious fresh and artisanal products, both local and from further afield. You will also find various food trucks and stalls selling beautiful flowers and plants. Throughout IJburg, there are all kinds of children's playgrounds and two (swimming) beaches: in Diemerpark (just around the corner) and the large Strandeiland at the end of IJburg.

So there's plenty to enjoy. But above all, the amount of space and light in this house is pure luxury. We're going to miss that so much! And the friendly contact with the neighbors, how the children play together, and the long summer evenings on our little piece of Zwanebloemlaan. It's a wonderful place, with peace and space, but still close to the bustling city!

AM103421-98084-Zwanebloemlaan-186,-Amsterdam-130017265
Features
186 Zwanebloem Avenue, Amsterdam
Asking price
  • €980,000 k.k.
Availability
  • By arrangement
Rooms
  • 8 Rooms
  • 4 bedrooms
  • 2 Bathrooms
Maintenance
  • Internal: Good
  • External: Good
Floor area & Content
  • Floor area: 173 m²
  • Garden area: 41 m²
  • Plot size: 76 m²
Year of construction
  • 2003
Services and installations
  • Mechanical ventilation
  • Cable TV
Location
  • On quiet road
  • In residential area
Parking
  • Indoor
  • Underground parking
Shed/Storage Facilities
  • Equipped with electricity
Type of heating
  • District heating
Type of hot water
  • Central facility
Destination
  • Living space
Ownership type
  • Leasehold
Outdoor space
  • Rear garden
  • Balcony
Land Registry details
  • Local authority: Amsterdam
  • Section: Au
  • Number: 164
Sustainability
  • Fully insulated
  • Energy label A++
Type
  • Mansion
  • Terraced house
  • Residential house
Floor plan
186 Zwanebloem Avenue, Amsterdam
AM103421-98084-Zwanebloemlaan-186,-Amsterdam-130205693
AM103421-98084-Zwanebloemlaan-186,-Amsterdam-130205696
AM103421-98084-Zwanebloemlaan-186,-Amsterdam-130205695
AM103421-98084-Zwanebloemlaan-186,-Amsterdam-130205697
AM103421-98084-Zwanebloemlaan-186,-Amsterdam-130205694
AM103421-98084-Zwanebloemlaan-186,-Amsterdam-130225937
Documents
186 Zwanebloem Avenue, Amsterdam
Location
186 Zwanebloem Avenue, Amsterdam
Food & drink
mchi_20130210
01
Address
IJburglaan 1295,
1087 JJ Amsterdam

Mchi Restaurant

At restaurant Mchi, it's all about tasting, eating, and sharing. This Asian restaurant operates according to a shared-dining concept, allowing you to enjoy all kinds of fresh, high-quality dishes together. They serve delicious Asian dishes here—from dim sum to sushi to fried tofu. The restaurant has a relaxed atmosphere, and the staff are very welcoming and helpful.

106477833_3230819603637267_5055141329423735816_n
02
Address
IJburglaan 1489,
1087 KM Amsterdam

Espressofabriek

De Espressofabriek has several locations in Amsterdam; at the Westergas, IJburg and at Zeeburgereiland. At De Espressofabriek you can get the best coffee, cappuccino, and of course espresso. The look is hip and industrial and you can sit inside or outside. What is extra nice about this place is that they also have their own coffee roastery. They also sell their own products in the stores so you can enjoy a cup of fresh coffee at home.

467683_483607991655776_1494931399_o
03
Address
Krijn Taconiskade 124,
1087 HV Amsterdam

NAP Amsterdam

NAP Amsterdam is beautifully located on the harbor in IJburg. They have a lovely outdoor terrace on the water and a beautiful interior. The menu offers a wide variety of dishes, from tagliatelle to hamburgers. NAP Amsterdam is the place to be for lunch, dinner, or a refreshing drink. They also offer great packages for celebrating a birthday, anniversary, or promotion. NAP Amsterdam is a wonderful place to settle down during a bike ride along the water or to enjoy a drink in the sun with friends.

191686408_2310828075718601_276839848729415013_n
04
Address
Overdiemerweg 37,
1111 PP Diemen

Pure Pavilion

Paviljoen Puur is a spectacular location in the middle of Diemerpark. The pavilion can be rented for weddings and business events, but you can also come here for an informal bite to eat. The building's rounded shapes are inspired by the nearby restored Diemerdam fort. The surrounding greenery creates a wonderfully calm atmosphere around the pavilion. A nice feature is that they have both an indoor and outdoor kitchen, so when the weather is nice, they can also cook outside in the sun.

4409833c90ff3131539a50f0e860c079
Lighthouse Island_Winter_Annelore_W
05
Address
Amsterdam

Lighthouse Island

Planning something truly special? Then Vuurtoren Eiland is the place for you. A getaway for the true foodie and wine lover. Board the boat at the Lloyd Hotel and let yourself be carried away to a small island on the IJ. A hidden gem where you can be welcomed in the greenhouse in summer and dine in the fort in winter. Expect a complete 5-course dinner with regional products prepared over an open fire. You can now also stay overnight! Five bedrooms have recently bedrooms .

Screenshot 2022-07-01 at 12:42:58
06
Address
Durgerdammerdijk 53,
1026 CA Amsterdam

Tea Lady Durgerdam

Theetante Durgerdam is located in the dike house on the IJsselmeer. Here, the most delicious homemade cakes are served with a warm cup of coffee or tea. You can sit on the picturesque terrace with a view of the authentic houses of Durgerdam, but it is also very cozy inside at the regulars' table. The cakes vary every week, so you can try a new piece of cake every week. The ideal place to recover from a long bike ride.

home-1800x1000_4
eat-drink-1800x1100_1
07
Address
Durgerdammerdijk 73,
1026 CB Amsterdam

Restaurant de Mark

Immerse yourself in the welcoming social atmosphere of De Mark restaurant by the lake. Whether by the fireplace in the dining room, in the wine room, or on the terrace by the water. De Mark is a modest but absolute culinary hotspot, created by Michelin-starred chefs. Chef Koen Marees works together with gourmet heroes Richard van Oostenbrugge and Thomas Groot from the Michelin-starred restaurants 212 and De Juwelier in Amsterdam. Local, fresh, and seasonal ingredients form the basis of the menu. Familiar classics are bold and uncomplicated, and simple ingredients create dishes that just taste good. Combine this with a bottle from the wine cellar to complete your evening.

272793218_3188322951397443_5440626548767686297_n
08
Address
Flevopark 13a,
1095 KE Amsterdam

Distillery 't Nieuwe Diep

Distillery 't Nieuwe Diep is located in a beautiful, peaceful spot in Flevopark. When the weather is nice, you can sit on the terrace by the pond and listen to the sounds of ducks and other animals around you. They make around 100 products, including various genevers, liqueurs, and bitters, made from organic ingredients as much as possible. Take, for example, 'het groene juffertje in de plas' (the green lady in the pond) or a lemon jenever. In addition to spirits, they also serve other drinks and various snacks.

 

Baggerbeest
09
Address
Rudi van Dantzigstraat 1,
1095 PK Amsterdam

Bar Baggerbeest

A place to have a drink, a bite to eat, meet new people and connect. Satisfy your hunger with delicious stone oven pizzas. Quench your thirst with one of the (organic) wines, fair-trade coffee or (Amsterdam) beer. Bar Baggerbeest is part of Broedplaats Baggerbeest, the cultural anchor point of the emerging urban district: the Sluisbuurt. Club: On Fridays, Saturdays and Sundays after 9:00 PM, there is room for cultural programming.

10
Address
Cruquiusweg 83D,
1019 AT Amsterdam

Krux brewery

Cruquiuseiland used to be one large shipyard. Now, only one brewery remains. It's a place where beer is brewed and where you can also come and drink. According to some, it's the smallest brewery in Amsterdam. This has two advantages: the small batches make it easy to experiment with recipes, and the beer is always super fresh!

joki
11
Address
Cruquiusweg 89F,
1019 AG Amsterdam

Jōki

The name ‘JōKi’ (which means Steam in Japanese) refers to the ‘Gemaal de Cruquius’, the largest steam engine in the world.
The coffee here is made with beans from Stooker, so that's alright.

Screenshot 2022-07-01 at 12:46:22
12
Address
Javaplein 23,
1095 CJ Amsterdam

Wild Boars Restaurant

Restaurant Wilde Zwijnen serves modern Dutch cuisine. They describe their approach as follows: 'For us, modern Dutch cuisine means using ingredients grown in the Netherlands, and the closer to home, the better. We cook with seasonal ingredients, including vegetarian options, and use sustainable products as much as possible.' Wilde Zwijnen serves a set menu consisting of three, four, or five courses. On Mondays and Tuesdays, guests can dine à la carte.

image
13
Address
Javaplein 25,
1095 HR Amsterdam

Bar Bachrach

Bar Bachrach is both a bar and a restaurant. Here you will find modern Middle Eastern cuisine, such as halloumi with beetroot or a Jerusalem bagel. Chef Yaniv carefully composes the dishes using various fresh seasonal products. You can enjoy a good glass of wine and small dishes here, or linger over a long dinner from the chef's pre-composed menu. The wooden interior and mix of vintage and modern elements create a wonderfully warm atmosphere inside.

335762138_934316891080636_1785099370396513561_n
14
Address
Helmholtzstraat 37,
1098 LD Amsterdam

Badeta

Badeta is slowly but surely making a name for itself in the city, now with two locations. It started in De Pijp and now also has a branch in the Watergraafsmeer. The two founders have the mission to open a location in every district. This coffee roastery sells delicious coffee with its own blends and various homemade delicacies. Sustainable coffee is central, sourced from small-scale farmers with environmentally friendly farms and good working conditions.

332004675_204572422165776_4113914790198879540_n
379365114_800101005188183_1929561919302743061_n
15
Address
Newtonstraat 101,
1098 HC Amsterdam

Mas Bakery

Owner Suzanne Corbeek was once a film producer, but her career took an unexpected turn with the arrival of Covid-19. She discovered her passion for baking and quickly became interested in making her own sourdough. Demand grew steadily, and her kitchen at home was soon transformed into a small bakery, with the whole family pitching in. In 2022, Suzanne opened Bakery Mas, in a corner building on Newtonstraat. Here, she not only sells her delicious organic sourdough bread, but also offers a range of sourdough toasts, focaccias, coffee, tea, and other beverages as lunch options.

16
Address
Javastraat 149,
1094 HE Amsterdam

De Jonge Admiraal

At the end of Javastraat, adjacent to Javaplein, you'll find De Jonge Admiraal. They serve delicious coffees, great sandwiches, and wonderful cakes from Majesteit Taart, a cake shop further down Javastraat. De Jonge Admiraal is cozy and laptop-free; everyone there is chatting or playing games, creating a great atmosphere. In the evenings, you can also enjoy tasty local beers, and there are often fun events like pub quizzes, Ajax matches, or live performances.

Groceries
17
Address
Joris Ivensplein,
1087 BP Amsterdam

The REURING market

The REURING market is open every Saturday from 9:00 a.m. to 4:00 p.m. and is a small but charming market in IJburg. The cozy atmosphere of IJburg and the high quality of the products are paramount here. It is located next to the IJburg Shopping Center and next to a beautiful playground. You will find various stalls selling Alfons coffee beans from Italy, a jam specialty shop with unique chutneys, BBQ pork belly from a food truck, a Mexican specialist, and much more. Go there and experience it for yourself.

Kaddour
18
Address
Pampuslaan 22,
1087 LA Amsterdam

Kaddour Butcher Shop

At Kaddour, they have a wide range of artisanal fresh meat and charcuterie. The range offers pure and honest quality meat, both local and worldwide, including Dutch meat, exclusive Halal Wagyu, refined John Dee beef from Australia and flavorful Maimoa lamb from New Zealand. Butcher Kaddour has been known for excellent quality for over 35 years, with recipes passed down through generations. Discover the healthy, animal-friendly approach and enjoy hand-knotted roasts, gourmet and barbecue packages, artisanal meats and the well-known chicken grill sausage sandwich.

LANDMARKT_TOTAL-WEB-2048×1363
19
Address
Schellingwouderdijk 339,
1023 NK Amsterdam

Schellingwoude Farmers' Market

Landmarkt Schellingwoude is a large indoor supermarket selling products mainly from local entrepreneurs and small growers. The Landmarkt is known for its artisanal suppliers from the neighborhood and therefore has a very wide range of high-quality products. You can also pick up freshly prepared meals here or eat in the restaurant next to the supermarket. There, you can eat whatever the chef has prepared, so it's different every day. You can also have a cup of coffee and look out over the beautiful Schellingwouderdijk.

millie
327448751_105529872451533_2683322311542512579_n
20
Address
Bottelarijstraat 1,
1019 VC Amsterdam

Millie Vanillie

At Millie Vanillie, baking takes place from early morning until late in the evening. The range includes fresh sourdough breads and pastries such as cardamom buns and custard buns.
In addition, delicious coffee is also served at Millie Vanillie. The beans also come from  Sprout.

Kai-Hing-Li_OMOE-1
21
Address
Harriët Freezerstraat 108A,
1103 JP Amsterdam

Kai Hing Store

At Toko Kai Hing in the Ganzenhoef shopping center, also known as Toko Omoe, you will find a unique combination of Chinese and Surinamese culture and products. In addition to Chinese dragons and lanterns hanging from the ceiling, the most delicious Surinamese dishes are Sold here. This family toko offers, among other things, Hong Kong-style fried rice and ginger beer from Blesi, made by a family from Southeast Asia. Kai Hing Li, 80 years old and still working in the toko every day, ensures an authentic atmosphere and delicious food.

Interior
286463721_1350282202151603_2114217501944506381_n
22
Address
Bert Haanstrakade 100,
1087 DN Amsterdam

Joink

Since 2011, Joink has been buying and selling mainly vintage designer furniture, with an emphasis on designs by Charles and Ray Eames. Almost all items are sourced in the EU and the United States, purchased from private individuals, estates, auctions, and vintage dealers. Since 2016, Joink has been offering a wider range of amazing design classics, from well-known to lesser-known timeless designs.

23
Address
Pedro de Medinalaan 89-91,
1086 XP Amsterdam

Design020

On the western tip of Steigereiland, you will find Design020, a large home furnishings store with all kinds of designer furniture from suppliers such as Kasstoor & Wonen 2000 and other showrooms. It is the perfect place to wander around and get inspiration for interior design. The space is beautiful, with lots of natural light, floating staircases, and an industrial character. In addition to designer furniture, the showrooms also feature building materials such as door handles and cast floors. Design020 is also a meeting point for architects and designers.

162849785_190219572906159_4250034024078259020_n
24
Address
Pedro de Medinalaan 91,
1086 XK Amsterdam

Cash register

Kasstoor offers sophisticated Amsterdam living. This business has been a leader in the field of top-quality designer furniture for over 100 years. Kasstoor is an expert in bringing together classic and modern ideas. A team of professionals travels the world to collect the most beautiful items. You can view this beautiful designer furniture in the showroom located on the beautiful Amsterdam IJ. From sofas to chairs to tables, you will find it all here, and all of the highest quality.

119235730_640071679979829_2528260860777625963_n
25
Address
Javaplein 31HS,
1095 CJ Amsterdam

Found in Sweden

Found in Sweden, located on Javaplein in Amsterdam East, is a vintage store that lives up to its name. Everything in the store has been carefully selected from Sweden, ranging from mid-century sideboards to lamps and tablecloths. The collection is constantly changing, with new finds from Sweden or lovingly restored pieces arriving every week. Although some items are design classics, the shop also offers affordable vintage treasures. The owner, a passionate vintage hunter, shares her love for unique pieces. Found in Sweden is a place where the world of vintage comes to life, with surprises on every visit.

The Edit
Go to overview
The former Gouwzee Museum

The former Gouwzee Museum

‘Mr. Frederik, with an eye for detail and functionality, has transformed this property into a delightful and spacious family home in one of the finest locations in Amsterdam.’

‘Mr. Frederik, with an eye for detail and functionality, has transformed this property into a delightful and spacious family home in one of the finest locations in Amsterdam.’

A selection of the tastiest pastries and best patisseries in Amsterdam

A selection of the tastiest pastries and best patisseries in Amsterdam

Recently viewed
Explore the overview

This site uses cookies.

Which cookies do you agree to?