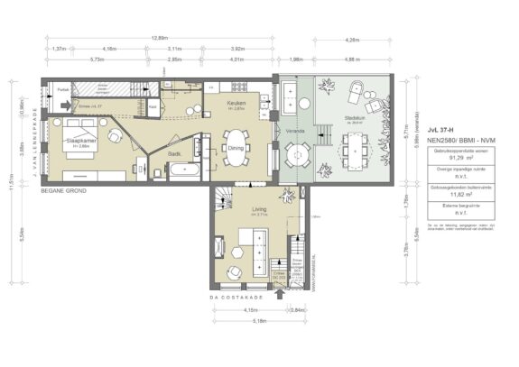
The house is distinctive in terms of its use and layout. It offers beautiful views of the Da Costakade and Jacob van Lennepkade and has a traditional entrance on Jacob van Lennepstraat.

The kitchen-diner is the central hub of the entire property. The house has a wonderful living space with excellent dimensions and is situated in a superb location in Amsterdam. Within walking distance of the canal belt, but also of the lively Bosboom Toussiantstraat and the bustling Bilderdijkstraat.

Jelle Mundt | Broersma Wonen

AM104124-1731857-Da-Costakade-203,-Amsterdam-137164972

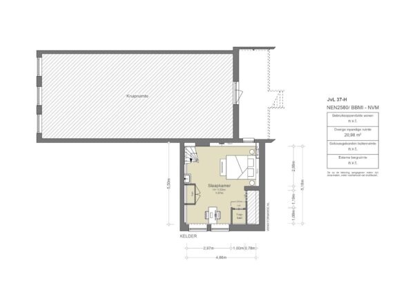
House 1 Jacob van Lennepstraat 37 house (approx. 91m²)

Ground floor:
The ground floor apartment has an entrance on both Da Costakade and Jacob van Lennepstraat. There is a hall with a cloakroom. Large bedroom with bathroom, equipped with a bathtub, double sink, and toilet.
The large and beautifully designed kitchen is centrally located and is open to the living room on Da Costakade.

AM104124-1731857-Da-Costakade-203,-Amsterdam-137164985
AM104124-1731857-Da-Costakade-203,-Amsterdam-137164974
AM104124-1731857-Da-Costakade-203,-Amsterdam-137164979

The outdoor space
The ground floor of the house has French doors leading from the kitchen to the veranda and garden. In addition, the front of the house is a wonderful place to sit on a bench and enjoy the afternoon and evening sun.

AM104124-1731857-Da-Costakade-203,-Amsterdam-137164990
AM104124-1731857-Da-Costakade-203,-Amsterdam-137164989
AM104124-1731857-Da-Costakade-203,-Amsterdam-137164994
AM104124-1731857-Da-Costakade-203,-Amsterdam-137164998
AM104124-1731857-Da-Costakade-203,-Amsterdam-137165001

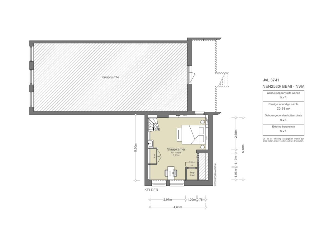
Basement Da Costakade
The basement at the front of the house has a bedroom and pantry with connections for a washing machine and dryer. This space has a height of 1.87 to 1.92 meters.

AM104124-1731857-Da-Costakade-203,-Amsterdam-137165004
AM104124-1731857-Da-Costakade-203,-Amsterdam-137165008

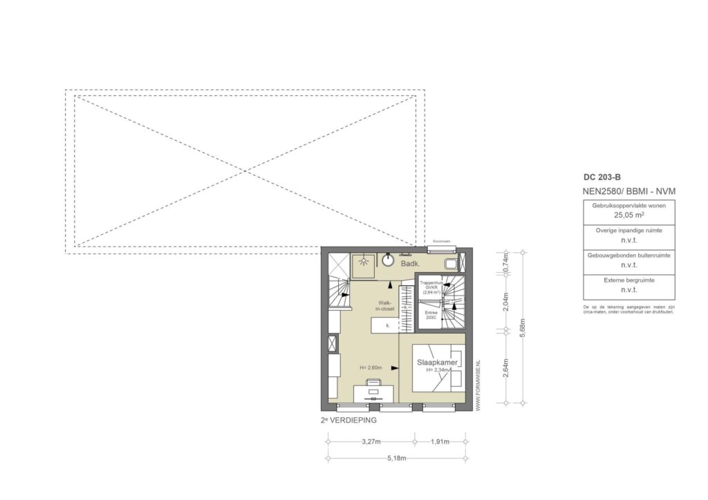
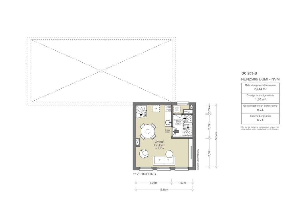
Property 2 Da Costakade 203 B (first and second floor) approx. 50 m²

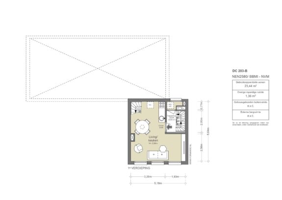
First floor:
The communal staircase provides access to the entrance on the first floor. There is a kitchenette and living area at the front. There are three windows offering sweeping views over the water.

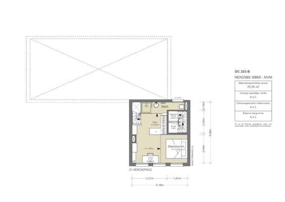
Second floor:
Internal staircase to the sleeping area. There is a beautifully built-in bed and custom-made wardrobes. The bathroom has a walk-in shower, sink, and toilet.

AM104124-1731857-Da-Costakade-203,-Amsterdam-137165011
AM104124-1731857-Da-Costakade-203,-Amsterdam-137165012
AM104124-1731857-Da-Costakade-203,-Amsterdam-137165021
AM104124-1731857-Da-Costakade-203,-Amsterdam-137165024
AM104124-1731857-Da-Costakade-203,-Amsterdam-137165030
AM104124-1731857-Da-Costakade-203,-Amsterdam-137165041

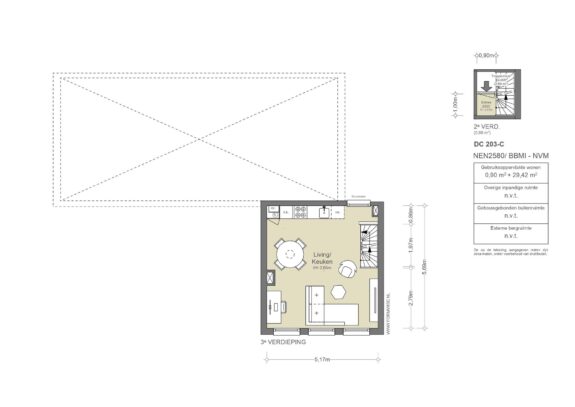
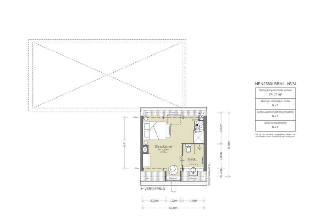
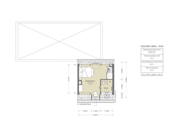
Apartment 3 Da Costakade 203 C (third floor and attic) approx. 54 m²

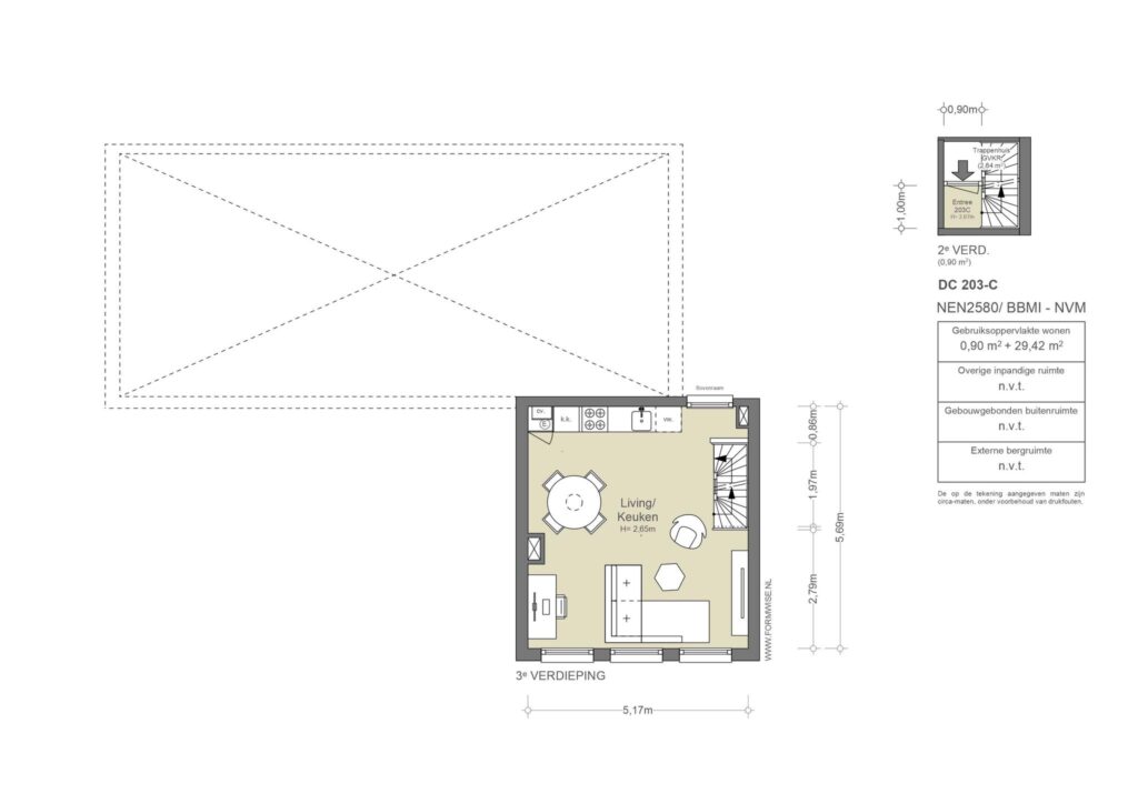
Third floor:
The apartment has its own entrance from the second floor. There is a cozy living room with an open kitchen and three windows overlooking the canals.

Attic floor:
The cozy attic floor has a nice height and exposed wooden trusses. The sleeping area has a bathroom with a shower, sink, and toilet.

AM104124-1731857-Da-Costakade-203,-Amsterdam-137165057
AM104124-1731857-Da-Costakade-203,-Amsterdam-137165049
AM104124-1731857-Da-Costakade-203,-Amsterdam-137165070
AM104124-1731857-Da-Costakade-203,-Amsterdam-137165076
AM104124-1731857-Da-Costakade-203,-Amsterdam-137165079
AM104124-1731857-Da-Costakade-203,-Amsterdam-137165082
AM104124-1731857-Da-Costakade-203,-Amsterdam-137165086

The details

  • Usable living space approx. 207 m²
  • Veranda and garden measuring approx. 30 m²
  • Located on private land
  • Completely empty, free of rent and use
  • Delivery By arrangement, can be done quickly.
  • The residences part of a building. It is also possible to divide the residences into three residences residences the applicable rules.

The neighborhood
The residences located in one of the most beautiful areas of Amsterdam West. Close to the canal belt and within walking distance of Bosboom Toussaintstraat and Vondelpark.

An area with a wide variety of restaurants and cultural attractions (De Hallen). In addition, there is the Ten Kate market, food halls, and the lively Elandsgracht around the corner.

Parking
Parking is available via a permit system. There are several parking garages nearby where you can also park with a valid parking permit.

Public transportation stops on Bilderdijkstraat. (approx. 2 minutes' walk)

Accessibility
The property is located in the shelter of Nassaukade, one of the main access roads. It is also easily accessible via Overtoom, taking exit S106 from the A10 ring road.

The building
The residences part of a building complex constructed in the late 1800s and early 1900s. This was a distinctive period of construction, with traditional buildings forming part of the first urban expansions. Partly across De Da Costakade is a wide canal, together with the Jacob van Lennepkade. In the past, these waterways were used intensively for deliveries to and from Amsterdam's inner city.

 

AM104124-1731857-Da-Costakade-203,-Amsterdam-137164969
AM104124-1731857-Da-Costakade-203,-Amsterdam-137165096
AM104124-1731857-Da-Costakade-203,-Amsterdam-137165100
Features
Da Costakade 203, Amsterdam
Asking price
  • €1,690,000 k.k.
Availability
  • By arrangement
Rooms
  • 8 Rooms
  • 3 bedrooms
  • 3 Bathrooms
Maintenance
  • Internal: Good
  • External: Good
Floor area & Content
  • Floor area: 207 m²
  • Garden area: 26 m²
  • Plot size: 33 m²
Year of construction
  • 1882
Services and installations
  • Mechanical ventilation
  • Natural ventilation
  • Cable TV
Location
  • On water
  • In residential area
Parking
  • Paid parking
  • Public parking
  • Parking permits
Type of heating
  • Central Heating Boiler
Type of hot water
  • Central Heating Boiler
Destination
  • Living space
Ownership type
  • Freehold
Outdoor space
  • Rear garden
Land Registry details
  • Local authority: Amsterdam
  • Section: Q
  • Number: 1906
Sustainability
  • Roof insulation
  • Double glazed
  • Energy label C
Type
  • Family house
  • Canal house
  • Terraced house
  • Residential house
Documents
Da Costakade 203, Amsterdam
Location
Da Costakade 203, Amsterdam
Food & drink
Screenshot 2022-06-20 at 19:00:24
01
Address
Bilderdijkstraat 203,
1053 KS Amsterdam

De Japanner

The Japanese has become a phenomenon in both De Pijp and Oud-West. The concept is simple and straightforward: delicious Japanese finger food paired with either a cocktail, Japanese beer, sake, or a non-alcoholic alternative, of course. It comes as no surprise that reviews of De Japanner are rave, with the friendly staff and tasty snacks receiving particular Spotlight.

272906180_4754289304606196_2316678134679603007_n
02
Address
Bosboom Toussaintstraat 26,
1054 AS Amsterdam

Café Toussaint

Café Toussaint is a cozy neighborhood café where you can enjoy breakfast, lunch, dinner, snacks, and cocktails. Meals are served in a small dining area overlooking the open kitchen or on the lovely large outdoor terrace. There's never a dull moment at Toussaint. They have cupboards full of games, a boules court, and depending on the season, they host mussel feasts, barbecue events, or wine tastings.

275843270_493096732309075_1709426496827556956_n
244372554_393432455608837_1440249416982792851_n
03
Address
Bosboom Toussaintstraat 28-H,
1054 AS Amsterdam

Gertrude

Gertrude is a bar and restaurant where you can enjoy an excellent meal. The cuisine here follows the seasons, with an emphasis on seasonal vegetables and sustainably sourced fish and meat. Think pickled sardines with arugula oil, pappardelle with ragù, or finish with pear crumble with sour cream and Kef cheeses. The interior consists of beautiful antique pieces, creating a chic yet homely atmosphere. You can dine here during the week and also have lunch here on weekends.

04
Address
Bilderdijkstraat 208H,
1053 LG Amsterdam

Sunday roti

It's a fact that Soenessardien's roti is a huge success, but he also serves other popular choices such as bara, a fried spiced dough with shrimp or lamb, for example. The nasi and bami are served with vegetables and salad, and the grilled dishes have a delicious Surinamese twist. The restaurant is mainly frequented by local residents, but more and more tourists are discovering this place. You can also have food delivered to your home via the website.

 

275335010_978007842873510_9036372361978497498_n
294431600_369850948563647_4204512199247441432_n
05
Address
Bilderdijkstraat 164 H,
1053 LC Amsterdam

Brioche.

This brand-new bakery specializes in (as you might expect) French brioche. They offer a selection of sweet rolls with classic flavors such as cardamom and cinnamon, as well as others such as berries and praline. They also have savory specialties such as a brioche with salmon and cream cheese.  They are open Wednesday through Friday from 8:00 a.m. to 5:30 p.m. and Saturday and Sunday from 9:00 a.m. to 5:00 p.m.

312331621_1088836571776973_4262642838619724150_n
294589445_714591559836108_6334057245334888778_n
06
Address
Nassaukade 330 H,
1053 LT Amsterdam

Cafecito

Cafecito is part of the Cafecito franchise, an Amsterdam-based coffee roastery that decided to open coffee shops to stimulate their own sales when sales to catering establishments stagnated during the pandemic. Cafecito already has three branches in Amsterdam and one in Rotterdam. The Nassaukade location is the newest addition, led by entrepreneur Chow, who previously owned two bubble tea shops. She now has her own Cafecito, where she employs professional baristas to prepare coffee, including the pride of the business: cold brew. In addition to various types of coffee, they offer small cakes and their own coffee blend for home use.

©rachelecclestone_PEPS-INTERIORS__September-09-2025_DSC07510
07
Address
Bilderdijkstraat 158H,
1053 LC Amsterdam

Peps

Peps is a Spanish wine and food bar in Oud-West with a kitchen led by chef Raymond van Welzenis, who previously worked at BAUT and gives tapas and pinchos a creative twist with finesse and flavor. The menu features more than sixty small dishes, from classics such as pimientos de padrón and pulpo to oysters on ice, ideal for sharing with friends or with drinks. The menu combines Spanish tradition with a modern, informal setting where brunch, dinner, and cocktails flow effortlessly into one another.

1519ee_6ac76a1674b441f1abb675ca34e30f4d_mv2
08
Address
Eerste Constantijn Huygensstraat 41H,
1054 BR Amsterdam

The Bab

The Korean restaurant The Bab has the authentic taste you would expect from a Korean restaurant, but without being too fancy. Owners Junghun Pyo and his wife Haksun (Sunny) Kim want people to feel at ease and enjoy casual Korean food. The first things that come to mind when you think of Korean food are bibimbap and fried chicken. Bibimbap contains rice, vegetables, and a raw egg. The fried chicken is prepared with a special Korean spice mix. Another popular dish you can order at The Bab is kimchi pancakes. These pancakes are filled with onion and kimchi, a fermented cabbage that is becoming increasingly popular in the West.

downloadgram.org_609930707_18074677673366171_2740458049347652876_n
downloadgram.org_610631877_18074677631366171_1146120732393511510_n
09
Address
Bilderdijkstraat 140,
1053 LA Amsterdam

SILK

SILK is the neighborhood restaurant of Limau Chen, known from nNea Pizzeria and Salvo Patisseries, who deliberately draws on her own roots here after years of working in the Italian hospitality industry. In the kitchen is chef Paolo Manzo, who, together with Chen, creates cuisine that is not meant to be fusion, but rather a cultural dialogue between East and West. Their dishes roughly follow the Silk Road, with influences from Asia and Southern Europe coming together in distinctive, seasonal dishes. Think Asian-style fried whole sea bass, alongside pasta-like textures, fresh acids, and deep umami notes.

263151911_4984840728206347_6656739176783290457_n
10
Address
Kinkerstraat 112,
1053 ED Amsterdam

LOT61 Coffee Roasters

Coffee roastery LOT61 is located on the corner of Kinkerstraat. In addition to fresh beans – which smell wonderful – you can also come here for a strong, good cup of coffee, breakfast and bakery products. The cozy space, decorated with wood and subway tiles, ensures that you could sit here for hours. Their mission is to be the most circular specialty coffee brand ever. Also try the chocolate chip cookies, also called 'crack cookies', but be careful because they are addictive.

277274092_570465227271282_2863090128467155428_n
321728804_132502672992041_1979043488818020825_n
11
Address
Kinkerstraat 122,
1053 ED Amsterdam

Pain epidemic

During lockdown, Paindemie emerged as a creative outlet for chefs who wanted to share their culinary passion. Initiated by Guillaume de Beer of The Breda Group, Paindemie offers a unique experience with generous burgers, toasted sandwiches, and sandwiches in a space inspired by a Japanese subway station. The burgers are prepared with ethically sourced Dutch goat meat, while vegetarians can enjoy homemade smash burgers from Redefine Meat. The highlight? The BIG Mie, an ode to the Big Mac. In addition, the wine list boasts carefully selected natural wines, sakes, and cocktails, all served in the charming art deco bar.

downloadgram.org_582764027_17859423015564300_3438836274206826094_n
12
Address
Kinkerstraat 122,
1053 ED Amsterdam

MOYŌ

Chef and owner Guillaume de Beer (formerly of Bar Gui) started MOYŌ as an intimate restaurant concept focused on luxury and attention to detail. In true Paindemie style, he serves a chef's choice tasting menu of five or eight courses, built around two of the most refined Japanese ingredients: toro and wagyu. These products form the heart of the cuisine and determine the character of the entire experience. The style is distinctive and precise, with dishes that revolve around richness, texture, and pure taste experience. The ambiance is exclusive and warm, a hidden gem for guests who consciously choose a special night out.

325749984_906537340772511_1825606846932047451_n
13
Address
Bilderdijkstraat 116,
1053 KZ Amsterdam

Toko Bersama

Toko Bersama is the place to go for authentic Indonesian dishes. From delicious roti to rames and from soups to snacks, there is something for everyone. There are several variations of the rice table Available, from small (for one person) to extra complete. This can be served completely vegetarian (if desired). With the normal rice table (€36), for two people, you can choose two basic dishes, three meat dishes, and three vegetable or soy dishes. Krupuk, seroendeng, tempeh, and sambal are included as standard. The rice table offers the opportunity to try different Indonesian dishes.

180661497_109525414592089_5524060405684313540_n
199541340_112181734417905_7498033300373632292_n
14
Address
Looiersgracht 144,
1016 VT Amsterdam

Café the Young Orphan

Café De Jonge Wees, located at Looiersgracht 144, is a typical brown neighborhood pub that lays the foundation for the well-known Amsterdam conviviality with an extensive selection of beers, genevers, and snacks. Ajax is always on TV here, and thanks to the sunny terrace, you can enjoy the atmosphere both inside and outside. What's more, Café De Jonge Wees is the sister bar of Proeflokaal A. Van Wees, which means that all the jenever served in the Jordaan comes from A. Van Wees Distilleerderij de Ooievaar in Amsterdam.

187513275_541642613509567_7586706852571280627_n
15
Address
Eerste Constantijn Huygensstraat 63H,
1054 BT Amsterdam

Uncommon

In the lively Eerste Constantijn Huijgenstraat, Uncommon offers a unique coffee and dining experience. The founders, Clay and Josh, go beyond the well-known coffee sources. They also source beans from unusual plantations in Myanmar and Indonesia, which they then roast themselves. With every cup of coffee served, they feel obligated to pay tribute to the coffee producer. This dedication to special coffee also extends to the menu, where vegetarian or vegan dishes always contain an unusual ingredient. Despite the hustle and bustle of the street, the minimalist stylish interior of Uncommon offers a Zen-like atmosphere.

360140550_18370084879023426_5307795712086357556_n
16
Address
Bilderdijkstraat 113,
1053 KN Amsterdam

Skina

Skina has a minimalist yet funky vibe and serves excellent coffee. The beans are roasted by Rush Rush Coffee. They also serve other hot and refreshing cold drinks such as lemonade. You can enjoy these with pastries such as a slice of marble cake, cinnamon croissant, or brioche with oranges. They also offer sandwiches, both vegetarian and meat options, served on delicious focaccia bread.

17
Address
Eerste Constantijn Huygensstraat 82,
1054 BX Amsterdam

Coffee shop

The most delicious Italian coffee made by good baristas. The service is very good and you can taste that the coffee is made by experts. You can also go here for simple and tasty breakfast snacks. They have take-away here, but sitting inside is also possible. The coffee shop has several branches in the city.

IMG_0015
18
Address
Bilderdijkkade 27,
1053 VH Amsterdam

Berry

Berry Amsterdam is a hotspot for juices, smoothies, coffee, and more. This coffee/lunch spot can be found on Bilderdijkkade. The cozy and warm interior, with its many plants and books, is reminiscent of a living room. They also have a lovely terrace where you can enjoy the sun. Most products are organic, and laptops are not allowed—Berry Amsterdam is, as they say themselves, a Wi-Fi-free zone!

362281468_17877326531919863_8876445204828833093_n
19
Address
Kinkerstraat 142 C-H,
1053 EG Amsterdam

Hawawshi

Groceries
downloadgram.org_496874981_17848936944460251_3669236045324019553_n
20
Address
Bosboom Toussaintstraat 70,
1054 AV Amsterdam

Zicami Market

Zicami Market is a bi-monthly Italian market, set up by Camilla, known for her patisserie brand La Torta di Camilla. Out of her love for her roots, she brings together a carefully selected group of Italian food makers in Amsterdam. Visitors stroll past stalls selling cannoli, handmade pasta, artisanal sauces, charcuterie, cheeses, olive oil, and dolci, as if walking through a Sicilian village. The strength of Zicami lies not only in the food, but also in the atmosphere: espresso at small tables, Italian music, and the feeling of a neighborhood market where everyone meets. You can find the market every first and third Saturday of the month at Bosboom Toussaintstraat 70.

 

288460093_5757378127616106_4944675648070804179_n
21
Address
Eerste Helmersstraat 63 hs,
1054 DC Amsterdam

Vleck wines

Vleck wines is one of the first importers of natural wines in the Netherlands. The wines are purchased Immediately farmers in France, going straight from the vineyard to the store. Vleck's philosophy is to interfere as little as possible with the natural processes of winemaking, and no insecticides or artificial fertilizers are used in the vineyards. In short, if you love natural wine, this is the place to be.

324881858_834540850983260_7922799188280236168_n
22
Address
Elandsgracht 113,
1016 TT Amsterdam

Vindict wine

Vindict wine can be found on the edge of the Jordaan district on Elandsgracht. Because they not only love wine but also design and construction, they have given this beautiful place its own unique and sustainable design. Every part of the shop has had a previous life. For example, the floor is made of stone slabs from old brick factories, and the wines are presented in shoe cabinets from the Puma factory in the former Czechoslovakia. Every type of wine is available here: from five euros to a bottle of Dom Pérignon Champagne. All white, rosé, and sparkling wines are available chilled.

Interior
Shop-blue-wall2
Wildernis-HR-10-e1505960790573
23
Address
Bilderdijkstraat 165F,
1053 KP Amsterdam

Wilderness

At Wildernis on Bilderdijkstraat, you can find plants, pots, books, accessories, and other green gifts, but you can also enjoy the most delicious cup of coffee. All products in the store are made with love and care and are as sustainable as possible. Come and take a look at this green oasis of tranquility!

120215712_3464581680287775_8524877858352079533_n
24
Address
Eerste Helmersstraat 84-C,
1054 DL Amsterdam

Arjan

The recognizable "Arjan bouquet" can be seen passing by on the shoulder of many cyclists. The bouquets can be found at Arjan Bloemen on the Eerste Helmersstraat in Amsterdam. The owner, Arjan Konincks, has been working with flowers from a young age. Together with his team, he is ready every day to help you create the most beautiful bouquets.

Art & culture
Sweet-Spills_WEBRES_JDEWAART_10.5.22_43-1920×1080
25
Address
Bilderdijkstraat 165 C,
1053 KP Amsterdam

Gerhard Hofland

Over the years, Gerhard Hofland has grown into one of the largest galleries in Amsterdam, representing a wide variety of art and artists. These artists work in both abstract and more figurative art. In addition, the gallery continuously works to introduce international artists to the Dutch public and undertakes projects with young and talented artists to support them in their first steps in the professional art world.

The Edit
Go to overview
The most beautiful florists in Amsterdam

The most beautiful florists in Amsterdam

The lawyer who uses art to think differently. Aernoud Bourdrez on art, conflicts, and the space between the two.

The lawyer who uses art to think differently. Aernoud Bourdrez on art, conflicts, and the space between the two.

Spotlight: a wonderfully light and cleverly laid-out apartment on Valeriusplein in Oud-Zuid

Spotlight: a wonderfully light and cleverly laid-out apartment on Valeriusplein in Oud-Zuid

Recently viewed
Explore the overview

This site uses cookies.

Which cookies do you agree to?