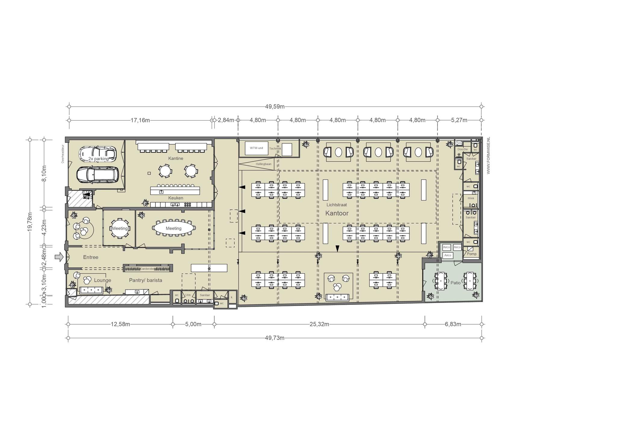
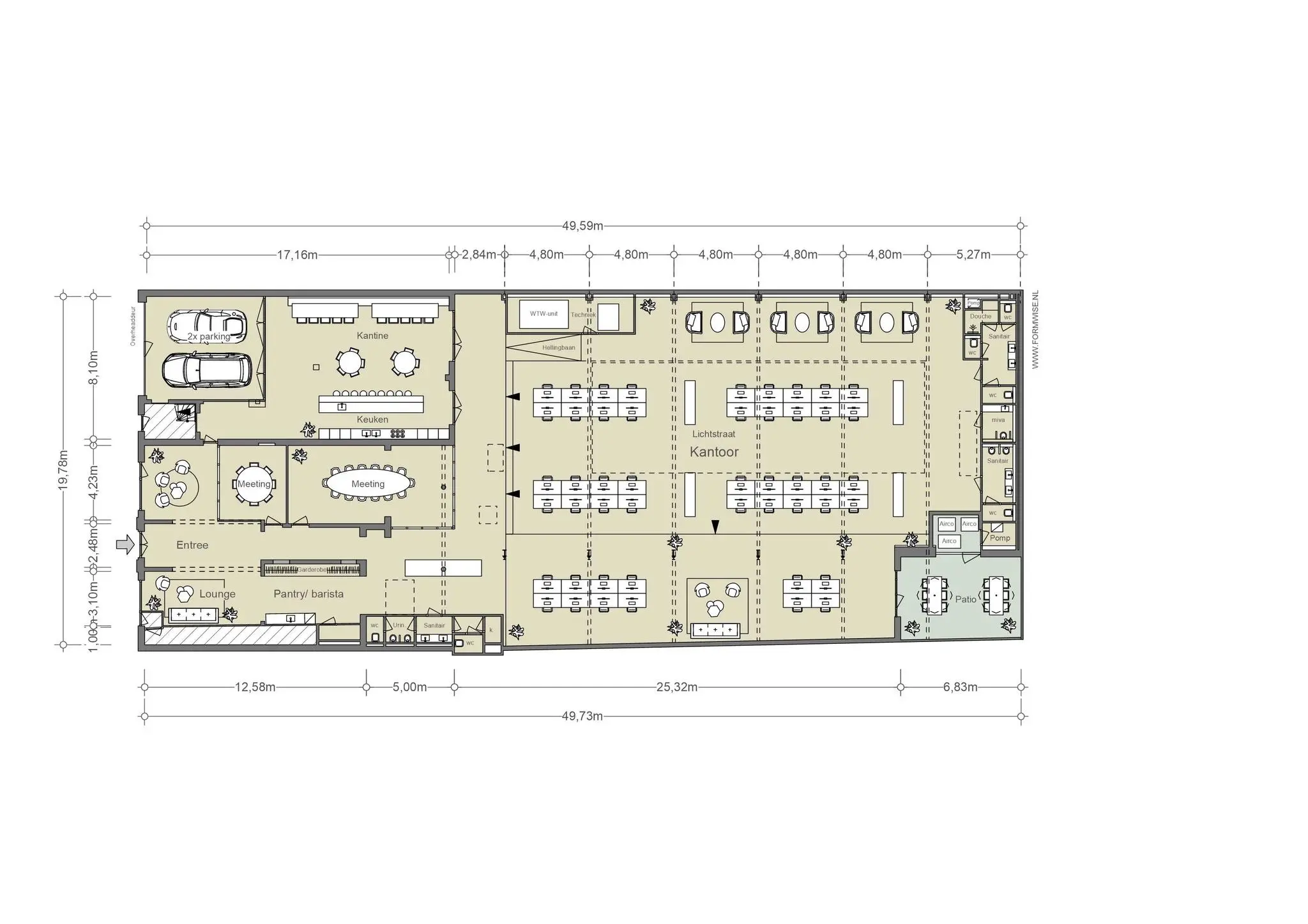
In de welbekende en luxe Plantage buurt in Amsterdam-Oost staat het charmante gebouw ‘t Koetshuys. Dit historische gebouw dateert uit 1865 en is in mei 2019 volledig gerenoveerd zodat het voldoet aan de wensen en behoeften van een moderne kantoorgebruiker. Bij de renovatie is rekening gehouden met duurzaamheid door het plaatsen van een hoogwaardige luchtbehandelingsinstallatie met koeling en WTW zodat de kantoorruimte beschikt over een energielabel A. De gehele begane grond van circa 879 m² VVO is te huur. Er bestaat de mogelijkheid tot het parkeren van meerdere auto’s in de kantoorruimte. 

Uniek aan ’t Koetshuys is het zeer grote daklicht met stalen constructie waardoor er veel daglichttoetreding is en de aanwezigheid van een ruime, open werkvloer zonder kolommen. De kantoorruimte is hoogwaardig afgewerkt, inclusief stijlvolle verlichting, luxueuze sanitaire voorzieningen en een patio aan de achterzijde. 

Het kantoor is uitermate geschikt voor creatieve gebruikers die de voorkeur geven aan een werkomgeving binnen een historisch gebouw. De ruimte onderscheidt zich door een speels interieur en een open kantoorindeling. Bovendien is de kantoorruimte volledig afgestemd op moderne eisen voor kantoorgebruik, waarbij functionaliteit, duurzaamheid en hedendaags design samenkomen. Voor dit object geldt een aantrekkelijke aanvangshuurprijs.

Bijzonderheden
•    aantrekkelijke aanvangshuurprijs
•    gemeentelijk monument
•    energielabel A 
•    modern en hoogwaardig opleveringsniveau 
•    creatief
•    mogelijkheid tot parkeren 

Plantage Middenlaan 21-17
Plantage Middenlaan 21-18 kopie
B103700-2019372-Plantage-Middenlaan-21,-Amsterdam-232691920
B103700-2019372-Plantage-Middenlaan-21,-Amsterdam-232691898
B103700-2019372-Plantage-Middenlaan-21,-Amsterdam-232691918

Gebouw

’t Koetshuys met stal is een ontwerp van de architect Laarman en werd hoogstwaarschijnlijk op verzoek van likeurstoker Schmitz in 1888 gebouwd. Jacob de Vries was de koetsier die destijds samen met zijn gezin op nummer 19 woonde. De likeurstoker Schmitz was de toenmalige bewoner van nummer 21. In 1920 werd het koetshuis tijdelijk gebruikt door het Koloniaal Instituut, samen met nummer 21. Later werd het een garage en daarna een dansschool. De begane grond van het gebouw is nu beschikbaar als kantoorruimte. De bovengelegen verdiepingen worden bewoond.

Buitenruimte

Aan de achterzijde bevindt zich een exclusieve patio van circa 22 m² welke toegankelijk is via openslaande deuren vanuit de kantoorruimte. Deze patio leent zich uitstekend voor een gezellige lunch of borrel.

B103700-2019372-Plantage-Middenlaan-21,-Amsterdam-232691908
B103700-2019372-Plantage-Middenlaan-21,-Amsterdam-232691910

Buurt + hotspots

Het gebouw ligt in de beroemde Plantage buurt, een historische wijk die al sinds de 17e eeuw een belangrijk onderdeel van de stad is. Deze buurt fungeert als een groene oase te midden van het bruisende stadsleven. Een juweel in de omgeving is Hortus Botanicus, dit is één van Europa’s oudste botanische tuinen. Verderop wordt de schoonheid van de natuur gevierd in dierentuin ARTIS, welke sinds 1838 een monument is. Deze omgeving herbergt diverse culturele schatten, waaronder het Rembrandthuis, het Joods Historisch Museum en het Verzetsmuseum.

De Plantage buurt staat bekend om haar talloze terrassen op unieke locaties. Een voorbeeld is restaurant Bloem, gehuisvest in een 17e-eeuws pakhuis, met een terras dat uitkijkt over het  water van het Entrepotdok. Ook het terras van Café-Restaurant De Plantage biedt een prachtig uitzicht op de ingang van dierentuin ARTIS. Op het sfeervolle Kadijksplein is het bijzondere Italiaanse restaurant A Tavola gevestigd, evenals het gezellige eetcafé Orloff en Café Kadijk.

Bereikbaarheid

Met de auto is de Plantage Middenlaan gemakkelijk bereikbaar via de ring A10 (afslag S112) en de Gooiseweg en Wibautstraat. Vanuit de binnenstad is de locatie goed bereikbaar via de Mauritskade. Tramlijn 14 (richting Flevopark) rijdt door de straat heen en biedt een uitstekende verbinding naar Station Amsterdam Centraal en andere stadsdelen van Amsterdam.

Parkeergelegenheid

Parkeren is mogelijk op de openbare weg middels betaling of een vergunningensysteem. Informatie over voorwaarden en mogelijkheden voor verkrijging van een (bedrijfs-) vergunning en eventuele wachttijd is op te vragen via de gemeente Amsterdam.

Op zes minuten loopafstand is parkeergarage Markenhoven gelegen waar diverse parkeerabonnementen beschikbaar zijn. Tevens bestaat er de mogelijkheid om meerdere auto’s te parkeren in de kantoorruimte.

B103700-2019372-Plantage-Middenlaan-21,-Amsterdam-232691952
Kenmerken
Plantage Middenlaan 21, Amsterdam
Overige kenmerken

Oppervlakte 
De totale oppervlakte bedraagt 878,55 m² VVO kantoorruimte gelegen op de begane grond. Tevens is er een patio van circa 22 m². 

Opleveringsniveau
De kantoorruimte wordt opgeleverd, in huidige staat, met onder andere de volgende voorzieningen:

•    eigen ruime entree 
•    overheaddeur voorzien van glas
•    gevlinderde betonvloer
•    sanitaire ruimte met voorportaal (voorin) v.v. twee wc's en twee urinoirs
•    sanitaire ruimte met voorportaal (achterin) v.v. drie wc's en een douche
•    sanitaire ruimte met voorportaal (achterin) v.v. één wc en twee urinoirs
•    sanitaire ruimte (achterin) v.v. één MIVA toilet
•    patio aan de achterzijde
•    diverse lichtstraten
•    verlichtingsarmaturen 
•    vloerverwarming
•    aansluitingen pantry/keuken
•    luchtbehandelingsinstallatie met koeling
•    WTW unit 
•    brandmeldinstallatie
•    databekabeling
•    kabelgoten en vloerpotten

Huurprijs
Aanvangshuurprijs: € 295,- per m² per jaar te vermeerderen met omzetbelasting.
Tweedejaars huurprijs: € 325,- per m² per jaar te vermeerderen met omzetbelasting.
Derdejaars huurprijs: € 350,- per m² per jaar te vermeerderen met omzetbelasting.

Servicekosten
Huurder dient zelf contracten af te sluiten met de betreffende leveranciers voor de levering van gas/water/elektra en eventuele overige voorzieningen.

Bestemming
Publiek-/privaatrechtelijk is de bestemming kantoorruimte van toepassing.

Monumentale status 
Gemeentelijk monument.

Energielabelklasse
Voor dit object geldt energielabelklasse A.

Betalingsverplichting
Per kwartaal bij vooruitbetaling te voldoen.

Huurtermijn
Vijf jaar met aansluitende verlengingsperioden van vijf jaar.

Huuringangsdatum
Per direct. 

Huurprijsindexering
Jaarlijks, voor het eerst 1 (één) jaar na huuringangsdatum, vindt indexering plaats van de huurprijs op basis van de wijziging van het Consumentenprijsindexcijfer (CPI), reeks CPI Alle huishoudens (2015 =100), als gepubliceerd door het Centraal Bureau voor de Statistiek (CBS).

Zekerheidsstelling
Huurder dient een waarborgsom/bankgarantie (model ROZ) te stellen ter grootte van tenminste drie maanden huur en servicekosten, beide te vermeerderen met btw.

Huurvoorwaarden
Op basis van de Modelhuurovereenkomst kantoorruimte en andere bedrijfsruimte in de zin van artikel 7:230a BW, zoals opgesteld door de Raad voor Onroerende Zaken (R.O.Z. model februari 2015), met de bijbehorende algemene bepalingen, eventueel door verhuurder aan te vullen met bijzondere bepalingen.

Btw-plicht
Huurder verklaart dat hij voor tenminste 90% met omzetbelasting belaste prestaties verricht. Indien huurder op enig moment niet meer aan dit criterium voldoet, zal er van rechtswege sprake zijn van omzetbelasting vrijgestelde verhuur. Alsdan wordt de overeengekomen kale huurprijs, exclusief omzetbelasting, zodanig verhoogd dat het voor verhuurder ontstane financiële nadeel volledig door huurder wordt gecompenseerd.

Overige bepalingen
Plantage Middenlaan 21, Amsterdam

Voorbehoud Broersma Werken
Deze vrijblijvende informatie is met zorgvuldigheid samengesteld. Voor de juistheid hiervan wordt door Broersma Werken geen aansprakelijkheid aanvaard, noch kan hieraan enig recht worden ontleend.

Deze informatie is niet bedoeld als aanbod. Door aanvaarding van de vermelde condities of het uitbrengen van een, daarvan al dan niet afwijkend, aanbod worden Broersma Werken noch haar opdrachtgevers op enige wijze gebonden, ook niet tot het doen van enig tegenbod. Broersma Werken treedt uitdrukkelijk slechts op als adviseur van haar opdrachtgever en niet als gevolmachtigde namens haar. Voorts geldt dat tussen partijen eerst juridisch binding kan ontstaan nadat definitieve overeenstemming is bereikt ter zake van al hetgeen zij met elkaar beogen te regelen en deze overeenstemming bovendien is vastgelegd in een schriftelijke en namens beide partijen rechtsgeldig ondertekende overeenkomst, waarbij artikel 3:39 BW overeenkomstige toepassing vindt.

Broersma Werken is een besloten vennootschap, ingeschreven bij de Kamer van Koophandel onder nummer 34121232. Broersma Werken verleent al haar diensten op grond van de Algemene Voorwaarden NVM voor professionele opdrachtgevers Versie februari 2023. De algemene voorwaarden zijn van toepassing op alle opdrachten die aan haar zijn of worden verstrekt en/of op de levering van al haar diensten en producten aan wie dan ook. De algemene voorwaarden worden op verzoek toegezonden en zijn tevens te downloaden op broersma.nl. De aansprakelijkheid van Broersma Werken is in alle omstandigheden en jegens eenieder beperkt tot het bedrag dat door de beroepsaansprakelijkheidsverzekering van Broersma Werken in het desbetreffende geval wordt uitgekeerd.

Toelichtingsclausule NEN2580
De Meetinstructie is gebaseerd op de NEN2580. De Meetinstructie is bedoeld om een meer eenduidige manier van meten toe te passen voor het geven van een indicatie van de (bruto vloer- /verhuurbaar vloer-/gebruiks-) oppervlakte. De Meetinstructie sluit verschillen in meetuitkomsten niet volledig uit, door bijvoorbeeld interpretatieverschillen, afrondingen of beperkingen bij het uitvoeren van de meting.

Plattegrond
Plantage Middenlaan 21, Amsterdam
B103700-2019372-Plantage-Middenlaan-21,-Amsterdam-232691984
Documenten
Plantage Middenlaan 21, Amsterdam
"][/dflip]
Locatie
Plantage Middenlaan 21, Amsterdam
Eten & drinken
Low-Res-voor-internet-Eik-en-Linden-2021-Livestream-Copyright-Janus-van-den-Eijnden-2-768×512
01
Adres
Plantage Middenlaan 22A,
1018 DE Amsterdam

Café Eik en Linde

Café Eik en Linde is een echte Amsterdamse bruine kroeg met een lange geschiedenis. Tegenwoordig komt hier een gemêleerd publiek samen dat reikt van stamgasten en biljarters tot studenten en toeristen. Het zorgt voor een aangename sfeer waardoor het café een begrip is geworden, ook buiten Amsterdam. Het café is onder meer bekend om de radio-uitzendingen die in de bovenzaal werden opgenomen, met als beroemdste uitzending ‘Een dik uur met Ischa’ van Ischa Meijer. Het is kortom een plek waar politiek, literatuur en kunst samenkomen met een biertje.

blog-1
02
Adres
Plantage Middenlaan 30A,
1018 DG Amsterdam

Box Sociaal

Box Sociaal is in de eerste plaats een ontbijt- en brunchrestaurant, maar biedt ook diner- en drankopties aan. Het menu is geïnspireerd op Australië. De gerechten worden bereid met duurzame en lokale producten. Voor vegetariërs en veganisten is er goed nieuws: alle vleesburgers kunnen worden vervangen door de 'Beyond Meat Burger'. Geniet van een kwalitatieve brunch, lokaal gebrande koffie, zorgvuldig geselecteerde natuurwijnen, op maat gemaakte cocktails en heerlijke speciaalbieren.

de+Plantage-Buiten+Herfst-129+copy
03
Adres
Plantage Kerklaan 36,
1018 CZ Amsterdam

De Plantage

Bij De Plantage kom je voor de klassieke, statige Amsterdamse grandeur. Bij de bijzondere plek naast/in Artis kan je terecht voor alles en meer: een prima kop koffie met een ontbijtje, een snelle of langzame lunch of een uitgebreid diner. De plek voelt groot aan bij binnenkomst, maar de inrichting is intiem. Laat je verrassen door de Plats de Plantage van de chefs, of kies uit de vele à la carte opties. Laat zeker de Hemelse Modder als dessert niet aan je voorbij gaan.

Schermafbeelding 2022-06-27 om 17.36.31
Schermafbeelding 2022-06-27 om 17.36.48
04
Adres
Entrepotdok 8,
1018 AD Amsterdam

Restaurant Entrepot

Dit restaurant zit, (verrassend genoeg) gevestigd op het Entrepotdok. Een van de mooiste stukjes Amsterdam, prachtige grachten maar haast onaangeraakt door toeristen. Het restaurant zit in een van de oude pakhuizen en de veel van het eten op de kaart is bereid op open vuur. De wijnkaart is ook uitstekend en het restaurant is ruim en heel gezellig. Goede service en heerlijk eten en drinken.

300799293_442244344620995_5318374096276279217_n
05
Adres
Rapenburgerplein 83,
1011 VJ Amsterdam

Café de Druif

Café de Druif is een van de oudste proeflokalen in Amsterdam. Tijdens de Gouden Eeuw kregen hier matrozen druiven als cadeau en zo is het aan zijn naam gekomen. Tegenwoordig is het een ontmoetingsplek voor veel stamgasten. Op het grote terras aan het water kan je er heerlijk zitten met een zeer uitgebreide bierkaart. Het decor bestaat uit kleine vaten opgesteld waaruit vroeger de jenever getapt werd en in plaats van muziek luister je naar het geluid van kletsende stamgasten.

Processed with VSCO with s3 preset
06
Adres
Kadijksplein 4,
1018 AB Amsterdam

Sotto Pizza

Sotto Pizza is één van de top 10 Italiaanse restaurants in Amsterdam. Het restaurant opende haar deuren in 2021, maar is sindsdien een begrip onder de pizza-liefhebbers. De diverse keuze is een weergave van de kundigheid van de koks, maar hun klassieke Margherita is onverslaanbaar. Het interieur heeft iets weg van een moderne Spaanse tapasbar, met een fijne sfeer. Je kan bij Sotto uitgebreid tafelen of snel een pizza eten aan de bar. Het personeel is behulpzaam en vriendelijk.

07
Adres
Kadijksplein 9,
1018 AC Amsterdam

A Tavola

Italiaanse keuken met gerechten gebaseerd op klassieke familierecepten. De wortels van A Tavola liggen in Palomonte, een klein dorpje in de provincie Salerno, een vruchtbaar gebied doordat het op vulkanische grond ligt. Ze koken hier op gevoel, volgens de koks hier is dat de basis voor puur, traditioneel Italiaans eten. Ambacht en kwaliteit staan voorop en dat proef je. Verse producten, met aandacht bereid.

DSC05478
08
Adres
Rapenburgerplein 1,
1011 VA Amsterdam

Café Scharrebier

Café Scharrebier is een erkend proeflokaal van Brandbieren en lid van de Amsterdamse Brandslang. Maak kennis met het unieke karakter van elk van de Brand bieren in ons Brand Proeflokaal. Alle kasteleins zijn bij Brand op de brouwerij geweest, waar ze persoonlijk zijn meegenomen in de kunst van het brouwen. Scharrebier is een perfect Amsterdamse bruincafé waar je altijd terecht kan voor een goede portie gezelligheid. Uitkijkend op de Nieuwe Herengracht kan je hier heerlijk mensen kijken.

410122272_17878473722990810_444435071764874332_n
09
Adres
Peperstraat 23,
1011 TJ Amsterdam

Restaurant R21

Chef Orlando David (werkte voorheen o.a.voor Oud Sluis van Sergio Herman ***) opende in de Peperstraat tegenover Gebr Hartering een fine dining restaurant. Je eet er een 6 of 7 gangen menu voor respectievelijk 75 en 90 euro, maar er is ook een a la carte menu beschikbaar. De reislust van de chef is zichtbaar en te proeven in zijn stijl van koken. Invloeden en producten van de hele wereld sieren de gerechten.

463946_339794439388956_1516802307_o
10
Adres
Rapenburg 18,
1011 TX Amsterdam

Hiding in Plain Sight

Voor Hiding in Plain Sight moet je even op je fiets vanuit het centrum. Naast de IJtunnel ligt deze knusse cocktailbar waar je unieke cocktails kunt zippen vanaf je barkruk of vanaf luie stoelen op de bovenverdieping. De unieke cocktail combinaties die bijna culinair te noemen zijn kun je een heerlijke avond loungen. Ben je slechts bekend met een gin & tonic? Dat geeft niets, het vriendelijke barpersoneel voorziet je graag van zoveel keuzes dat het je doet duizelen (als het niet de alcohol is).

Schermafbeelding 2022-06-20 om 20.13.23
Schermafbeelding 2022-06-20 om 20.13.41
11
Adres
Peperstraat 10,
1011 TL Amsterdam

Gebroeders Hartering

Onder leiding van eigenaar Paul Hartering kookt een nieuwe generatie chefs pure, authentieke en verfijnde gerechten, met herkomst en vakmanschap als kern. Paul werd in 2019 door Gault Millau bekroond tot ‘Ambachtsman van het Jaar’, terwijl zijn broer Niek met liefde de service en de wijnkaart leidt. De sfeer voelt als een combinatie van een ouderwetse bruine kroeg en een eigentijdse Franse bistro. Witte linnen tafelkleden steken mooi af tegen de warme, bruinhouten wanden.

Hapjeshoek
12
Adres
Waterlooplein 6,
1011 MS Amsterdam

De Hapjeshoek

De Hapjeshoek is een bruisend Surinaams eethuis. Het is gevestigd in het historische metrostation Waterlooplein en verwelkomt gasten al sinds 1995. Het is opgericht door drie broers en het is uitgegroeid tot een levendige locatie vol heerlijk eten en vriendelijk personeel. Geniet van een gevarieerd menu met verse Surinaamse broodjes, hapjes en maaltijden voor lunch en diner. Allemaal samengesteld om kwaliteit te bieden tegen betaalbare prijzen.

downloadgram.org_559858310_17895309681315568_8989814781705937724_n
13
Adres
Amstel 47,
1011 PW Amsterdam

Alpha Deli

Alpha Deli wordt gerund door Marius, een Griekse ondernemer die met zijn zaak een stukje Athene naar Amsterdam brengt. Hij staat zelf op de vloer, begroet zijn gasten persoonlijk en serveert traditionele Griekse koffie en snacks zoals spanakopita en hartige filodeeggebakjes. De ingrediënten komen grotendeels uit Griekenland, waardoor de smaken dicht bij huis blijven. Overdag is het een fijne plek voor koffie en iets zoets, later op de dag schuif je net zo makkelijk aan voor salades en warme hapjes.

Boodschappen
241491943_1718774814985933_3325818017112894796_n
269905089_1802052389991508_8614231142031174020_n
14
Adres
Plantage Kerklaan 41,
1018 CV Amsterdam

Borrl Kitchen Deli

Het team van Borrl Kitchen heeft nu ook Borrl Kitchen Deli waar je restaurantkwaliteit borrelhappen, brood en andere delicatessen kunt halen. Ook leuk: ze hebben ook een goede Borrl Box, allerlei verschillende hapjes voor thuis. Maar los kan je al deze delicatessen ook gewoon kopen. De homemade hummus is fantastisch maar het kaas- en wijn assortiment is ook geweldig. Afhalen of aan de deur gebracht, Borrl moet je een keer proeven!

67482526_3181760118517216_8278390957271941120_n
Schermafbeelding 2022-03-28 om 16.52.53
15
Adres
Waterlooplein 2,
1011 NZ Amsterdam

Waterloopleinmarkt

Achter de Stopera vind je volgens velen de beste vlooienmarkt van Amsterdam. Onder andere hebben ze hier prachtige platen, foto’s maar ook stapels prachtige vintage kleren. Menig hippe Amsterdammer scoort hier zijn Levi’s 501. Maar ook mooie accessoires, sieraden en onderdelen voor je fiets kan je hier kopen. Elke werk- en zaterdag geopend.

Kunst & cultuur
16
Adres
Plantage Middenlaan 2a,
1018 DD Amsterdam

Hortus Botanicus

De Hortus Botanicus Amsterdam is een van de oudste botanische tuinen ter wereld. Ook de Oranjerie, het bijbehorende grand café, is een eeuwenoud monument waar je – zelfs midden in de winter – heerlijk tot rust komt. Ze hebben een uitgebreide lunchkaart, en je eet terwijl je middenin de prachtige tropische tuinen zit. In de zomer is het terras natuurlijk ook open. Het is een van de best bewaarde geheimpjes van Amsterdam, zeker de moeite waard om heen te gaan en de rust van het groen zelf te ervaren.

artis_hoofdentree_ingang_adelaars_r_1920x1080.jpg__1920x0_q85_subject_location-1023,731_subsampling-2
17
Adres
Plantage Kerklaan 38-40,
1018 CZ Amsterdam

Artis

Artis is de oudste dierentuin van Nederland, het werd in 1838 opgericht met het doel om de natuur dichter bij de mensen te brengen. Het begon klein als een tuin met vijver en een wintertuin en in de loop der jaren kwamen er steeds meer gebouwen dieren en bomen bij. Vandaag de dag zijn er meer dan 900 verschillende diersoorten te bewonderen waaronder ook enkele bijzondere diersoorten zoals de algazellen, de witstaartgnoes en de margay. Je kan een hele dag zoet zijn in Artis. Waan je bijvoorbeeld in een tropisch klimaat, bewonder bijzondere vissensoorten en lach om de aapjes op de apenrots.

Schermafbeelding-2015-03-02-om-15.11.36
KriterionHall1
18
Adres
Roetersstraat 170,
1018 WE Amsterdam

Filmtheater Kriterion

Filmtheater Kriterion is een van de eerste projecten van Stichting Kriterion en wordt sinds 1945 volledig gerund door studenten. Je vind het filmtheater naast het Roetserseiland campus complex van de Universiteit van Amsterdam. Het wekelijks programma van Kriterion bestaat uit een breed scala van films; Kriterion kun je bezoeken voor arthouse films, documentaires en internationale screenings. In het café van Kriterion kun je voorafgaand aan of na afloop van de film samen nog gezellig een drankje drinken. Een aanrader is de Sneak Preview die Kriterion als eerste in Nederland heeft geïntroduceerd. Elke dinsdag om kwart voor 8 kun je je door Kriterion laten verrassen met de nieuwste films. Een ticket voor de Sneakpreview kost slechts 5 euro.

Evabloem_Hermitage-020.jpg.1200x630_q85
19
Adres
Amstel 51,
1018 EJ Amsterdam

H'ART Museum

'Het voormalige Hermitage museum gaat nauw samenwerken met British Museum, Centre Pompidou en Smithsonian American Art Museum. H’ART Museum opent vensters op de wereld en toont de verbindende kracht van kunst.' Door de verbintenis met deze internationale topmusea komen wereldberoemde kunstcollecties naar Amsterdam. Centre Pompidou heeft een van de belangrijkste collecties moderne en hedendaagse kunst in Europa. Het British Museum kent als een van de oudste musea ter wereld een collectie die continenten en oceanen omspant. Smithsonian American Art Museum (SAAM) heeft naam en faam als een van de bekendste musea van het Smithsonian Institution.

 

BC_02028_052
20
Adres
Amstel 51,
1018 EJ Amsterdam

Amsterdam Museum

In het voormalige Burgerweeshuis van Amsterdam bevindt zich sinds 1975 het Amsterdam Museum. In 1926 opende het museum in de Waag en sindsdien fungeert het museum als ware schatkamer van de stad. De historische collectie vertelt aan de hand van duizenden kunstwerken en voorwerpen het indrukwekkende verhaal van de stad, reikend van de vroege Middeleeuwen tot het heden. Naast de vaste collectie die het historische verhaal van Amsterdam laat zien, vertellen de wisselende tentoonstellingen de verhalen van het hedendaagse Amsterdam.

2020 galeriefoto
21
Adres
Nieuwevaart 200,
1018 ZN Amsterdam

Galerie Franzis Engels

Op een steenworp afstand van het Centraal Station kun je Galerie Franzis Engels vinden. Een galerie voor hedendaagse kunst met wel vier verdiepingen. Op de bovenste verdieping worden zowel solo- als thematische tentoonstellingen gehouden. De drie benedenverdiepingen en de tuin tonen frisse en verrassende werken uit het galeriearchief van nationale en internationale kunstenaars.

© Twycer / www.twycer.nl
22
Adres
Kattenburgerplein 1,
1018 KK Amsterdam

Scheepvaartmuseum

Ontdek de scheepvaart en de maritieme geschiedenis van Nederland in het scheepvaartmuseum. Het museum ligt in het water aan het oosterdok, vroeger werd dit gebouw gebruikt als pakhuis voor de opslag van scheepsuitrusting en kanonnen toen Amsterdam nog de grootste haven ter wereld was. De collectie bevat schilderijen, scheepsmodellen, kaarten en wapens. Het is het op een na grootste maritieme museum ter wereld. In het water voor het museum ligt een replica van het VOC-schip ‘Amsterdam’. In de tongewelven onder de binnenplaats werden vroeger duizenden liters water opgeslagen om de scheepsliederen te voorzien van water onderweg.

10411762_809398709124978_6571844653319791164_n
23
Adres
Oudeschans 67,
1011 KW Amsterdam

Van Zoetendaal Photography

Van Zoetendaal Photography is voornamelijk actief in de internationale hedendaagse fotografie, met het samenstellen van tentoonstellingen in musea, als galerie, en ook met het uitgeven van verschillende fotoboeken. In 2014 veranderde Van Zoetendaal zijn galerieruimte grotendeels om in een studio om zijn eigen kunstprojecten, kunstboeken en installaties te ontwikkelen. Hoewel de galerie doorgaans alleen op afspraak geopend is, speelt zij een belangrijke rol in de jaarlijkse Unseen Photo Fair.

Interieur
14485124_526385714238776_4161774116515468985_n
24
Adres
Valkenburgerstraat 167-A,
1011 MJ Amsterdam

Arclinea

Bij Arclinea Amsterdam helpen ze je graag bij het creëren van je Italiaanse droomkeuken. De keukens behoren door hun professionaliteit, klasse en tijdloosheid tot de absolute top van het keukendesign. Stuk voor stuk combineert Arclinea in hun keukens professioneel koken met prachtig design en innovatieve apparatuur.Bekijk het zelf in hun showroom aan de Valkenburgerstraat in Amsterdam.

47682925_2138085526252244_3479898621955014656_n
25
Adres
Valkenburgerstraat 201A,
1011 MJ Amsterdam

Baden baden

Baden Baden Interior is een badkamer- en interieurwinkel die in 2000 werd opgericht. De winkel bestaat uit een regelmatig wisselende eclectische mix van meubelen, design, kunst, objecten en accessoires. Als liefhebber van goed design kan je je hart ophalen bij Baden Baden Interior en kom zeker langs voor luxe, tijdloze en comfortabele badkamers, kranen en Italiaanse merken die naadloos aansluiten bij uw persoonlijke wensen.

Buurtgids (rondom) het Willemspark

Buurtgids (rondom) het Willemspark

‘Modern Design aan de Prinsengracht’. Een plek voor rust en feest.

‘Modern Design aan de Prinsengracht’. Een plek voor rust en feest.

Kunst & cultuur agenda januari 2026

Kunst & cultuur agenda januari 2026

Onlangs bekeken
Bekijk het overzicht

Deze site maakt gebruik van cookies.

Voor welke cookies geef je akkoord?