In het volledig gerenoveerde en instapklare kantoorgebouw Cornelis is circa 119 m² VVO kantoorruimte voor onderverhuur beschikbaar. Het betreft de gehele linkerzijde van de loftverdieping. Hier is voldoende ruimte voor werkplekken en een eigen vergaderruimte. De luxe pantry, toiletten en hal op deze verdieping zijn gemeenschappelijk en worden gedeeld met een andere huurder. De kantoorruimte is hoogwaardig afgewerkt en kenmerkend zijn de zichtbare robuuste dakconstructie, prachtige houten vloerafwerking en stijlvolle verlichting. Voor een ondernemer die comfort en luxe zoekt en zich wenst te vestigen op een prachtige plek in Amsterdam biedt dit instapklare kantoor een geweldige optie.

Bijzonderheden
• volledig gerenoveerd
• turn-key opleveringsniveau
• energielabel A++++
• smart office systeem
• onderhuursituatie
• huurtermijn minimaal 12 maanden

B103910-2118224-Oosteinde-9D,-Amsterdam-261542676
B103910-2118224-Oosteinde-9D,-Amsterdam-261542634
B103910-2118224-Oosteinde-9D,-Amsterdam-261542440
B103910-2118224-Oosteinde-9D,-Amsterdam-261542786

Gebouw

Het bijzondere kantoorgebouw is recent high-end verbouwd. Het imposante negen ramen brede gebouw van bijna 1.100 m² totaal telt vier luxe afgewerkte zelfstandige offices en is aan de achterzijde voorzien van een volledig aangelegd groen privé parkeerterrein. Aan alles op het gebied van comfort en duurzaamheid is gedacht. Zodoende beschikt het gemeentelijk monument over energielabel A++++. Er is een smart office systeem van Loxone Domotica welke bedieningsgemak biedt voor het binnenklimaat, intercom en verlichting.

Buitenruimte

Er is een volledig aangelegd groen privé parkeerterrein. Een luie en fraaie hardstenen trap geeft directe toegang tot de tuinverdieping. Hiervandaan is via het trappenhuis of via de lift de loftverdieping direct en gemakkelijk te bereiken.

B103910-2118224-Oosteinde-9D,-Amsterdam-261542480
B103910-2118224-Oosteinde-9D,-Amsterdam-261542868
B103910-2118224-Oosteinde-9D,-Amsterdam-261542856
B103910-2118224-Oosteinde-9D,-Amsterdam-261542842
B103910-2118224-Oosteinde-9D,-Amsterdam-261542818

Buurt en hotspots

Het kantoorgebouw is gelegen op een bijzondere plek pal tegenover De Nederlandsche Bank en vlak naast het groene Frederiksplein. Met de Amstel en de iconische Magere Brug en het Amstel Hotel op een steenworp afstand gelegen, ademt deze locatie een tijdloze elegantie uit. De Utrechtsestraat met al haar voorzieningen, winkels en restaurants is op loopafstand gelegen.

Bereikbaarheid

De bereikbaarheid van het kantoorgebouw per openbaar vervoer is uitstekend vanwege de nabij gelegen metro- en tramhaltes aan de Vijzelgracht en aan het Weesperplein. Met de auto is het kantoorgebouw goed bereikbaar via de Sarphatistraat. Dit is een zijstraat van de Weesperstraat, één van de belangrijkste toegangswegen van Amsterdam.

Parkeergelegenheid

Parkeren is mogelijk op de openbare weg middels betaling of een vergunningensysteem. Informatie over voorwaarden en mogelijkheden voor verkrijging van een (bedrijfs-) vergunning en eventuele wachttijd is op te vragen via de gemeente Amsterdam.

B103910-2118224-Oosteinde-9D,-Amsterdam-261542386
B103910-2118224-Oosteinde-9D,-Amsterdam-261542598
B103910-2118224-Oosteinde-9D,-Amsterdam-261542566
B103910-2118224-Oosteinde-9D,-Amsterdam-261542418
B103910-2118224-Oosteinde-9D,-Amsterdam-261542700
B103910-2118224-Oosteinde-9D,-Amsterdam-261542760
B103910-2118224-Oosteinde-9D,-Amsterdam-261542550
Kenmerken
Oosteinde 9D, Amsterdam
Overige kenmerken

Oppervlakte 
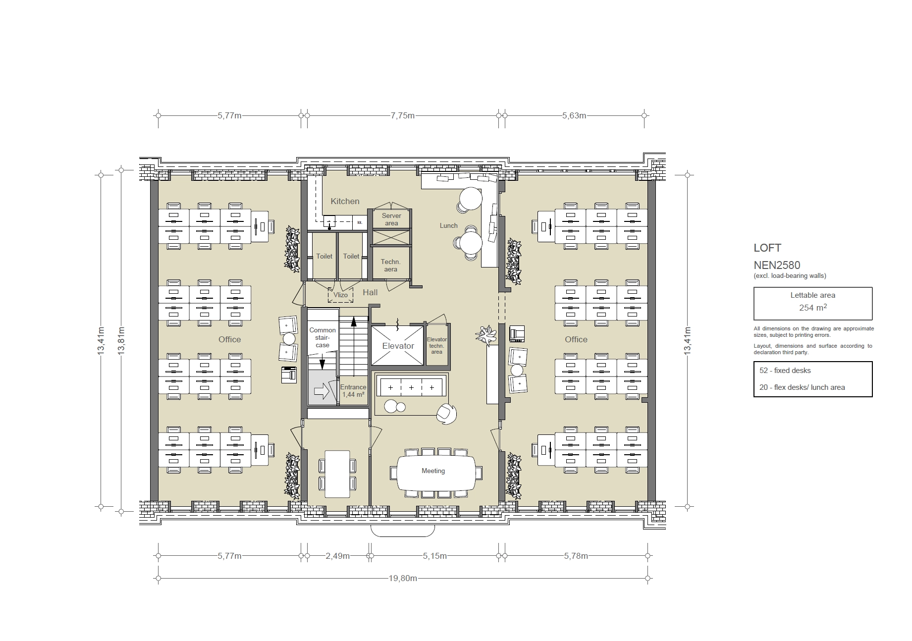
De totale oppervlakte bedraagt 119,01 m² VVO kantoorruimte en is gelegen op de loft verdieping.

Opleveringsniveau
De kantoorruimte wordt opgeleverd, in turn-key staat, met onder andere de volgende voorzieningen:

•    luxe en stijlvolle gemeenschappelijke entree aan de voorzijde
•    extra gemeenschappelijke entree aan de achterzijde
•    lift 
•    luxe keuken voorzien van apparatuur
•    twee luxe sanitaire ruimtes
•    een vergaderruimte
•    wand- en plafondafwerking
•    nieuw stucwerk en professioneel schilderwerk
•    elegant design deur- en raambeslag
•    premium houten vloerafwerking incl. vloerverwarming
•    moderne inbouw verlichting/spots
•    videofooninstallatie met elektrische deuropener per office (Loxone Domotica) en individueel toegang tag-systeem
•    hoogwaardige verwarmings- en koelingsinstallatie (airco's)
•    warmte terugwin installatie
•    warmte middels warmtepompen
•    stroom middels zonnepanelen
•    hoge snelheid databekabeling (Cat. 7) / high speed glasvezel verbinding

Huurprijs
€ 665,- per m² per jaar, te vermeerderen met omzetbelasting. 

Servicekosten
€ 50,- per m² per jaar te vermeerderen met omzetbelasting, ten behoeve van de navolgende diensten/leveringen:

•    elektraverbruik
•    waterverbruik
•    bewassen van ramen en houtwerk
•    reinigen van de toegangsdeur incl. bellentableau, deurbeslag en omliggend houtwerk
•    preventief spuiten tegen onkruid incl. onkruidvrij maken
•    onderhoud van groene borders
•    schoonmaken van de goten en zonnepanelen
•    onderhoud zonnepanelen en warmtepompen
•    jaarlijks onderhoud lift
•    maandelijks gsm abonnement lift
•    klimaattechniek airco
•    klimaattechniek onderhoud WTW
•    klimaattechniek jaarlijkse controle WTW
•    BBMI taken
•    jaarlijks onderhoud BMI
•    doormelden centrale
•    brandblussers
•    glasverzekering
•    5 % administratiekosten

Bestemming
Publiek-/privaatrechtelijk is de bestemming kantoorruimte van toepassing.

Monumentale status 
Gemeentelijk monument.

Energielabelklasse
Voor dit object geldt energielabelklasse A++++.

Betalingsverplichting
Per maand bij vooruitbetaling te voldoen.

Huurtermijn
Minimaal 12 maanden.  

Huuringangsdatum
Per direct.

Huurprijsindexering
Jaarlijks, voor het eerst 1 (één) jaar na huuringangsdatum, vindt indexering plaats van de huurprijs op basis van de wijziging van het Consumentenprijsindexcijfer (CPI), reeks CPI Alle huishoudens (2015 =100), als gepubliceerd door het Centraal Bureau voor de Statistiek (CBS).

Zekerheidsstelling
Huurder dient een waarborgsom/bankgarantie (model ROZ) te stellen ter grootte van tenminste drie maanden huur en servicekosten, beide te vermeerderen met btw.

Huurvoorwaarden
Op basis van de Modelhuurovereenkomst kantoorruimte en andere bedrijfsruimte in de zin van artikel 7:230a BW, zoals opgesteld door de Raad voor Onroerende Zaken (R.O.Z. model februari 2015), met de bijbehorende algemene bepalingen, eventueel door verhuurder aan te vullen met bijzondere bepalingen.

Btw-plicht
Huurder verklaart dat hij voor tenminste 90% met omzetbelasting belaste prestaties verricht. Indien huurder op enig moment niet meer aan dit criterium voldoet, zal er van rechtswege sprake zijn van omzetbelasting vrijgestelde verhuur. Alsdan wordt de overeengekomen kale huurprijs, exclusief omzetbelasting, zodanig verhoogd dat het voor verhuurder ontstane financiële nadeel volledig door huurder wordt gecompenseerd.

Overige bepalingen
Oosteinde 9D, Amsterdam

Voorbehoud Broersma Werken
Deze vrijblijvende informatie is met zorgvuldigheid samengesteld. Voor de juistheid hiervan wordt door Broersma Werken geen aansprakelijkheid aanvaard, noch kan hieraan enig recht worden ontleend.

Deze informatie is niet bedoeld als aanbod. Door aanvaarding van de vermelde condities of het uitbrengen van een, daarvan al dan niet afwijkend, aanbod worden Broersma Werken noch haar opdrachtgevers op enige wijze gebonden, ook niet tot het doen van enig tegenbod. Broersma Werken treedt uitdrukkelijk slechts op als adviseur van haar opdrachtgever en niet als gevolmachtigde namens haar. Voorts geldt dat tussen partijen eerst juridisch binding kan ontstaan nadat definitieve overeenstemming is bereikt ter zake van al hetgeen zij met elkaar beogen te regelen en deze overeenstemming bovendien is vastgelegd in een schriftelijke en namens beide partijen rechtsgeldig ondertekende overeenkomst, waarbij artikel 3:39 BW overeenkomstige toepassing vindt.

Broersma Werken is een besloten vennootschap, ingeschreven bij de Kamer van Koophandel onder nummer 34121232. Broersma Werken verleent al haar diensten op grond van de Algemene Voorwaarden NVM voor professionele opdrachtgevers Versie februari 2023. De algemene voorwaarden zijn van toepassing op alle opdrachten die aan haar zijn of worden verstrekt en/of op de levering van al haar diensten en producten aan wie dan ook. De algemene voorwaarden worden op verzoek toegezonden en zijn tevens te downloaden op broersma.nl. De aansprakelijkheid van Broersma Werken is in alle omstandigheden en jegens eenieder beperkt tot het bedrag dat door de beroepsaansprakelijkheidsverzekering van Broersma Werken in het desbetreffende geval wordt uitgekeerd.

Toelichtingsclausule NEN2580
De Meetinstructie is gebaseerd op de NEN2580. De Meetinstructie is bedoeld om een meer eenduidige manier van meten toe te passen voor het geven van een indicatie van de (bruto vloer- /verhuurbaar vloer-/gebruiks-) oppervlakte. De Meetinstructie sluit verschillen in meetuitkomsten niet volledig uit, door bijvoorbeeld interpretatieverschillen, afrondingen of beperkingen bij het uitvoeren van de meting.

Plattegrond
Oosteinde 9D, Amsterdam
B103910-2118224-Oosteinde-9D,-Amsterdam-265498122
Documenten
Oosteinde 9D, Amsterdam
"][/dflip]
Locatie
Oosteinde 9D, Amsterdam
Interieur
BEDROOM-EDIT-_12_1500
01
Adres
Stadhouderskade 160,
1074 BC Amsterdam

Nicemakers

Interieurontwerpers Joyce en Dax Roll zijn partners in het leven en in design, samen staan zij bekend als ‘Nicemakers’. Persoonlijk, levendig, functioneel, rijk, inspirerend, elegant, gedegen en decoratief; het 'Nice' in 'Nicemakers' is even licht en natuurlijk alsook indrukwekkend en allesomvattend. Het interieur voor de saladebar SLA was het eerste project dat hen op de kaart zette, waarna vele indrukwekkende projecten volgden waaronder een waanzinnig penthouse in Maastricht, waarmee ze een rol kregen in het Netflix-programma 'Amazing Interiors'.

78453341_2540874405968488_2679508191917637632_n
02
Adres
Utrechtsestraat 145-147,
1017 VM Amsterdam

Moooi

Opgericht door Marcel Wanders & Carsper Vissers in 2001 zet ‘Moooi’ al meer dan 20 jaar fantastische producten op de markt. De winkels hebben zich in deze 20 jaar dan ook niet voor niets verspreid over de hele wereld. Het merk staat voornamelijk bekend om innovatieve designs die verder gaan dan het alledaagse. Of het nou om lampen, meubels of accessoires gaat, Moooi belooft hun klanten altijd te blijven verbazen met schoonheid en creativiteit. Om producten op deze wijze af te leveren werkt Moooi samen met designers die variëren van up and coming tot degene die al internationaal bekend zijn.

Eten & drinken
Schermafbeelding 2022-10-10 om 10.58.56
03
Adres
Frederiksplein 29h,
1017 XL Amsterdam

Oocker

Oocker is een nieuwe restobar (restaurant-bar) in Amsterdam. Het is opgezet door de mannen Meyer Viol, Niels van der Werf (voorheen bij The Lobby, Gebr. Hartering en Shiraz) en Stefano Orofino (voorheen bij Domenica). Bij Oocker is het eten net zo belangrijk als de wijn. Aan de voorzijde kan je de wijnbar vinden en achterin is het restaurant gedeelte, waar wordt gekookt in een open keuken. Chef Stefano kook voornamelijk veel met groentes.  Het is open van donderdag tot en met dinsdag vanaf 15:00. Ze nemen geen reserveringen aan dus loop vooral gezellig naar binnen.

 

04
Adres
Hemonystraat 18,
1074 BP Amsterdam

L'Angoletto

Bij L’Angoletto lijkt het alsof de tijd heeft stil gestaan. Het restaurant heeft geen website, reserveren kan niet en pinnen ook niet maar het eten is verrukkelijk! De chef staat erom bekend dat hij trots is op zijn eten en hij hecht veel waarde aan tradities, dus waag het niet om te vragen om kaas bij je pasta met vis. Dit is het allemaal waard want het beste Italiaans eten in de Pijp eet je hier.

05
Adres
Stadhouderskade 123-124,
1074 AV Amsterdam

Saravana Bhavan

Wie echt goed Indiaas wilt eten, en de sfeer van een echt Indiaas restaurant wilt proeven, moet naar Saravana Bhavan gaan, op het hoekje van de drukke Stadhouderskade en de van Wou straat zit hier dit grote restaurant. Het is een deel van de grootste vegetarische Indiase ketens in de wereld. Ze serveren ontelbaar veel lekkere (veel vegetarische dus) curry's en andere specialiteiten uit India. Het zit er vaak bomvol, met een gemengd publiek. Indiase gezinnen, stelletjes, toeristen, buurtbewoners, Saravana Bhavaan is een plek waar je goed kan eten.

1002870_632187776804983_1795107424_n
06
Adres
Utrechtsestraat 140,
1017 VT Amsterdam

Café Slijterij Oosterling

Café Oosterling is een van de enige twee cafe's in Amsterdam met een slijterij-vergunning. Oosterling produceert jenever naar eigen recept. Het café is al 140 jaar in de familie.

277308208_1172321166929090_372143994178302905_n
276152204_1184037255757481_8592495868560013575_n
07
Adres
Utrechtsestraat 141H,
1017 VM Amsterdam

Zoldering (*)

In een laagdrempelig ingericht (in de geest van een Amsterdams café) wordt hier (inmiddels echt) op sterrenniveau gekookt. De keuken serveert ongedwongen to share bordjes en het inmiddels beroemde wijnaanbod is ingedeeld in kaart met 'betaalbare' wijnen en een uitgebreide kaart met 800 verschillende flessen.  Zoldering is erg gewild, dus reserveer  lang van te voren. Je kunt ook proberen op de dag zelf binnen te lopen voor een glas wijn aan de bar. De eigenaren hebben inmiddels een wijnwinkel geopend (Lof, de wijnwinkel) en een tweede restaurant; Boon en de Koot.

TinaB-190604-6965
IMG_5027-1500×1000
08
Adres
Utrechtsedwarsstraat 85A,
1017 WD Amsterdam

Fiaschetteria Pistoia

Pistoia is een plek om authentieke geïmporteerde Italiaanse wijnen te proeven terwijl je geniet van de traditionele Toscaanse keuken. De wijnkaart is vol smaakvolle geïmporteerde wijnen, de ingrediënten worden geïmporteerd uit Italië en de recepten komen uit een lange familietraditie onder leiding van "nonna".

Schermafbeelding 2023-01-25 om 15.31.43
09
Adres
Van Woustraat 17,
1074 AA Amsterdam

Tjin's

Rond deze kleine broodjeszaak verzamelen zich vaak groepen mensen voor de deur voor een snelle snack. Tjin maakt al meer dan 40 jaar surinaamse broodjes en hapjes op basis van familie recept. Oprichter Chong begon ooit in West als platenzaak, echter werden de broodjes die hij achterin klaargemaakte steeds populairder, zoals het broodje met kabeljauw of de kerrie kip.

Ku+Kitchen+June18+(web)-3712
Ku+Kitchen+June18+(web)-3563
10
Adres
Utrechtsestraat 114,
1017 VT Amsterdam

Ku Kitchen & Bar

Hier serveren ze de klassieke, maar ook minder klassieke Japanse gerechten. Sinds 2014 is deze plek geopend, en het is niks voor niks dat het Kitchen EN bar heet. Ze hebben naast de Japanse gerechten namelijk ook een uitstekend aanbod aan Japanse bieren, sakes whiskeys en spannende en bijzondere cocktails. Zeker de moeite waard om dit kleine stukje Japan op Amsterdamse bodem uit te proberen!

335514203_871992397231199_3539701541656556904_n
11
Adres
Albert Cuypstraat 278,
1073 BR Amsterdam

La Biss Kosher Streetfood

La Biss is geen gewone sandwichbar; los van het feit dat de sandwiches uiteraard kosher zijn worden ze met zorg en precisie gemaakt met de beste en meest verse ingrediënten. Een specialiteit is de huisgemaakte challah brood, dagelijks vers gebakken en een unieke toevoeging aan de sandwiches. Ook de baguettes en andere verse broden zijn niet te missen.

12
Adres
Van Woustraat 25,
1074 AB Amsterdam

Café Biljart van Wou

Café Biljart van Wou is een typisch buurtcafé waar het stil wordt als de buurtbewoners op vakantie zijn.

308963496_482352027283836_6226254290717796775_n
13
Adres
Van Woustraat 20,
1073 LL Amsterdam

Broodje Popov

Broodje Popov is al 50 jaar een broodjeszaak zoals deze bedoeld is. Gewoon een dik belegd broodje zoals je hem wil. Ze staan bekend om hun philly cheese steak en smashed hamburger met kaas, augurken, burgersaus en heerlijke gefrituurde uitjes. Iets minder trek? Ze serveren ook een goed broodje halfom.

 

14
Adres
Van Woustraat 37,
1074 AB Amsterdam

Roopram Roti

Roopram Roti komt oorspronkelijk uit Suriname en werd geëxporteerd naar Nederland vanwege de grote vraag naar roti op de Nederlandse markt, onder andere door vakantiegangers uit Paramaribo. Om aan deze vraag te voldoen, besloot J. Roopram diepvries roti naar Nederland te exporteren. Helaas werd dit op het laatste moment tegengehouden vanwege de beperkingen op de uitvoer van kip en kipdelen uit Suriname. In plaats daarvan opende J. Roopram in juli 2002 zijn eerste restaurant aan het Mathenesserplein 89 te Rotterdam. Dit werd gevolgd door het tweede filiaal in Amsterdam, genaamd Roopram Roti Eetcafé. Sindsdien zijn er twee extra filialen geopend, namelijk in Den Haag en aan de Van Woustraat 37 te Amsterdam.

245985996_1241955602934354_1770623343967133327_n
15
Adres
Govert Flinckstraat 326HS,
1073 CJ Amsterdam

101 Gowrie

De jonge Australische chef Alex Haupt met Japanse en Duitse roots kookt naar eigen zeggen 'Gaijin cuisine'.  'Een viering van culturele diversiteit door middel van Japanse tradities, technieken en liefde voor het ingrediënt met een respectvolle minachting voor de regels van reguliere conventie.' Gowrie serveert een vast menu met verrassende gerechtjes. Denk aan gyoza gevuld met duif, japans brood (shokupan) met miso en nori en een congee van noord zee krab. Reserveren is noodzakelijk.

Schermafbeelding 2022-06-27 om 18.11.15
16
Adres
Falckstraat 3,
1017 VV Amsterdam

Bouchon du centre

Op de hoek van de Reguliersgracht vind je 40m2 knus Frankrijk, inclusief traditionele bistro sfeer en rood wit-geruite tafelkleden. De bistro wordt gerund door Hanneke Schouten en is geopend van woensdag tot en met zaterdag. Het concept is ontstaan vanuit de ‘bouchon Lyonnais’ waarbij met betaalbare ingrediënten een hoogwaardige maaltijd wordt bereid.

DSC_3974-Edit-1363×2048
DSC_3970-Edit-1363×2048
17
Adres
Albert Cuypstraat 260,
1073 BR Amsterdam

Ranchi

Ranchi is een Japanse broodjeszaak gerund door Sebastiaan en Christiaan Roosink. Een broodje in Japanse stijl wordt ook wel Sando genoemd. Keuzes zijn bijvoorbeeld een chicken sando (met krokante kip) of de beroemde tamago sando met eiersalade. Daarnaast hebben ze een broodje met tsukune (een soort gehaktbrood) gemaakt van kippengehakt in yakitori-stijl. Lekker met sesam, bosui, gember, knoflook en tare-saus.

539068_629857897052313_810190241_n
18
Adres
Utrechtsestraat 109-111,
1017 VL Amsterdam

Patisserie Kuyt

Voor de echte zoetekauw is Patisserie Kuyt een zeer bekende. Klaas Kuyt heeft het geheime recept voor allerlei verfijnde taartjes, cakes, chocola, koekjes en eclairs. Met als kers op de taart een beloning van het parool voor beste appeltaart van Amsterdam. Te vinden op de gezellige Utrechtsestraat naast de lokale slager en kaasboer.

Schermafbeelding 2022-06-20 om 19.25.16
19
Adres
Albert Cuypstraat 250 HS,
1073 BP Amsterdam

Osakaball

The Osaka streetfood kraam staat op maandag op de Ten Katemarkt en van dinsdag tot en met zaterdag op de Albert Cuypmarkt. The kraam heel gedurende het jaar heel wat trouwe klanten opgebouwd met hun authentieke Japanse dishes. Van ramen tot, okonomiyaki, noodles en curry. Wandel over de markt met een lege maag en volg de geur van lekker eten.

377504997_18261988948162741_2108036798515136593_n
20
Adres
Van Woustraat 48,
1073 LM Amsterdam

Mister Nata

Bij Mister Nata ben je aan het juiste adres voor het lekkerste gebak van Amsterdam, waar je kunt genieten van heerlijke pastel de nata, perfect gecombineerd met prachtige Single Estate Coffee, bereid met een La Marzocco-espressomachine. Portugal staat bekend om zijn verrukkelijke zoetigheden. Snoep, gebak en desserts maken allemaal deel uit van de traditionele Portugese keuken. Te midden van al deze heerlijkheden is de pastel de nata de absolute beroemdheid.

a47a0d_544e9cc89cd4470eb63806a4654b427d_mv2
a47a0d_fb5e2a64d06040578cf8264ee6b4ddff_mv2
21
Adres
Govert Flinckstraat 308,
1073 CJ Amsterdam

Restaurant Mont Blanc

Chef Thibault en zijn vrouw Dieuwertje Gordijn runnen al jaren succesvol Bistrot des Alpes. In oktober 2021 hebben zij op de Govert Flinckstraat 308 een nieuw restautant geopend. Hier kan je op culinaire ontdekkingsreis rondom de Mont Blanc. Chef Thibault neemt je mee langs de bergmeren, door de bergen en tot slot naar de top van de Mont Blanc met zijn signature dessert. Een fine-dining ervaring in een warme sfeer.

22
Adres
Van Woustraat 58,
1073 LN Amsterdam

Yen dining bar

De oprichter van Yen Dining Bar groeide op met Vietnamese smaken en de sociale eetcultuur van quán nhậu, wat de basis vormt van zijn visie voor deze zaak. Hij brengt hier klassieke Vietnamese gerechten zoals pho, bun bo hue en banh mi samen met moderne interpretaties en shared dining. De keuken legt nadruk op verse ingrediënten en kruiden, met frisse salades en hartige noodles die de essentie van Vietnam vangen. Yen wil een plek zijn waar vrienden samenkomen voor lekker eten en drank, met een warme, ontspannen energie. De ambiance is sfeervol en intiem met een lichte industriële toets, perfect voor diners met gezelschap of een drankje vooraf.

Boodschappen
23
Adres
Albert Cuypstraat 267,
1073 BH Amsterdam

C&C Asianmarkt

Aan het einde/of het begin van de Albert Cuyp ligt de C&C Asian Supermarket. De winkel is een begrip voor eenieder die tijdens het koken opeens bijzondere ingrediënten nodig heeft. Naast verse producten heeft de winkel een gigantisch assortiment met allerlei Aziatische must-haves wanneer het op onmisbare ingrediënten aankomt. Van heerlijke pindasaus voor bij summer-rolls tot ongelofelijke hoeveelheden ingevroren dumplings om in bamboe mandjes zelf op te warmen. De sojasaus vliegt in grote flessen en betaalbare prijzen over de toonbank en ook voor enkele leuke decoraties kan je hier terecht. De pret kan echter niet op, want er is óók nog een klein hoekje in de supermarkt waar er vers eten wordt klaargemaakt. Hier kun je dus na je grote boodschappen genieten van onder andere verse summer-rolls of een banh mi (Vietnamese baguette).

www.madasiro.com
24
Adres
Utrechtsestraat 92,
1017 VS Amsterdam

Slagerij de Leeuw

Een begrip in Amsterdam en omstreken. De kwaliteit is heel hoog in deze slagerij, traiteur en delicatessenwinkel. Hij zit al sinds 1966 in de gezellige Utrechtsestraat. Ze hangen het vlees hier op een traditionele manier waardoor het zachter en smaakvoller wordt. Ze hebben een open keuken waar je kan zien hoe de professionele chefs te werk gaan. Ze hebben ook nog een wijnassortiment.

bakhuys-7-scaled
25
Adres
Sarphatistraat 61,
1018 EX Amsterdam

Bakhuys

Bakhuys valt zeker onder de top tien bakkers van Amsterdam, met authentiek houtoven gebakken broden. Het familiebedrijf houdt een traditie van vijf generaties in stand sinds 1926. Bakhuys staat bekend om het lekkerste biologische dezembrood, allerlei Franse specialiteiten en niet te vergeten de dezem pizza. Stuk voor stuk met aandacht bereid. Daarbij eet je hier lekkere taartjes (van bakkerij Jongejans), homemade pizza en fantastische belegde broodjes, zoals de geïmporteerde Italiaanse salami en venkelmayonaise.

Samengesteld; slim ingedeelde appartementen met het comfort van een suite.

Samengesteld; slim ingedeelde appartementen met het comfort van een suite.

Uitgelicht; ‘Woodworck’. In de winter bij de open haard en in de zomer op het dakterras.

Uitgelicht; ‘Woodworck’. In de winter bij de open haard en in de zomer op het dakterras.

Uitgelicht; ‘De Fabriek’ Een stoere loft midden in de Jordaan.

Uitgelicht; ‘De Fabriek’ Een stoere loft midden in de Jordaan.

Onlangs bekeken
Bekijk het overzicht

Deze site maakt gebruik van cookies.

Voor welke cookies geef je akkoord?