Te midden van de drukte van de Keizersgracht, in de Grachtengordel van Amsterdam, verschuilt achter een fraaie entree een buitengewoon bijzondere ruimte. ‘La Retraite’ is een smaakvolle en verrassende event space waar het mogelijk is om zowel te wonen als om te werken. De ruimte van circa 159 m² is gelegen op de begane grond en maakt onderdeel uit van het monumentale grachtenpand aan de Keizersgracht 378.

La Retraite is in 2017 volledig verbouwd waardoor een smaakvolle mix van klassiek en modern is gecreëerd. De ruimte is voorzien van een klassieke dubbele openslaande deuren met glas. Deze creëert een elegante scheiding tussen de voorzijde met multifunctionele open pantry en de achterzijde met voldoende plek voor werkruimte, overlegruimte en/of ontspanningsruimte.

Door de huidige, doordachte, indeling van deze ruimte leent het zich eveneens uitstekend als woning of pied-à-terre. Met leven/koken in het voorste deel, subtiel gescheiden van het woongedeelte middels de klassieke dubbele openslaande deuren met glas, en een slaapgedeelte elegant gemarkeerd door een podium met gordijn. Zowel praktisch én esthetisch verantwoord.

De bestemming Wonen is momenteel alleen toegestaan op basis van het vigerende bestemmingsplan. Voor de omzetting van bedrijfsruimte naar wonen zal een omgevingsvergunning dienen te worden verstrekt en dient de splitsingsakte te worden aangepast.

Of het nu gaat om een event space, executive kantoor of woning; deze verborgen schat is een exclusieve stadsoase en biedt de perfecte balans tussen elegantie, comfort en functionaliteit. Deze ruimte is ontworpen voor wie esthetiek en functionaliteit weet te waarderen en wenst te vestigen aan de grachten van Amsterdam.

Bijzonderheden
•    rijksmonument
•    fundering onder voorhuis hersteld en grondig gerenoveerd in 2017
•    wonen & werken
•    turn-key opleveringsniveau
•    huidige inventaris en meubilair wordt ter overname aangeboden

Keizersgracht 378 A-17
Keizersgracht 378 A-11
Keizersgracht 378 A-5

Gebouw

Het grachtenpand is vermoedelijk gebouwd in 1685 voor Matthijs en Pieter Bartelsz. Destijds was het pand voorzien van een halsgevel en had het de functie van zeperij. Later is het in gebruik genomen als pakhuis. Diverse verbouwingen, waaronder een ingrijpende in 1800 hebben plaats gevonden. De gevel is toen gewijzigd naar een rechte kroonlijst met twee consoles. Een verdieping is toen toegevoegd en later, rond 1890, weer weggenomen. Opvallend is dat de hoogte van het pand ongewijzigd is gebleven. Zo’n 15 jaar lang is een uitgeverij (Electrische Drukkerij Vooruitgang / De arbeiderspers) gevestigd geweest op deze locatie.

De huidige eigenaar heeft in 2017 funderingsherstel laten uitvoeren en de ruimte op de begane grond grondig gerenoveerd tot fraaie kantoorruimte en event space. De ruimte maakt onderdeel uit van een kleinschalige VvE. De eerste tot en met derde verdieping zijn in gebruik als woning. He gehele pand bevindt zich aan de buitenzijde in goede staat van onderhoud en is gelegen op eigen grond.

Keizersgracht 378 A-26 – kopie

Interieur design

Het grachtenpand is vermoedelijk gebouwd in 1685 voor Matthijs en Pieter Bartelsz. Destijds was het pand voorzien van een halsgevel en had het de functie van zeperij. Later is het in gebruik genomen als pakhuis. Diverse verbouwingen, waaronder een ingrijpende in 1800 hebben plaats gevonden. De gevel is toen gewijzigd naar een rechte kroonlijst met twee consoles. Een verdieping is toen toegevoegd en later, rond 1890, weer weggenomen. Opvallend is dat de hoogte van het pand ongewijzigd is gebleven. Zo’n 15 jaar lang is een uitgeverij (Electrische Drukkerij Vooruitgang / De arbeiderspers) gevestigd geweest op deze locatie.

De huidige eigenaar heeft in 2017 funderingsherstel laten uitvoeren en de ruimte op de begane grond grondig gerenoveerd tot fraaie kantoorruimte en event space. De ruimte maakt onderdeel uit van een kleinschalige VvE. De eerste tot en met derde verdieping zijn in gebruik als woning. He gehele pand bevindt zich aan de buitenzijde in goede staat van onderhoud en is gelegen op eigen grond.

Keizersgracht 378 A-15
Keizersgracht 378 A-1
Keizersgracht 378 A-16
Keizersgracht 378 A-3
Keizersgracht 378 A-4
Keizersgracht 378 A-7
Huidenstraat 26 H -3

Buurt + hotspots

La Retraite is gelegen in de Grachtengordel-West. Deze gezellige en vooral centrale locatie in het hart van de stad is voorzien van talloze chique restaurants, populaire food hotspots, fashion boetieks en kunst ateliers. Dit gedeelte van de Keizersgracht, tussen de Berenstraat en Runstraat in, maakt onderdeel uit van het populaire winkelgebied ‘De 9 Straatjes’. Met enerzijds de winkelstraat Leidsestraat en anderzijds de traditionele Jordaan kan drukte en gezelligheid worden opgezocht. De levendige Noordermarkt en Lindengrachtmarkt zijn op zaterdag op loopafstand te bezoeken. Door de centrale ligging is alles op fiets- en loopafstand; een zeer fijne en gewilde locatie zowel om te werken, gasten te ontvangen of om te wonen.

Bereikbaarheid

Dankzij de centrale ligging is La Retraite zeer goed bereikbaar. Het zuidelijke deel van de gracht ontsluit zich via de Stadhouderskade naar de Vijzelgracht en via de Spiegelgracht. Voor degenen op de fiets, lopend en met de auto naar het werk komen zijn er meerdere wegen, waaronder via de Leidsegracht. Het openbaar vervoer is om de hoek: tramlijnen op Vijzelstraat en de metrohalte op Vijzelgracht zijn direct bereikbaar. Het openbaar vervoer biedt toegang tot alle delen van Amsterdam, inclusief de Zuidas. De dichtstbijzijnde tramhaltes zijn Koningsplein en Westermarkt, de bussen vertrekken vanaf de Elandsgracht. De metro halte Rokin (Noord/Zuidlijn) ligt op 10 minuten lopen.

Parkeergelegenheid

Parkeren is mogelijk op de openbare weg middels betaling of een vergunningensysteem. Informatie over voorwaarden en mogelijkheden voor verkrijging van een (bedrijfs-) vergunning en eventuele wachttijd is op te vragen via de gemeente Amsterdam.

Parkeergarage Q-Park Europarking aan de Marnixstraat is binnen 10 minuten loopafstand gelegen. Hier is het mogelijk om diverse abonnementen af te sluiten.

Keizersgracht 378 A-25
Keizersgracht 378 A-12
Keizersgracht 378 A-8
Keizersgracht 378 A-10
Keizersgracht 378 A-9
Keizersgracht 378 A-18
Keizersgracht 378 A-14
Keizersgracht 378 A-20
Keizersgracht 378 A-23
Keizersgracht 378 A-21
Keizersgracht 378 A-2
Keizersgracht 378 A-19
Kenmerken
Keizersgracht 378A, Amsterdam
Overige kenmerken

Oppervlakte 
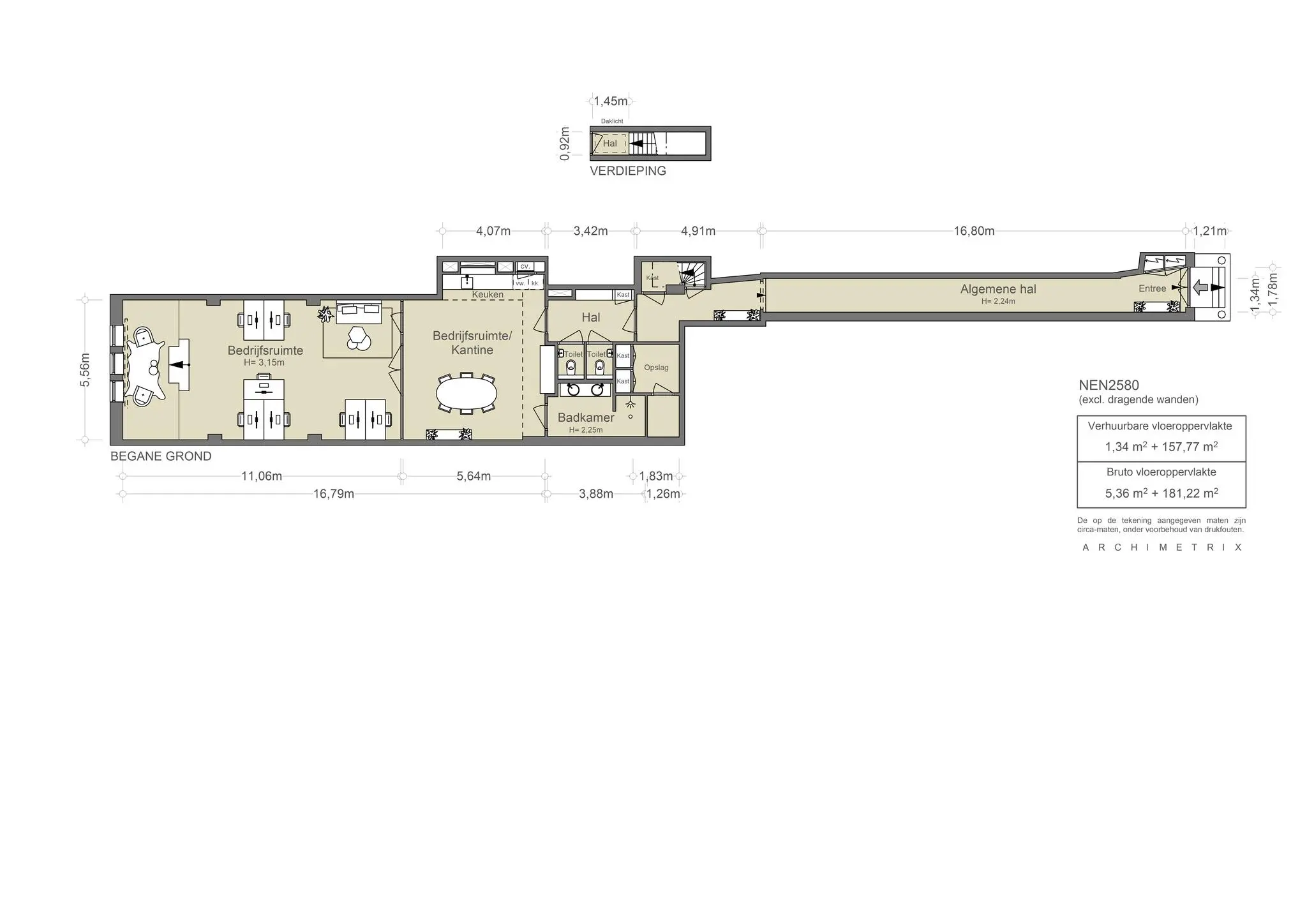
De totale oppervlakte bedraagt circa 159 m² VVO kantoor-/bedrijfsruimte en is gelegen op de begane grond. 

Opleveringsniveau
De kantoorruimte wordt leeg en ontruimd, bezemschoon en vrij van huur en/of overige gebruiksrechten opgeleverd in huidige staat, onder andere voorzien van de volgende voorzieningen:

•    fraaie eigen entree
•    inpandige garderobe met berging
•    toiletgroep
•    badkamer voorzien van een dubbele wastafel en inloopdouche
•    pantry met nis, voorzien van een oven
•    klassieke dubbele openslaande deuren met glas
•    gestucte wanden en plafond
•    inbouwspots
•    vloerafwerking

Verkoper biedt de huidige inventaris en het meubilair ter overname aan.

Vraagprijs
€ 1.150.000,- kosten koper.

Bestemming
Conform het vigerende bestemmingsplan 'Westelijke binnenstad’ is de publiekrechtelijke bestemming van het object ‘Gemengd-1’. Dientengevolge voorziet het bestemmingsplan in de volgende functies: 

•    wonen
•    kantoren
•    kantoren met baliefunctie
•    voorzieningen met inbegrip van additionele horeca
•    galeries

Op basis van de splitsingsakte is privaatrechtelijk de navolgende vorm van gebruik toegestaan: ‘Bedrijfsruimte’.

Op basis van de BAG is privaatrechtelijk de navolgende vorm van gebruik toegestaan: ‘Bedrijfsruimte’.

De bestemming Wonen is momenteel alleen toegestaan op basis van het vigerende bestemmingsplan. Voor de omzetting van bedrijfsruimte naar wonen zal een omgevingsvergunning dienen te worden verstrekt. Daarnaast dient de splitsingsakte te worden aangepast. 

Kadastrale informatie 
•    Gemeente: Amsterdam
•    Sectie: E
•    Nummer: 9918
•    Appartementsindex: A-3

Monumentale status 
Rijksmonument.

Energielabelklasse
Niet van toepassing. Wegens monumentale status niet labelplichtig.

Eigen grond
Het object is gelegen op eigen grond.

Zakelijke lasten
•    WOZ-waarde (2025): € 805.000,-
•    OZB-E (2025): € 1.960,98 per jaar
•    OZB-G (2025): € 1.456,25 per jaar 
•    Rioolrecht (2025): € 185,20 per jaar
•    VvE-bijdrage (2025): € 196,14 per maand

Bouwjaar
1800 (conform opgave Basisregistratie Adressen en Gebouwen).

Aanvaarding
In nader overleg.

Fundering
De fundering van het voorhuis is in 2017 hersteld. Voor nadere informatie over de fundering wordt nadrukkelijk verwezen naar het verkoopdossier. 

Milieu
Geen informatie bekend aan verkoper, behoudens die uit de Bodemrapportage van de Omgevingsdienst Noordzeekanaalgebied betreffende het object, als onderdeel van het verkoopdossier.

Asbest
Geen informatie bekend aan verkoper.

Zekerheidsstelling
10% waarborgsom c.q. bankgarantie dient binnen 14 dagen na ondertekening van de koopakte bij de notaris aanwezig te zijn.

Overige bepalingen
Keizersgracht 378A, Amsterdam

Voorbehoud verkoper
Deze verkoop geschiedt onder het uitdrukkelijk voorbehoud van:

  • Gunning door verkoper, alsmede;
  • Schriftelijke goedkeuring van de voltallige directie van verkoper, alsmede;
  • Een verkoper conveniërende vorm en inhoud van de op te maken koop- en leveringsakte
    (“subject to contract”).

Bijzonderheden
Koper wordt in staat gesteld, na voorafgaand overleg met Broersma Werken en tot aan het moment van tekenen van de koopakte, het verkochte uitgebreid (bouwkundig en anderszins) te onderzoeken. Koper verklaart dat verkoper daarmee afdoende aan zijn mededelingsplicht heeft voldaan en dat koper op een voor haar conveniërende wijze uitputtend van deze mogelijkheid gebruik heeft gemaakt.

Verkoper en koper komen uitdrukkelijk overeen dat het verkochte wordt verkocht en geleverd “as is”, waaronder verkoper en koper verstaan dat:

  • De artikelen 7:17, 7:20, 7:23 en 6:228 van het Burgerlijk Wetboek uitdrukkelijk zijn uitgesloten, alsmede;
  • Door verkoper geen impliciete of expliciete garanties worden verleend met betrekking tot het verkochte behoudens voor zover deze expliciet en schriftelijk zijn opgenomen in de koopakte.

Koper verklaart uitdrukkelijk het verkochte bij levering te aanvaarden in de feitelijke, technische, milieukundige en/of juridische staat waarin het zich alsdan bevindt. Koper aanvaardt daarbij alle gebreken van het verkochte, alsmede de feitelijke staat van onder andere (doch niet uitsluitend) de fundering, constructie, (gebruikte) materialen, (aanwezigheid van) asbest, olietanks en bodemverontreiniging en de technische installaties.

Koper verklaart voorts uitdrukkelijk kennis te hebben genomen van en uitdrukkelijk te aanvaarden: alle lijdende erfdienstbaarheden, bijzondere, publiekrechtelijke en privaatrechtelijke lasten en beperkingen, zakelijke rechten, kettingbedingen en kwalitatieve verplichtingen mede blijkend en/of voortvloeiend uit de laatste en voorgaande akte(n) van eigendomsoverdracht en akte(n) van (onder)splitsing en/of enig openbaar register of openbare informatiebron.

Koper en verkoper komen uitdrukkelijk overeen dat in de koopprijs de feitelijke staat van het verkochte en een integrale afkoop van alle aan het verkochte verbonden risico’s, gebreken en/of (nog) uit te voeren herstellingen verdisconteerd zijn, ongeacht de aard en omvang daarvan en ongeacht in welke mate voornoemde elementen zijn onderzocht door koper en/of besproken tussen verkoper en koper.

Koper vrijwaart verkoper ter zake van enige vordering, alsmede enige vordering van derden, uit hoofde van enig hiervoor genoemd artikellid en/of verband houdende met de staat van het verkochte bij levering. Koper vrijwaart verkoper voorts voor alle eventueel later te blijken (onzichtbare) gebreken, zowel van bouwkundige, milieukundige, feitelijke of juridische aard.

Voorbehoud Broersma Werken
Deze vrijblijvende informatie is met zorgvuldigheid samengesteld. Voor de juistheid hiervan wordt door Broersma Werken geen aansprakelijkheid aanvaard, noch kan hieraan enig recht worden ontleend. Deze informatie is niet bedoeld als aanbod. Door aanvaarding van de vermelde condities of het uitbrengen van een, daarvan al dan niet afwijkend, aanbod worden Broersma Werken noch haar opdrachtgevers op enige wijze gebonden, ook niet tot het doen van enig tegenbod.

Broersma Werken treedt uitdrukkelijk slechts op als adviseur van haar opdrachtgever en niet als gevolmachtigde namens haar. Voorts geldt dat tussen partijen eerst juridisch binding kan ontstaan nadat definitieve overeenstemming is bereikt ter zake van al hetgeen zij met elkaar beogen te regelen en deze overeenstemming bovendien is vastgelegd in een schriftelijke en namens beide partijen rechtsgeldig ondertekende overeenkomst, waarbij artikel 3:39 BW overeenkomstige toepassing vindt.

Broersma Werken is een besloten vennootschap, ingeschreven bij de Kamer van Koophandel onder nummer 34121232. Broersma Werken verleent al haar diensten op grond van de Algemene Voorwaarden NVM voor professionele opdrachtgevers Versie februari 2023. De algemene voorwaarden zijn van toepassing op alle opdrachten die aan haar zijn of worden verstrekt en/of op de levering van al haar diensten en producten aan wie dan ook. De algemene voorwaarden worden op verzoek toegezonden en zijn tevens te downloaden op broersma.nl.

De aansprakelijkheid van Broersma Werken is in alle omstandigheden en jegens eenieder beperkt tot het bedrag dat door de beroepsaansprakelijkheidsverzekering van Broersma Werken in het desbetreffende geval wordt uitgekeerd.

Privacy & Wwft
Geïnteresseerden verklaren in het kader van deze verkoop op voorhand:

  • In te stemmen met de verwerking van hun gegevens conform de Privacyverklaring Broersma;
  • Volledige medewerking te verlenen aan alle mogelijk noodzakelijke onderzoeken op basis van de vigerende wet- en regelgeving, waaronder tenminste begrepen de Wwft. Broersma conformeert zich uitdrukkelijk aan de wettelijke geheimhoudingsplicht betreffende een eventue(e)l(e) vermoeden en/of melding in het kader van de Wwft.

Toelichtingsclausule NEN 2580
De Meetinstructie is gebaseerd op de NEN2580. De Meetinstructie is bedoeld om een meer eenduidige manier van meten toe te passen voor het geven van een indicatie van de (bruto/verhuurbaar/gebruiks-) vloeroppervlakte. De Meetinstructie sluit verschillen in meetuitkomsten niet volledig uit, door bijvoorbeeld interpretatieverschillen, afrondingen of beperkingen bij het uitvoeren van de meting.

Plattegrond
Keizersgracht 378A, Amsterdam
B103663-2007404-Keizersgracht-378A,-Amsterdam-232949796
Documenten
Keizersgracht 378A, Amsterdam
"][/dflip]
Locatie
Keizersgracht 378A, Amsterdam
Eten & drinken
Vinkeles_Impression_Patio_LRS_06
Restaurant_Vinkeles_Food_LRS_13-1500×630
01
Adres
Keizersgracht 384,
1016 GB Amsterdam

Vinkeles (**)

Omsloten door hotel Dylan, is restaurant Vinkeles klein Frankrijk dichtbij huis. Met een prachtige locatie aan de Keizersgracht is het restaurant bij uitstek een chique aangelegenheid. De keuken draagt de handtekening van chef Jurgen van der Zalm die in 2023 zijn tweede ster er mee verdiende.

Schermafbeelding 2023-08-30 om 14.09.18
Schermafbeelding 2023-08-30 om 14.09.33
02
Adres
Keizersgracht 384,
1016 GB Amsterdam

Até

Até is een nieuw dinerconcept in hotel The Dylan onder leiding van Chef Filip Hanlo. Zijn kookfilosofie combineert drie invloedrijke keukens die hij tijdens zijn internationale ervaringen heeft ontdekt. Opgegroeid in de Mexicaanse regio Yucatán als zoon van een Nederlandse vader en een Mexicaanse moeder, bracht Filip zijn jeugd door in een horecafamilie. Até biedt een intieme Chef's Table voor zes gasten. Terwijl het tasting menu wordt bereid, deelt Filip zijn inspiratie en verhalen over ingrediënten. Zijn gerechten omvatten elementen uit Mexico, Japan en Frankrijk, waarbij hij speelt met smaken en technieken. Houd er rekening mee dat dieetwensen en allergieën niet kunnen worden verzorgd.

313848685_1144510456168068_7188390628705923134_n
03
Adres
Runstraat 6,
1016 GK Amsterdam

Screaming Beans

Screaming Beans is een Amsterdams merk dat lokaal en internationaal bekend staat om zijn hoogwaardige koffie. Deze locatie bevindt zich te midden in de historische Negen Straatjes van Amsterdam.  Met zijn gezellige en familiaire sfeer is de winkel aan de Runstraat een tweede huiskamer geworden voor de ondernemers, bewoners en bezoekers van de Runstraat. Kom langs en geniet ook van een heerlijk gebakje, gebakken door Sara of Mateen.

sfeer-buiten1
04
Adres
Runstraat 12,
1016 GK Amsterdam

Restaurant Smelt

Smelt is een gezellig en sfeervol restaurant in de 9 straatjes van Amsterdam. Het restaurant is gespecialiseerd in kaasfondue en biedt vijf verschillende soorten kaas aan. Naast klassieke kaasfondue kun je bij Smelt ook genieten van bijzondere smaken zoals truffel en pesto. Als je geen grote eter bent, kun je ook eenpersoonsporties bestellen. Het interieur van Smelt is knus en warm, met veel hout en kaarslicht. Een perfecte plek om te genieten van een heerlijke kaasfondue met vrienden of familie.

242763162_10159469480317380_5670688408655907350_n
05
Adres
Runstraat 14,
1016 GK Amsterdam

Café de Doffer

Café in de 9-straatjes met een knus terras en een eenvoudige doch goede menukaart. Je kan hier ook terecht voor lunch en borrelhapjes. De Doffer is al sinds de jaren zeventig een begrip in de Amsterdamse 9 straatjes en trekt daarom ook een leuk gevarieerd publiek met uiteraard een goede portie Amsterdamse gezelligheid. Voor iedereen wat wils hier!

103869559_10163664798155142_645102952535043170_n
06
Adres
Huidenstraat 25,
1016 ER Amsterdam

Café de Pels

Café de Pels is een echt intellectueel creatief café. Menig boek of column is hier geschreven, goede gesprekken worden hier gevoerd en leuke of stomme grappen zijn hier uitgeprobeerd. Ook wordt er in de Pels op z’n Amsterdams geflirt, gediscussieerd en zoals het hoort in een Amsterdams bruincafé, bier gedronken. De muren hangen vol met kunst dat door vaste gasten zelf gemaakt is. Het is een bruincafé met een creatief randje, broodjes kroket en op maandag een daghap.

258259290_1099450644203131_9046645986166328405_n
273169718_727311508235024_4226021460398763832_n
07
Adres
Berenstraat 8,
1016 GH Amsterdam

Chun Café

In de druk gelegen Negenstraatjes heeft Chun Café onlangs hun bubble tea menu uitgebreid met een selectie van speciale  sandwiches. De sandwiches zijn verkrijgbaar in vier smaken. De opties zijn: eiersalade, bacon ei en kaas, knoflookgarnalen ei en rib-eye bulgogi. Heerlijk boterachtig en perfect geroosterd.

353641879_1419939592163038_8634430788037824397_n
290397117_436247795090553_6563998570248249791_n
08
Adres
Wolvenstraat 22,
1016 EP Amsterdam

Café Wolf

Bakkerij Wolf opende al een jaar geleden haar deuren. En dan is nu daarnaast Café Wolf geopend,  waar je kunt genieten van verfrissende gerechten boordevol groenten in een prachtig Scandinavisch interieur. De gerechten zijn hier niet je standaard kost, maar bieden een unieke culinaire ervaring van hoog niveau. Het Café is geopend van dinsdag tot zondag vanaf 8:30 tot 18:00 (de keuken sluit om 17:00).

 

image_ramen1_large-1777×1000-q75
09
Adres
Elandsgracht 2A,
1016 TV Amsterdam

Fou Fow Ramen

Vroeger was dit ramen restaurant een goed bewaard geheim dat verscholen zat in de Chinese buurt. Maar ondertussen heeft Fou Fow al twee locaties in de stad en is Fou Fow een bekende naam voor de Amsterdammer die van ramen houden. Op de gezellige en bruisende Elandsgracht eet je de overheerlijke en overigens goedgeprijsde – van origine Chineese - ramen van Fou Fow. Je kunt kiezen uit vier soorten soep op basis van verschillende bouillons en daar gaan dan vervolgens diverse ingrediënten in waaronder natuurlijk de main ingredient: noedels!

10
Adres
Elandsgracht 29-31,
1016 TM Amsterdam

Rakang

Op de altijd gezellige Elandsgracht zit het Thaise restaurant Rakang. Vriendelijke bediening, prettige sfeer en heerlijk authentiek Thais eten! En volgens sommigen zelfs de lekkere Thai van Amsterdam… Of je het daar mee eens bent laten we aan jou over. Maar ben je op zoek naar een lekker, vers, aziatisch restaurant. Dan is Rakang zeker de moeite waard. En na die lekkere Thaise maaltijd biedt de Elandsgracht genoeg gelegenheid om nog een biertje drinken in een van de vele kroegen.

Schermafbeelding 2022-07-01 om 17.17.51
11
Adres
Eerste Looiersdwarsstraat 15,
1016 VL Amsterdam

Bar Parry

Bar Parry is het jonge broertje/zusjes van Restaurant Balthazar’s Keuken. Bij Bar Parry serveren ze sinds 2018 mooie kleine gerechten, charcuterie en kaas met een lekker glas wijn. Ze werken al bijna 25 jaar nauw samen met De Wijnwinkel (Runstraat 23). In de bar staat een groot deel van het assortiment op de kaart. Bijzonder; ze hanteren een vaste opslag op de winkelprijs zodat ze ook de meer bijzondere wijnen voor een goede prijs kunnen schenken.

413921630_17881045268992530_3502756144754358179_n
12
Adres
Elandsgracht 45,
1016 TN Amsterdam

Ela Restobar

ELA Restobar verwelkomt je graag in hun 'all-day' food concept. In de ochtend en middag is het de ideale locatie voor een heerlijke kop Spaanse koffie, een smakelijke lunch of een (zakelijke) bijeenkomst. Naarmate de dag vorder, verandert het in een plek waar je kunt genieten van een verfrissende cocktail of een smaakvol Italiaans biertje. En voor wie trek heeft, biedt chef Teun Dikkers een unieke draai aan de klassieke mediterrane keuken.

284424519_5126376000748750_5583589813571934548_n
13
Adres
Wijde Heisteeg 1,
1016 AS Amsterdam

The Lebanese Sajeria

Lange rijen staan er dagelijks voor de vestigingen van de The Lebanese Sajeria in Amsterdam. Deze zaak is begonnen als foodtruck waar de eigenaren Libanees fastfood serveren met een twist. In 2016 openden zij hun eerste restaurant in de 9 straatjes en het werd een groots succes. Inmiddels hebben zij drie vestigingen in Amsterdam waar zij elke dag overheerlijke gerechten uit de Libanese keuken serveren. Bij The Lebanese Sajeria koken ze met een traditionele Saj; een koepelvormige plaat waar broden op gebakken kunnen worden. Op de saj maken ze hun manoushes en saj broden die worden gebruikt voor de smaakvolle wraps zoals de Manoushe Zatar en Halloumi of de Beef Labneh.

Kunst & cultuur
74e6adf2059221ac2dd55278be18c13b_w680
14
Adres
Keizersgracht 321,
1016 EE Amsterdam

De BorzoGallery

De BorzoGallery gelegen aan de Keizersgracht is toonaangevend op het gebied van NUL/Zero, minimalisme en conceptuele kunst. Het koppelen van het nabije verleden aan de hedendaagse kunst is een van de belangrijkste speerpunten. Zoals ze zelf zeggen: “Kunstenaars van nu ‘staan op de schouders’ van hun voorgangers, waarbij wij schrille contrasten niet schuwen.”

Installation-view-Through-Painters-Eyes-1-2000×1159
2022-08-04_RONMANDOS_133
15
Adres
Prinsengracht 282,
1016 HJ Amsterdam

Galerie Ron Mandos

Galerie Ron Mandos heeft in 20 jaar tijd een prominente plaats verworven binnen de Nederlandse kunstscene. De galerie opende haar deuren in Rotterdam in 1999 en is sinds 2010 verhuisd naar hun huidige galerie in het Amsterdamse galeriedistrict. Galerie Ron Mandos is een galerie voor hedendaagse kunst en presenteert tentoonstellingen van o.a. internationaal erkende kunstenaars maar de focus ligt op opkomende kunstenaars.

Overzicht-midden-Galerie-Bart-Krista-Jongsma
16
Adres
Elandsgracht 16,
1016 TW Amsterdam

Galerie Bart

Galerie Bart is een galerie voor hedendaagse kunst in Amsterdam met een focus op zowel gevestigde als jonge kunstenaars die in Nederland zijn afgestudeerd en uitblinken door hun vernieuwende vakmanschap. Bij Bart vind je kunstenaars die ofwel speels en fris, stevig en scherp, sereen en lichtvoetig of serieus met een vleugje humor werk maken. Zij zoeken de grenzen van hun medium op en bevragen deze, met als doel de grenzen te verleggen.

deur_6e47a554-ba37-4854-8ed7-dba08d3a300c
17
Adres
Prinsengracht 615H,
1016 HT Amsterdam

Galerie Madé van Krimpen

Galerie Madé van Krimpen, voorheen bekend als Multiplemadé, presenteert een mix van tentoonstellingen die werk tonen van zowel gevestigde als opkomende kunstenaars. Hoewel de galerie vooral gericht is op solotentoonstellingen en groepsexposities, werken ze ook regelmatig samen met creatieve collectieven en makers om pop-up-evenementen en take-overs te organiseren.

erin_johnson.1000×700
18
Adres
Singel 372,
1016 AH Amsterdam

Ellen de Bruijne Projects

Ellen de Bruijne Projects is een galerie die zich sinds de eerste tentoonstelling in 1999 richt op nieuwe tendensen in de hedendaagse kunst door het nieuwe in vergelijking te brengen met het recente verleden en te experimenteren om nieuwe standaarden te ontwikkelen, waarbij de nadruk ligt op performing art, sociaal gerelateerde kunst, installaties en werken in uitvoering.

Boodschappen
kaaskamer-amsterdam-cheese-lunch-broodjes-speciale-kaas-80
19
Adres
Runstraat 7,
1016 GJ Amsterdam

Kaaskamer

De naam zegt het al; bij de Kaaskamer kan je terecht voor kaas. Van de vloer tot het plafond is deze winkel gevuld met kaas waarbij vakmanschap en traditie voorop staan. Bij deze kaasspeciaalzaak kan je tussen de 300 en 400 soorten kaas kopen uit heel Europa. Je kan hier je broodje beleggen met ruime keuze en om het af te maken kan je ook kiezen tussen verschillende huisgemaakte sausjes. Uit Frankrijk worden de kazen iedere twee weken zelf opgehaald en in Nederland ligt de focus op biologische kazen die rechtstreeks van de boer komen. Ook worden er wijnen, salades, olijven, hammen en noten verkocht voor een complete borrelplank.

9
20
Adres
Huidenstraat 12,
1016 ES Amsterdam

Chocolaterie Pompadour

Chocolaterie Pompadour is een patisserie aan de Huidenstraat. Alles draait hier om vakmanschap, pure producten en passie voor chocolade en gebak. Elk chocolaatje wordt met zorg gemaakt en prachtig gedecoreerd. In de bijbehorende tearoom kunt u in het prachtig nostalgische interieur genieten van heerlijke thee of Catalaanse koffie. Bij elk kopje koffie serveert Pomadour ook een zelfgebakken financier; een zalig frans cakeje van Spaanse amandelen en beurre noisette. Kortom, voor de beste gebakjes met pure smaken ben je hier aan het juiste adres.

Schermafbeelding 2022-09-27 om 11.29.03
21
Adres
Wolvenstraat 22,
1016 EP Amsterdam

Bakkerij Wolf

In de negen straatjes in Amsterdam zit Bakkerij Wolf. Blijf even lekker zitten of neem wat lekkere dingen mee naar huis. Op de rustieke houtrekken achter te toonbank staan de zuurdesembroden uitgesteld. Bij deze bakker in de Wolfstraat heb je broden, croissants en gebakjes van de allerbeste kwaliteit. De geur van de kaneelbroodjes en croissants is onweerstaanbaar en je kijkt je ogen uit in de vitrine vol lekkers. Probeer absoluut de amandelcroissant en het aardbeientaartje

Schermafbeelding 2022-07-01 om 17.10.30
22
Adres
Looiersgracht 12,
1016 VS Amsterdam

Foodware

Foodware is de plek voor eerlijk voedsel: vers bereid en zonder kunstmatige toevoegingen. Combineer verschillende gerechten tot een maaltijd door te kiezen uit een assortiment van vis-, vlees- of vegetarische ingrediënten. Foodware was oorspronkelijk een traiteur, maar je kan tegenwoordig ook hun heerlijke verse maaltijden in het restaurant aan de Looiersgracht opeten. Maar heb je haast? Dan kan je het eten ook altijd nog gewoon meenemen. Het aanbod aan gerechten is redelijk vast en niet heel groot maar dit bevordert de kwaliteit. Zin in lekker, gezond en niet al te moeilijk eten? Dan is Foodware een perfecte plek om naar toe te gaan.

Interieur
anoukbeerents_003
23
Adres
Prinsengracht 467-BG,
1016 HP Amsterdam

Anouk Beerents

Anouk Beerents is sinds 1987 uitgegroeid tot een bekend begrip op het gebied van de import en export van antieke spiegels. Het atelier aan de Prinsengracht biedt ruimte aan hun collectie van ruim 300 spiegels uit de 18e en 19e eeuw, waarvan het merendeel zijn origine vindt in Frankrijk en Italië, en is verguld in bladgoud of bladzilver.

281661230_5289140751106028_5004304199774961695_n
282007955_5286220708064699_8260481307134760693_n
24
Adres
Looiersgracht 40B,
1016 VS Amsterdam

FEST

FEST is een Nederlands interieurmerk dat in 2013 is gestart door Femke Furnée. De kerngedachte achter FEST: een mooie omgeving toegankelijk maken, voor iedereen. FEST biedt high-end meubels en woonaccessoires – zonder dat daar een high-end prijskaartje aan hangt. De vrolijke, tijdloze en duurzame collecties worden ontwikkeld in samenwerking met internationale designers. Bij FEST vind je alles om jouw interieur een (kleurrijke) boost te geven.

269811997_4974956682516096_4977920613031829702_n
25
Adres
Prinsengracht 397,
1016 DN Amsterdam

360 volt

Gevestigd aan de Prinsengracht kun je 360volt vinden, opgericht door Hilde de Lange en Emile de Cock. 360volt heeft inmiddels een van de grootste collecties vintage originele industriële lampen en bijzondere objecten. De lampen van 360volt zijn bijzonder omdat alle lampen worden gerestaureerd, maar toch hun authentieke uitstraling behouden – industrieel, met strakke lijnen, eenvoudige vormen en van duurzame materialen.

Galeries in de Binnenstad van Amsterdam

Galeries in de Binnenstad van Amsterdam

Amsterdamse stadstuinen

Amsterdamse stadstuinen

Het Verhaal van Michelin: Van Banden naar Gastronomie

Het Verhaal van Michelin: Van Banden naar Gastronomie

Onlangs bekeken
Bekijk het overzicht

Deze site maakt gebruik van cookies.

Voor welke cookies geef je akkoord?