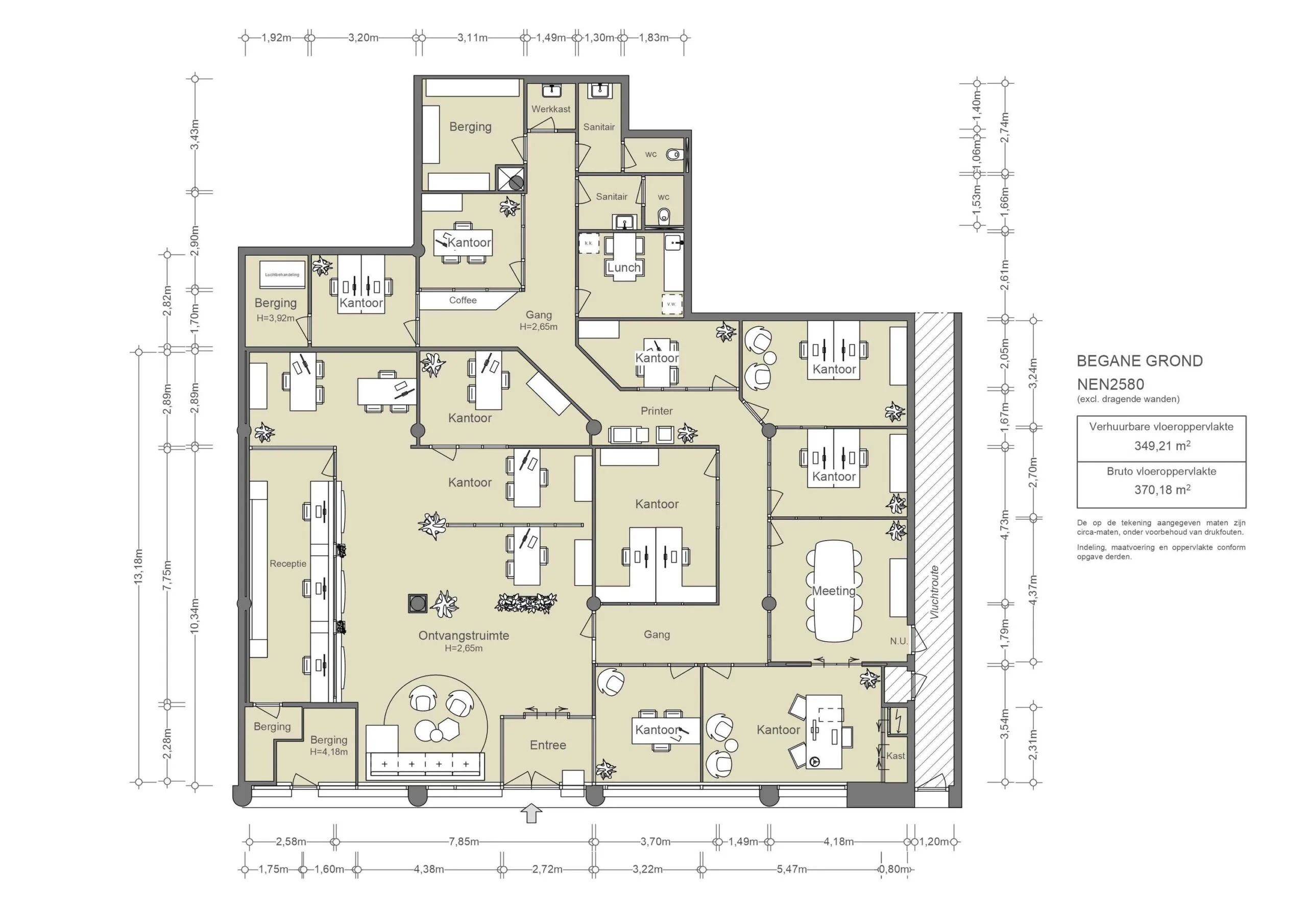
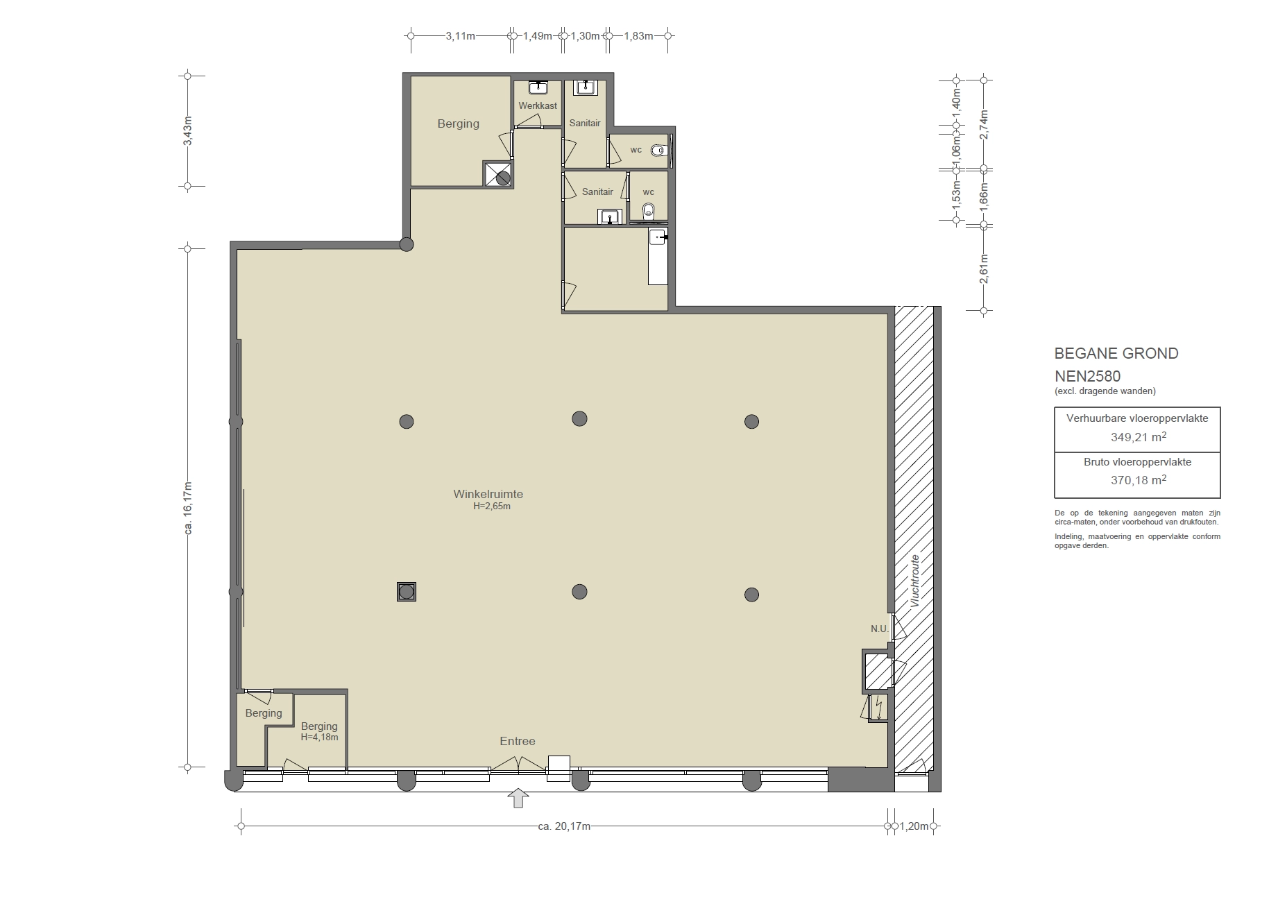
Direct om de hoek van de doorgaande Bilderdijkstraat in Amsterdam Oud-West is een winkelruimte van circa 349 m² beschikbaar. Het betreft de begane grond en de ruimte wordt casco opgeleverd. Alle tussenwanden worden hierbij verwijderd zodat een open ruimte ontstaat. Bekijk de plattegrondtekening voor een impressie van de lege winkelruimte en een indelingsvariant. Een nieuwe huurder kan deze ruimte geheel naar eigen wensen opnieuw indelen.

Kenmerkend voor deze winkelruimte is het zeer grote glazen frontbreedte van bijna 20 meter. Ideaal voor een winkelier om een assortiment te tonen. Het bestemmingsplan laat op deze locatie zowel detailhandel (inclusief bijbehorende ondergeschikte horeca) als consumentverzorgende en publieksgerichte dienstverlening toe.

Amsterdam Oud-West grenst direct aan het centrum en is een bijzonder stukje Amsterdam: een geliefde buurt met de lekkerste restaurants, hipste designshops en leukste cafés. Vanwege de ligging, oppervlakte en het casco opleveringsniveau biedt deze winkelruimte een uitermate geschikte vestigingsmogelijkheid.

Bijzonderheden
• zeer groot frontbreedte van maar liefst 20 meter
• casco opleveringsniveau - zie plattegrondtekening
• energielabel A+++
• gelegen aan de Oranje Loper
• populaire winkelstraat met horecagelegenheden

De Clercqstraat 55-57-2
De Clercqstraat 55-57-11
De Clercqstraat 55-57-1

Gebouw

Het gebouw waar de winkelruimte zich in bevindt is gebouwd in 1993. Boven de winkel zijn vier verdiepingen met appartementen gelegen. Het geheel heeft een moderne uitstraling en is afgewerkt met een strakke rechte lijstgevel.

Historie

De straat is genoemd naar Willem de Clercq (secretaris en later directeur van de Nederlandsche Handelsmaatschappij). Het is één van de Amsterdamse hoofdstraten, gebouwd rond 1895. In die tijd maakte de stad nog geen zorgvuldige stedenbouwkundige plannen. Dat geeft de lange, drukke straat een ruw karakter. De De Clercqstraat wordt de komende tijd opgeknapt met het project de Oranje Loper.

Toekomst

Project de Oranje Loper is gestart in 2020. De gemeente werkt aan de bruggen en straten van de Raadhuisstraat tot het Mercatorplein. In de straten worden zowel in het Centrum als in West verbeteringen aangebracht, waardoor er meer ruimte komt voor voetgangers, winkelend publiek, fietsers, openbaar vervoer en groen. Medio februari 2025 zullen de werkzaamheden ter hoogte van de De Clercqstraat zijn afgerond.

De Clercqstraat 55-57-10
De Clercqstraat 55-57-6
De Clercqstraat 55-57-7
De Clercqstraat 55-57-21

Buurt + hotspots

De winkelruimte in de De Clerqstraat is gelegen in de Da Costabuurt in Amsterdam Oud-West. Het is een drukke (winkel)straat die kruist met de doorgaande Bilderdijkstraat. Op dit moment wordt de straat door de gemeente Amsterdam opnieuw ingericht. Het doel is om de straat overzichtelijker en veiliger te maken, met meer ruimte voor voetgangers, fietsers en de tram. Richting het Centrum wordt fietsstraat aangelegd waarbij auto’s te gast zijn en de maximumsnelheid 30 kilometer per uur wordt. Amsterdam Oud-West grenst direct aan het centrum en is een bijzonder stukje Amsterdam: een geliefde buurt met de lekkerste restaurants, hipste designshops en leukste cafés. Voorbeelden hiervan in de De Clerqstraat zelf zijn Hendrix, Van het Spit, Pazzi, Cafe Thuys en Fabus. Ook de nabij gelegen Foodhallen en ijssalon Massimo Gelato zijn een bezoek waard.

Bereikbaarheid

De winkelruimte is uitstekend bereikbaar met zowel eigen vervoer als met openbaar vervoer. Direct voor de winkelruimte is de tramhalte Bilderdijkstraat gelegen. Normaal rijdt hier tramlijn 19 richting Amsterdam Sloterdijk of Diemen Sniep. Vanwege de herinrichting van de straat is de dienstregeling opgeschort tot medio februari 2025. Om de hoek van de winkelruimte is ook de tramhalte De Clercqstraat van tramlijn 3 (oranje loper). Met de auto is de ringweg A-10 binnen 10 minuten te bereiken via de Jan van Galenstraat (S-105).

Parkeergelegenheid

Parkeren is mogelijk op de openbare weg middels betaling of een vergunningensysteem. Informatie over voorwaarden en mogelijkheden voor verkrijging van een (bedrijfs-) vergunning en eventuele wachttijd is op te vragen via de gemeente Amsterdam.

AM106073-1981333-Bilderdijkstraat-11-1-Amsterdam-220103651
De Clercqstraat 55-57-8
De Clercqstraat 55-57-14
De Clercqstraat 55-57-15
De Clercqstraat 55-57-18
AM105451-1909431-Da-Costakade-180-4,-Amsterdam-193773111
Kenmerken
De Clercqstraat, Amsterdam
Overige kenmerken

Oppervlakte 
De totale oppervlakte bedraagt 349,21 m² VVO winkelruimte en is gelegen op de begane grond. 

Opleveringsniveau
De winkelruimte wordt opgeleverd, in casco staat. Alle tussenwanden worden verwijderd. 

Huurprijs
€ 350,- per m² per jaar te vermeerderen met omzetbelasting.

Servicekosten
Niet van toepassing. 

Huurder dient zelf contracten af te sluiten met de betreffende leveranciers voor de levering van gas/water/elektra en eventuele overige voorzieningen.

Bestemming
Publiek-/privaatrechtelijk is de bestemming winkelruimte van toepassing.

Monumentale status 
Niet van toepassing.

Energielabelklasse
Voor dit object geldt energielabelklasse A+++.

Betalingsverplichting
Per maand bij vooruitbetaling te voldoen.

Huurtermijn
Vijf jaar met aansluitende verlengingsperioden van vijf jaar.
Afwijkende huurtermijnen zijn in overleg met Verhuurder bespreekbaar.

Huuringangsdatum
In nader overleg.

Huurprijsindexering
Jaarlijks, voor het eerst 1 (één) jaar na huuringangsdatum, vindt indexering plaats van de huurprijs op basis van de wijziging van het Consumentenprijsindexcijfer (CPI), reeks CPI Alle huishoudens (2015 =100), als gepubliceerd door het Centraal Bureau voor de Statistiek (CBS).

Zekerheidsstelling
Huurder dient een waarborgsom/bankgarantie (model ROZ) te stellen ter grootte van tenminste drie maanden huur en servicekosten, beide te vermeerderen met btw.

Huurvoorwaarden
Op basis van de Modelhuurovereenkomst winkelruimte en andere bedrijfsruimte in de zin van artikel 7:290 BW, zoals opgesteld door de Raad voor Onroerende Zaken (R.O.Z. model oktober 2012), met de bijbehorende algemene bepalingen, eventueel door verhuurder aan te vullen met bijzondere bepalingen.

Btw-plicht
Huurder verklaart dat hij voor tenminste 90% met omzetbelasting belaste prestaties verricht. Indien huurder op enig moment niet meer aan dit criterium voldoet, zal er van rechtswege sprake zijn van omzetbelasting vrijgestelde verhuur. Alsdan wordt de overeengekomen kale huurprijs, exclusief omzetbelasting, zodanig verhoogd dat het voor verhuurder ontstane financiële nadeel volledig door huurder wordt gecompenseerd.

Overige bepalingen
De Clercqstraat, Amsterdam

Voorbehoud Broersma Werken
Deze vrijblijvende informatie is met zorgvuldigheid samengesteld. Voor de juistheid hiervan wordt door Broersma Werken geen aansprakelijkheid aanvaard, noch kan hieraan enig recht worden ontleend.

Deze informatie is niet bedoeld als aanbod. Door aanvaarding van de vermelde condities of het uitbrengen van een, daarvan al dan niet afwijkend, aanbod worden Broersma Werken noch haar opdrachtgevers op enige wijze gebonden, ook niet tot het doen van enig tegenbod. Broersma Werken treedt uitdrukkelijk slechts op als adviseur van haar opdrachtgever en niet als gevolmachtigde namens haar. Voorts geldt dat tussen partijen eerst juridisch binding kan ontstaan nadat definitieve overeenstemming is bereikt ter zake van al hetgeen zij met elkaar beogen te regelen en deze overeenstemming bovendien is vastgelegd in een schriftelijke en namens beide partijen rechtsgeldig ondertekende overeenkomst, waarbij artikel 3:39 BW overeenkomstige toepassing vindt.

Broersma Werken is een besloten vennootschap, ingeschreven bij de Kamer van Koophandel onder nummer 34121232. Broersma Werken verleent al haar diensten op grond van de Algemene Voorwaarden NVM voor professionele opdrachtgevers Versie februari 2023. De algemene voorwaarden zijn van toepassing op alle opdrachten die aan haar zijn of worden verstrekt en/of op de levering van al haar diensten en producten aan wie dan ook. De algemene voorwaarden worden op verzoek toegezonden en zijn tevens te downloaden op broersma.nl. De aansprakelijkheid van Broersma Werken is in alle omstandigheden en jegens eenieder beperkt tot het bedrag dat door de beroepsaansprakelijkheidsverzekering van Broersma Werken in het desbetreffende geval wordt uitgekeerd.

Toelichtingsclausule NEN2580
De Meetinstructie is gebaseerd op de NEN2580. De Meetinstructie is bedoeld om een meer eenduidige manier van meten toe te passen voor het geven van een indicatie van de (bruto vloer- /verhuurbaar vloer-/gebruiks-) oppervlakte. De Meetinstructie sluit verschillen in meetuitkomsten niet volledig uit, door bijvoorbeeld interpretatieverschillen, afrondingen of beperkingen bij het uitvoeren van de meting.

Plattegrond
De Clercqstraat, Amsterdam
B103236-1832787-De-Clercqstraat,-Amsterdam-205925655
B103236-1832787-De-Clercqstraat,-Amsterdam-249886916
B103236-1832787-De-Clercqstraat,-Amsterdam-249886868
Documenten
De Clercqstraat, Amsterdam
"][/dflip]
Locatie
De Clercqstraat, Amsterdam
Eten & drinken
monks-coffee-roasters-cafe-sign-image_900x
01
Adres
Bilderdijkstraat 46,
1052 NB Amsterdam

Monks coffee roasters

In 2016 openden Monk's coffee roasters zijn deuren in Oud-West. Bij Monks Coffee Roasters hebben ze een passie voor hun vak en dat proef je terug in hun producten. De branderij bevindt zich aan de Westhavenweg ten westen van de stad. Ze branden op een 12 kg Probat en besteden veel zorg aan het behouden van de kwaliteit en integriteit van elke koffie die ze zorgvuldig selecteren.  Als je de dag vroeg wilt beginnen, kan je hier om acht uur terecht voor een granola ontbijt.

Schermafbeelding 2022-06-20 om 19.08.00
Schermafbeelding 2022-06-20 om 19.08.44
02
Adres
Bilderdijkstraat 36,
1052 NB Amsterdam

Café Binnenvisser

Café Binnenvisser gevestigd aan de Bilderdijkstraat in Amsterdam West, is een gezellig buurtcafé. Hier wordt een menu met voornamelijk groenten geserveerd, maar vis en vlees kan je er ook eten. De wijnkaart met vooral natuurwijnen is erg uitgebreid, maar het personeel weet goed welke wijn goed bij elk gerecht past. Bij mooi weer gaan de ramen open en loopt het gezellige interieur zo over naar buiten, wat de sfeer goed doet. Een aanrader voor een avond uitgebreid uit eten.

downloadgram.org_650779511_18082281551587799_3383876454475866140_n
downloadgram.org_649557707_18082281590587799_3395276028122922554_n
03
Adres
De Clercqstraat 32,
1052 NE Amsterdam

Stacks Diner

American homestyle cooking. Een moderne versie van een classic American diner in Amsterdam. Executive chef en eigenaar Kevin Kearney werkt naast deze diner ook nog als creative director bij in de reclame. Toen hij in 2017 voor het werk van zijn vrouw in Amsterdam kwam wonen miste hij een restaurant 'in het midden'. Aangezien hij in het verleden in New York voor bekende chefs gewerkt had besloot hij deze 'diner' te openen. Inmiddels is er ook een 'deli' en zelfs 'merchandise'. Alles (behalve de 'merch' wordt in huis gemaakt.

252404405_2835976763362002_313159357009778854_n
121238041_2501953676764314_3136028383051652357_n
04
Adres
Bilderdijkstraat 92,
1053 KX Amsterdam

nNea Pizza

nNea Pizza bevindt zich net op de grens van het centrum en West, in een klein schattig pandje wat snel vol zit- dus reserveren is een must. De pizza schijnt de béste van Amsterdam te zijn en dient volgens pizzabakker Vincenzo Onnembo als een herdefiniëring van Napolitaanse pizza.

downloadgram.org_503514068_17861160828427919_7012698542576401955_n
downloadgram.org_503609130_17861160918427919_3780192132178709852_n
05
Adres
Bilderdijkkade 25-H,
1053 VB Amsterdam

Café COOS

Café Coos is een modern-Oud-Hollands café-bakkerij dat wordt gerund door Rosanne en Rachel van Nieuwpoort samen met Mira Akhtar, vernoemd naar hun grootvader “Coos” die bakker was. De zaak combineert nostalgische klassiekers zoals krentenbol en ontbijtkoek met creatieve nieuwe kanten, waarbij vers gebak en lokaal gemaakte producten centraal staan. Het trio laat daarmee traditionele smaken herleven maar dan met aandacht voor kwaliteit en lokale producten van kleine makers. Binnen is de sfeer warm en huiselijk met kleuraccenten, een open bakkerij en een community-gerichte vibe die uitnodigt om te blijven hangen. Café Coos voelt als een plek waar herinnering en modern plezier samenkomen over koffie, brood en gesprekken.

381028385_18395087263048388_5807018223629417144_n
06
Adres
De Clercqstraat 95,
1053 AH Amsterdam

Van 't Spit

Zoals je waarschijnlijk wel verwacht staat hier de gegrilde kip in halve of hele portie centraal.  De kip is sappig, goed gemarineerd en heeft een perfecte grillsmaak.  Deze is te combineren met diverse sauzen zoals de rode-uienchutney en piripiri. Klassieke bijgerechten als friet, maïs, koolsalade en aardappelpuree zijn beschikbaar.  Van 't Spit heeft een ongedwongen, warme sfeer en biedt royale porties voor een zeer goede prijs.

360140550_18370084879023426_5307795712086357556_n
07
Adres
Bilderdijkstraat 113,
1053 KN Amsterdam

Skina

Skina heeft een minimalistische maar toch funky uitstraling en serveert uitstekende koffie. De bonen worden gebrand door Rush Rush coffee. Ze serveren ook andere warme en verfrissende koude dranken zoals citroenlimonade. Daar kan je gebak bij krijgen zoals een plak marmercake, kaneelcroissant of brioche met sinaasappelen. Of ze bieden sandwiches aan, zowel plantaardige-als vleesopties geserveerd op heerlijk focaccia brood.

IMG_0015
08
Adres
Bilderdijkkade 27,
1053 VH Amsterdam

Berry

Berry Amsterdam is een hotspot voor sapjes, smoothies, koffie en meer. Dit koffie/lunchtentje kun je vinden op de Bilderdijkkade. Het gezellige en warme interieur doet door de vele planten en boeken denken aan een huiskamer. Daarnaast hebben ze een heerlijk terras waar je van de zon kan genieten. De meeste producten zijn biologisch en hier geen gelaptop – Berry Amsterdam is zoals ze zelf zeggen: een wifi-vrije zone!

325749984_906537340772511_1825606846932047451_n
09
Adres
Bilderdijkstraat 116,
1053 KZ Amsterdam

Toko Bersama

Bij Toko Bersama kan je terecht voor authentieke Indonesische gerechten. Van heerlijke roti tot rames en van soepen tot snacks, er is voor ieder wat wils. Van de rijsttafel zijn er verschillende varianten beschikbaar, van klein (voor één persoon) tot extra compleet. Deze kan (desgewenst) volledig vegetarisch worden geserveerd. Bij de normale rijsttafel ( van €36), voor twee personen, kies je zelf twee basis-, drie vlees- en drie groente- of sojagerechten. Standaard komen daar kroepoek, seroendeng, tempé en sambal bij. De rijsttafel biedt de mogelijkheid om de verschillende Indonesische gerechten te proberen.

338352218_584298323641670_4711459359542309389_n
339656072_768473978128516_5314100082435858911_n
10
Adres
Kwakersstraat 24,
1053 WD Amsterdam

La Parole

Tijn Verstappen, bekend van restaurants als Pazzi, Oeuf, Gertrude en Van 't Spit, vond dit historische pand de perfecte plek voor een Franse bistro in de Westerse wijk. La Parole, geleid door de getalenteerde chef Olivier Hirschmann (26), biedt zeven dagen per week brunch, lunch, diner en borrel tegen betaalbare prijzen. Het menu omvat klassieke Franse gerechten zoals moules frites, omeletten en cheeseburgers, evenals innovatieve creaties zoals brioche toast met steak tartare en ravioli met krab in een bisquesaus. La Parole is een welkome aanwinst voor de buurt en biedt een ontspannen sfeer met uitstekende wijn en een gezellige bar om aan te hangen.

downloadgram.org_609930707_18074677673366171_2740458049347652876_n
downloadgram.org_610631877_18074677631366171_1146120732393511510_n
11
Adres
Bilderdijkstraat 140,
1053 LA Amsterdam

SILK

SILK is het buurtrestaurant van Limau Chen, bekend van nNea Pizzeria en de Salvo Patisseries, die hier bewust teruggrijpt op haar eigen roots na jaren in de Italiaanse horeca te hebben gewerkt. In de keuken staat chef Paolo Manzo, die samen met Chen een keuken neerzet die geen fusion wil zijn, maar een culturele dialoog tussen Oost en West. Hun gerechten volgen grofweg de lijn van de Zijderoute, met invloeden uit Azië en Zuid-Europa die elkaar ontmoeten in uitgesproken, seizoensgebonden borden. Denk aan gefrituurde hele zeebaars op Aziatische wijze, naast pasta-achtige structuren, frisse zuren en diepe umami-tonen.

©rachelecclestone_PEPS-INTERIORS__September-09-2025_DSC07510
12
Adres
Bilderdijkstraat 158H,
1053 LC Amsterdam

Peps

Peps is een Spaanse wijn- en eetbar in Oud-West met een keuken onder leiding van chef Raymond van Welzenis, die eerder bij BAUT werkte en hier een creatieve draai geeft aan tapas en pinchos met finesse en smaak. De kaart telt meer dan zestig kleine gerechten, van klassiekers zoals pimientos de padrón en pulpo tot oesters op ijs, ideaal om te delen met vrienden of bij de borrel. Het menu combineert Spaanse traditie met een moderne, informele setting waarin brunch, diner en cocktails moeiteloos in elkaar overlopen.

275335010_978007842873510_9036372361978497498_n
294431600_369850948563647_4204512199247441432_n
13
Adres
Bilderdijkstraat 164 H,
1053 LC Amsterdam

Brioche.

Deze gloednieuwe bakkerij is gespecialiseerd in (zoals je waarschijnlijk verwacht) Franse brioche. Ze bieden een selectie van zoete broodjes met klassieke smaken zoals kardemom en kaneel, en nog wat anderen zoals bessen en praline. Ze hebben ook hartige specialiteiten zoals een brioche met zalm en roomkaas.  Ze zijn geopend op woensdag tot en met vrijdag van  8.00 to 17.30 en zaterdag en zondag van 9.00 tot 17.00

Schermafbeelding 2023-01-25 om 14.25.43
14
Adres
Bellamyplein 51,
1053 AT Amsterdam

Kanarie club

Iedereen kent de foodhallen in West. Wat echter niet iedereen kent is de Kanarie Club die zich aan de achterkant van het gebouw bevindt. Dit deel van de oude fabriekshallen is gevuld met het briljante concept van de club: een grote ruimte met genoeg plek om zowel zelf met of zonder laptop neer te strijken, als het hosten van grote events en bijeenkomsten. In het midden van de ruimte staat een keukenachtige-bar, waar je smaakvolle cocktails kunt drinken. Daarnaast is de kanarie club open voor ontbijt, lunch én diner. Kortom, meer dan genoeg om er de hele dag te vertoeven.

15
Adres
Rozengracht 239h,
1016 SX Amsterdam

Banh Mi Ba My

De chef-eigenaar vak leerde het vak van haar oma in Ho Chi Minh City en droomde al haar hele leven van een eigen restaurant. Na haar emigratie naar Nederland in 1993 kookte ze jarenlang voor familie en feesten, tot ze besloot die droom werkelijkheid te maken in haar eigen zaak. Samen met haar dochter, die vaak als tolk fungeert, bouwde ze een plek die inmiddels geliefd is binnen de Vietnamese community. Op de kaart staan klassiekers als huisgemaakte bánh mì, chả giò, bánh xèo en noedelsoepen als phở en bún bò huế, waarvan de bouillon soms een hele nacht trekt. De sfeer is warm en persoonlijk, een klein restaurant waar koken op gevoel en gastvrijheid vanzelfsprekend zijn.

16
Adres
Rozengracht 228-230,
1016 SZ Amsterdam

Akitsu

Op de Rozengracht, naast de brandweer kazerne, is Akitsu gevestigd. Alles oogt hier Japans en bescheiden. De sushi en shashimi is van hoge kwaliteit, onder meer sashimi van hirame die topvers en elegant versneden is. Griet verschijnt uitstekend gefrituurd en vetvrij op het bord. Ook op het menu; Dashimaki tamago, een smaakvolle omelet met diepe, fijne dashismaak. Er is ook een goede selectie van Sake beschikbaar.

Schermafbeelding 2022-06-20 om 19.09.35
17
Adres
Bellamyplein 51,
1053 AT Amsterdam

Mer du Nord

Gelegen in de populaire Foodhallen in Amsterdam-West zit Mer du Nord. Heerlijke Nederlandse vis snacks staan hier op het menu. De twee chefs van Restaurant 212 zijn de eigenaren van deze plek. De verse oesters zijn een echte aanrader maar ook de knapperige zachte krab op een broodje is om te smullen.

191004_Foodhallen_Amsterdam5jaar-©laisamaria-54
18
Adres
Bellamyplein 51,
1053 AT Amsterdam

Foodhallen

De Foodhallen zijn geïnspireerd door de ‘indoor foodmarkets’ van andere grote steden als Madrid, Copenhagen en Londen. In de Foodhallen vind je stands van het beste dat Amsterdam op culinair gebied te bieden heeft. Met meer dan twintig verschillende keukens gevarieerd van door Michelin bekroonde concepten tot streetfood. Kibbeling en inktvis van Mer Du Nord, taco's van Taqueria Lima of Vietnamees bij Viet View.

263151911_4984840728206347_6656739176783290457_n
19
Adres
Kinkerstraat 112,
1053 ED Amsterdam

LOT61 Coffee Roasters

Op de hoek in de Kinkerstraat zit koffiebranderij LOT61. Je kan hier naast verse bonen – heerlijk ruiken - terecht voor een sterke, goeie bak koffie, ontbijt en bakkerijproducten. De gemoedelijke ruimte, ingericht met hout en metrotegels zorgt ervoor dat je hier uren zou willen zitten. Hun missie is om de meest circulaire koffiespecialiteitsmerk ooit te zijn. Probeer ook de chocolate chip cookies, ook wel ‘crack cookies’ genoemd, maar pas op want ze zijn verslavend.

Interieur
273766785_5023843397635766_5707094294745198166_n
20
Adres
De Clercqstraat 44,
1052 NG Amsterdam

FEST

FEST is een Nederlands interieurmerk dat in 2013 is gestart door Femke Furnée. De kerngedachte achter FEST: een mooie omgeving toegankelijk maken, voor iedereen. FEST biedt high-end meubels en woonaccessoires – zonder dat daar een high-end prijskaartje aan hangt. De vrolijke, tijdloze en duurzame collecties worden ontwikkeld in samenwerking met internationale designers. Bij FEST vind je alles om jouw interieur een (kleurrijke) boost te geven.

Winkel-blauwe-muur2
Wildernis-HR-10-e1505960790573
21
Adres
Bilderdijkstraat 165F,
1053 KP Amsterdam

Wildernis

Bij Wildernis aan de Bilderdijkstraat kun je terecht voor planten, potten, boeken, accessoires en andere groene cadeaus, maar je drinkt er ook de lekkerste kop koffie. Alle producten in de winkel zijn gemaakt met liefde en zorg, en zijn zo duurzaam mogelijk. Kom een kijkje nemen in deze groene oase van rust!

Kunst & cultuur
Sweet-Spills_WEBRES_JDEWAART_10.5.22_43-1920×1080
22
Adres
Bilderdijkstraat 165 C,
1053 KP Amsterdam

Gerhard Hofland

In de loop der jaren is Gerhard Hofland uitgegroeid tot een van de grootste galerieën in Amsterdam, die een grote verscheidenheid aan kunst en kunstenaars vertegenwoordigt. Die zowel werken vanuit abstractie als uit de meer figuratieve kunst. Daarnaast werkt de galerie voortdurend aan het introduceren van internationale kunstenaars bij het Nederlandse publiek, en gaat zij projecten aan met jonge en getalenteerde kunstenaars om hen te ondersteunen bij hun eerste stappen in de professionele kunstwereld.

IMG_4216
IMG_3589-1040×500-1
23
Adres
Hannie Dankbaarpassage 12,
1053 RT Amsterdam

De Filmhallen

De Filmhallen zit in het complex ‘de hallen’ wat voorheen een tramremise was. De bioscoop is vrij jong het bestaat namelijk sinds 2004. Bijzonder aan de filmhallen is dat er één zaal is waarbij het art-deco interieur van een zaal van het oude Cinema Parisien is ingebouwd. De hallen is een ruim complex geheel overdekt met naast de filmhallen ook de foodhallen, waar allemaal etenstentjes zijn. Dit heeft een beetje de sfeer van een overdekte Spaanse foodmarket.

Boodschappen
gevel_marnix02-scaled
marnix_DSC2730
24
Adres
Marnixstraat 192B,
1016 TJ Amsterdam

Fromagerie Abraham Kef

Bij Fromagerie Abraham Kef haal je de lekkerste kazen. Al in 1953 opende Abraham Kef een winkel in het centrum van Amsterdam. Als echte kaasliefhebber met buitengewone verhalen, bleek Kef een pionier op het gebied van kaas en liet hij een blijvende indruk achter.

65320963_2386585801408785_6382526370580267008_n
25
Adres
Bellamyplein 51,
1053 AT Amsterdam

The Maker Market

De Hallen in Oud-West organiseert een keer per maand een weekendmarkt. Hier vind je allerlei duurzame merken van lokale ondernemers en makers uit Amsterdam en omstreken. De markt heeft een divers aanbod en laat je op een andere manier naar duurzaamheid en lokaal geproduceerd kijken. Ook kan je in de Hallen terecht voor een bioscoop, een lekker hapje of drankje, dus is een bezoek aan deze markt een veelzijdig uitstapje.

Kunst & cultuur agenda maart 2026

Kunst & cultuur agenda maart 2026

Uitgelicht; Maison D’Angle

Uitgelicht; Maison D’Angle

Een selectie van gezellige bruine café’s in Amsterdam

Een selectie van gezellige bruine café’s in Amsterdam

Onlangs bekeken
Bekijk het overzicht

Deze site maakt gebruik van cookies.

Voor welke cookies geef je akkoord?